← Back to Wyre Council

Status

Pending Decision
Received
21 Mar 2025
New dwellings
n/a

Summary

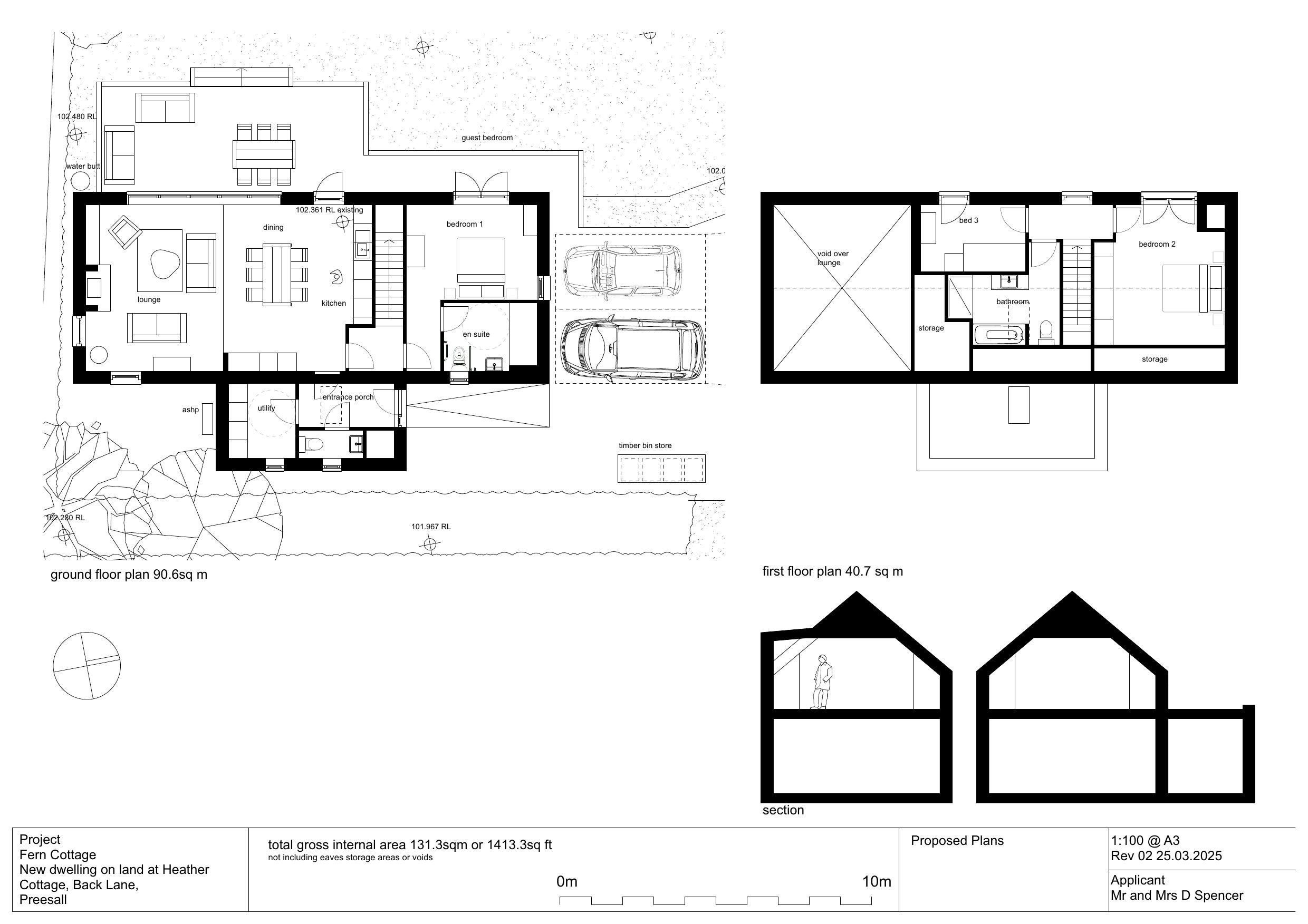
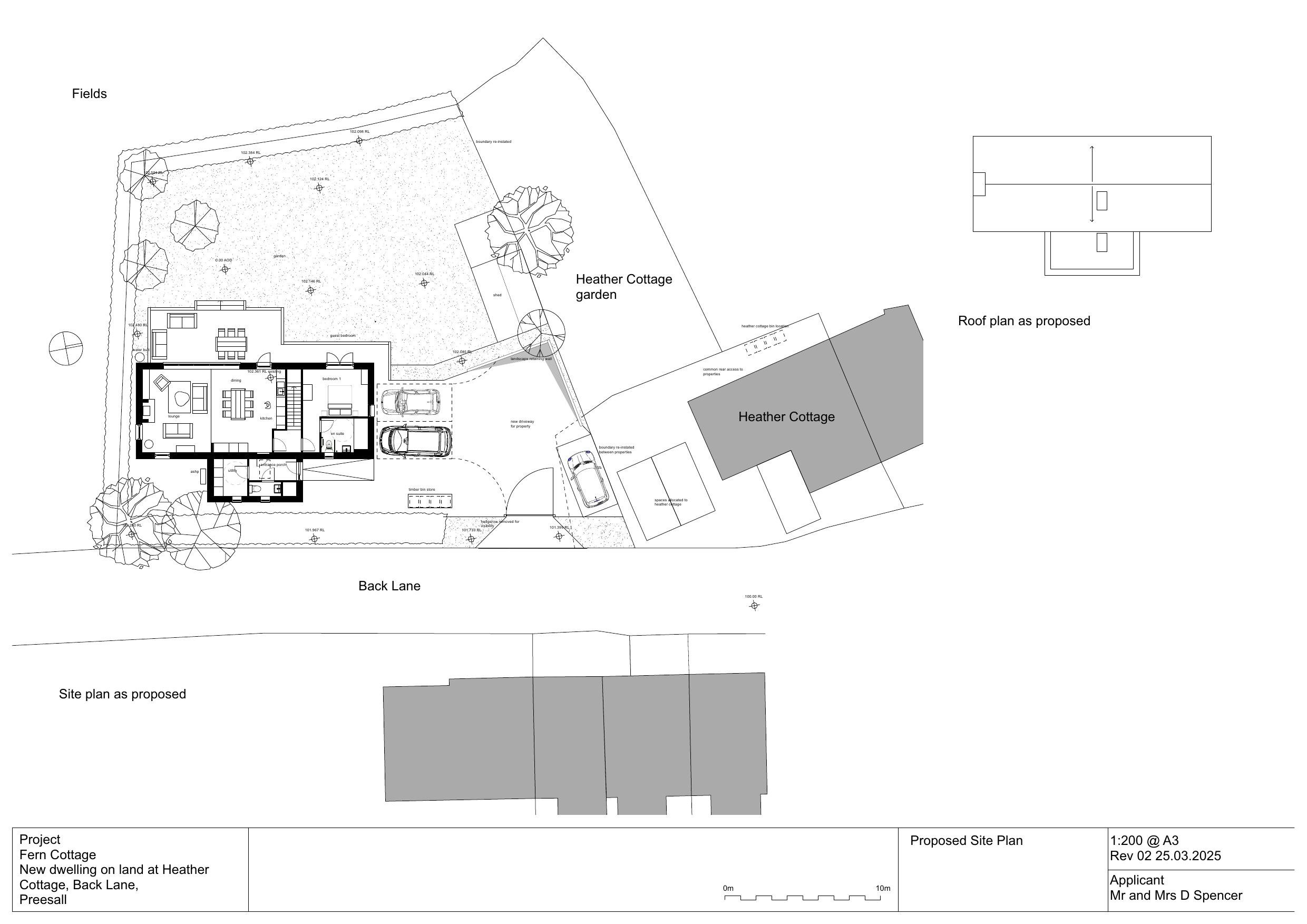
Erection of a three-bedroom self-build dwelling house.

Full Proposal

Erection of a three bed room (self build) dwelling house

Documents

* alan whalley preesall town council
Consultee Response
Not archived · Council Link
* wyre drainage consultee
Consultee Response
Not archived · Council Link
* wyre drainage consultee
Consultee Response
Not archived · Council Link
* wyre drainage consultee
Consultee Response
Not archived · Council Link
- gmeu consultee comments
Consultee Response
Not archived · Council Link
Application form - without personal data
Application Form
Not archived · Council Link
Climate change statement
Application Documentation
Not archived · Council Link
Drainage and maintenance rev a strategy
Revised Document
Not archived · Council Link
Drainage layout plan rev b
Revised Plans
Not archived · Council Link
Drainage plan
Revised Plans
Not archived · Council Link
Drainage strategy
Application Documentation
Not archived · Council Link
Drainage strategy
Revised Plans
Not archived · Council Link
Plans
Archived · Council Link
Plans
Archived · Council Link
Hse report
Consultee Response
Not archived · Council Link
Mrs janet lawson-marsden lcc highways
Consultee Response
Not archived · Council Link
Mrs janet lawson-marsden lcc highways
Consultee Response
Not archived · Council Link
Mrs janet lawson-marsden lcc highways
Consultee Response
Not archived · Council Link
Objects
Public Comment
Not archived · Council Link
Objects
Public Comment
Not archived · Council Link
Planning statement
Application Documentation
Not archived · Council Link
Proposed elevations
Plans
Not archived · Council Link
Superseded Plans
Archived · Council Link
Superseded Plans
Archived · Council Link
Refuse and recycling statement
Application Documentation
Not archived · Council Link
Site Location Plan
Archived · Council Link

Take Action

Make your voice heard. Authorities need to hear from people who support new homes.

✉️ Write Email in Support View on Council Portal