← Back to Wyre Council

Status

Application Permitted
Received
26 Mar 2025
New dwellings
n/a

Summary

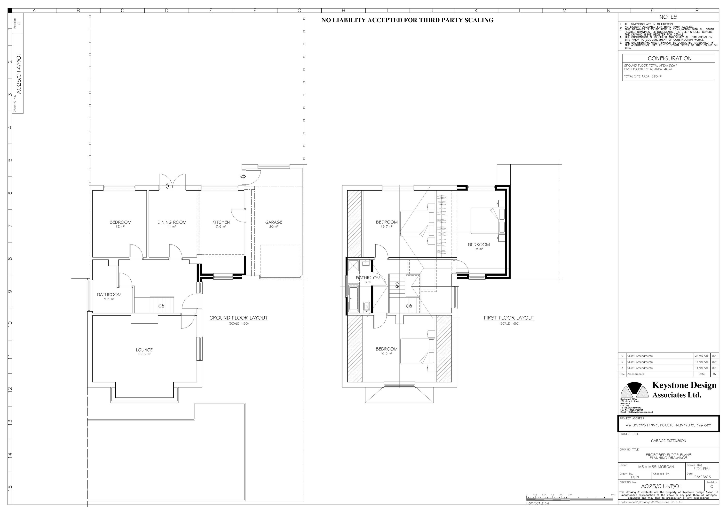
First-floor side extension above garage, side dormers, front bay windows, and pitched roof conversion.

Full Proposal

Erection of first floor side extension above existing garage, side dormers, front bay windows and conversion of flat roof to pitched roof over garage.

Documents

Decision notice
Decision Notice
Not archived · Council Link
Delegated report
Delegated Report
Not archived · Council Link
Existing elevations
Plans
Not archived · Council Link
Existing floor plans
Plans
Not archived · Council Link
Proposed elevations
Approved Plans
Not archived · Council Link
Approved Plans
Archived · Council Link
Approved Plans
Archived · Council Link

Take Action

Make your voice heard. Authorities need to hear from people who support new homes.

✉️ Write Email in Support View on Council Portal