← Back to Wyre Council

Status

Application Permitted
Received
19 Jun 2025
New dwellings
n/a

Summary

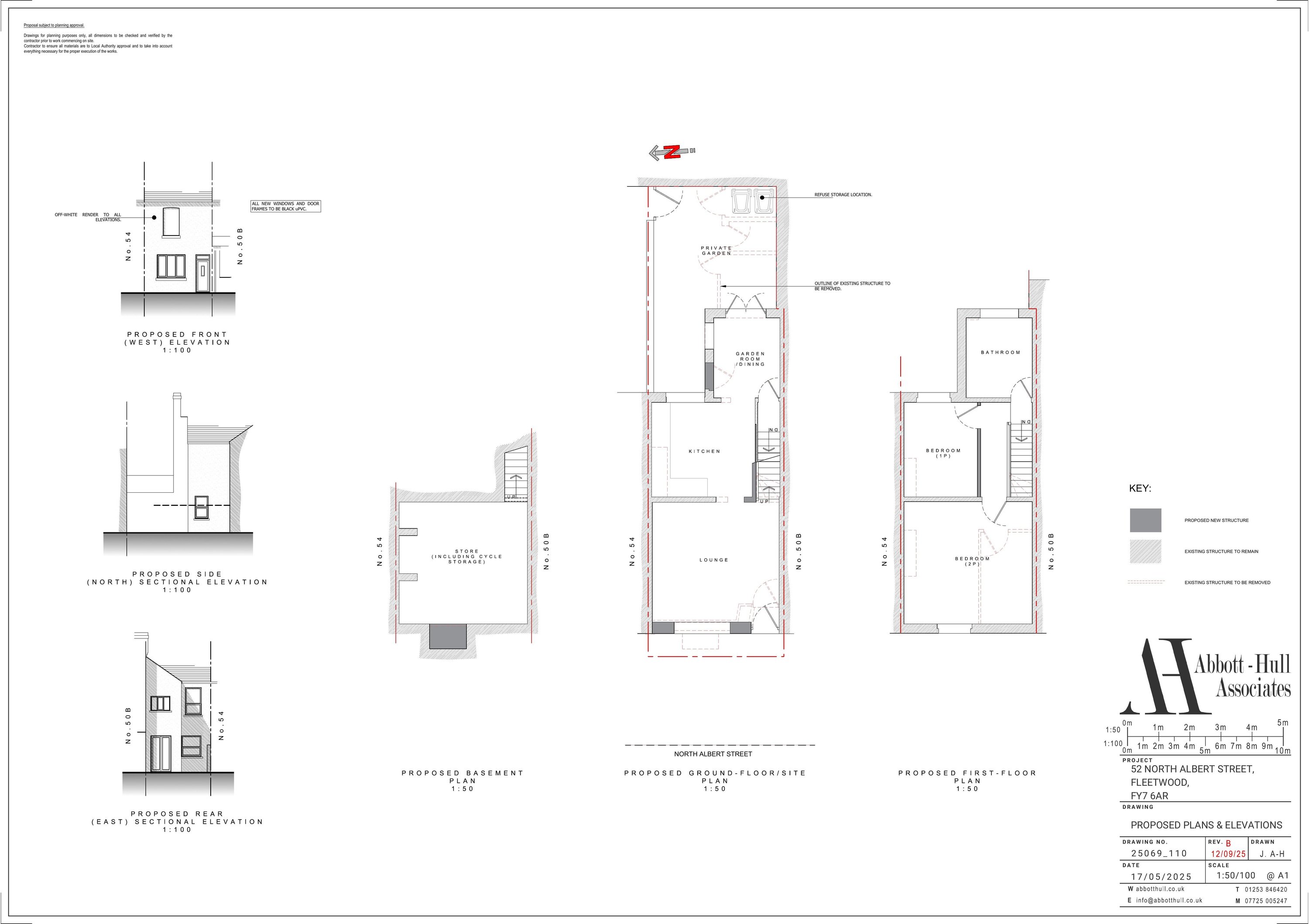
Change of use from Class E commercial premises to one self-contained dwellinghouse (Class C3).

Full Proposal

Change of use of existing commercial, business and service premises (Class E) to a self contained dwellinghouse (Class C3)

Documents

* wyre drainage consultee
Consultee Response
Not archived · Council Link
Decision notice
Decision Notice
Not archived · Council Link
Delegated report
Delegated Report
Not archived · Council Link
Existing plans and elevations
Plans
Not archived · Council Link
Heritage statement
Application Documentation
Not archived · Council Link
Mr jonathan faill environmental protection
Consultee Response
Not archived · Council Link
Mr jonathan faill environmental protection
Consultee Response
Not archived · Council Link
Ms lynne nelson
Consultee Response
Not archived · Council Link
Noise assessment
Application Documentation
Not archived · Council Link
Planning statement
Application Documentation
Not archived · Council Link
Superseded Plans
Archived · Council Link
Approved Plans
Archived · Council Link
Approved Plans
Archived · Council Link

Take Action

Make your voice heard. Authorities need to hear from people who support new homes.

✉️ Write Email in Support View on Council Portal