← Back to Wyre Council

Status

Prior Approval Not Required
Received
08 Oct 2025
New dwellings
n/a

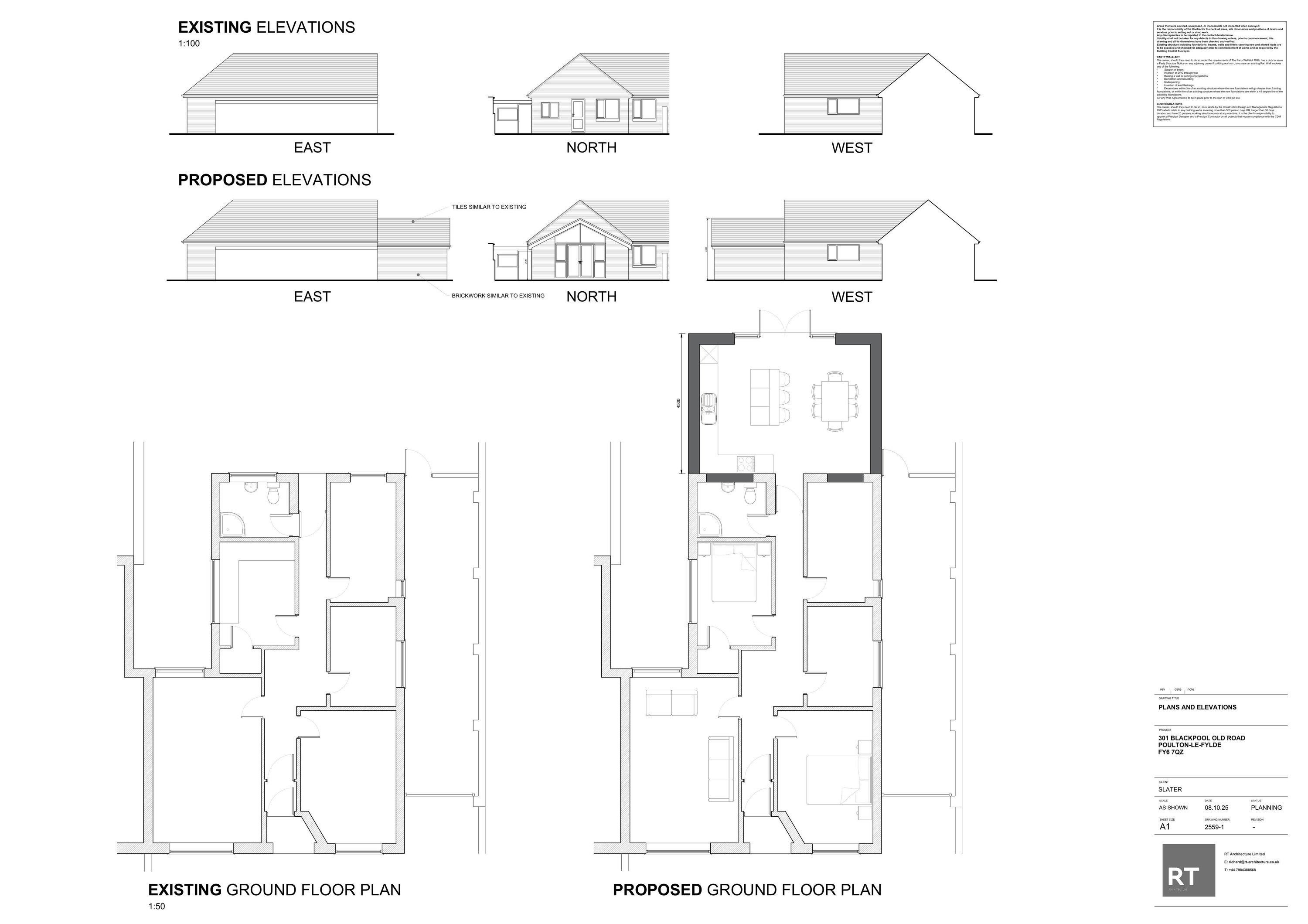
Full Proposal

Single storey rear extension - The extension will extend beyond the rear wall of the original dwellinghouse by 4.5 metres. The maximum height of the enlarged part of the dwellinghouse will be 4.0 metres. The height of the eaves of the enlarged part of the dwellinghouse will be 2.42 metres.

Documents

Decision notice
Decision Notice
Not archived · Council Link
Site Location Plan
Archived · Council Link

Take Action

Make your voice heard. Authorities need to hear from people who support new homes.

✉️ Write Email in Support View on Council Portal