← Back to Wyre Council

Status

Application Permitted
Received
27 Nov 2025
New dwellings
n/a

Full Proposal

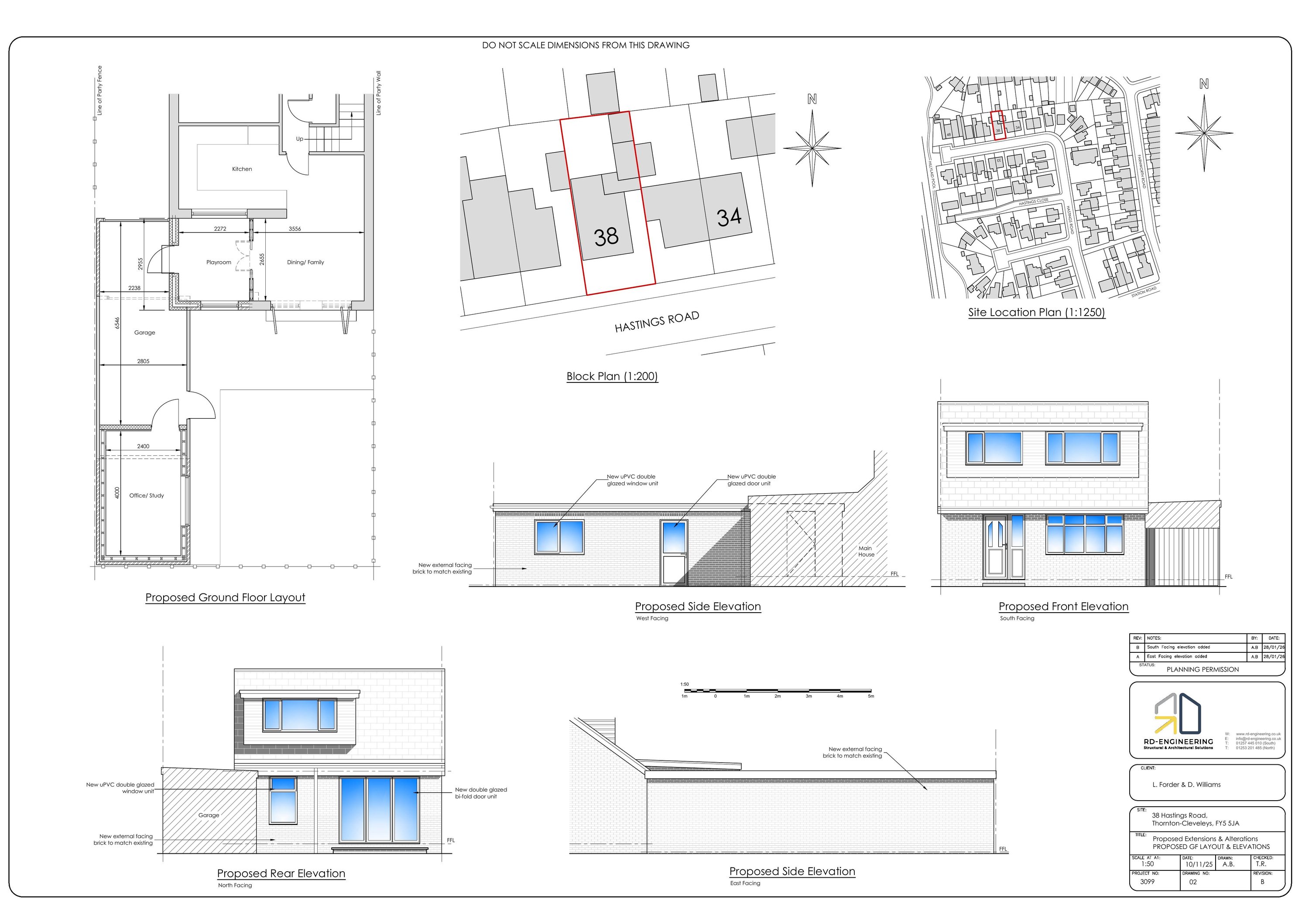
Front extension to garage, rear extension to garage to form work from home office space, and side extension to existing orangery.

Documents

* wyre drainage consultee
Consultee Response
Not archived · Council Link
Decision notice
Decision Notice
Not archived · Council Link
Delegated report
Delegated Report
Not archived · Council Link
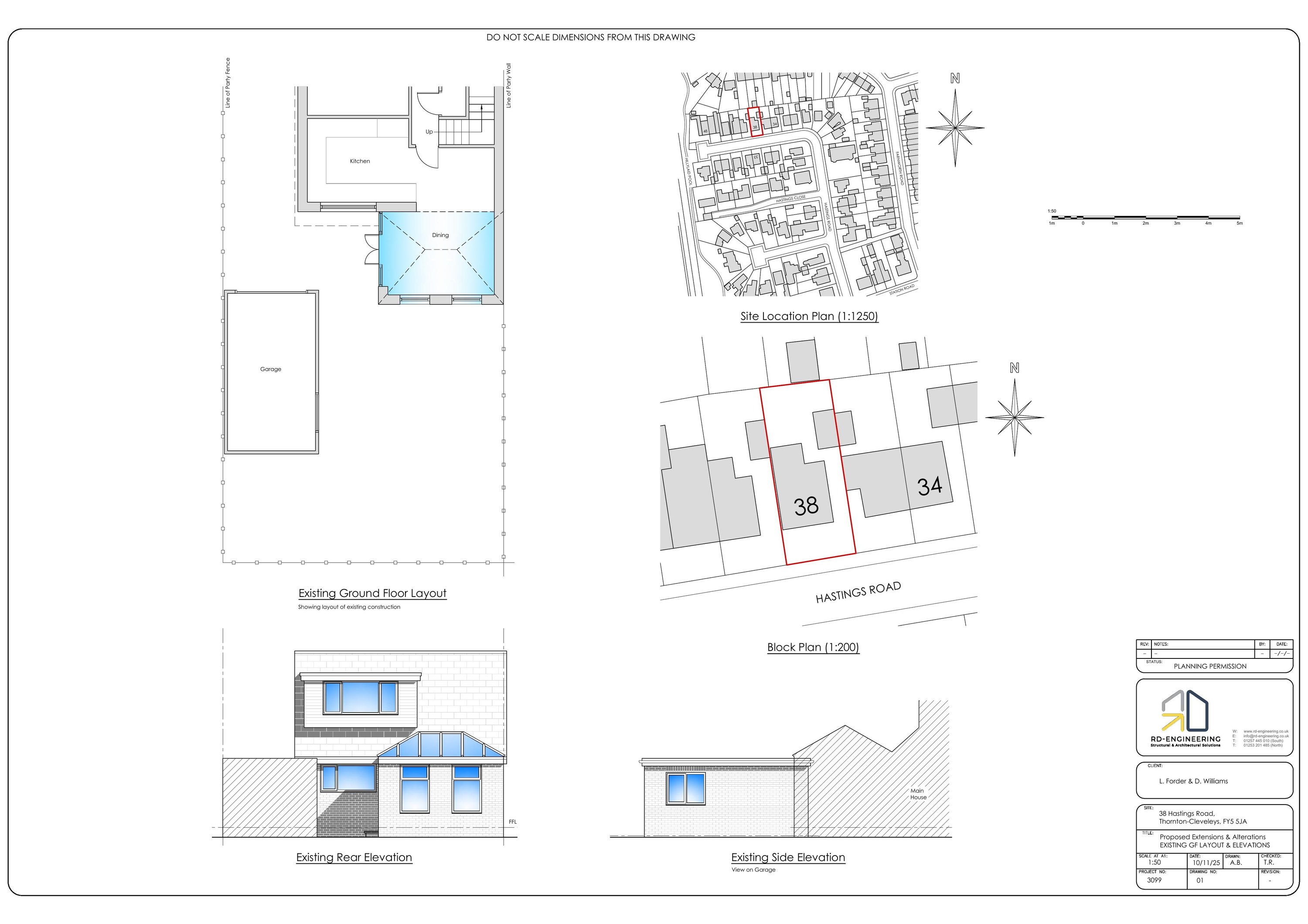
Existing plans and elevations
Approved Plans
Not archived · Council Link
Approved Plans
Archived · Council Link
Revised flood risk assessment
Flood Risk Assessment
Not archived · Council Link

Take Action

Make your voice heard. Authorities need to hear from people who support new homes.

✉️ Write Email in Support View on Council Portal