← Back to Wyre Council

Status

Pending Consideration
Received
27 days ago
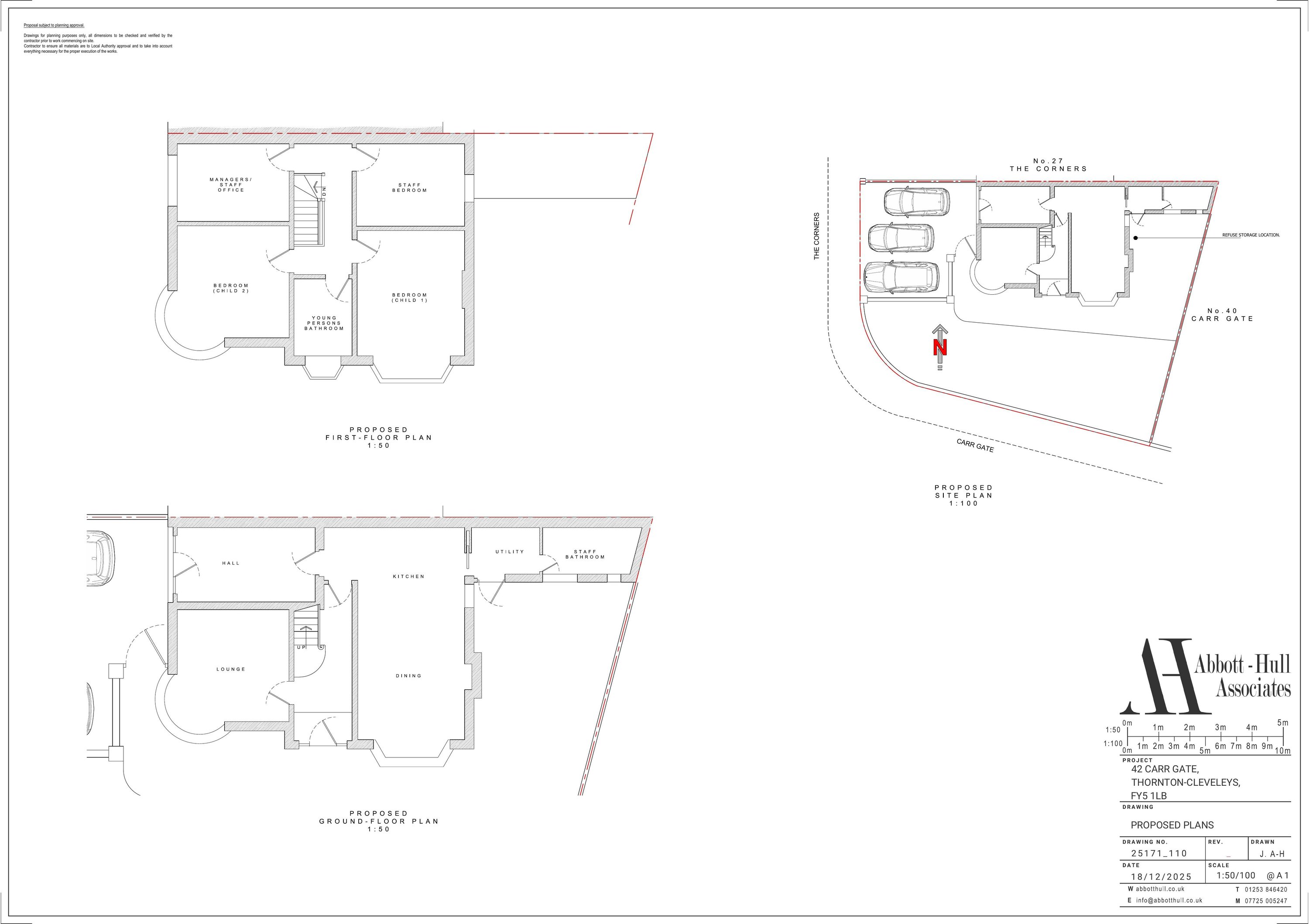
New dwellings
n/a

Full Proposal

Change of use of dwellinghouse (Class C3) to a home for two young persons (no older than 18 years of age) (Class C2)

Documents

* wyre drainage consultee
Consultee Response
Not archived · Council Link
Application form
Application Form
Not archived · Council Link
Site Location Plan
Archived · Council Link
Flood risk assessment
Flood Risk Assessment
Not archived · Council Link
Planning statement including climate change and sustainability
Application Documentation
Not archived · Council Link
Site Location Plan
Archived · Council Link
Site Location Plan
Archived · Council Link
Supporting statement
Application Documentation
Not archived · Council Link

Take Action

Make your voice heard. Authorities need to hear from people who support new homes.

✉️ Write Email in Support View on Council Portal