← Back to Wyre Forest District Council

Status

Pending consideration
Received
10 Sep 2025
New dwellings
n/a

Summary

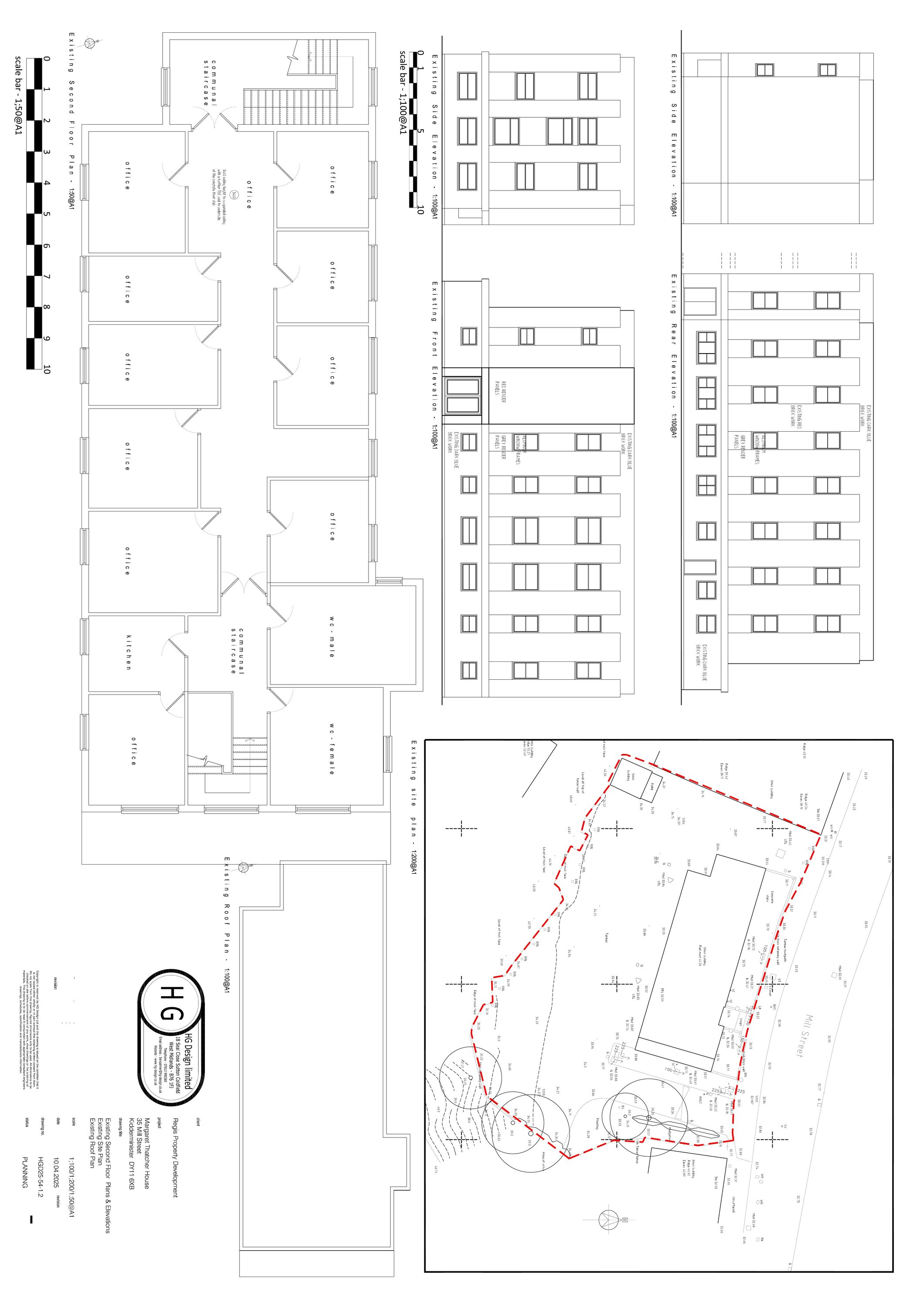
Office building converted to 10 apartments

Full Proposal

Change of use of building from offices (Use Class E) to 10No. apartments and associated works

Documents

07.10.2025-DA -MT HOUSE
Supporting Document
Not archived · Council Link
09.09.2025-DA -MT HOUSE
Supporting Document
Not archived · Council Link
1.1 EXISTING GROUND AND FIRST FLOOR PLANS, LOCATION AND BLOCK PLAN
Plans
Not archived · Council Link
100914[00]_MILL_STREET_KIDDERMINSTER_NOISE_ASSESSMENT_FINAL
Supporting Document
Not archived · Council Link
1809.1 BIA BASELINE HABITAT MAP
Plans
Not archived · Council Link
1809.2 L&EES MARGERET THATCHER HOUSE
Plans
Not archived · Council Link
5.1C PROPOSED GROUND AND FIRST FLOOR PLANS AND ELEVATIONS
Plans
Not archived · Council Link
5.2B PROPOSED SECOND FLOOR AND ROOF PLANS AND ELEVATIONS
Plans
Not archived · Council Link
5.4B SECTIONS
Plans
Not archived · Council Link
ACCOMMODATION SCHEDULE
Supporting Document
Not archived · Council Link
FLOOD RISK ASSESSMENT JULY 2025
Supporting Document
Not archived · Council Link
HIA STATEMENT
Supporting Document
Not archived · Council Link
MILL STREET BNG METRIC SET UP UPDATED
Supporting Document
Not archived · Council Link
PLANNING STATEMENT
Supporting Document
Not archived · Council Link

Take Action

Make your voice heard. Authorities need to hear from people who support new homes.

✉️ Write Email in Support View on Council Portal