← Back to Wyre Forest District Council

Status

Pending consideration
Received
09 Oct 2025
New dwellings
n/a

Summary

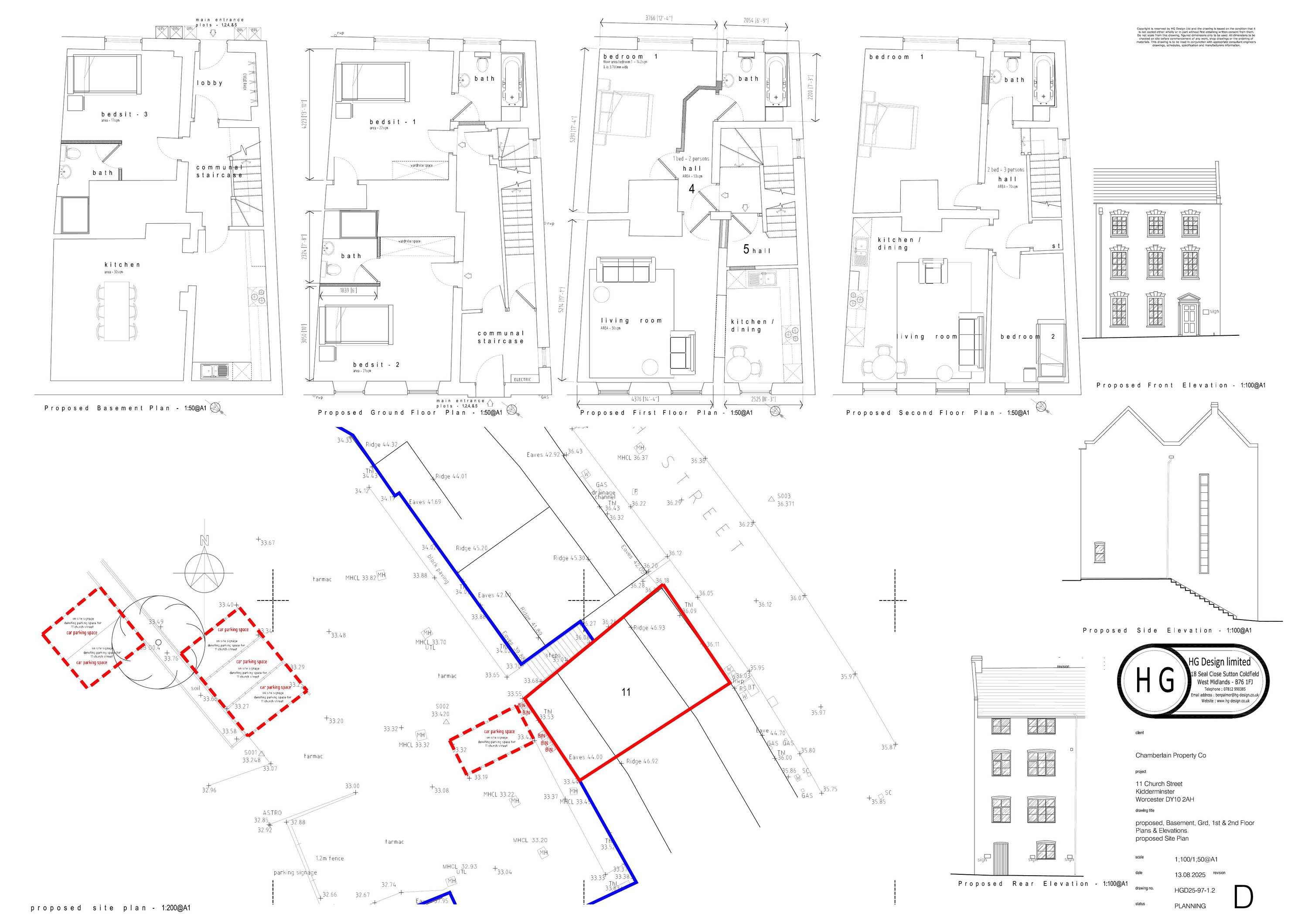
Convert office into one 3-bedroom HMO and two apartments.

Full Proposal

Change of use of building from Office (Use Class E) to 3-bedroom HMO (Use Class C4) and 2No. apartments (Use Class C3) and associated works

Documents

APPLICATIONFORMREDACTED
Application Form
Not archived · Council Link
DESIGN, ACCESS & HERITAGE STATEMENT
Supporting Document
Not archived · Council Link

Take Action

Make your voice heard. Authorities need to hear from people who support new homes.

✉️ Write Email in Support View on Council Portal