← Back to Wyre Forest District Council

Status

Pending consideration
Received
27 days ago
New dwellings
n/a

Full Proposal

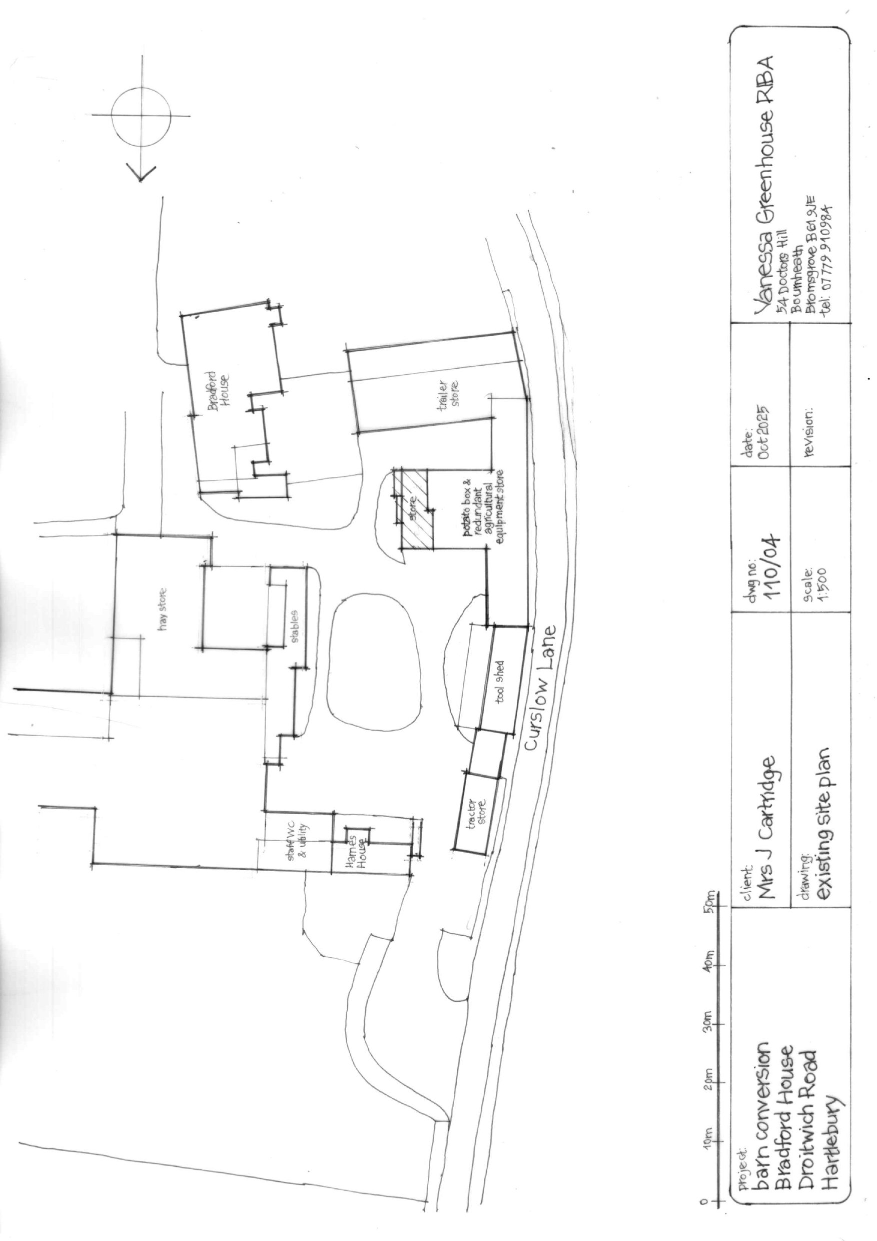
Proposed change of use of an agricultural building to 1no. dwelling and associated operational development at Bradford House

Documents

APPLICATIONFORMREDACTED
Application Form
Not archived · Council Link
EXISTING ELEVATIONS
Plans
Not archived · Council Link
Plans
Archived · Council Link
LOCATION PLAN
Plans
Not archived · Council Link
PROPOSED ELEVATIONS
Plans
Not archived · Council Link
Plans
Archived · Council Link

Take Action

Make your voice heard. Authorities need to hear from people who support new homes.

✉️ Write Email in Support View on Council Portal