← Back to Wyre Forest District Council

Status

Pending consideration
Received
22 days ago
New dwellings
n/a

Full Proposal

Reserved Matters application (with appearance, landscaping, layout and scale to be considered) for the erection of 418 dwellings and associated open space, landscaping, drainage and ancillary infrastructure, pursuant to consent 22/0226/EIA

Documents

APPLICATIONFORMREDACTED
Application Form
Not archived · Council Link
BHA_7167_01 BS5837 COMBERTON ROAD TS A1
Plans
Not archived · Council Link
BHA_7167_SCHEDULES_COMBERTON_ROAD_KIDDERMINSTER(PHASE-2)_NOV_2025
Supporting Document
Not archived · Council Link
EP005B_PLANSTAT_FINAL_290126
Supporting Document
Not archived · Council Link
EP005B_SCE_KIDDERMINSTERPH2_FINAL_290126
Supporting Document
Not archived · Council Link
P25-1422-G001-DAS_PART1
Supporting Document
Not archived · Council Link
P25-1422-G001-DAS_PART2
Supporting Document
Not archived · Council Link
P25-1422-G001-DAS_PART3
Supporting Document
Not archived · Council Link
P25-1422-G001-DAS_PART4
Supporting Document
Not archived · Council Link
P25-1422-G001-DAS_PART5
Supporting Document
Not archived · Council Link
P25-1422_201_TENURE_PLAN_REV_D
Plans
Not archived · Council Link
P25-1422_202_CHARACTER_AREA_PLAN_REV_D
Plans
Not archived · Council Link
P25-1422_204_STOREY_HEIGHTS_PLAN_REV_D
Plans
Not archived · Council Link
P25-1422_205_BOUNDARY_TREATMENTS_REV_D
Plans
Not archived · Council Link
P25-1422_206_INTERFACE_PLAN_REV_E
Plans
Not archived · Council Link
P25-1422_209_SAFEGUARDED_LAND_REV_D
Plans
Not archived · Council Link
P25-1422_210_OPEN SPACE PLAN_REV_C
Plans
Not archived · Council Link
P25-1422_DE_001_01J OVERALL PLANNING LAYOUT
Plans
Not archived · Council Link
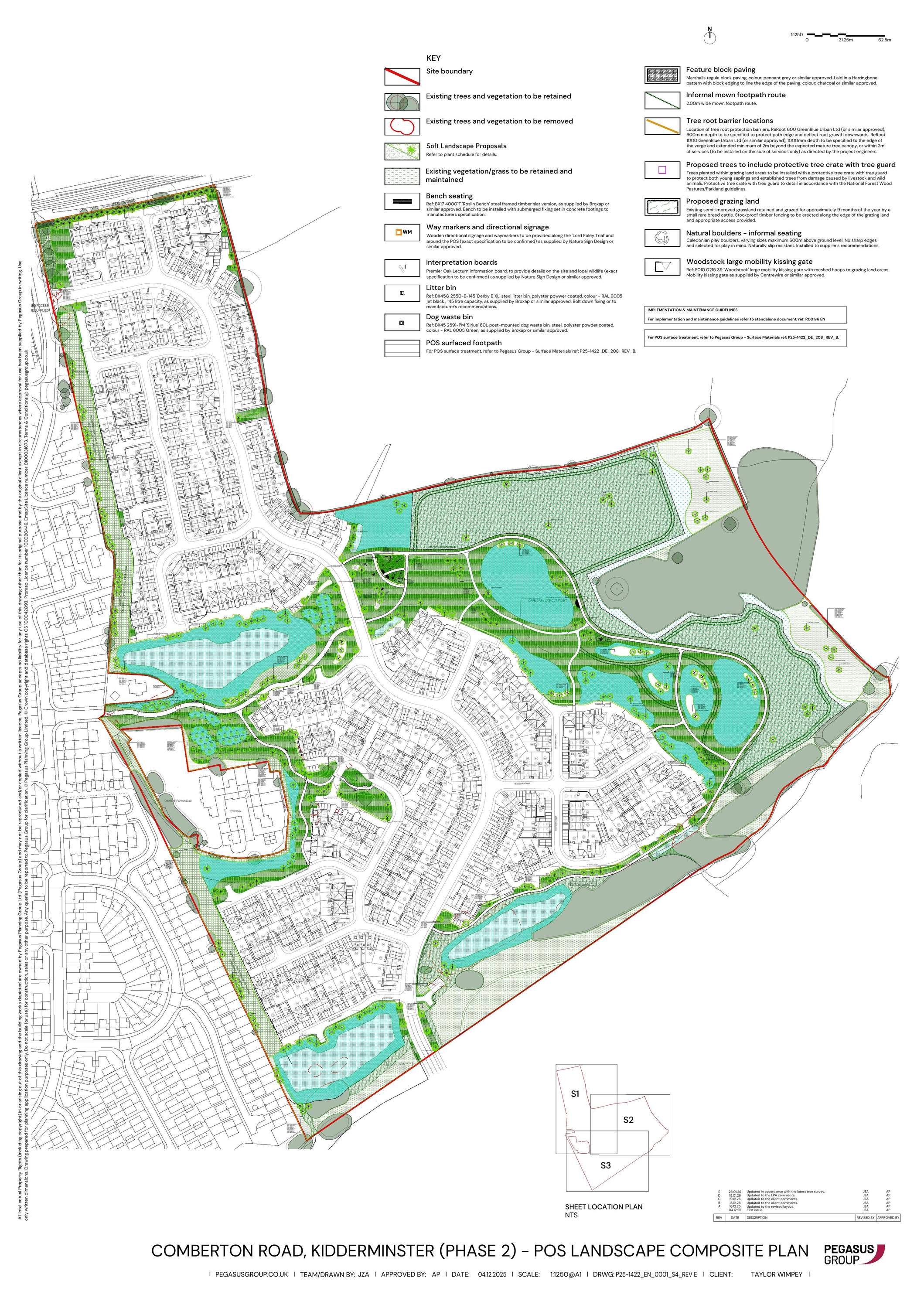
P25-1422_EN_0001_S1_REV E - PHASE 2 DETAILED POS SOFT LANDSCAPE PROPOSALS
Plans
Not archived · Council Link
P25-1422_EN_0001_S2_REV E - PHASE 2 DETAILED POS SOFT LANDSCAPE PROPOSALS
Plans
Not archived · Council Link
P25-1422_EN_0001_S3_REV E - PHASE 2 DETAILED POS SOFT LANDSCAPE PROPOSALS
Plans
Not archived · Council Link
P25-1422_EN_0001_S5_REV B - PHASE 2 DETAILED PLAY AREAS PROPOSAL
Plans
Not archived · Council Link
R001V6 EN IMPLEMENTATION AND MAINTENANCE GUIDELINES
Supporting Document
Not archived · Council Link
TWWM_HWK_P_ENG_101_5 - PLANNING DESIGN DRAINAGE STRATEGY - SHEET 1
Plans
Not archived · Council Link
TWWM_HWK_P_ENG_102_5 - PLANNING DESIGN DRAINAGE STRATEGY - SHEET 2
Plans
Not archived · Council Link
TWWM_HWK_P_ENG_200_3_PLANNING DESIGN S38 PLAN SHEET 1
Plans
Not archived · Council Link
TWWM_HWK_P_ENG_201_3_PLANNING DESIGN S38 PLAN SHEET 2
Plans
Not archived · Council Link
TWWM_HWK_P_ENG_202_3_PLANNING DESIGN S38 PLAN SHEET 3
Plans
Not archived · Council Link
TWWM_HWK_P_ENG_203_3_PLANNING DESIGN S38 PLAN SHEET 4
Plans
Not archived · Council Link
TWWM_HWK_P_ENG_204_3_PLANNING DESIGN S38 PLAN SHEET 5
Plans
Not archived · Council Link
TWWM_HWK_P_ENG_300_3_PLANNING DESIGN ROAD GEOMETRY AND VISPLAY PLAN SHEET 1
Plans
Not archived · Council Link
TWWM_HWK_P_ENG_301_3_PLANNING DESIGN ROAD GEOMETRY AND VISPLAY PLAN SHEET 2
Plans
Not archived · Council Link
TWWM_HWK_P_ENG_302_3_PLANNING DESIGN ROAD GEOMETRY AND VISPLAY PLAN SHEET 3
Plans
Not archived · Council Link
TWWM_HWK_P_ENG_303_3_PLANNING DESIGN ROAD GEOMETRY AND VISPLAY PLAN SHEET 4
Plans
Not archived · Council Link
TWWM_HWK_P_ENG_304_3_PLANNING DESIGN ROAD GEOMETRY AND VISPLAY PLAN SHEET 5
Plans
Not archived · Council Link
TWWM_HWK_P_ENG_400_4_PLANNING DESIGN REFUSE VEHICLE TRACKING PLAN SHEET 1
Plans
Not archived · Council Link
TWWM_HWK_P_ENG_401_4_PLANNING DESIGN REFUSE VEHICLE TRACKING PLAN SHEET 2
Plans
Not archived · Council Link
TWWM_HWK_P_ENG_402_4_PLANNING DESIGN REFUSE VEHICLE TRACKING PLAN SHEET 3
Plans
Not archived · Council Link
TWWM_HWK_P_ENG_403_4_PLANNING DESIGN REFUSE VEHICLE TRACKING PLAN SHEET 4
Plans
Not archived · Council Link
TWWM_HWK_P_ENG_404_4_PLANNING DESIGN REFUSE VEHICLE TRACKING PLAN SHEET 5
Plans
Not archived · Council Link
TWWM_HWK_P_ENG_500_3_PLANNING DESIGN FIRE TENDER VEHICLE PLAN SHEET 1
Plans
Not archived · Council Link
TWWM_HWK_P_ENG_501_3_PLANNING DESIGN FIRE TENDER VEHICLE PLAN SHEET 2
Plans
Not archived · Council Link
TWWM_HWK_P_ENG_502_3_PLANNING DESIGN FIRE TENDER VEHICLE PLAN SHEET 3
Plans
Not archived · Council Link
TWWM_HWK_P_ENG_503_3_PLANNING DESIGN FIRE TENDER VEHICLE PLAN SHEET 4
Plans
Not archived · Council Link
TWWM_HWK_P_ENG_504_3_PLANNING DESIGN FIRE TENDER VEHICLE PLAN SHEET 5
Plans
Not archived · Council Link
TWWM_HWK_P_ENG_600_3_PLANNING DESIGN PRIVATE VEHICLE PLAN SHEET 1
Plans
Not archived · Council Link
TWWM_HWK_P_ENG_601_3_PLANNING DESIGN PRIVATE VEHICLE PLAN SHEET 2
Plans
Not archived · Council Link
TWWM_HWK_P_ENG_602_3_PLANNING DESIGN PRIVATE VEHICLE PLAN SHEET 3
Plans
Not archived · Council Link
TWWM_HWK_P_ENG_603_3_PLANNING DESIGN PRIVATE VEHICLE PLAN SHEET 4
Plans
Not archived · Council Link
TWWM_HWK_P_ENG_604_3_PLANNING DESIGN PRIVATE VEHICLE PLAN SHEET 5
Plans
Not archived · Council Link
TWWM_HWK_P_ENG_700_4_PLANNING DESIGN FFL PLAN - SHEET 1
Plans
Not archived · Council Link
TWWM_HWK_P_ENG_701_4_PLANNING DESIGN FFL PLAN - SHEET 2
Plans
Not archived · Council Link
TWWM_HWK_P_ENG_702_4_PLANNING DESIGN FFL PLAN - SHEET 3
Plans
Not archived · Council Link
TWWM_HWK_P_ENG_703_4_PLANNING DESIGN FFL PLAN - SHEET 4
Plans
Not archived · Council Link
TWWM_HWK_P_ENG_704_4_PLANNING DESIGN FFL PLAN - SHEET 5
Plans
Not archived · Council Link

Take Action

Make your voice heard. Authorities need to hear from people who support new homes.

✉️ Write Email in Support View on Council Portal