← Back to City of York Council

Status

Awaiting decision
Received
n/a
New dwellings
n/a

Summary

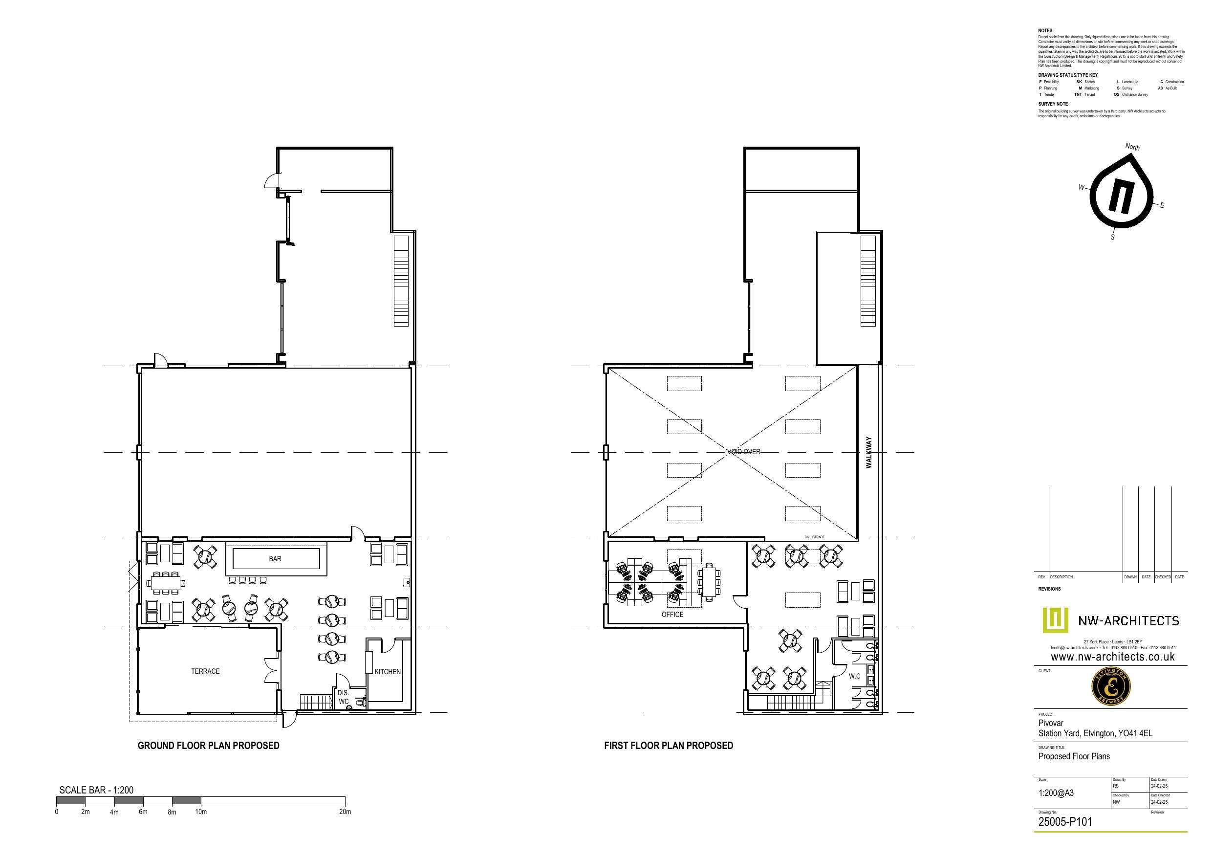
Two-storey building for brewery storage (B8), shop (E) and tap room (sui generis) with parking.

Full Proposal

Two storey detached building to the side of the existing brewhouse to form new storage area (Use Class B8), brewery shop (Use Class E) and tap room (Sui Generis) with associated refuse store, boundary treatment and parking

Documents

Application Form
Application Form
Not archived · Council Link
DAVID S
Objection Comment
Not archived · Council Link
DESIGN AND ACCESS STATEMENT
Design & Access Statement
Not archived · Council Link
DRAINAGE SCHEMATIC LAYOUT
Drainage Documentation
Not archived · Council Link
ECOLOGY
Internal Responses
Not archived · Council Link
ELVINGTON PARISH COUNCIL
Consultee Reponses
Not archived · Council Link
EXISTING ELEVATIONS
Drawing
Not archived · Council Link
EXISTING FLOOR PLANS
Drawing
Not archived · Council Link
Drawing
Archived · Council Link
FLOOD RISK ASSESSMENT
Flood Risk Assessment
Not archived · Council Link
FLOOD RISK MANAGEMENT TEAM
Internal Responses
Not archived · Council Link
FLOOD RISK MANAGEMENT TEAM
Internal Responses
Not archived · Council Link
HIGHWAYS DC
Internal Responses
Not archived · Council Link
HIGHWAYS DC
Internal Responses
Not archived · Council Link
LEAD LOCAL FLOOD AUTHORITY
Internal Responses
Not archived · Council Link
LOCATION PLAN
Location Plan
Not archived · Council Link
OUSE & DERWENT INTERNAL DRAINAGE BOARD
General Comment
Not archived · Council Link
PROPOSED ELEVATIONS
Drawing
Not archived · Council Link
Drawing
Archived · Council Link
PROPOSED ROOF PLAN
Drawing
Not archived · Council Link
Revised Drawing
Archived · Council Link
Superseded Drawing
Archived · Council Link
PUBLIC PROTECTION
Internal Responses
Not archived · Council Link
PUBLIC PROTECTION
Internal Responses
Not archived · Council Link
REVISED DRAINAGE REPORT
Drainage Documentation
Not archived · Council Link
SITE INVESTIGATION PART 1
Land Contamination Assessment
Not archived · Council Link
SITE INVESTIGATION PART 2
Land Contamination Assessment
Not archived · Council Link
SITE INVESTIGATION PART 3
Land Contamination Assessment
Not archived · Council Link
SKETCH VISUAL PROPOSED
Drawing
Not archived · Council Link
SKETCH VISUAL PROPOSED 2
Drawing
Not archived · Council Link
TRACY CHAPMAN
Objection Comment
Not archived · Council Link

Take Action

Make your voice heard. Authorities need to hear from people who support new homes.

✉️ Write Email in Support View on Council Portal