← Back to City of York Council

Status

Decided
Received
11 Jun 2025
New dwellings
n/a

Summary

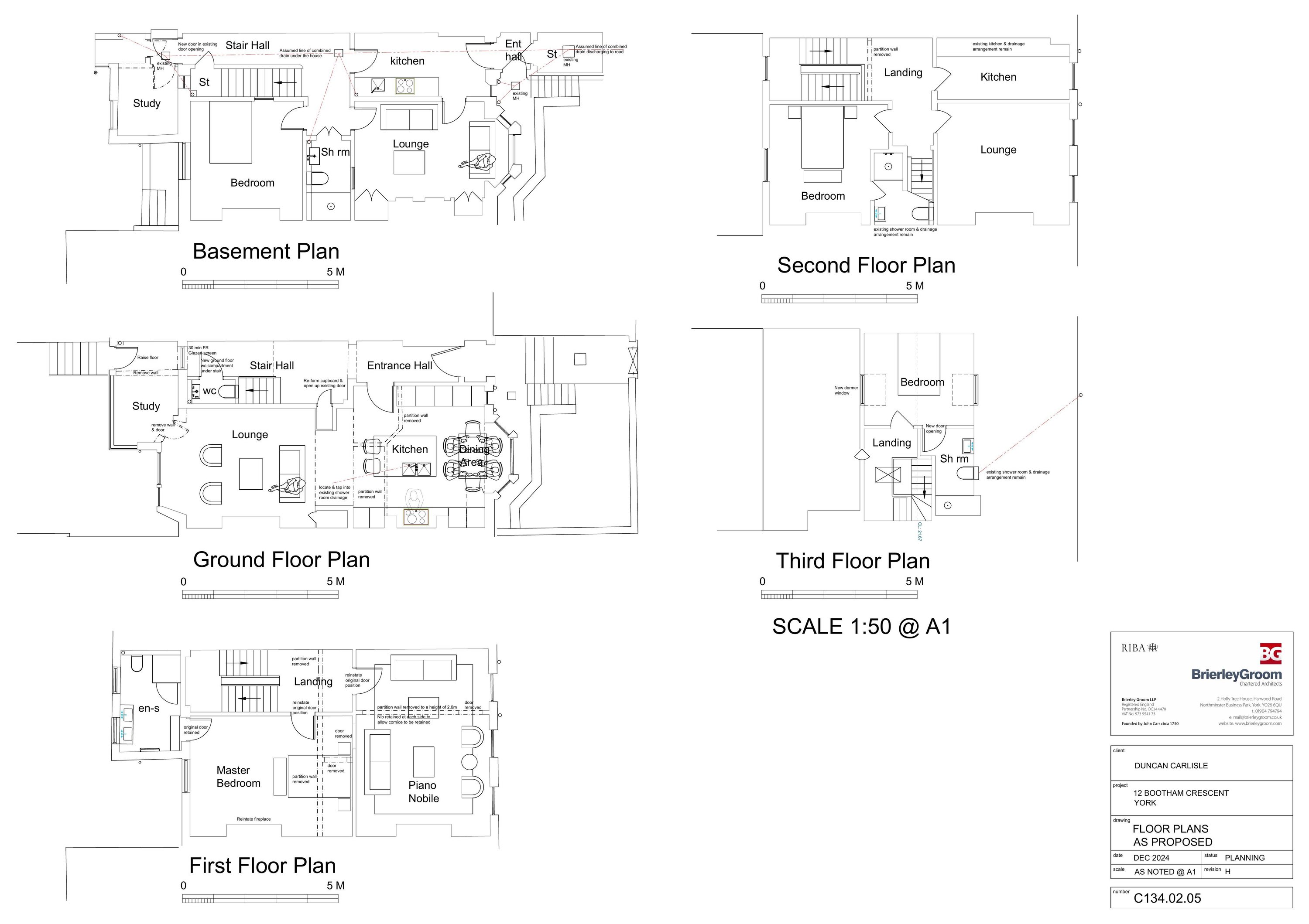
Listed building alterations converting four flats into one flat and one dwelling; rear dormer and alterations.

Full Proposal

Internal and external alterations to include conversion of the existing building from 4no. flats to 1no. flat and 1no. dwelling, domer to rear, alterations to two storey rear extension and bay window, and removal of partition walls

Documents

AOD/25/00244
Decision
Not archived · Council Link
Drawing
Archived · Council Link
Decision
Decision
Not archived · Council Link
DESIGN & HERITAGE ASSESSMENT
Design & Access Statement
Not archived · Council Link
DEVELOPMENT MANAGEMENT OFFICER REPORT
Report
Not archived · Council Link
EXISTING ELEVATIONS
Revised Drawing
Not archived · Council Link
EXISTING ELEVATIONS
Superseded Drawing
Not archived · Council Link
EXISTING FLOOR PLANS
Superseded Drawing
Not archived · Council Link
EXISTING FLOOR PLANS
Revised Drawing
Not archived · Council Link
FLOOD RISK ADDENDUM
Flood Risk Assessment
Not archived · Council Link
FLOOD RISK ASSESSMENT
Flood Risk Assessment
Not archived · Council Link
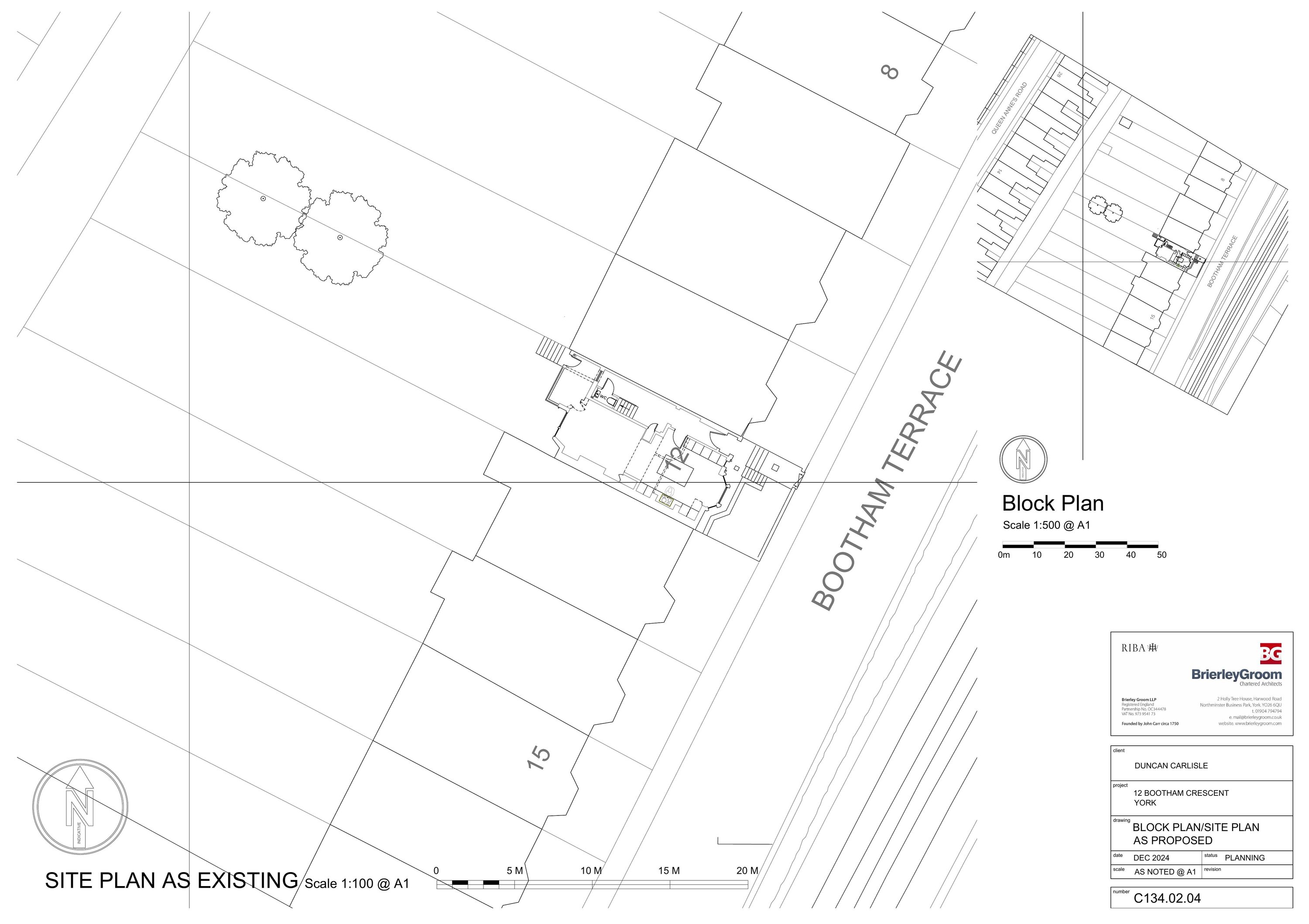
LOCATION PLAN
Location Plan
Not archived · Council Link
LOCATION PLAN
Location Plan
Not archived · Council Link
PROPOSED ELEVATIONS
Revised Drawing
Not archived · Council Link
PROPOSED ELEVATIONS
Superseded Drawing
Not archived · Council Link
Revised Drawing
Archived · Council Link
Superseded Drawing
Archived · Council Link

Take Action

Make your voice heard. Authorities need to hear from people who support new homes.

✉️ Write Email in Support View on Council Portal