← Back to City of York Council

Status

Awaiting decision
Received
n/a
New dwellings
n/a

Full Proposal

Erection of 1no. dwelling following demolition of garage

Documents

Application Form
Application Form
Not archived · Council Link
ECOLOGY
Internal Responses
Not archived · Council Link
ECOLOGY
Internal Responses
Not archived · Council Link
ENVIRONMENT AGENCY
Consultee Reponses
Not archived · Council Link
ENVIRONMENT AGENCY
Consultee Reponses
Not archived · Council Link
EOT
Correspondence
Not archived · Council Link
EXISTING & PROPOSED SITE & LOCATION PLANS
Revised Drawing
Not archived · Council Link
EXISTING & PROPOSED SITE & LOCATION PLANS
Superseded Drawing
Not archived · Council Link
EXISTING LANDSCAPE & STREET VIEW
Drawing
Not archived · Council Link
EXTENSION OF TIME AGREEMENT
External Correspondence
Not archived · Council Link
FLOOD RISK ASSESSMENT
Superseded Report
Not archived · Council Link
FLOOD RISK ASSESSMENT
Superseded Report
Not archived · Council Link
FLOOD RISK ASSESSMENT
Flood Risk Assessment
Not archived · Council Link
FLOOD RISK MANAGEMENT TEAM
Internal Responses
Not archived · Council Link
GARDEN BICYCLE STORAGE SHED DATASHEET
Report
Not archived · Council Link
HIGHWAYS
Internal Responses
Not archived · Council Link
HIGHWAYS
Internal Responses
Not archived · Council Link
HOUSING STANDARDS
Internal Responses
Not archived · Council Link
LEAD LOCAL FLOOD AUTHORITY
Internal Responses
Not archived · Council Link
LEAD LOCAL FLOOD AUTHORITY
Internal Responses
Not archived · Council Link
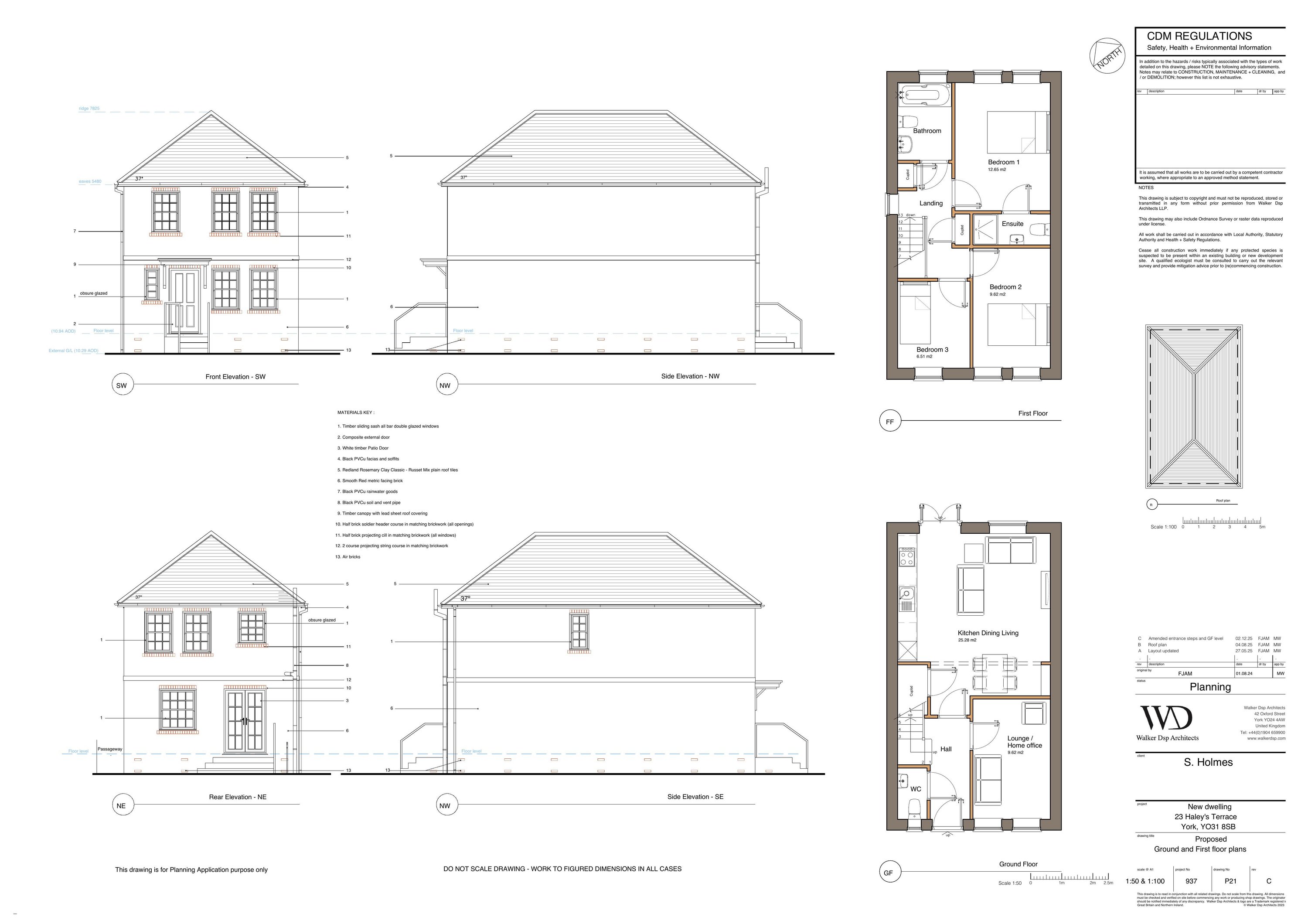
PROPOSED GROUND AND FIRST FLOOR PLANS
Revised Drawing
Not archived · Council Link
PROPOSED LANDSCAPE & STREET VIEW
Superseded Drawing
Not archived · Council Link
PROPOSED LANDSCAPE & STREET VIEW
Superseded Drawing
Not archived · Council Link
PROPOSED LANDSCAPE & STREET VIEW
Revised Drawing
Not archived · Council Link
PROPOSED LANDSCAPE AND STREET VIEW
Superseded Drawing
Not archived · Council Link
Superseded Drawing
Archived · Council Link
Superseded Drawing
Archived · Council Link
PUBLIC PROTECTION
Internal Responses
Not archived · Council Link
PUBLIC PROTECTION
Internal Responses
Not archived · Council Link
PUBLIC PROTECTION
Internal Responses
Not archived · Council Link
SCREENING ASSESSMENT
Land Contamination Assessment
Not archived · Council Link
SEQUENTIAL & EXCEPTION TEST
Report
Not archived · Council Link
STATUTORY BIODIVERSITY METRIC CALCULATION TOO
Report
Not archived · Council Link

Take Action

Make your voice heard. Authorities need to hear from people who support new homes.

✉️ Write Email in Support View on Council Portal