← Back to City of York Council
25/01898/LHE
City of York Council · IDOX
Status
Unknown
Received
n/a
New dwellings
n/a
Full Proposal
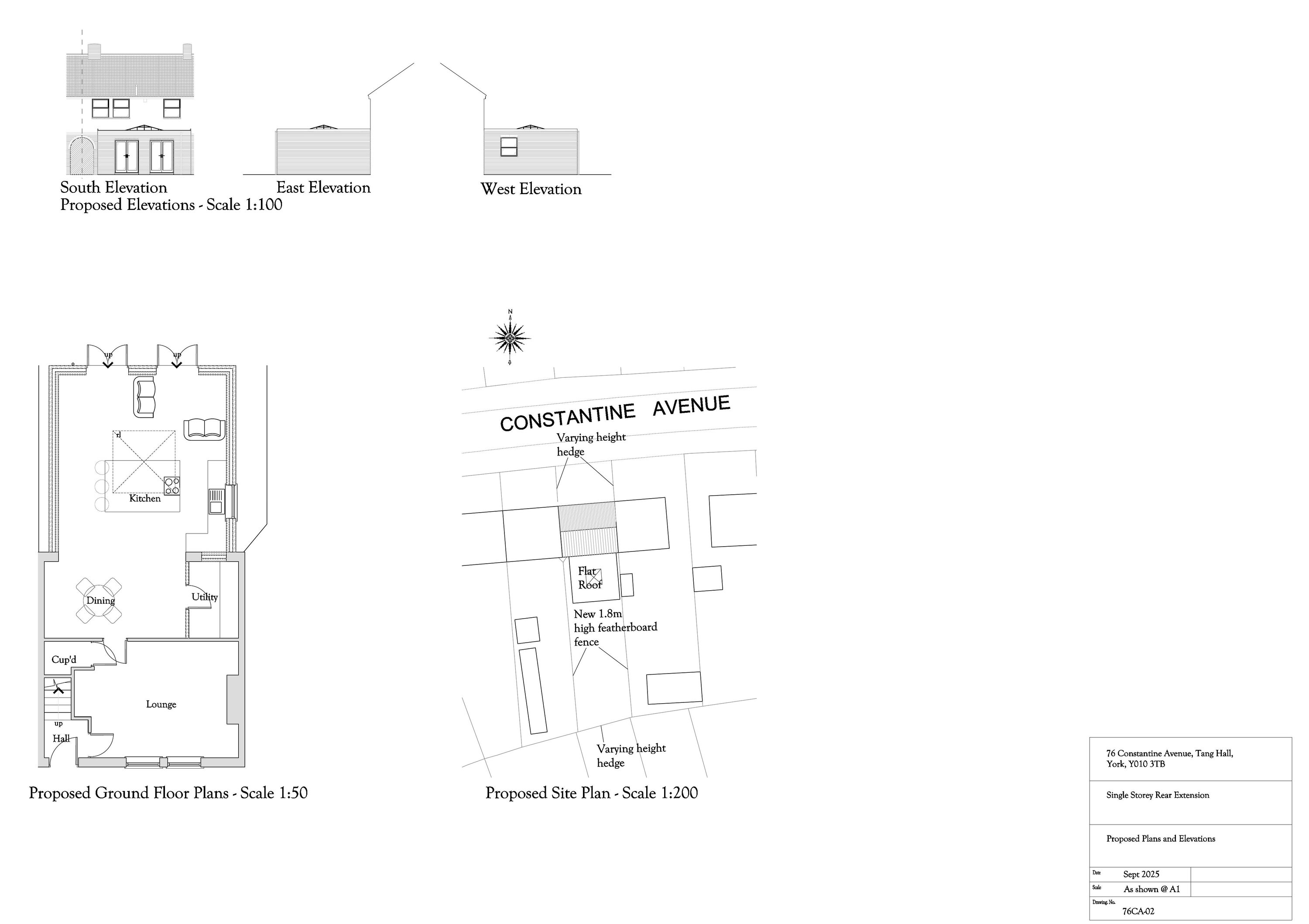
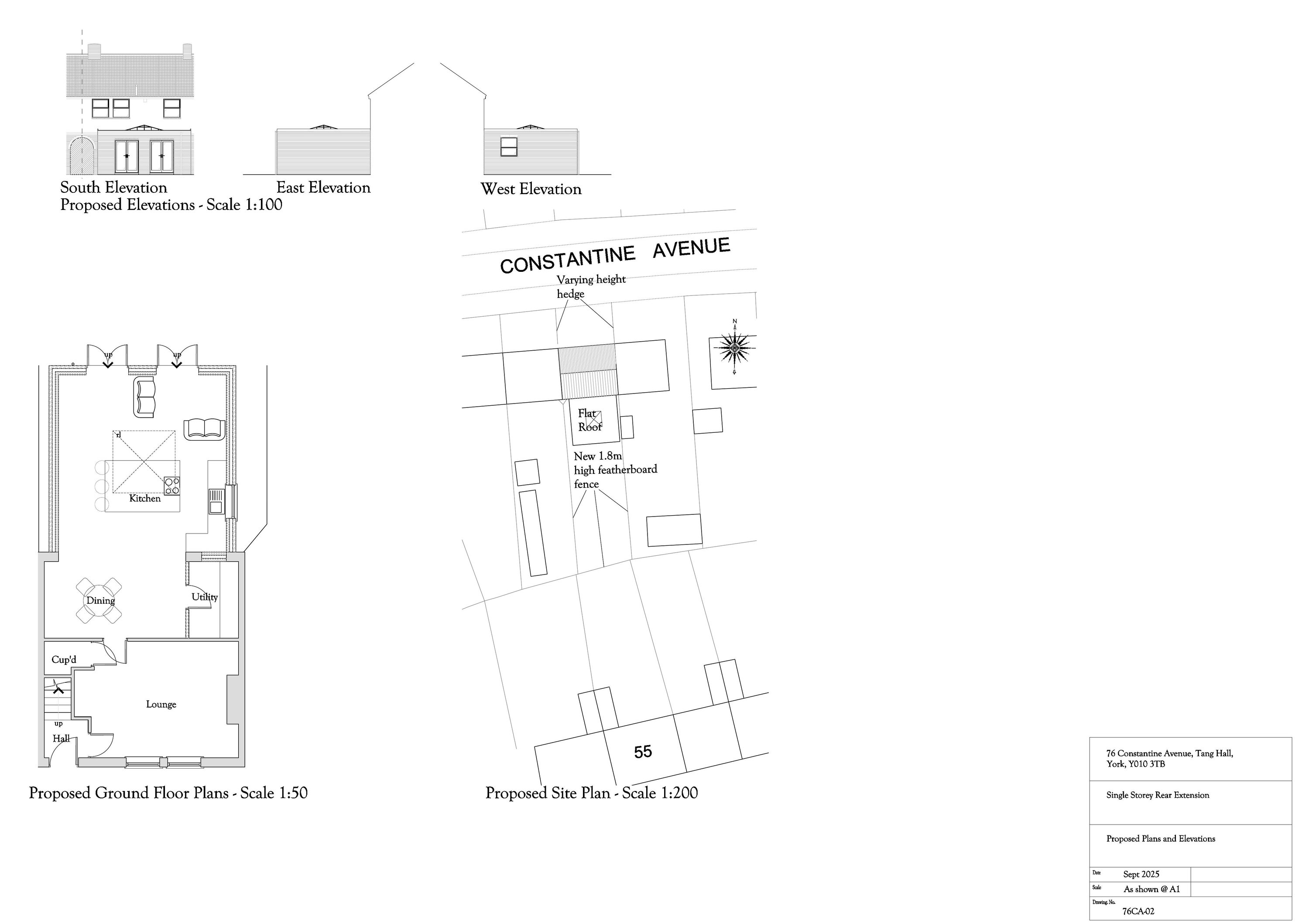
Erection of single storey extension extending 6.00 metres beyond the rear wall of the original house, with a height to the eaves of 3.0 metres and a total height of 3.0 metres
Documents
Take Action
Make your voice heard. Authorities need to hear from people who support new homes.