← Back to City of York Council

Status

Awaiting decision
Received
n/a
New dwellings
n/a

Full Proposal

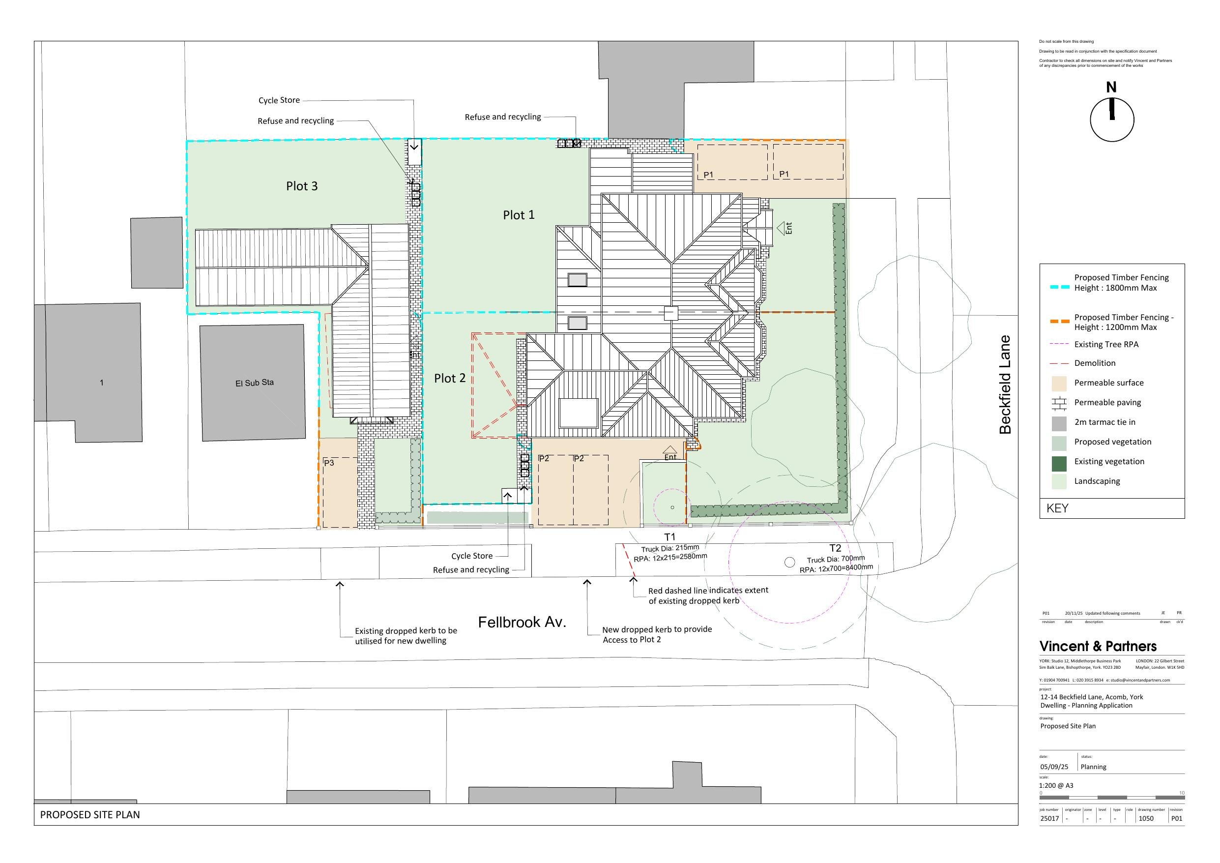
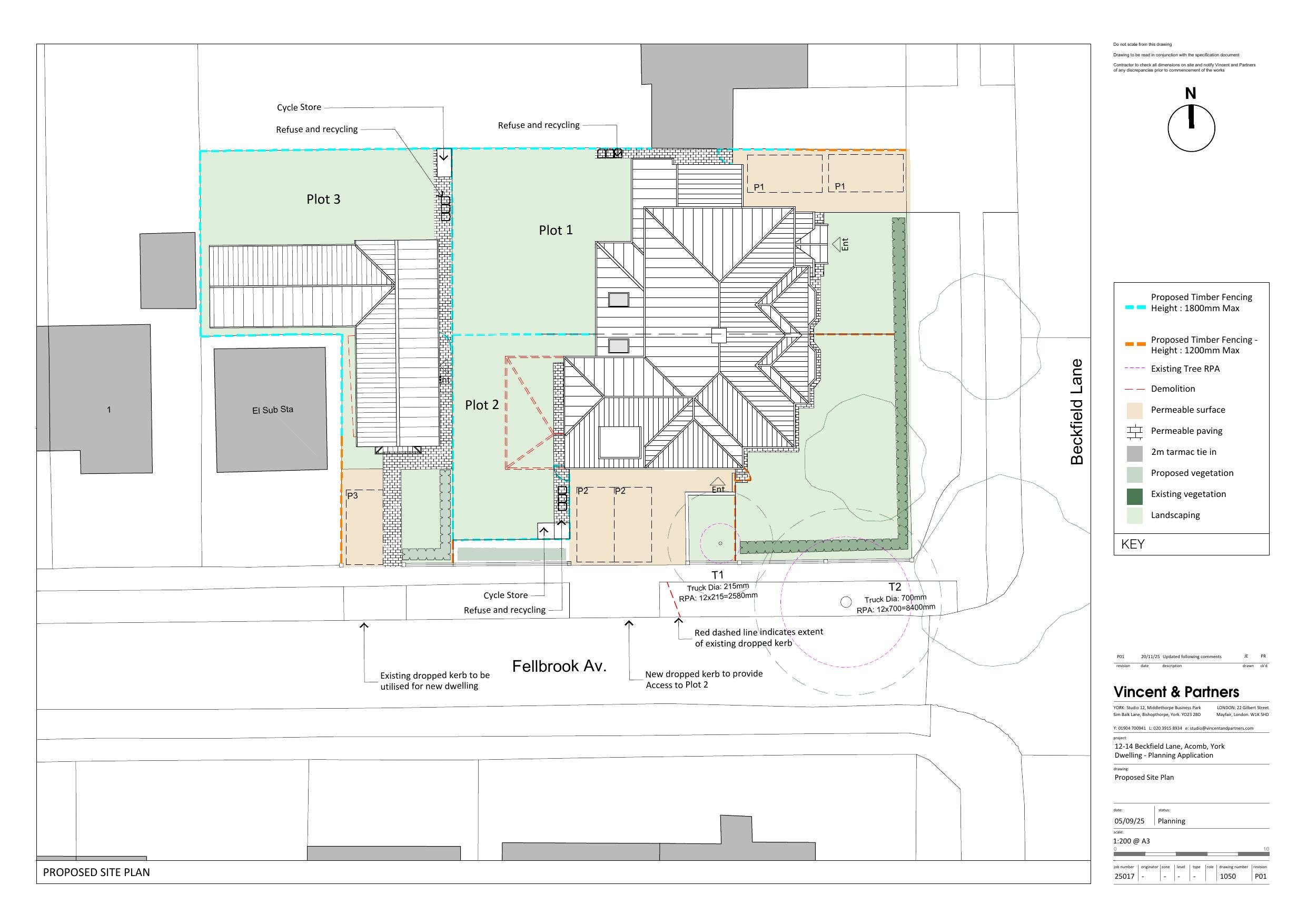
Erection of 1no. dwelling to rear and subdivision of existing dwelling to create 2no. dwellings following removal of existing rear projection and porch with associated access and parking

Documents

AINSTY (2008) INTERNAL DRAINAGE BOARD
Consultee Reponses
Not archived · Council Link
Application Form
Application Form
Not archived · Council Link
BIODIVERSITY EXEMPTION
Report
Not archived · Council Link
DESIGN AND ACCESS STATEMENT
Design & Access Statement
Not archived · Council Link
DRAINAGE CALCULATION
Drainage Documentation
Not archived · Council Link
DRAINAGE STRATEGY
Drainage Documentation
Not archived · Council Link
EXISTING FIRST FLOOR PLAN
Drawing
Not archived · Council Link
EXISTING FRONT AND SIDE ELEVATION
Drawing
Not archived · Council Link
EXISTING GROUND FLOOR PLAN
Drawing
Not archived · Council Link
EXISTING REAR AND SIDE ELEVATION
Drawing
Not archived · Council Link
Revised Drawing
Archived · Council Link
Revised Drawing
Archived · Council Link
Superseded Drawing
Archived · Council Link
FLOOD RISK ASSESSMENT
Flood Risk Assessment
Not archived · Council Link
FLOOD RISK ENGINEER
Internal Responses
Not archived · Council Link
LANDSCAPE ARCHITECT
Internal Responses
Not archived · Council Link
LANDSCAPE ARCHITECT
Internal Responses
Not archived · Council Link
LANDSCAPE ARCHITECT
Internal Responses
Not archived · Council Link
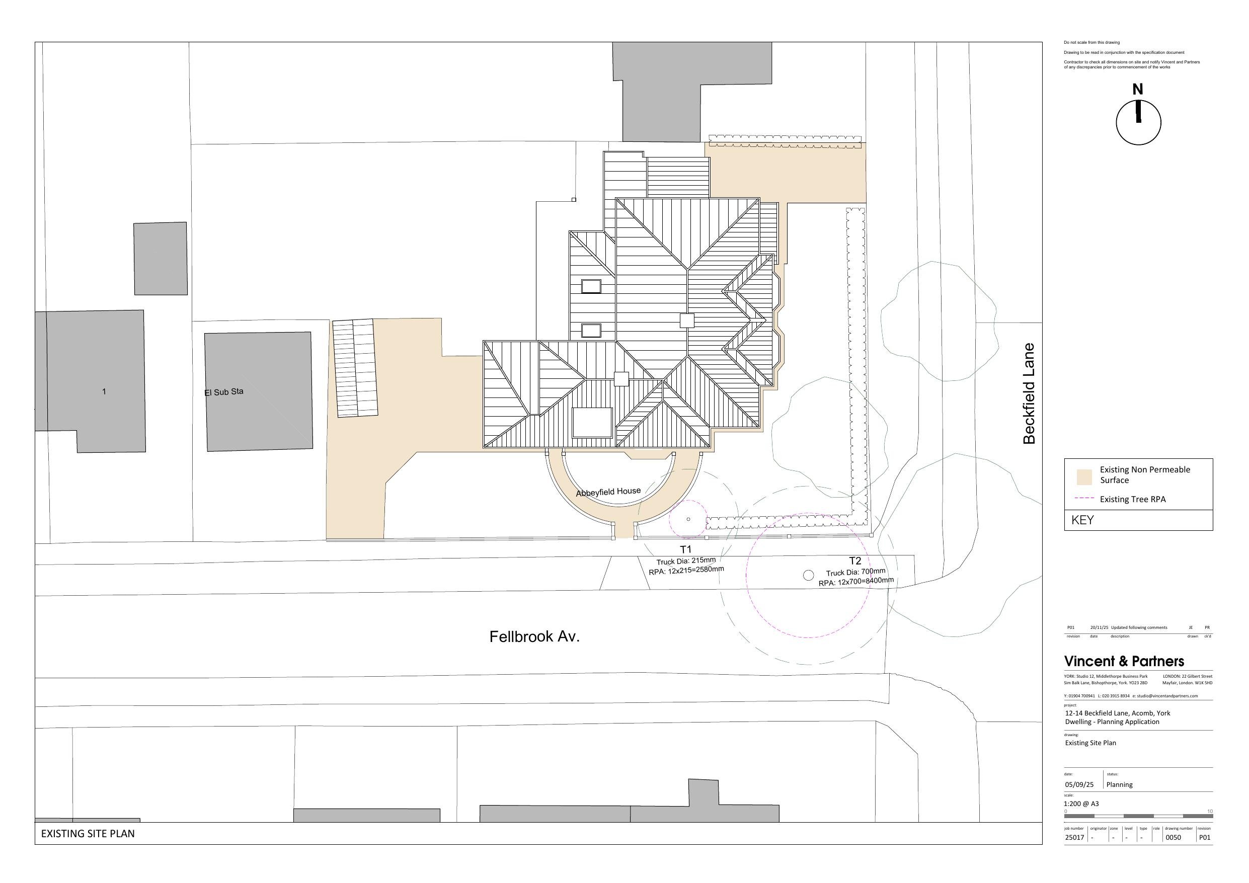
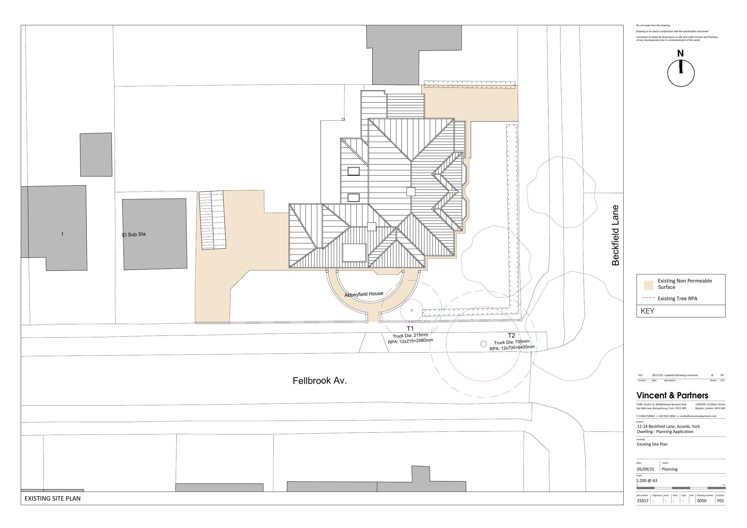
LOCATION PLAN
Location Plan
Not archived · Council Link
MR JON SMALLEY
Objection Comment
Not archived · Council Link
MRS JANE ALBON
Objection Comment
Not archived · Council Link
NATIONAL GRID
Consultee Reponses
Not archived · Council Link
PERCOLATION REPORT
Drainage Documentation
Not archived · Council Link
PROPOSED CYCLE STORAGE
Superseded Drawing
Not archived · Council Link
PROPOSED CYCLE STORAGE
Revised Drawing
Not archived · Council Link
PROPOSED FIRST FLOOR PLAN
Drawing
Not archived · Council Link
PROPOSED FRONT AND SIDE ELEVATION
Drawing
Not archived · Council Link
PROPOSED FRONT AND SIDE ELEVATION - BUNGALOW
Drawing
Not archived · Council Link
PROPOSED GROUND FLOOR PLAN
Drawing
Not archived · Council Link
PROPOSED GROUND FLOOR PLAN - BUNGALOW
Drawing
Not archived · Council Link
PROPOSED REAR AND SIDE ELEVATION
Drawing
Not archived · Council Link
PROPOSED REAR AND SIDE ELEVATION - BUNGALOW
Drawing
Not archived · Council Link
Superseded Drawing
Archived · Council Link
Revised Drawing
Archived · Council Link
Revised Drawing
Archived · Council Link
PROPOSED STREET SCENE ELEVATION
Drawing
Not archived · Council Link
PUBLIC PROTECTION
Internal Responses
Not archived · Council Link
SCREENING ASSESSMENT
Land Contamination Assessment
Not archived · Council Link
SURFACE WATER DRAINAGE MAINTENANCE AND MANAGEMENT SCHEDULE
Drainage Documentation
Not archived · Council Link
YORKSHIRE WATER
Internal Responses
Not archived · Council Link

Take Action

Make your voice heard. Authorities need to hear from people who support new homes.

✉️ Write Email in Support View on Council Portal