← Back to City of York Council

Status

Awaiting decision
Received
27 Nov 2025
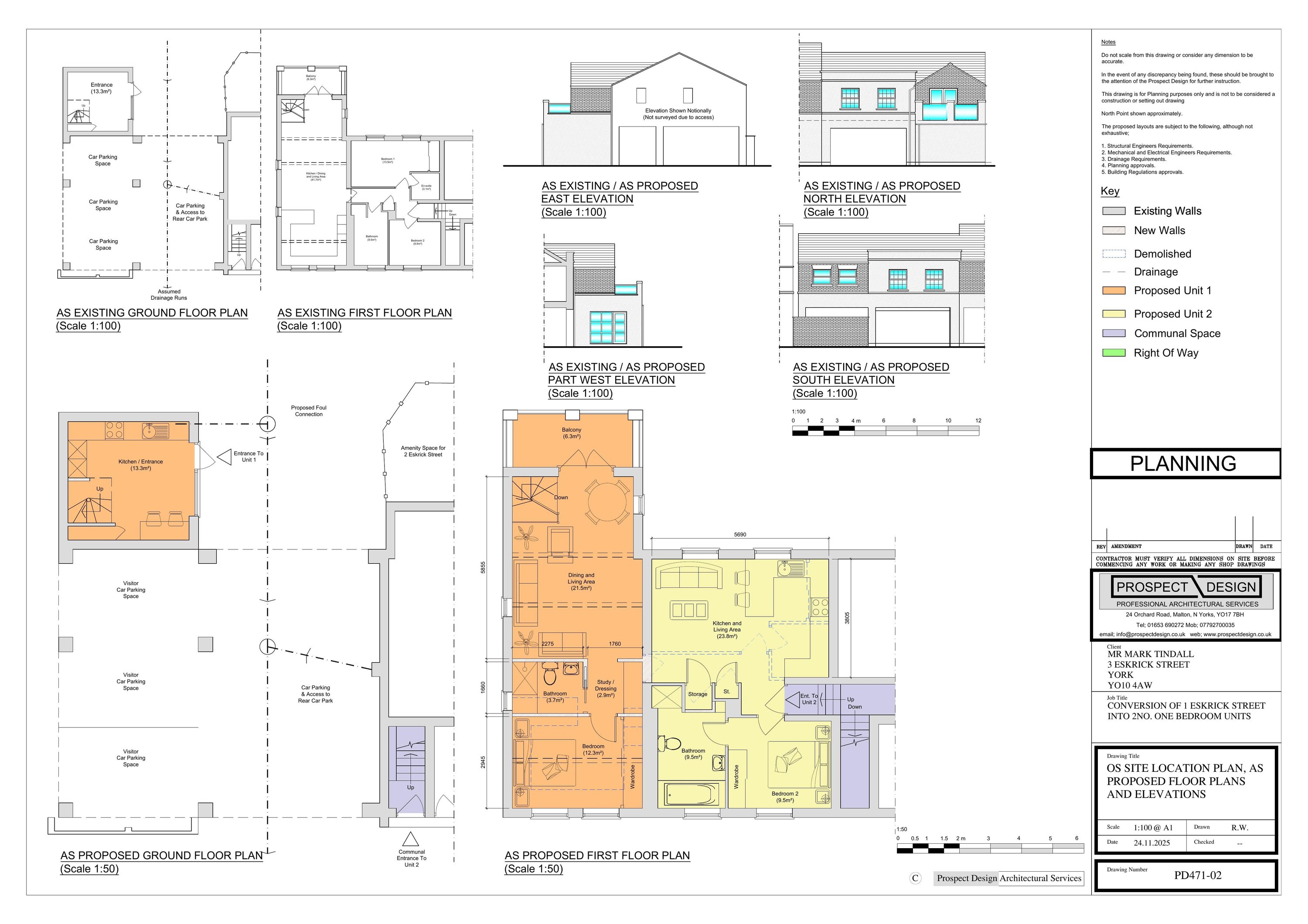
New dwellings
n/a

Full Proposal

Subdivision of existing dwelling into 2no. apartments

Documents

Application Form
Application Form
Not archived · Council Link
HOUSING STANDARDS
Internal Responses
Not archived · Council Link
LEAD LOCAL FLOOD AUTHORITY
Internal Responses
Not archived · Council Link
PLANNING STATEMENT
Planning Statement
Not archived · Council Link

Take Action

Make your voice heard. Authorities need to hear from people who support new homes.

✉️ Write Email in Support View on Council Portal