← Back to City of York Council

Status

Awaiting decision
Received
n/a
New dwellings
n/a

Summary

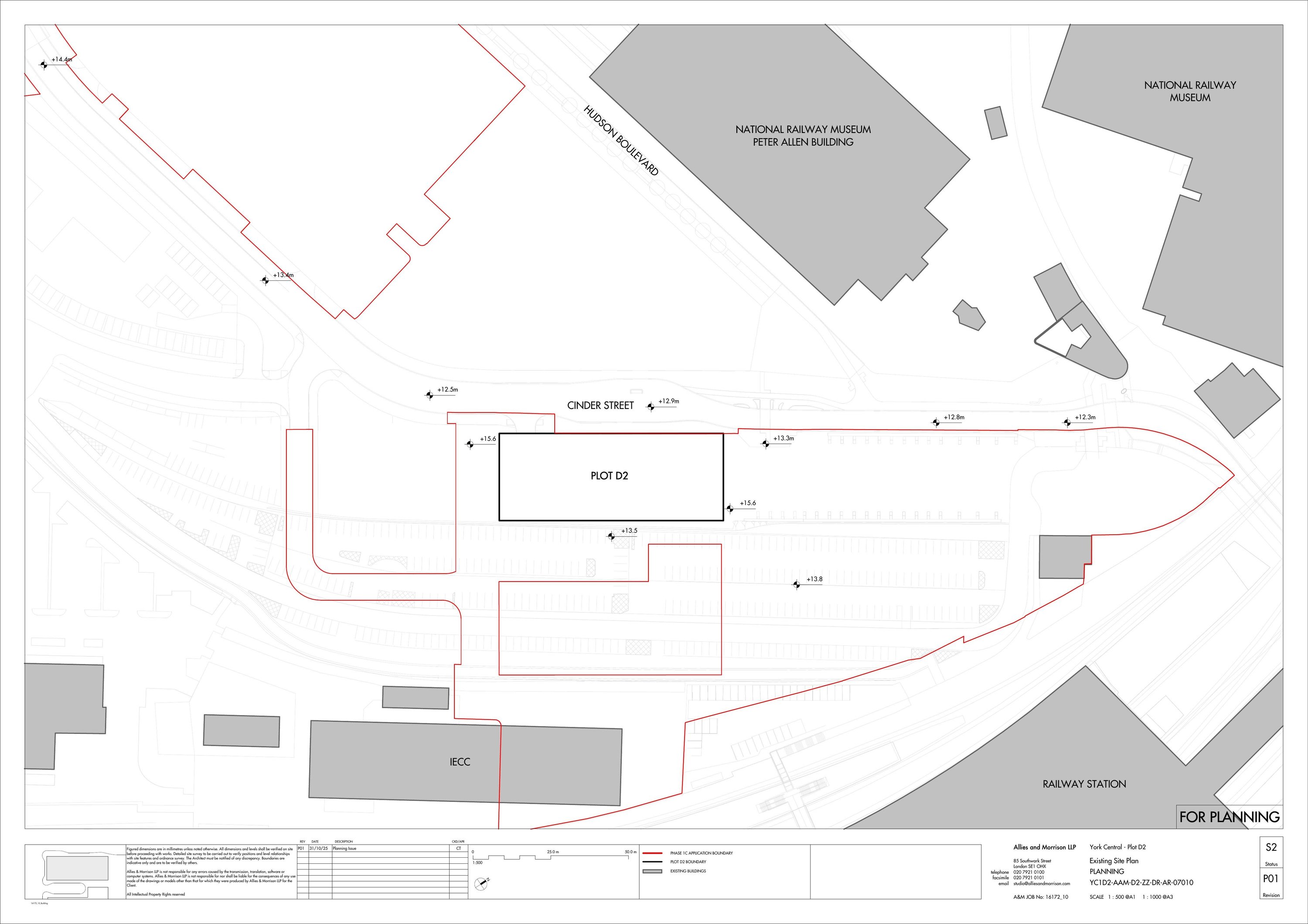
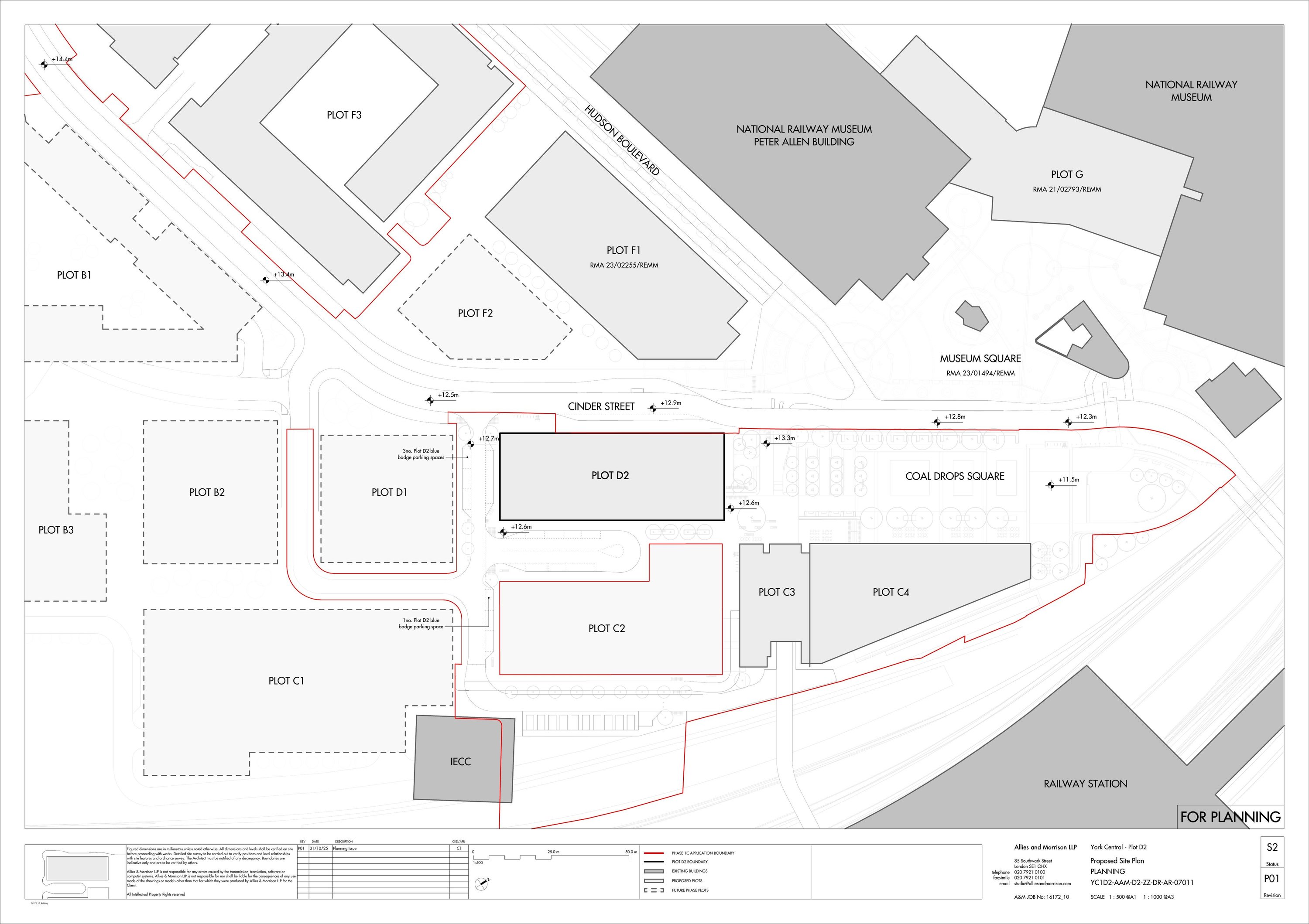
Reserved matters for mixed-use development including 999 dwellings, hotel, retail, offices and public realm.

Full Proposal

Reserved matters application for layout, scale, appearance, landscaping and access for erection of hotel with ground floor retail/leisure units (use class E) on Plot C4; new Western Station Entrance building, cycle hub and 1063 sq m (GEA) retail/leisure units (use class E) and 345 sq m (GEA) office use (use class E(g)(i and ii)) on Plot C3; 1no. office building (use class E c (i, ii and iii) and/or E g (i and ii) and 555 sq m (GEA) retail/leisure units (use class E) on Plot D; 129 dwellings and 357 sq m (GEA) retail/leisure units (use class E) on Plot E; 502 dwellings and 3003 sq m (GEA) retail/leisure units (use class E) on Plots F3 and F4; 368 dwellings and 1no. retail/leisure unit 433 sq m (GEA) (use class E (a) and/or (b)) on Plots K and L; new central park, public realm including public square at the former Coal Drops, with associated demolition and infrastructure pursuant to outline planning permission 18/01884/OUTM

Documents

AA - AB - APARTMENT BLOCK A & B
Drawing
Not archived · Council Link
AC - APARTMENT BLOCK C
Drawing
Not archived · Council Link
AC - APARTMENT BLOCK C
Drawing
Not archived · Council Link
ACTIVE TRAVEL ENGLAND
Consultee Reponses
Not archived · Council Link
AD - AE - APARTMENT BLOCK D & E
Drawing
Not archived · Council Link
AD - AE - APARTMENT BLOCK D & E
Drawing
Not archived · Council Link
AIR QUALITY ASSESSMENT PLOT E
Air Quality Assessment
Not archived · Council Link
AIR QUALITY ASSESSMENT PLOTS F3-F10
Air Quality Assessment
Not archived · Council Link
AIR QUALITY ASSESSMENT PLOTS K & L
Air Quality Assessment
Not archived · Council Link
APARTMENT BLOCK A PROPOSED ELEVATIONS
Drawing
Not archived · Council Link
APARTMENT BLOCK A PROPOSED PLAN G+0
Drawing
Not archived · Council Link
APARTMENT BLOCK A PROPOSED PLAN G+1 - G+4
Drawing
Not archived · Council Link
APARTMENT BLOCK A PROPOSED ROOF PLAN
Drawing
Not archived · Council Link
APARTMENT BLOCK A/B PROPOSED BAY STUDY
Drawing
Not archived · Council Link
APARTMENT BLOCK B PROPOSED ELEVATIONS
Drawing
Not archived · Council Link
APARTMENT BLOCK B PROPOSED PLAN G+0
Drawing
Not archived · Council Link
APARTMENT BLOCK B PROPOSED PLAN G+1 - G+4
Drawing
Not archived · Council Link
APARTMENT BLOCK B PROPOSED ROOF PLAN
Drawing
Not archived · Council Link
APARTMENT BLOCK C PROPOSED ELEVATIONS
Drawing
Not archived · Council Link
APARTMENT BLOCK C PROPOSED PLAN G+0
Drawing
Not archived · Council Link
APARTMENT BLOCK C PROPOSED PLAN G+1 - G+3
Drawing
Not archived · Council Link
APARTMENT BLOCK C PROPOSED PLAN G+4
Drawing
Not archived · Council Link
APARTMENT BLOCK C PROPOSED ROOF PLAN
Drawing
Not archived · Council Link
APARTMENT BLOCK D PROPOSED ELEVATIONS
Drawing
Not archived · Council Link
APARTMENT BLOCK D PROPOSED PLAN G+0
Drawing
Not archived · Council Link
APARTMENT BLOCK D PROPOSED PLAN G+1 - G+3
Drawing
Not archived · Council Link
APARTMENT BLOCK D PROPOSED ROOF PLAN
Drawing
Not archived · Council Link
APARTMENT BLOCK E PROPOSED BAY STUDY
Drawing
Not archived · Council Link
APARTMENT BLOCK E PROPOSED ELEVATIONS
Drawing
Not archived · Council Link
APARTMENT BLOCK E PROPOSED PLAN G+0
Drawing
Not archived · Council Link
APARTMENT BLOCK E PROPOSED PLAN G+1 - G+2
Drawing
Not archived · Council Link
APARTMENT BLOCK E PROPOSED ROOF PLAN
Drawing
Not archived · Council Link
APARTMENT BLOCK PROPOSED SECTIONS
Drawing
Not archived · Council Link
Application Form
Application Form
Not archived · Council Link
ARBORICULTURAL IMPACT ASSESSMENT
Report
Not archived · Council Link
ARCHAEOLOGICAL REMAINS MANAGEMENT PLAN
Report
Not archived · Council Link
ARCHAEOLOGICAL REMAINS MANAGEMENT PLAN
Report
Not archived · Council Link
ARCHAEOLOGICAL REMAINS MANAGEMENT PLAN PART 1
Report
Not archived · Council Link
ARCHAEOLOGICAL REMAINS MANAGEMENT PLAN PART 1
Report
Not archived · Council Link
ARCHAEOLOGICAL REMAINS MANAGEMENT PLAN PART 2
Report
Not archived · Council Link
ARCHAEOLOGICAL REMAINS MANAGEMENT PLAN PART 2
Report
Not archived · Council Link
ARCHAEOLOGICAL REMAINS MANAGEMENT PLAN PART 3
Report
Not archived · Council Link
ARCHAEOLOGY
Internal Responses
Not archived · Council Link
ARCHAEOLOGY
Internal Responses
Not archived · Council Link
ARCHITECTURAL DESIGN & CONSERVATION
Internal Responses
Not archived · Council Link
ARCHITECTURAL DESIGN & CONSERVATION
Internal Responses
Not archived · Council Link
ARCHITECTURAL DESIGN & CONSERVATION
Internal Responses
Not archived · Council Link
BACK TO BACK PROPOSED BAY STUDY
Drawing
Not archived · Council Link
BAY STUDY - TOWNHOUSE TYPE TH-B
Drawing
Not archived · Council Link
BOOKEND FLATS PROPOSED BAY STUDY
Drawing
Not archived · Council Link
CARBON REDUCTION
Internal Responses
Not archived · Council Link
COAL DROPS PROPOSED LAYBY GENERAL ARRANGEMENT
Drawing
Not archived · Council Link
COAL DROPS SECTION BB STATION SQUARE
Drawing
Not archived · Council Link
COAL DROPS SECTION CC COAL DROPS SLOPE
Drawing
Not archived · Council Link
COAL DROPS SECTION DD DROP-OFF PEDESTRIAN STREET
Drawing
Not archived · Council Link
COMPLIANCE STATEMENT
Report
Not archived · Council Link
COVERING LETTER
Covering Letter
Not archived · Council Link
CRIME IMPACT STATEMENT - CENTRAL PARK
Report
Not archived · Council Link
CRIME IMPACT STATEMENT - COAL DROPS
Report
Not archived · Council Link
CRIME IMPACT STATEMENT - PLOT C3 & C4
Report
Not archived · Council Link
CRIME IMPACT STATEMENT - PLOT D2
Report
Not archived · Council Link
CRIME IMPACT STATEMENT - PLOT E
Report
Not archived · Council Link
CRIME IMPACT STATEMENT - PLOT F3-F10
Report
Not archived · Council Link
CRIME IMPACT STATEMENT - PLOT K-L
Report
Not archived · Council Link
DAYLIGHT & SUNLIGHT REPORT
Daylight or Sunlight Assessment
Not archived · Council Link
DAYLIGHT & SUNLIGHT REPORT APPENDICES
Daylight or Sunlight Assessment
Not archived · Council Link
DESIGN & ACCESS STATEMENT PART 1 MASTERPLAN
Design & Access Statement
Not archived · Council Link
DESIGN & ACCESS STATEMENT PART 2 PLOT C3-C4 HOTEL & WSE
Design & Access Statement
Not archived · Council Link
DESIGN & ACCESS STATEMENT PART 3 PLOT D2 INNOVATION HUB
Design & Access Statement
Not archived · Council Link
DESIGN & ACCESS STATEMENT PART 4 COAL DROPS SQUARE
Design & Access Statement
Not archived · Council Link
DESIGN & ACCESS STATEMENT PART 5 PLOTS F3 TO F4 BTR
Design & Access Statement
Not archived · Council Link
DESIGN & ACCESS STATEMENT PART 6 PLOT E RESIDENTIAL
Design & Access Statement
Not archived · Council Link
DESIGN & ACCESS STATEMENT PART 7 PLOTS K - L RESIDENTIAL
Design & Access Statement
Not archived · Council Link
DESIGN & ACCESS STATEMENT PART 8 CENTRAL PARK
Design & Access Statement
Not archived · Council Link
DESIGN & ACCESS STATEMENT PART 9 GLOSSARY
Design & Access Statement
Not archived · Council Link
DRAINAGE NOTE - ENVIRONMENT AGENCY MEETING
Drainage Documentation
Not archived · Council Link
DRAINAGE STRATEGY CENTRAL PARK
Drainage Documentation
Not archived · Council Link
DRAINAGE STRATEGY COAL DROPS SQUARE
Drainage Documentation
Not archived · Council Link
DRAINAGE STRATEGY D2 OFFICE
Drainage Documentation
Not archived · Council Link
DRAINAGE STRATEGY PHASE 1 HOTEL & WSE
Drainage Documentation
Not archived · Council Link
DRAINAGE STRATEGY PLOT F3-F10 BTR
Drainage Documentation
Not archived · Council Link
DRAINAGE STRATEGY PLOT L&K
Drainage Documentation
Not archived · Council Link
DRAINAGE STRATEGY RESIDENTIAL (PLOT E)
Drainage Documentation
Not archived · Council Link
DRAINAGE STRATEGY RMA5 PHASE 1C
Drainage Documentation
Not archived · Council Link
DRAINAGE YORKSHIRE WATER CENTRAL SURFACE WATER MEETING MINUTES 23.06.25
Drainage Documentation
Not archived · Council Link
DRAINAGE YORKSHIRE WATER CENTRAL SURFACE WATER MEETING MINUTES 24.02.25
Drainage Documentation
Not archived · Council Link
DRAINAGE YORKSHIRE WATER CONSULTATION
Drainage Documentation
Not archived · Council Link
DRAINAGE YORKSHIRE WATER INNOVATION MEETING MINUTES 14.01.25
Drainage Documentation
Not archived · Council Link
DRAINAGE YORKSHIRE WATER INNOVATION TEAM MEETING MINUTES
Drainage Documentation
Not archived · Council Link
DRAINAGEBURO HAPPOLD PRESENTATION TO YORKSHIRE WATER
Drainage Documentation
Not archived · Council Link
ECOLOGICAL ENHANCEMENT STRATEGY
Report
Not archived · Council Link
EDUCATION
Internal Responses
Not archived · Council Link
EMISSIONS MITIGATION STATEMENT OF COMPLIANCE
Report
Not archived · Council Link
ENVIRONMENT AGENCY
Consultee Reponses
Not archived · Council Link
ENVIRONMENTAL COMPLIANCE STATEMENT
Report
Not archived · Council Link
EXISTING NE & NW SITE ELEVATIONS
Drawing
Not archived · Council Link
FLOOD RISK ASSESSMENT
Flood Risk Assessment
Not archived · Council Link
FLOOD RISK MANAGEMENT TEAM
Internal Responses
Not archived · Council Link
FORWARD PLANNING
Internal Responses
Not archived · Council Link
FOUNDRY WAY DRAINAGE RESULTS
Drainage Documentation
Not archived · Council Link
FOUNDRY WAY PROPOSED DRAINAGE GENERAL ARRANGEMENT
Drainage Documentation
Not archived · Council Link
FOUNDRY WAY PROPOSED HIGHWAYS GENERAL ARRANGEMENT
Drawing
Not archived · Council Link
HARD & SOFT LANDSCAPING COMPLIANCE CHECKLIST
Report
Not archived · Council Link
HARRIET WESTWOOD
External Correspondence
Not archived · Council Link
HERITAGE IMPACT ASSESSMENT AREA 1 PART 1 PLOTS C3, C4, D2, COAL DROPS
Heritage Impact Statement
Not archived · Council Link
HERITAGE IMPACT ASSESSMENT AREA 1 PART 2 APPENDICES PLOTS C3, C4, D2, COAL DROPS
Heritage Impact Statement
Not archived · Council Link
HERITAGE IMPACT ASSESSMENT AREA 1 PART 3 APPENDICES PLOTS C3, C4, D2, COAL DROPS
Heritage Impact Statement
Not archived · Council Link
HERITAGE IMPACT ASSESSMENT AREA 2 PART 1 PLOTS E, F, CENTRAL PARK
Heritage Impact Statement
Not archived · Council Link
HERITAGE IMPACT ASSESSMENT AREA 2 PART 2 APPENDIX A PLOTS E, F, CENTRAL PARK
Heritage Impact Statement
Not archived · Council Link
HERITAGE IMPACT ASSESSMENT AREA 2 PART 3 APPENDIX B,C,D,E PLOTS E, F, CENTRAL PA
Heritage Impact Statement
Not archived · Council Link
HERITAGE IMPACT ASSESSMENT AREA 2 PART 4 APPENDIX F.1 PLOTS E, F, CENTRAL PARK
Heritage Impact Statement
Not archived · Council Link
HERITAGE IMPACT ASSESSMENT AREA 2 PART 5 APPENDIX F.2 PLOTS E, F, CENTRAL PARK
Heritage Impact Statement
Not archived · Council Link
HERITAGE IMPACT ASSESSMENT AREA 3 PART 1 PLOTS K, L
Heritage Impact Statement
Not archived · Council Link
HERITAGE IMPACT ASSESSMENT AREA 3 PART 2 PLOTS K, L
Heritage Impact Statement
Not archived · Council Link
HISTORIC ENGLAND
Consultee Reponses
Not archived · Council Link
HOLGATE BECK S1 DRAINAGE RESULTS
Drainage Documentation
Not archived · Council Link
HOLGATE PLANNING PANEL
Consultee Reponses
Not archived · Council Link
IAN TOMES
General Comment
Not archived · Council Link
LANDSCAPE & ECOLOGICAL MANAGEMENT PLAN
Report
Not archived · Council Link
LIGHTING STRATEGY FOR ALL PHASE 1C PLOTS
Lighting Assessment
Not archived · Council Link
LLFA CONSULTATION
External Correspondence
Not archived · Council Link
M C DONALDSON
Objection Comment
Not archived · Council Link
M C DONALDSON
Objection Comment
Not archived · Council Link
NETWORK RAIL
Consultee Reponses
Not archived · Council Link
NOISE & VIBRATION ASSESSMENT PLOT C3 & C4
Noise Impact Assessment
Not archived · Council Link
NOISE & VIBRATION ASSESSMENT PLOT D2
Noise Impact Assessment
Not archived · Council Link
NOISE & VIBRATION ASSESSMENT PLOT E
Noise Impact Assessment
Not archived · Council Link
NOISE & VIBRATION ASSESSMENT PLOT F
Noise Impact Assessment
Not archived · Council Link
NOISE & VIBRATION ASSESSMENT PLOT K & L
Noise Impact Assessment
Not archived · Council Link
NORTH YORKSHIRE POLICE
Consultee Reponses
Not archived · Council Link
PARKING STRATEGY - ALL PHASE 1C PLOTS
Report
Not archived · Council Link
PHASE 1C CAR PARKING STRATEGY
Report
Not archived · Council Link
PHASE 1C PROPOSED DRAINAGE KEY PLAN
Drainage Documentation
Not archived · Council Link
PLANNING STATEMENT
Planning Statement
Not archived · Council Link
PLOT C3 PROPOSED BAY STUDY 01
Drawing
Not archived · Council Link
PLOT C3 PROPOSED BAY STUDY 02
Drawing
Not archived · Council Link
PLOT C3 PROPOSED BAY STUDY 03
Drawing
Not archived · Council Link
PLOT C4 PROPOSED BAY STUDY 01
Drawing
Not archived · Council Link
PLOT C4 PROPOSED BAY STUDY 02
Drawing
Not archived · Council Link
PLOT C4 PROPOSED BAY STUDY 03
Drawing
Not archived · Council Link
PLOT D PROPOSED SECTIONS
Drawing
Not archived · Council Link
PLOT D2 PROPOSED GROUND FLOOR PLAN
Drawing
Not archived · Council Link
PLOT D2 PROPOSED LEVEL 01-05 PLAN
Drawing
Not archived · Council Link
PLOT D2 PROPOSED LEVEL 06 PLAN
Drawing
Not archived · Council Link
PLOT D2 PROPOSED NE & NW SITE ELEVATIONS
Drawing
Not archived · Council Link
PLOT D2 PROPOSED NE & SW ELEVATIONS
Drawing
Not archived · Council Link
PLOT D2 PROPOSED NORTH EAST BAY STUDY
Drawing
Not archived · Council Link
PLOT D2 PROPOSED NORTH WEST BAY STUDY
Drawing
Not archived · Council Link
PLOT D2 PROPOSED NW & SE ELEVATIONS
Drawing
Not archived · Council Link
PLOT D2 PROPOSED ROOF PLAN
Drawing
Not archived · Council Link
PLOT D2 PROPOSED SOUTH EAST BAY STUDY - CYCLE STORE
Drawing
Not archived · Council Link
PLOT D2 PROPOSED SOUTH EAST BAY STUDY - OFFICE LOBBY
Drawing
Not archived · Council Link
PLOT D2 PROPOSED SOUTH WEST BAY STUDY
Drawing
Not archived · Council Link
PLOT E ILLUSTRATIVE LANDSCAPE PLAN
Drawing
Not archived · Council Link
PLOT E LANDSCAPE GENERAL ARRANGEMENT 1 OF 2
Drawing
Not archived · Council Link
PLOT E LANDSCAPE GENERAL ARRANGEMENT 2 OF 2
Drawing
Not archived · Council Link
PLOT E LANDSCAPE SECTIONS
Drawing
Not archived · Council Link
PLOT E PLANTING PLAN 1 OF 2
Drawing
Not archived · Council Link
PLOT E PLANTING PLAN 2 OF 2
Drawing
Not archived · Council Link
PLOT F AMENITY BUILDING - VARIENTS
Drawing
Not archived · Council Link
PLOT F AMENITY BUILDINGS - BLOCK A - COURTYARD AMENITY
Drawing
Not archived · Council Link
PLOT F CINDER STREET - BAY STUDY 01
Drawing
Not archived · Council Link
PLOT F CINDER STREET - BAY STUDY 02
Drawing
Not archived · Council Link
PLOT F EXISTING BLOCK PLAN
Drawing
Not archived · Council Link
PLOT F GROUND FLOOR PLANTING PLAN 1 OF 2
Drawing
Not archived · Council Link
PLOT F GROUND FLOOR PLANTING PLAN 2 OF 2
Drawing
Not archived · Council Link
PLOT F GROUND FLOOR PUBLIC REALM GA 1 OF 2
Drawing
Not archived · Council Link
PLOT F GROUND FLOOR PUBLIC REALM GA 2 OF 2
Drawing
Not archived · Council Link
PLOT F HUDSON BOULEVARD - DUPLEX - BAY STUDY
Drawing
Not archived · Council Link
PLOT F ILLUSTRATIVE LANDSCAPE PLAN
Drawing
Not archived · Council Link
PLOT F LANDSCAPE SECTIONS
Drawing
Not archived · Council Link
PLOT F LONG STREET ELEVATIONS
Drawing
Not archived · Council Link
PLOT F MARKER CORNERS - BAY STUDY
Drawing
Not archived · Council Link
PLOT F PROPOSED BLOCK PLAN
Drawing
Not archived · Council Link
PLOT F PROPOSED FIFTH FLOOR PLAN
Drawing
Not archived · Council Link
PLOT F PROPOSED FIRST FLOOR PLAN
Drawing
Not archived · Council Link
PLOT F PROPOSED FOURTH FLOOR PLAN
Drawing
Not archived · Council Link
PLOT F PROPOSED GROUND FLOOR PLAN
Drawing
Not archived · Council Link
PLOT F PROPOSED ROOF PLAN
Drawing
Not archived · Council Link
PLOT F PROPOSED SECOND FLOOR PLAN
Drawing
Not archived · Council Link
PLOT F PROPOSED THIRD FLOOR PLAN
Drawing
Not archived · Council Link
PLOT F ROOF TERRACE PLANTING PLAN
Drawing
Not archived · Council Link
PLOT F SHORT STREET ELEVATIONS
Drawing
Not archived · Council Link
PLOT F WILTON LANE - BAY STUDY
Drawing
Not archived · Council Link
PLOT F3 & F4 SECTIONS
Drawing
Not archived · Council Link
PLOT F3 EAST & WEST ELEVATIONS
Drawing
Not archived · Council Link
PLOT F3 INTERNAL COURTYARD ELEVATIONS 1
Drawing
Not archived · Council Link
PLOT F3 INTERNAL COURTYARD ELEVATIONS 2
Drawing
Not archived · Council Link
PLOT F3 NORTH & SOUTH ELEVATION
Drawing
Not archived · Council Link
PLOT F3 SECTIONS
Drawing
Not archived · Council Link
PLOT F3-F10 ROOF TERRACE GENERAL ARRANGEMENT
Drawing
Not archived · Council Link
PLOT F4 EAST & WEST ELEVATIONS
Drawing
Not archived · Council Link
PLOT F4 INTERNAL COURTYARD ELEVATIONS 1
Drawing
Not archived · Council Link
PLOT F4 INTERNAL COURTYARD ELEVATIONS 2
Drawing
Not archived · Council Link
PLOT F4 NORTH ELEVATION
Drawing
Not archived · Council Link
PLOT F4 SECTIONS
Drawing
Not archived · Council Link
PLOT F4 SOUTH ELEVATION
Drawing
Not archived · Council Link
PLOT K & L ILLUSTRATIVE LANDSCAPE PLAN
Drawing
Not archived · Council Link
PLOT K & L LANDSCAPE GENERAL ARRANGEMENT PLAN 1 OF 3
Drawing
Not archived · Council Link
PLOTS C3 C4 PROPOSED ELEVATIONS 01
Drawing
Not archived · Council Link
PLOTS C3 C4 PROPOSED ELEVATIONS 02
Drawing
Not archived · Council Link
PLOTS C3 C4 PROPOSED ELEVATIONS 03
Drawing
Not archived · Council Link
PLOTS C3 C4 PROPOSED LEVEL 01 PLAN
Drawing
Not archived · Council Link
PLOTS C3 C4 PROPOSED LEVEL 02 PLAN
Drawing
Not archived · Council Link
PLOTS C3 C4 PROPOSED LEVEL 03 PLAN
Drawing
Not archived · Council Link
PLOTS C3 C4 PROPOSED LEVEL 04 PLAN
Drawing
Not archived · Council Link
PLOTS C3 C4 PROPOSED LEVEL 05 PLAN
Drawing
Not archived · Council Link
PLOTS C3 C4 PROPOSED LEVEL 06 PLAN
Drawing
Not archived · Council Link
PLOTS C3 C4 PROPOSED LOWER GROUND PLAN
Drawing
Not archived · Council Link
PLOTS C3 C4 PROPOSED ROOF PLAN
Drawing
Not archived · Council Link
PLOTS C3 C4 PROPOSED SECTIONS 01
Drawing
Not archived · Council Link
PLOTS C3 C4 PROPOSED SECTIONS 02
Drawing
Not archived · Council Link
PLOTS C3 C4 PROPOSED UPPER GROUND PLAN
Drawing
Not archived · Council Link
PLOTS K & L LANDSCAPE GENERAL ARRANGEMENT PLAN 2 OF 3
Drawing
Not archived · Council Link
PLOTS K & L LANDSCAPE GENERAL ARRANGEMENT PLAN 3 OF 3
Drawing
Not archived · Council Link
PLOTS K & L LANDSCAPE SECTIONS
Drawing
Not archived · Council Link
PLOTS K & L PLANTING PLAN 1 OF 3
Drawing
Not archived · Council Link
PLOTS K & L PLANTING PLAN 2 OF 3
Drawing
Not archived · Council Link
PLOTS K & L PLANTING PLAN 3 OF 3
Drawing
Not archived · Council Link
PLOTS K & L PLANTING SCHEDULE
Drawing
Not archived · Council Link
PRELIMINARY ECOLOGICAL APPRAISAL - TECHNICAL NOTE
Report
Not archived · Council Link
PROFORMA
Drainage Documentation
Not archived · Council Link
PROPOSED BLOCK E1 BAY STUDY
Drawing
Not archived · Council Link
PROPOSED BLOCK E2 BAY STUDY
Drawing
Not archived · Council Link
PROPOSED BLOCK E3 BAY STUDY
Drawing
Not archived · Council Link
PROPOSED ELEVATIONS - E1 TO E6 SH.1
Drawing
Not archived · Council Link
PROPOSED ELEVATIONS - E1 TO E6 SH.2
Drawing
Not archived · Council Link
PROPOSED ELEVATIONS - E7 TO E8
Drawing
Not archived · Council Link
PROPOSED G+0 PLAN
Drawing
Not archived · Council Link
PROPOSED G+1 PLAN
Drawing
Not archived · Council Link
PROPOSED G+2 PLAN
Drawing
Not archived · Council Link
PROPOSED G+3 PLAN
Drawing
Not archived · Council Link
PROPOSED G+4 PLAN
Drawing
Not archived · Council Link
PROPOSED GROUND FLOOR PLAN - BLOCK E1 TO E6
Drawing
Not archived · Council Link
PROPOSED GROUND FLOOR PLAN - BLOCK E7 TO E8
Drawing
Not archived · Council Link
PROPOSED HOLGATE BECK S1 DRAINAGE GENERAL ARRANGEMENT (SHEET 1)
Drainage Documentation
Not archived · Council Link
PROPOSED HOLGATE BECK S1 DRAINAGE GENERAL ARRANGEMENT (SHEET 2)
Drainage Documentation
Not archived · Council Link
PROPOSED HOLGATE BECK S1 DRAINAGE GENERAL ARRANGEMENT (SHEET 3)
Drainage Documentation
Not archived · Council Link
PROPOSED LEVEL 01 PLAN - BLOCK E1 TO E6
Drawing
Not archived · Council Link
PROPOSED LEVEL 01 PLAN - BLOCK E7 TO E8
Drawing
Not archived · Council Link
PROPOSED LEVEL 02 PLAN - BLOCK E1 TO E6
Drawing
Not archived · Council Link
PROPOSED LEVEL 02 PLAN - BLOCK E7 TO E8
Drawing
Not archived · Council Link
PROPOSED LEVEL 03 PLAN - BLOCK E1 TO E6
Drawing
Not archived · Council Link
PROPOSED LEVEL 04 PLAN - BLOCK E1 TO E6
Drawing
Not archived · Council Link
PROPOSED ROOF PLAN
Drawing
Not archived · Council Link
PROPOSED ROOF PLAN - BLOCK E1 TO E6
Drawing
Not archived · Council Link
PROPOSED ROOF PLAN - BLOCK E7 TO E8
Drawing
Not archived · Council Link
PROPOSED SECTIONS - BLOCK E1 TO E6
Drawing
Not archived · Council Link
PROPOSED SECTIONS - BLOCK E7 TO E8
Drawing
Not archived · Council Link
PROPOSED SITE ELEVATIONS CINDER STREET
Drawing
Not archived · Council Link
PUBLIC PROTECTION
Internal Responses
Not archived · Council Link
RAISED HOUSE 2B4P/1B2P PROPOSED BAY STUDY
Drawing
Not archived · Council Link
RAISED HOUSE 2B4P/3B5P PROPOSED BAY STUDY
Drawing
Not archived · Council Link
RMA 5 CENTRAL PARK SECTION AA & BB WATER GARDENS
Drawing
Not archived · Council Link
RMA5 CENTRAL PARK GENERAL ARRANGEMENT
Drawing
Not archived · Council Link
RMA5 CENTRAL PARK HARDWORKS & FURNITURE GENERAL ARRANGEMENT
Drawing
Not archived · Council Link
RMA5 CENTRAL PARK SECTION CC & DD WANDER WILDS
Drawing
Not archived · Council Link
RMA5 CENTRAL PARK SECTION EE SKYFIELDS
Drawing
Not archived · Council Link
RMA5 CENTRAL PARK SOFTWORKS GENERAL ARRANGEMENT/PLANTING TYPOLOGIES
Drawing
Not archived · Council Link
RMA5 CENTRAL PARK SOFTWORKS GENERAL ARRANGEMENT/TREES
Drawing
Not archived · Council Link
RMA5 COAL DROPS GENERAL ARRANGEMENT
Drawing
Not archived · Council Link
RMA5 COAL DROPS HARDWORKS
Drawing
Not archived · Council Link
RMA5 COAL DROPS SOFTWORKS
Drawing
Not archived · Council Link
RMA5 ILLUSTRATIVE MASTERPLAN - TYPICAL FLOOR PLAN
Drawing
Not archived · Council Link
RMA5 PROPOSED DEMOLITIONS
Drawing
Not archived · Council Link
RMA5 PROPOSED GROUND FLOOR PLAN
Drawing
Not archived · Council Link
RMA5 PROPOSED ROOF PLAN
Drawing
Not archived · Council Link
RMA5 PROPOSED TYPICAL FLOOR PLAN
Drawing
Not archived · Council Link
SECTION AA COAL DROPS
Drawing
Not archived · Council Link
SERVICING STRATEGY PART 2 APPENDICES COVERING ALL PHASE 1C PLOTS
Report
Not archived · Council Link
SERVICING STRATEGY PART1 COVERING ALL PHASE 1C PLOTS
Report
Not archived · Council Link
SITE NOTICE LOCATIONS
Drawing
Not archived · Council Link
SITE SECTIONS - SHEET 1
Drawing
Not archived · Council Link
SITE SECTIONS - SHEET 2
Drawing
Not archived · Council Link
SITE WIDE HOUSING MIX STATEMENT
Report
Not archived · Council Link
STATEMENT OF COMMUNITY INVOLVEMENT
Statement of Community Involvement
Not archived · Council Link
STATION QUARTER HIGHWAY DRAINAGE RESULTS
Drainage Documentation
Not archived · Council Link
STATION QUARTER PLOT DRAINAGE RESULTS
Drainage Documentation
Not archived · Council Link
STATION QUARTER PROPOSED DRAINAGE GENERAL ARRANGEMENT
Drainage Documentation
Not archived · Council Link
STATION QUARTER PROPOSED HIGHWAYS GENERAL ARRANGEMENT SHEET 1
Drawing
Not archived · Council Link
STATION QUARTER PROPOSED HIGHWAYS GENERAL ARRANGEMENT SHEET 2
Drawing
Not archived · Council Link
STATION QUARTER PROPOSED HIGHWAYS GENERAL ARRANGEMENT SHEET 3
Drawing
Not archived · Council Link
STATION QUARTER PROPOSED HIGHWAYS KEY PLAN
Drawing
Not archived · Council Link
SUSTAINABILITY STATEMENT
Report
Not archived · Council Link
TERRACE A PROPOSED ELEVATIONS
Drawing
Not archived · Council Link
TERRACE A PROPOSED ELEVATIONS
Drawing
Not archived · Council Link
TERRACE A PROPOSED PLAN G+0
Drawing
Not archived · Council Link
TERRACE A PROPOSED PLAN G+1
Drawing
Not archived · Council Link
TERRACE A PROPOSED PLAN G+2
Drawing
Not archived · Council Link
TERRACE A PROPOSED PLAN G+3
Drawing
Not archived · Council Link
TERRACE A PROPOSED ROOF PLAN
Drawing
Not archived · Council Link
TERRACE B PROPOSED ELEVATIONS
Drawing
Not archived · Council Link
TERRACE C PROPOSED ELEVATIONS
Drawing
Not archived · Council Link
TERRACE C PROPOSED PLAN G+0
Drawing
Not archived · Council Link
TERRACE C PROPOSED PLAN G+1
Drawing
Not archived · Council Link
TERRACE C PROPOSED PLAN G+2
Drawing
Not archived · Council Link
TERRACE C PROPOSED ROOF PLAN
Drawing
Not archived · Council Link
TERRACE D PROPOSED ELEVATIONS
Drawing
Not archived · Council Link
TERRACE D PROPOSED PLAN G+0 - G+1
Drawing
Not archived · Council Link
TERRACE D PROPOSED PLAN G+2 - G+3
Drawing
Not archived · Council Link
TERRACE D PROPOSED ROOF PLAN
Drawing
Not archived · Council Link
TERRACE E PROPOSED ELEVATIONS
Drawing
Not archived · Council Link
TERRACE E PROPOSED ELEVATIONS
Drawing
Not archived · Council Link
TERRACE E PROPOSED PLAN G+0
Drawing
Not archived · Council Link
TERRACE E PROPOSED PLAN G+1
Drawing
Not archived · Council Link
TERRACE E PROPOSED PLAN G+2
Drawing
Not archived · Council Link
TERRACE E PROPOSED ROOF PLAN
Drawing
Not archived · Council Link
TERRACE F PROPOSED ELEVATIONS
Drawing
Not archived · Council Link
TERRACE F PROPOSED PLAN G+0
Drawing
Not archived · Council Link
TERRACE F PROPOSED PLAN G+1
Drawing
Not archived · Council Link
TERRACE F PROPOSED PLAN G+2
Drawing
Not archived · Council Link
TERRACE F PROPOSED ROOF PLAN
Drawing
Not archived · Council Link
TERRACE G PROPOSED ELEVATIONS
Drawing
Not archived · Council Link
TERRACE H PROPOSED ELEVATIONS
Drawing
Not archived · Council Link
TERRACE H PROPOSED PLAN G+0 - G+1
Drawing
Not archived · Council Link
TERRACE H PROPOSED PLAN G+2 - ROOF PLAN
Drawing
Not archived · Council Link
TERRACED HOUSE PROPOSED BAY STUDY
Drawing
Not archived · Council Link
TERRACED HOUSE WITH GARAGE PROPOSED BAY STUDY
Drawing
Not archived · Council Link
TOPOGRAPHICAL SURVEYS
Drawing
Not archived · Council Link
TRAFFIC IMPACT ASSESSMENT PART1
Transport Assessment
Not archived · Council Link
TRAFFIC IMPACT ASSESSMENT PART2
Transport Assessment
Not archived · Council Link
TRAFFIC IMPACT ASSESSMENT PART3
Transport Assessment
Not archived · Council Link
TRAFFIC IMPACT ASSESSMENT PART4
Transport Assessment
Not archived · Council Link
TRAFFIC IMPACT ASSESSMENT PART5
Transport Assessment
Not archived · Council Link
TRAFFIC IMPACT ASSESSMENT PART6
Transport Assessment
Not archived · Council Link
TRAFFIC IMPACT ASSESSMENT PART7
Transport Assessment
Not archived · Council Link
TRAFFIC IMPACT ASSESSMENT PART8
Transport Assessment
Not archived · Council Link
TRAVEL PLAN
Travel Plan
Not archived · Council Link
WASTE MANAGEMENT ADVISORY NOTE UNDERGROUND WASTE STORAGE
Report
Not archived · Council Link
WASTE SERVICES
Internal Responses
Not archived · Council Link
WASTE SERVICES - ATTACHED WASTE INFORMATION FOR DEVELOPERS
Internal Responses
Not archived · Council Link
WASTE SERVICES - EMAIL 2
Internal Responses
Not archived · Council Link
WIND MICROCLIMATE ASSESSMENT REPORT
Report
Not archived · Council Link
YORK CYCLE CAMPAIGN
Consultee Reponses
Not archived · Council Link
YORKSHIRE WATER
Consultee Reponses
Not archived · Council Link
ZZ - BOOKEND FLATS
Drawing
Not archived · Council Link

Take Action

Make your voice heard. Authorities need to hear from people who support new homes.

✉️ Write Email in Support View on Council Portal