← Back to Brighton & Hove City Council

Status

Awaiting decision New housing
Received
25 Nov 2024
New dwellings
3

Full Proposal

Demolition of existing dwelling and erection of three storey replacement dwelling (C3). Associated landscaping, new boundary wall and gates and vehicle crossover.

Documents

AMENDED CIL FORM 1
Supporting Document(s)
Not archived · Council Link
AMENDED PLANNING/DESIGN & ACCESS STATEMENT
Supporting Document(s)
Not archived · Council Link
APPLICATION FORM
Application Form
Not archived · Council Link
BAT SURVEY REPORT
Supporting Document(s)
Not archived · Council Link
BIODIVERSITY CHECKLIST
Supporting Document(s)
Not archived · Council Link
BRIGHTON AND HOVE ARCHAEOLOGICAL SOCIETY
Consultee Comment
Not archived · Council Link
CIL FORM 7
Supporting Document(s)
Not archived · Council Link
COUNTY ARCHAEOLOGY
Consultee Comment
Not archived · Council Link
ECOLOGY COMMENTS
Consultee Comment
Not archived · Council Link
ENVIRONMENTAL HEALTH COMMENTS
Consultee Comment
Not archived · Council Link
EXISTING ELEVATIONS
Drawing(s)
Not archived · Council Link
EXISTING ELEVATIONS
Drawing(s)
Not archived · Council Link
EXISTING FLOOR PLANS
Drawing(s)
Not archived · Council Link
EXISTING FLOOR PLANS
Drawing(s)
Not archived · Council Link
EXISTING SITE & LANDSCAPE PLAN
Drawing(s)
Not archived · Council Link
OS Extract
Archived · Council Link
EXISTING STREET ELEVATION
Drawing(s)
Not archived · Council Link
EXISTING STREET ELEVATION
Drawing(s)
Not archived · Council Link
HERITAGE STATEMENT
Supporting Document(s)
Not archived · Council Link
HERITAGE STATEMENT
Supporting Document(s)
Not archived · Council Link
LOCATION/BLOCK PLAN
OS Extract
Not archived · Council Link
ONLINE COMMENT
Public Comment
Not archived · Council Link
ONLINE COMMENT
Public Comment
Not archived · Council Link
POLICY COMMENTS
Consultee Comment
Not archived · Council Link
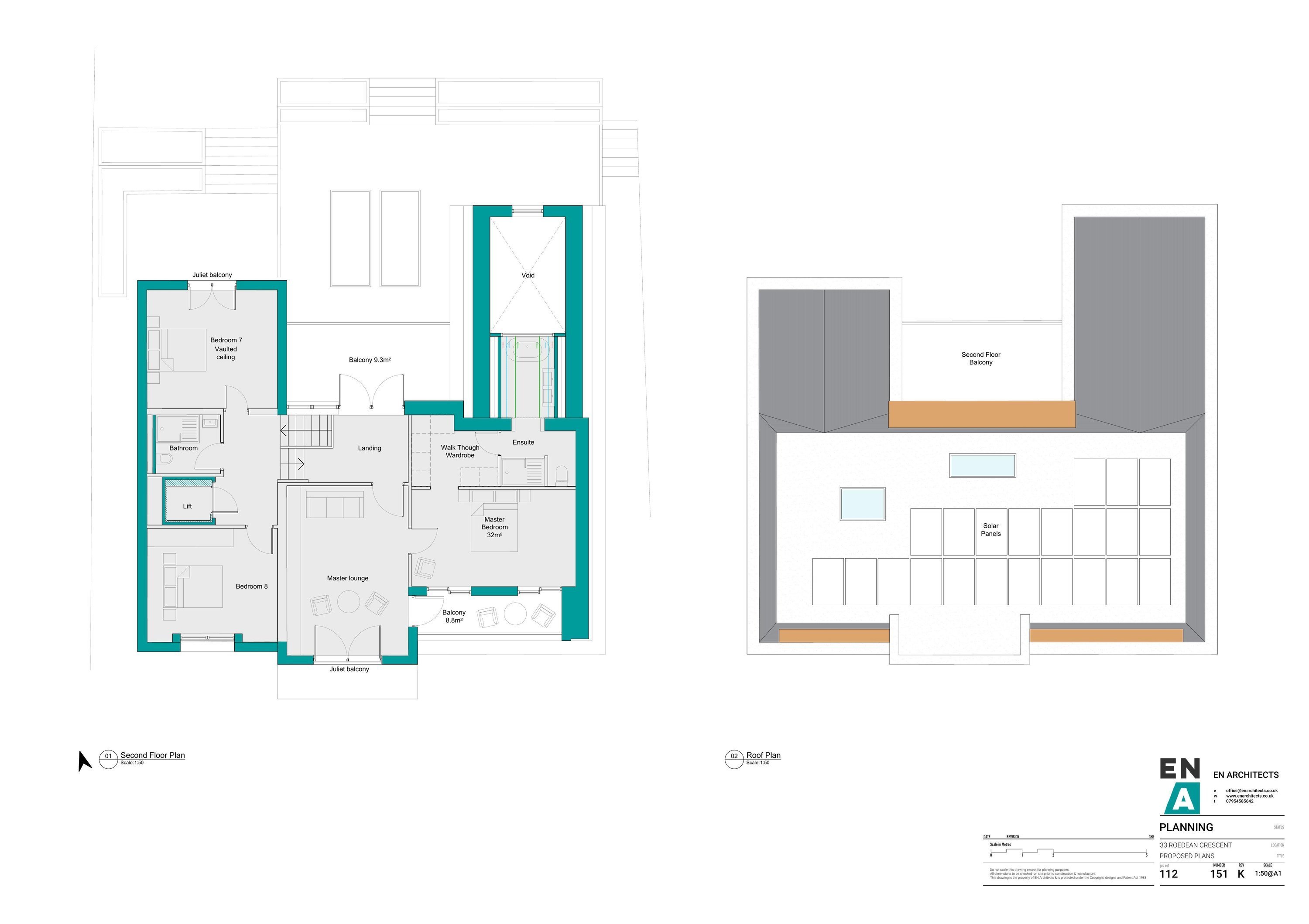
PROPOSED ELEVATIONS
Drawing(s)
Not archived · Council Link
PROPOSED ELEVATIONS
Drawing(s)
Not archived · Council Link
Drawing(s)
Archived · Council Link
Drawing(s)
Archived · Council Link
PROPOSED SITE AND LANDSCAPE PLAN
Drawings Superseded
Not archived · Council Link
PROPOSED SITE AND LANDSCAPE PLAN
Drawings Superseded
Not archived · Council Link
PROPOSED SITE/LANDSCAPE PLAN
Drawing(s)
Not archived · Council Link
PROPOSED STREET ELEVATION
Drawings Superseded
Not archived · Council Link
PROPOSED STREET ELEVATION
Drawings Superseded
Not archived · Council Link
PROPOSED STREET ELEVATION
Drawings Superseded
Not archived · Council Link
PROPOSED STREET ELEVATIONS
Drawings Superseded
Not archived · Council Link
PROPOSED STREET ELEVATIONS
Drawings Superseded
Not archived · Council Link
PROPOSED STREET ELEVATIONS
Drawings Superseded
Not archived · Council Link
PROPOSED STREET SCENE EXISTING NEIGHBOURS
Drawing(s)
Not archived · Council Link
PROPOSED STREET SCENE NEW BUILD NEXT DOOR
Drawing(s)
Not archived · Council Link
SOUTH DOWNS NATIONAL PARK AUTHORITY COMMENT
Consultee Comment
Not archived · Council Link
SOUTHERN WATER
Consultee Comment
Not archived · Council Link
SOUTHERN WATER
Consultee Comment
Not archived · Council Link
SUSTAINABILITY APPRAISAL
Supporting Document(s)
Not archived · Council Link
TRANSPORT
Consultee Comment
Not archived · Council Link
TRANSPORT COMMENTS
Consultee Comment
Not archived · Council Link

Take Action

Make your voice heard. Authorities need to hear from people who support new homes.

✉️ Write Email in Support View on Council Portal