← Back to all authorities

Recent applications

Showing the most recent records stored for this authority (max 200).

Prior approval for change of use of ground, first, second and third floors from office space (Class E) to residential (Class C3) to create 3...

Type n/a
Status Registered
Date Last week

Change of use of mobile unit to a flexible use comprising an ancillary residential use for persons related to those residing in the main dwe...

Type n/a
Status Registered
Date 15 days ago

Demolish existing single storey commercial building (Use Class E) and erection of a five storey building comprising of 14no. flats (Use Clas...

Type n/a
Status Registered
Date Last month

Conversion of existing seven bedroom dwelling (C3) to form 1no five bedroom dwelling and 1no three bedroom dwelling (C3).

Type n/a
Status Registered
Date 16 days ago
Plan thumbnail

Flexible use as six-bed HMO or residential dwelling with associated rear fenestration alterations.

Type Change of use
Status Awaiting decision
Date 19 Sep 2025

Build two residential blocks delivering 53 affordable flats and community floorspace.

Type New housing
Status Registered
Date 26 Aug 2025

Demolish mixed-use building; erect block of 23 affordable flats.

Type New housing
Status Registered
Date 26 Aug 2025
Plan thumbnail

Erection of four storey 4no bedroom dwelling (C3) adjacent to existing dwelling incorporating new vehicular crossover.

Type New housing
Status Registered
Date 19 Aug 2025
Plan thumbnail

Demolition of 4no garages and erection of two storey detached dwelling house (C3) arranged over ground and first floors, conversion of adjac...

Type Demolition
Status Registered
Date 13 Aug 2025
Plan thumbnail

Erection of extension at basement and ground floor levels to existing warehouse to provide a sports hall and indoor bin store to support exi...

Type Industrial
Status Registered
Date 05 Aug 2025
Plan thumbnail

Demolition of existing dwelling and the erection of a new replacement dwelling, and associated works.

Type Demolition
Status Registered
Date 04 Aug 2025
Plan thumbnail

Convert existing HMO to ground-floor commercial and two dwellings with first and second floor extensions.

Type Change of use
Status Registered
Date 09 Sep 2025
Plan thumbnail

Change of use of first floor (disused ancillary seating area) and second and third floors (staff accommodation) to form 6no person, 5no bedr...

Type Change of use
Status Registered
Date 01 Sep 2025
Plan thumbnail

Change of use from 2no seven bedroom short term lets (Sui Generis) to 2no seven bedroom houses in multiple occupation (Sui Generis), incorpo...

Type Change of use
Status Registered
Date 11 Aug 2025
Plan thumbnail

Alterations to wall including: re-alignment of railings; attachment of access gates and railings; extension of existing wall; and proposed s...

Type Other
Status Registered
Date 30 Jan 2025
Plan thumbnail

Extension of single storey rear extension to existing studio flat to form one person one bedroom flat.

Type House extension
Status Registered
Date 18 Nov 2025
Plan thumbnail

Extension to flat with the creation of an additional storey.

Type House extension
Status Registered
Date 15 Dec 2025
Plan thumbnail

Replacement of existing roof lantern to rear second floor flat roof.

Type Other
Status Registered
Date 15 Dec 2025

Proposed alterations to the front garden wall with new gates, formation of a new bin store, a raised brick garden wall adjacent to the side ...

Type Other
Status Registered
Date 19 Dec 2025
Plan thumbnail

Change of use at basement from commercial (E) to residential to create 1no. self-contained flat (C3), installation of new bi-fold doors at r...

Type Change of use
Status Registered
Date 22 Jul 2025
Plan thumbnail

Change of use from private dwelling (C3) to flexible use as holiday let/private dwelling (Sui Generis/C3) (retrospective).

Type Change of use
Status Registered
Date 11 Dec 2025
Plan thumbnail

Prior approval for change of use from commercial, business and service (Class E) to residential (Class C3) to create 6no residential units.

Type Change of use
Status Awaiting decision
Date Last month
Plan thumbnail

Erection of a single-storey rear extension, reversion to a single dwelling with revised fenestarions and associated alterations.

Type House extension
Status Registered
Date Last month
Plan thumbnail

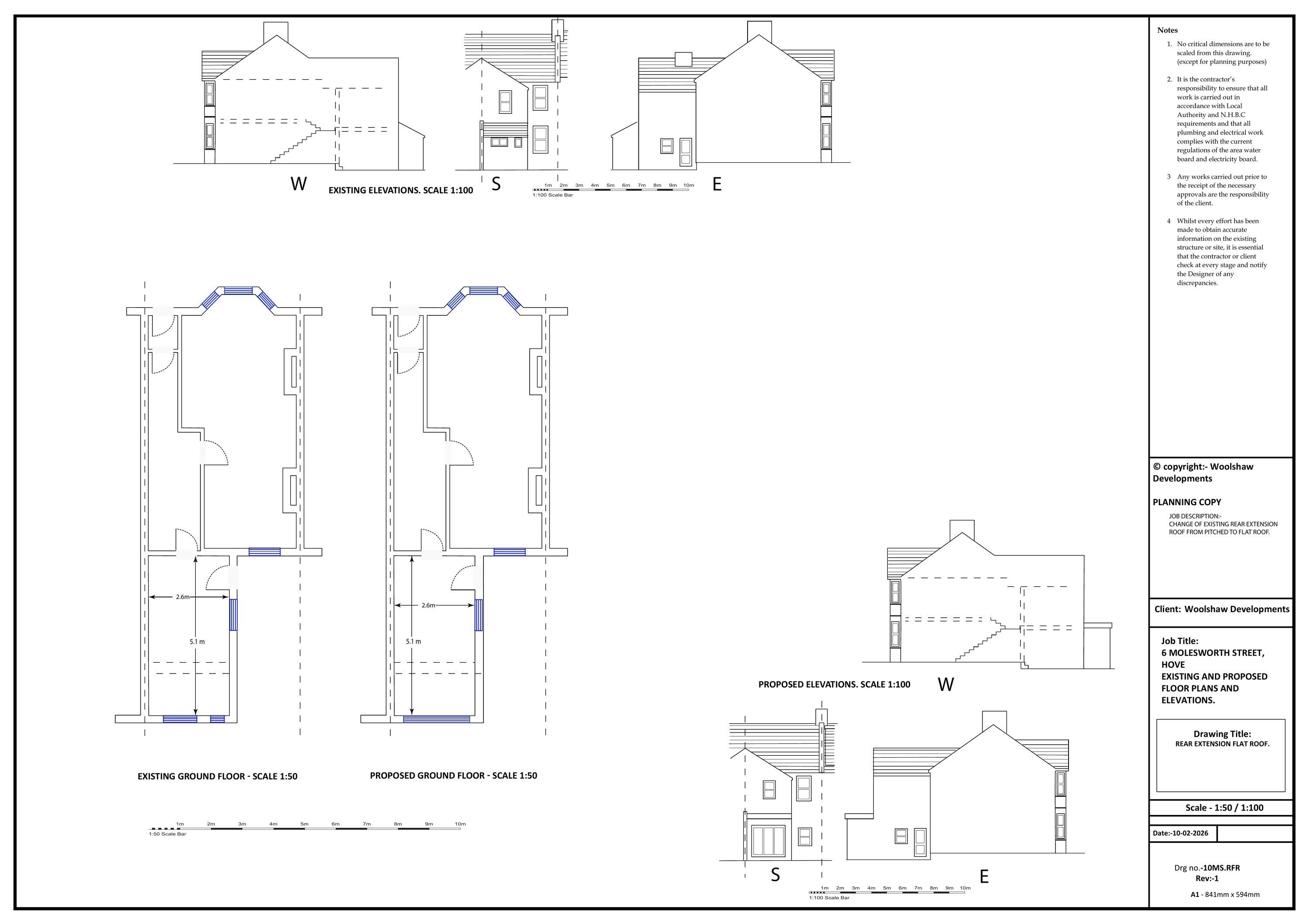
Alterations to rear extension with pitched roof replaced with flat roof and amended fenestration.

Type House extension
Status Registered
Date 17 days ago
Plan thumbnail

Erection of 1no dwelling (C3) to rear of existing dwelling.

Type New housing
Status Registered
Date 18 days ago
Plan thumbnail

Erection of two storey, 2no bedroom detached dwelling (C3) (retrospective).

Type New housing
Status Registered
Date 16 days ago
Plan thumbnail

Conversion of basement storage area (Sui Generis) to one bedroom, one person flat (C3) with alterations to fenestration.

Type Change of use
Status Registered
Date 18 Sep 2025
Plan thumbnail

Conversion of basement storage area (Sui Generis) to create 1no. one-bed flat (C3), including new patio.

Type Change of use
Status Registered
Date 18 Sep 2025

Change of use of fourth floor from existing offices (E) to residential (C3) to provide 1no two bedroom flat and 1no three bedroom flat.

Type Change of use
Status Registered
Date 15 Aug 2025

Alterations to Flat 3 on second floor incorporating replacement timber sash windows and removal of grilles above to front and new window to ...

Type Other
Status Registered
Date 01 Oct 2025

Internal and external alterations to Flat 3 on second floor incorporating alteration to internal layout, replacement timber sash windows and...

Type Listed building
Status Registered
Date 01 Oct 2025

Change of use from a C3 dwelling to a C3/C4 HMO.

Type Change of use
Status Registered
Date 07 Nov 2025

Change of use at second floor from offices (class E) to a mixed-use as class E/F1, associated alterations.

Type Change of use
Status Registered
Date 11 Nov 2025
Plan thumbnail

Internal alterations to layout of flat. Replacement of existing rooflight access to roof with new larger rooflight and renew roof safety han...

Type Other
Status Registered
Date 22 Apr 2025
Plan thumbnail

Installation of new vents, replacement timber rear door and double-glazed timber sliding sash window to replace existing louvre window. Refu...

Type Other
Status Awaiting decision
Date 03 Nov 2025
Plan thumbnail

Conversion of commercial unit and residential unit to form 1no one bedroom flat and 1no Two bedroom flat.

Type Change of use
Status Registered
Date 03 Nov 2025
Plan thumbnail

Change of use of ground floor unit from ancillary residential storage (sui generis) to 1no. studio flat (Use Class C3), and replacement of e...

Type Change of use
Status Awaiting decision
Date 04 Nov 2025

Change of use of third floor rear office (E) to residential (C3) providing 1no one bedroom flat.

Type Change of use
Status Registered
Date 28 Nov 2025
Plan thumbnail

First floor and side extension of detached dwelling

Type House extension
Status Registered
Date 06 Oct 2025
Plan thumbnail

Rebuild and enlargement of rear extension of ancillary retail space for conversion to 1no one bedroom self-contained dwelling (C3).

Type House extension
Status Registered
Date 16 Dec 2025
Plan thumbnail

Conversion of existing Unit 9 to office use (E). Provision of new obscure glazed windows within existing openings.

Type Change of use
Status Registered
Date 08 Dec 2025
Plan thumbnail

Prior approval for change of use at second floor from commercial, business and service (E) to form 1no two bedroom residential flat (C3).

Type Change of use
Status Registered
Date Last month
Plan thumbnail

Conversion from storage (B8) to residential to create a two-bedroom dwellinghouse (C3). Roof alterations incorporating 2no. side dormers and...

Type Change of use
Status Registered
Date Last month
Plan thumbnail

Erection of rear extension at first floor level to form a part two-storey, part one-storey, rear extension. Raised height of existing rear e...

Type House extension
Status Registered
Date 19 days ago
Plan thumbnail

Alterations to existing 10no person house in multiple occupation (Sui Generis) with erection of single storey rear extensions and conversion...

Type House extension
Status Registered
Date Last month

Erection of single storey rear extension with flat roof.

Type House extension
Status Registered
Date 11 Aug 2025

Change of use from single dwelling (C3) to flexible use as dwelling house or a small house in multiple occupation (C3/C4). (Retrospective)

Type Change of use
Status Registered
Date 27 May 2025
Plan thumbnail

Demolition of existing Public House and erection of 10no. new dwellings (C3) consisting of 5no. townhouses and 5no. flats in two blocks of t...

Type New housing
Status Registered
Date 07 Oct 2025
Plan thumbnail

Erection of two storey front extension, roof extension to existing flat roof to form pitched roof, single storey side extension and revised ...

Type House extension
Status Registered
Date Last month
Plan thumbnail

Change of use and conversion of existing orthodontic dental surgery (E) and 1no residential flat (C3) to form 2no residential flats (C3).

Type Change of use
Status Registered
Date Last month
Plan thumbnail

Internal alterations to facilitate the change of use and conversion of existing orthodontic dental surgery (E) and 1no residential flat (C3)...

Type Change of use
Status Registered
Date Last month
Plan thumbnail

Regularisation of existing remodelled dwelling including erection of single storey rear extension and landscaping to front and rear parts of...

Type House extension
Status Registered
Date 26 days ago
Plan thumbnail

Demolition of the existing buildings and the erection of a new five-storey building plus basement to provide two Class E flexible units and ...

Type Commercial
Status Registered
Date 21 Oct 2024
Plan thumbnail

Demolition of existing dwelling and erection of three storey replacement dwelling (C3). Associated landscaping, new boundary wall and gates ...

Type New housing
Status Awaiting decision
Date 25 Nov 2024

Erection of 29no dwellings (C3) with associated access road, parking courts and landscaping.

Type New housing
Status Registered
Date Last month

Erection of two storey rear extension and part conversion of ground floor shop (Class E) to form 1no dwelling (C3), with alterations to shop...

Type House extension
Status Registered
Date Last month

Erection of one new dwelling (C3) to the rear of the site.

Type New housing
Status Registered
Date 06 Feb 2025

Redevelopment to provide office space and 16 residential units, retaining ground-floor retail.

Type Commercial
Status Registered
Date 24 Dec 2024

Outline application for erection of nine houses (C3), access reserved.

Type New housing
Status Registered
Date 03 Feb 2025

Demolition and erection of new three-storey building comprising seven flats with six car spaces.

Type New housing
Status Awaiting decision
Date 10 Mar 2025

Erection of two residential blocks incorporating community space and landscaped public frontage; 36 flats.

Type New housing
Status Awaiting decision
Date 26 Feb 2025

Part-retrospective erection of a two-storey detached dwelling with basement to the rear.

Type New housing
Status Registered
Date 24 Feb 2025

Redevelopment to provide co-working office space, three apart-hotel units and four residential units.

Type Commercial
Status Registered
Date 31 Mar 2025

Erection of a two-storey, three-bedroom detached dwelling to side of existing property.

Type New housing
Status Awaiting decision
Date 24 Jun 2025

Reserved matters for 14 two- and three-bedroom houses with associated parking and access changes.

Type Approval of reserved matters
Status Registered
Date 18 Jun 2025

Convert basement flat and rear store rooms to form two residential flats (net gain one).

Type Change of use
Status Registered
Date 01 Jul 2025

Convert basement flat and rear store rooms to form two residential flats (net gain one).

Type Change of use
Status Registered
Date 01 Jul 2025

Demolish farm buildings and stables; outline for 20 dwellings with parking and landscaping.

Type New housing
Status Registered
Date 25 Jun 2025

Change of use to one dwelling with roof extension, terrace, shopfront replacement, and associated works.

Type Change of use
Status Registered
Date 11 Jun 2025

Change of use from jewellery shop (Class E) to public house/wine bar (Sui Generis).

Type Change of use
Status Registered
Date 16 Jul 2025

Part-retrospective single-storey rear extension, ductwork replacement, shopfront alterations and courtyard openings.

Type House extension
Status Registered
Date 13 Jun 2025

Demolition of existing house and erection of one three-bedroom dwelling (C3).

Type Demolition
Status Registered
Date 06 Jun 2025

Change of use of public house to form two dwellings with associated alterations.

Type Change of use
Status Registered
Date 04 Jul 2025

Remodelling with two-storey rear extension, side extension with garage, balcony, porch and fenestration changes.

Type House extension
Status Awaiting decision
Date 30 Jul 2025

Amalgamation of two residential units into one single dwelling; various alterations and restorative works.

Type Change of use
Status Registered
Date 17 Jul 2025

Convert basement into three two-bedroom self-contained flats with lightwells.

Type Change of use
Status Registered
Date 26 Aug 2025

Demolition of existing garages and erection of 6no. two-storey dwellinghouses (C3), including associated landscaping and relocation of exist...

Type New housing
Status Registered
Date 22 Aug 2025

Erection of a two storey detached dwellinghouse with attic accommodation (C3).

Type New housing
Status Registered
Date 28 Aug 2025

Part two/three-storey rear extension providing multi-use areas and 3 self-contained residential units with external lift.

Type House extension
Status Registered
Date 19 Aug 2025

Refurbishment of existing office building, reconstruction of roof including replacement dormers and rooflights to roof, replacement zinc roo...

Type Commercial
Status Registered
Date 09 Oct 2025

Convert first-floor retail to residential; retain one flat and create two new flats.

Type Change of use
Status Registered
Date 08 Oct 2025

Convert first-floor retail to residential; retain one flat and create two new flats.

Type Change of use
Status Registered
Date 08 Oct 2025

Alterations creating two office units and eight flats, with façade repairs and rooftop solar PV.

Type Change of use
Status Registered
Date 06 Oct 2025

Rear single-storey basement and ground floor extensions, roof dormer, and conversion from two units to three flats.

Type House extension
Status Registered
Date 17 Oct 2025

Prior approval to add one storey above Class E unit to create two residential flats.

Type New housing
Status Awaiting decision
Date 15 Oct 2025

Conversion of part of ancillary retail area on first floor (Class E), and erection of two storey flat roof extension above, to create 1no. s...

Type New housing
Status Awaiting decision
Date 15 Oct 2025

Convert public house and maisonette into five flats with associated alterations.

Type Change of use
Status Registered
Date 14 Oct 2025

Change of Use from Dwelling House (C3) to Large thirteen (13) bed House in Multiple Occupation (Sui Generis)

Type Change of use
Status Registered
Date 08 Oct 2025

Change of use from hotel (Class C1) to house in multiple occupation (Sui Generis) (Description Change).

Type Change of use
Status Registered
Date 20 Oct 2025

Change of use from 5no bedroom dwellinghouse (Use Class C3) to 7no double bedroom, 14no person house in multiple occupation (Sui-Generis) wi...

Type Change of use
Status Awaiting decision
Date 02 Oct 2025

Convert commercial office to 2 residential flats with rear extension and shopfront alterations.

Type Change of use
Status Registered
Date 11 Sep 2025

Change of use to allow dwellinghouse or three-bedroom small HMO for up to four occupants.

Type Change of use
Status Awaiting decision
Date 06 Nov 2025

Hip to gable room in the roof conversion with side dormer, rooflights and balcony. Wood stove flue. Built up felt flat roof to replace exist...

Type House extension
Status Registered
Date 06 Nov 2025

Redevelopment to provide four dwelling houses.

Type New housing
Status Registered
Date 04 Nov 2025

Erection of 1no three bedroom dwelling (C3) to replace existing double garage, with new boundary fence to divide site. Alterations to existi...

Type New housing
Status Registered
Date 20 Oct 2025

Change use from three-bedroom dwelling to seven-person HMO across second and third floors.

Type Change of use
Status Awaiting decision
Date 14 Oct 2025

Erect two-storey dwellinghouse with five bedrooms.

Type New housing
Status Registered
Date 14 Nov 2025

Outline mixed-use development including up to 1,062 homes, offices, sports facilities, shops, surgery and landscaping.

Type New housing
Status Registered
Date 11 Nov 2025

Mansard roof extension to create two flats and façade alterations.

Type House extension
Status Registered
Date 31 Oct 2025

Change of use from dwelling (C3) to 4-bedroom small HMO (C4).

Type Change of use
Status Registered
Date 29 Oct 2025

Demolition of existing bungalow and erection of a 4no bedroom detached dwelling.

Type New housing
Status Registered
Date 20 Oct 2025

Change of use of upper floors from office to create eight flats, with façade repairs and rooftop solar.

Type Change of use
Status Registered
Date 06 Oct 2025

Change of use of single dwelling (C3) to small house in multiple occupation (C4).

Type Change of use
Status Registered
Date 01 Oct 2025

External alterations to implement conversion of commercial (E) to five dwellinghouses (C3).

Type Change of use
Status Registered
Date 30 Sep 2025

Convert offices (basement to third floor) to five flats, including installing rear French doors.

Type Change of use
Status Registered
Date 22 Sep 2025

Demolition of garage block and erection of three single-storey detached houses.

Type Demolition
Status Awaiting decision
Date 25 Nov 2025

Restoration, renovation, part-demolition works and extensions to The Hippodrome to create a new mixed use development including multi-format...

Type Mixed use
Status Registered
Date 06 Nov 2025

Change of use from Class C3 (single maisonette) to Class C4 (House in Multiple Occupation) for up to 4 occupants, including associated inter...

Type Change of use
Status Registered
Date 24 Nov 2025

Outline (access only) for demolition and construction of 30 dwellings: 18 houses and 12 flats.

Type New housing
Status Registered
Date 19 Nov 2025

Erection of a two-storey attached dwellinghouse (C3) and associated works.

Type New housing
Status Awaiting decision
Date 18 Nov 2025

Conversion and extension to provide eleven temporary accommodation flats with landscaping and storage.

Type New housing
Status Registered
Date 04 Nov 2025

Convert existing office building to 3 self-contained flats with roof extension and associated alterations.

Type Change of use
Status Registered
Date 11 Dec 2025

Prior approval for the erection of a single storey rear extension, which would extend beyond the rear wall of the original house by 5.0m, fo...

Type House extension
Status Registered
Date 10 Dec 2025

Change of use of from a small house in multiple occupation (C4) to a large house in multiple occupation (sui generis) for eight occupants an...

Type Change of use
Status Registered
Date 08 Dec 2025

Prior approval for the erection of a single storey rear extension, which would extend beyond the rear wall of the original house by 5.0m, fo...

Type House extension
Status Registered
Date 08 Dec 2025

Convert nursery (D1) into 3 two-bed and 1 one-bed flats, with external alterations.

Type Change of use
Status Registered
Date 24 Nov 2025

Demolition of existing garage and erection of replacement side extension, ground and first floor rear extension and hip-to-gable loft conver...

Type House extension
Status Registered
Date 18 Dec 2025

Alterations to facilitate change of use from 5no house in multiple occupation bedsits to 1no flat (Class C3) with insertion of 2no rooflight...

Type Change of use
Status Registered
Date 17 Dec 2025

Change of use from 5no house in multiple occupation bedsits to 1no flat (Class C3), with insertion of 2no rooflights.

Type Change of use
Status Registered
Date 17 Dec 2025

Change of use from existing visitor accommodation (C3) to flexible use as 6no person/bedroom small house in multiple occupation (C4) or visi...

Type Change of use
Status Registered
Date 16 Dec 2025

Erection of an additional storey to create 4no. new flats (C3), and new cycle shelter.

Type New housing
Status Registered
Date 15 Dec 2025

Demolition of existing building and erection of 5no three bedroom dwellings (C3).

Type New housing
Status Registered
Date 09 Dec 2025

Internal alterations to facilitate conversion from a small house in multiple occupation (C4) to a single flat (C3).

Type Change of use
Status Registered
Date 04 Dec 2025

Erection of single storey side extension to ground floor flat and removal of staircase and platform to rear with revised fenestration.

Type House extension
Status Registered
Date 04 Dec 2025

Change of use from commercial (E) to seven flats (4x2-bed, 2x1-bed, 1 studio); retain fire escapes.

Type Change of use
Status Registered
Date 20 Oct 2025

Erect two-storey residential annex with metal cladding and two terraces with glass balustrades.

Type House extension
Status Registered
Date 03 Sep 2025

Self-containment of the first and second floor and change of use from office (E) to residential to create 2-bed flat (C3).

Type Change of use
Status Registered
Date Last month

Prior notification to demolish redundant former residential building and two derelict garages on Southern Water land.

Type Demolition
Status Registered
Date 16 Dec 2025

Subdivision of existing plot and erection of 1no new residential dwelling (Use Class C3).

Type New housing
Status Registered
Date 15 Dec 2025

Demolition of three adjacent garages and erection of a part single storey, part two storey one bedroom dwelling (C3).

Type Demolition
Status Registered
Date 09 Dec 2025

Change of use from residential unit (C3) to mixed use as residential unit/house in multiple occupation (Sui Generis) for up to 8no occupiers...

Type Change of use
Status Registered
Date 09 Dec 2025

Convert Flats 5 and 6 into a single duplex, extend rear dormer and alter windows and terrace.

Type Change of use
Status Registered
Date 09 Dec 2025

Erection of 2no. two-storey terraced houses.

Type New housing
Status Registered
Date 06 Oct 2025

Prior approval for the erection of a single storey rear extension, which would extend beyond the rear wall of the original house by 4.60m, f...

Type House extension
Status Registered
Date Last month

Demolition of garage and division of plot with erection of new two bedroom house with own rear garden and shared driveway.

Type New housing
Status Registered
Date 23 Dec 2025

Change of use from dwellinghouse (C3) to flexible use as dwellinghouse/short-term holiday let (C3/Sui Generis). (Retrospective)

Type Change of use
Status Registered
Date 16 Dec 2025

Conversion from single dwellinghouse (C3) to create 3no. self-contained flats (C3). Erection of single-storey rear extension, addition of 2n...

Type Change of use
Status Registered
Date 15 Dec 2025

Prior approval for the erection of a single storey rear extension, which would extend beyond the rear wall of the original house by 4.98m, f...

Type House extension
Status Registered
Date Last month

Change of use from six bedroom house in multiple occupation (C4) to residential (C3) comprising 4no one bedroom flats and 3no studio flats (...

Type Change of use
Status Registered
Date Last month

Change of use from residential dwelling (C3) to 5no person house in multiple occupation (C4), with roof alterations incorporating hip to gab...

Type Change of use
Status Registered
Date 19 Dec 2025

Erection of 1no three storey, four-bedroom small house in multiple occupation for up to 5no persons (Use Class C4) fronting Ethel Street (pa...

Type New housing
Status Registered
Date 19 Dec 2025

Prior approval for the erection of a single storey rear extension, which would extend beyond the rear wall of the original house by 4.0m, fo...

Type House extension
Status Registered
Date 09 Dec 2025

Erection of a detached, two-storey dwellinghouse (C3) to rear, with new boundary treatment and pedestrian access.

Type New housing
Status Registered
Date 11 Sep 2025

Change of use from public house (Sui Generis) to mixed use of public house and health spa (Sui Generis).

Type Change of use
Status Awaiting decision
Date 08 Sep 2025

Change use of first–third floors (E) to create three self-contained flats.

Type Change of use
Status Registered
Date 20 Nov 2025

Conversion of a single dwelling house into a 1no 2 bedroom flat and a 1no bedroom flat with glazed double doors to replace existing window t...

Type Change of use
Status Registered
Date 24 Nov 2025

Prior approval for the erection of a single storey rear extension, which would extend beyond the rear wall of the original house by 4.50m, f...

Type House extension
Status Registered
Date 02 Dec 2025

Prior approval for the erection of a single storey rear extension, which would extend beyond the rear wall of the original house by 3.79m, f...

Type House extension
Status Awaiting decision
Date 01 Dec 2025

Change of use of ground floor office to create four flats with side extension, rooflights and cycle storage.

Type Change of use
Status Registered
Date 06 Oct 2025

Re-modelling of existing bungalow with front and rear parapett walled front / rear extensions, hip to gable roof extensions with front and r...

Type House extension
Status Awaiting decision
Date 23 Oct 2025

Conversion of two flats into a single dwelling (C3).

Type Change of use
Status Registered
Date 29 Oct 2025

Convert office building to seven self-contained flats with balconies and cycle parking.

Type Change of use
Status Registered
Date 28 Oct 2025

Alterations and extensions to existing large house in multiple occupation (sui generis) to facilitate an increase occupancy levels to 13no r...

Type House extension
Status Awaiting decision
Date 27 Oct 2025

Change of use from existing 6no bedroom mixed use single dwelling/house in multiple occupation (C3/C4) to 7no bedroom large house in multipl...

Type Change of use
Status Registered
Date 05 Nov 2025

Display of 1no externally-illuminated fascia sign, 1no externally-illuminated traditional hanging sign, and 2no internally illuminated menu ...

Type Advertisement
Status Registered
Date 04 Nov 2025

Convert upper and lower ground floor flats into one maisonette and install rear doors.

Type Change of use
Status Registered
Date 04 Nov 2025

Side and roof extension to provide three self-contained flats above retained ground-floor public house.

Type House extension
Status Registered
Date 13 Nov 2025

Glazed entrance over 2 storeys replacing existing windows at first and second floors, removal of garage door and replacement with new render...

Type House extension
Status Registered
Date 21 Nov 2025

Convert first-floor retail to two one-bedroom self-contained flats; new front entrance and rear window alterations.

Type Change of use
Status Decided
Date 02 Oct 2025

Change first-floor ancillary retail space to form three residential dwellings; replace side door.

Type Change of use
Status Decided
Date 05 Aug 2025

Convert one residential flat into two separate residential flats.

Type Change of use
Status Decided
Date 04 Aug 2025

Combine two self-contained flats into a single dwellinghouse.

Type Change of use
Status Decided
Date 04 Aug 2025

Change of use from community housing office (F2) to three residential dwellings with extensions.

Type Change of use
Status Decided
Date 11 Aug 2025

Prior approval to convert nursery (E) to six self-contained residential flats.

Type Change of use
Status Decided
Date 11 Aug 2025

Change of use from single dwelling (C3) to 6-bed small house in multiple occupation (C4) with alterations.

Type Change of use
Status Withdrawn
Date 15 Aug 2025

Change ground-floor commercial to two self-contained flats.

Type Change of use
Status Decided
Date 28 Aug 2025

Convert commercial space to eight residential flats.

Type Change of use
Status Decided
Date 26 Aug 2025

Convert nine-bed HMO to single dwelling with minor external alterations.

Type Change of use
Status Decided
Date 26 Aug 2025

Convert two self-contained flats into a single dwelling; replace two front doors with one hardwood door.

Type Change of use
Status Decided
Date 29 Aug 2025

Change of use from commercial (E) to residential (C3) to form two flats.

Type Change of use
Status Decided
Date 11 Sep 2025

Ground-floor commercial (E) to residential (C3) to form part of existing dwellinghouse.

Type Change of use
Status Withdrawn
Date 18 Sep 2025

Convert three-bedroom maisonette (C3) to three-bedroom small HMO (C4).

Type Change of use
Status Decided
Date 17 Sep 2025

Change of use from offices (E) to two one-bedroom residential flats (C3).

Type Change of use
Status Decided
Date 12 Sep 2025

Change first-floor office to one-bed flat with ground-floor single-storey rear extension.

Type Change of use
Status Decided
Date 22 Sep 2025

Change of use from dwelling (C3) to six-bedroom small house in multiple occupation (C4).

Type Change of use
Status Decided
Date 30 Sep 2025

Conversion of single dwelling to four flats with rear extensions, dormer and rooflights.

Type Change of use
Status Decided
Date 30 Sep 2025

Demolition and redevelopment to provide residential units with amenity, parking, integrated public realm and access.

Type New housing
Status Decided
Date 05 Jun 2025

Prior approval to change first-floor commercial (E) to two one-bedroom residential flats (C3).

Type Change of use
Status Decided
Date 02 Jun 2025

Demolition of garages and erection of two residential units.

Type Demolition
Status Decided
Date 01 Jul 2025

Second-floor/upwards extension with dormers to provide one additional residential flat (C3).

Type House extension
Status Decided
Date 23 Jul 2025

Façade remediation to multiple residential blocks replacing cladding, render, brickwork and spandrel panels with non-combustible systems.

Type New housing
Status Decided
Date 30 Jul 2025

Remove pitched roof; add two storeys to create three two-bedroom flats with solar panels and cycle storage.

Type New housing
Status Decided
Date 28 Jul 2025

Remove pitched roof; add one storey to form two two-bedroom flats with solar panels and cycle storage.

Type House extension
Status Decided
Date 28 Jul 2025

Prior approval to convert commercial (E) to two self-contained residential flats (C3).

Type Change of use
Status Decided
Date 17 Oct 2025

Prior approval to change use from commercial (E) to one dwelling (C3).

Type Change of use
Status Decided
Date 13 Jan 2025

Demolish existing house and erect four‑storey building providing seven residential units.

Type Demolition
Status Decided
Date 13 Jan 2025

Erect six flats (1 studio, 2 one-bed, 3 two-bed) and five garages/stores replacing existing garages.

Type New housing
Status Decided
Date 28 Jan 2025

Change use of ground, first and second floors to create four self-contained flats.

Type Change of use
Status Decided
Date 27 Jan 2025

Add an additional storey above Class E unit to create three residential flats.

Type New housing
Status Withdrawn
Date 22 Jan 2025

Change use to create 16 one-bed flats (10 one-person, 6 two-person).

Type Change of use
Status Decided
Date 22 Jan 2025

Demolish offices/storage; erect three new dwellinghouses (C3).

Type Demolition
Status Decided
Date 30 Jan 2025

New teaching building and redevelopment including student boarding accommodation and staff residential support at school site.

Type New housing
Status Decided
Date 30 Jan 2025

Part change of use from commercial (E) to two one-bed dwellings, retaining ground-floor commercial unit.

Type Change of use
Status Decided
Date 29 Jan 2025

Change of use and conversion of commercial premises (E) to two residential flats with new fenestration.

Type Change of use
Status Decided
Date 18 Feb 2025

Change of use of retail unit (E) to two residential flats, rear infill extension and shopfront alterations.

Type Change of use
Status Decided
Date 18 Feb 2025

Change use of commercial building (E) to create five dwellings with parking and courtyards.

Type Change of use
Status Decided
Date 21 Feb 2025

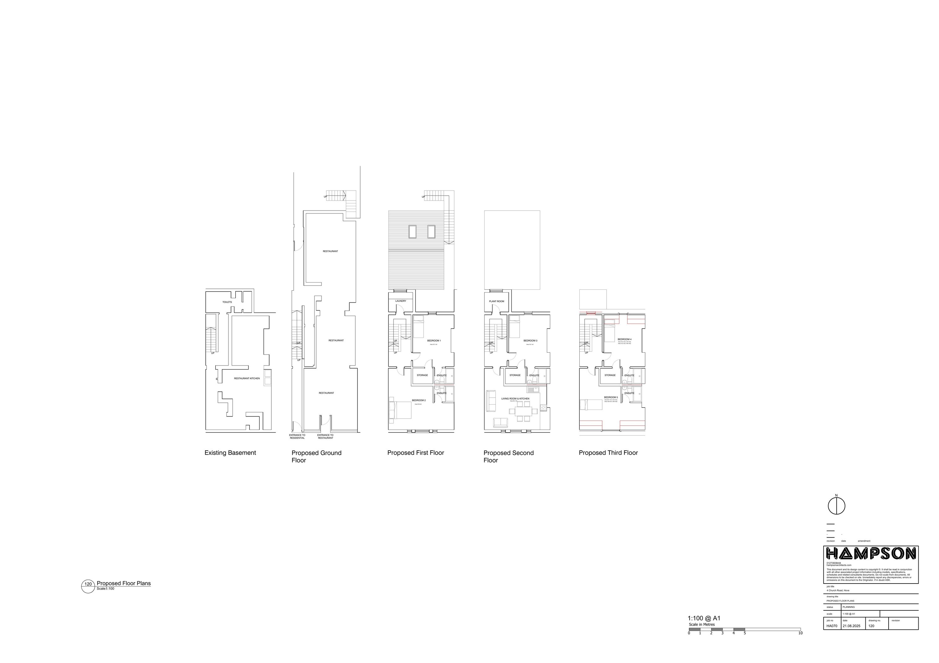
Convert restaurant (E) to three self-contained flats and one 5-bed large HMO (sui generis).

Type Change of use
Status Withdrawn
Date 21 Feb 2025

Convert existing flat and shop into a single 6-bedroom small HMO (C4).

Type Change of use
Status Decided
Date 21 Feb 2025

Change of use from Class E shop to two Class C3 flats with fenestration alterations.

Type Change of use
Status Decided
Date 11 Mar 2025

Erect single-storey detached residential annex to rear of main dwelling.

Type House extension
Status Decided
Date 17 Apr 2025