← Back to Brighton & Hove City Council

Status

Registered Other
Received
30 Jan 2025
New dwellings
0

Full Proposal

Alterations to wall including: re-alignment of railings; attachment of access gates and railings; extension of existing wall; and proposed substation structure abutting wall

Documents

APPLICATION FORM - WITHOUT PERSONAL DATA
Application Form
Not archived · Council Link
ARBORICULTURAL IMPACT ASSESSMENT (CONVENT SITE)
Supporting Document(s)
Not archived · Council Link
ARBORICULTURAL IMPACT ASSESSMENT (ST MARYS SITE)
Supporting Document(s)
Not archived · Council Link
ARCHAEOLOGICAL DESK-BASED ASSESSMENT
Supporting Document(s)
Not archived · Council Link
BIODIVERSITY GAIN PLAN
Supporting Document(s)
Not archived · Council Link
BIODIVERSITY METRIC CALCULATION TOOL
Supporting Document(s)
Not archived · Council Link
BIODIVERSITY STATEMENT
Supporting Document(s)
Not archived · Council Link
CAG MINUTES
Committee Report
Not archived · Council Link
CAG OUTCOMES
Committee Report
Not archived · Council Link
COMMUNITY INFRASTRUCTURE LEVY - COMPLETED FORM
Supporting Document(s)
Not archived · Council Link
CONSTRUCTION ENVIRONMENTAL MANAGEMENT PLAN
Supporting Document(s)
Not archived · Council Link
CONVENT C3_DEMOLITION FLOOR PLANS
Drawing(s)
Not archived · Council Link
CONVENT DEMOLITION FIRST FLOOR
Drawing(s)
Not archived · Council Link
CONVENT DEMOLITION GROUND FLOO
Drawing(s)
Not archived · Council Link
CONVENT DEMOLITION ROOF PLAN
Drawing(s)
Not archived · Council Link
CONVENT DEMOLITION SECOND FLOOR
Drawing(s)
Not archived · Council Link
CONVENT DEMOLITION SOUTERREIN
Drawing(s)
Not archived · Council Link
CONVENT EXISTING & PROPOSED NORTH ELEVATION
Drawing(s)
Not archived · Council Link
CONVENT EXISTING & PROPOSED SOUTH ELEVATION
Drawing(s)
Not archived · Council Link
CONVENT EXISTING & PROPOSED SOUTH ELEVATION
Drawing(s)
Not archived · Council Link
CONVENT EXISTING & PROPOSED WEST ELEVATION
Drawing(s)
Not archived · Council Link
CONVENT EXISTING & PROPOSED WEST SECTION A-A.
Drawing(s)
Not archived · Council Link
Drawing(s)
Archived · Council Link
CONVENT GENERAL ARRANGEMENT PLAN 1/2
Drawing(s)
Not archived · Council Link
CONVENT HARDSCAPE PLAN
Drawing(s)
Not archived · Council Link
CONVENT HOUSE 01 EXISTING GROUND FLOOR
Drawing(s)
Not archived · Council Link
CONVENT HOUSE 01 EXISTING SECOND FLOOR
Drawing(s)
Not archived · Council Link
CONVENT HOUSE 01 EXISTING SOUTERREIN
Drawing(s)
Not archived · Council Link
CONVENT HOUSE 01 PROPOSED GROUND FLOOR
Drawing(s)
Not archived · Council Link
CONVENT HOUSE 01 PROPOSED ROOF
Drawing(s)
Not archived · Council Link
CONVENT HOUSE 01_EXISTING & PROPOSED EAST ELEVATION
Drawing(s)
Not archived · Council Link
CONVENT HOUSE 01_EXISTING & PROPOSED NORTH ELEVATION 01
Drawing(s)
Not archived · Council Link
CONVENT HOUSE 01_EXISTING & PROPOSED NORTH ELEVATION 02
Drawing(s)
Not archived · Council Link
CONVENT HOUSE 01_EXISTING & PROPOSED SOUTH ELEVATION
Drawing(s)
Not archived · Council Link
CONVENT HOUSE 01_EXISTING & PROPOSED WEST ELEVATION
Drawing(s)
Not archived · Council Link
CONVENT HOUSE 01_PROPOSED FIRST FLOOR
Drawing(s)
Not archived · Council Link
CONVENT HOUSE 01_PROPOSED SOUTERREIN
Drawing(s)
Not archived · Council Link
CONVENT HOUSE 01_PROPOSED_SECOND FLOOR
Drawing(s)
Not archived · Council Link
CONVENT HOUSE 02 BUILDING SECTIONS
Drawing(s)
Not archived · Council Link
CONVENT HOUSE 02 EXISTING FIRST FLOOR
Drawing(s)
Not archived · Council Link
CONVENT HOUSE 02 PROPOSED GROUND FLOOR
Drawing(s)
Not archived · Council Link
CONVENT HOUSE 02 PROPOSED ROOF
Drawing(s)
Not archived · Council Link
CONVENT HOUSE 02 PROPOSED SOUTERREIN
Drawing(s)
Not archived · Council Link
CONVENT HOUSE 02_PROPOSED EAST & WEST ELEVATIONS
Drawing(s)
Not archived · Council Link
CONVENT HOUSE 02_PROPOSED FIRST FLOOR
Drawing(s)
Not archived · Council Link
CONVENT HOUSE 02_PROPOSED NORTH & SOUTH ELEVATION
Drawing(s)
Not archived · Council Link
CONVENT HOUSE 02_PROPOSED SECOND FLOOR
Drawing(s)
Not archived · Council Link
CONVENT LANDSCAPE MASTERPLAN
Drawing(s)
Not archived · Council Link
CONVENT LANDSCAPE SECTION 1/2
Drawing(s)
Not archived · Council Link
CONVENT LANDSCAPE SECTION 2/2
Drawing(s)
Not archived · Council Link
CONVENT LANDSCAPING EXISTING SITE
Drawing(s)
Not archived · Council Link
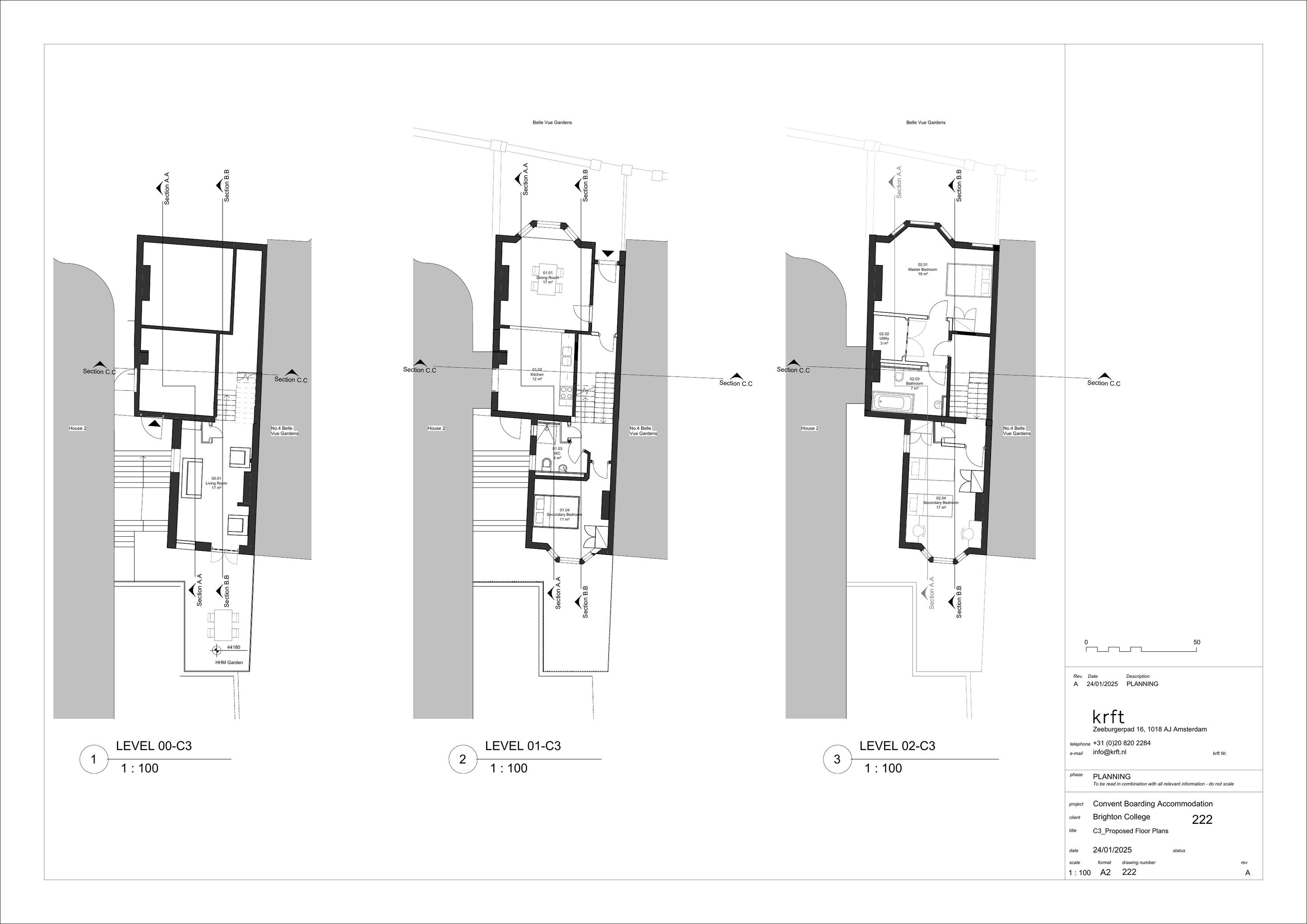
CONVENT PROPOSED C3 BUILDING SECTIONS
Drawing(s)
Not archived · Council Link
CONVENT PROPOSED SECTION A & B
Drawing(s)
Not archived · Council Link
Drawing(s)
Archived · Council Link
CONVENT TREE PLANTING & VEGETATION STRATEGY
Drawing(s)
Not archived · Council Link
COVERING LETTER WITH DRAWING & DOCUMENT LIST
Supporting Document(s)
Not archived · Council Link
DAYLIGHT AND SUNLIGHT ASSESSMENT
Supporting Document(s)
Not archived · Council Link
DESIGN AND ACCESS STATEMENT PART 1.1 TO 1.5
Supporting Document(s)
Not archived · Council Link
DESIGN AND ACCESS STATEMENT PART 11 TO 11.4.2
Supporting Document(s)
Not archived · Council Link
DESIGN AND ACCESS STATEMENT PART 11.4.2 TO 11.5.1
Supporting Document(s)
Not archived · Council Link
DESIGN AND ACCESS STATEMENT PART 11.5.1 TO 11.8
Supporting Document(s)
Not archived · Council Link
DESIGN AND ACCESS STATEMENT PART 12 TO 14.1
Supporting Document(s)
Not archived · Council Link
DESIGN AND ACCESS STATEMENT PART 2.1 TO 4.4
Supporting Document(s)
Not archived · Council Link
DESIGN AND ACCESS STATEMENT PART 5 TO 5.4.1
Supporting Document(s)
Not archived · Council Link
DESIGN AND ACCESS STATEMENT PART 5.4.4 TO 5.5
Supporting Document(s)
Not archived · Council Link
DESIGN AND ACCESS STATEMENT PART 5.5 TO 7.3
Supporting Document(s)
Not archived · Council Link
DESIGN AND ACCESS STATEMENT PART 8 TO 10.4
Supporting Document(s)
Not archived · Council Link
DESIGN AND ACCESS STATEMENT ST MARY?S & CONVENT- OUTLINE LANDSCAPE MAINTENANCE
Supporting Document(s)
Not archived · Council Link
DRAINAGE STRATEGY AND MAINTENANCE STATEMENT (CONVENT)
Supporting Document(s)
Not archived · Council Link
DRAINAGE STRATEGY AND MAINTENANCE STATEMENT (ST MARYS)
Supporting Document(s)
Not archived · Council Link
EASTERN ROAD HOUSES - EXISTING & PROPOSED ELEVATIONS
Drawing(s)
Not archived · Council Link
EASTERN ROAD HOUSES - EXISTING & PROPOSED SECTIONS
Drawing(s)
Not archived · Council Link
EASTERN ROAD HOUSES EXISTING FLOOR PLANS
Drawing(s)
Not archived · Council Link
ECOLOGICAL IMPACT ASSESSMENT
Supporting Document(s)
Not archived · Council Link
ENERGY STRATEGY (CONVENT)
Supporting Document(s)
Not archived · Council Link
ENERGY STRATEGY (ST MARYS)
Supporting Document(s)
Not archived · Council Link
GENERAL ARRANGEMENT PLAN 2/2
Drawing(s)
Not archived · Council Link
HERITAGE STATEMENT
Supporting Document(s)
Not archived · Council Link
HIGHWAYS PROPOSED OFF-SITE HIGHWAY WORKS LOADING BAY ? REFUSE VEHICLE BELLE VUE
Drawing(s)
Not archived · Council Link
HIGHWAYS PROPOSED VEHICULAR ACCESS BRISTOL GATE
Drawing(s)
Not archived · Council Link
LANDSCAPE SECTION 2/2
Drawing(s)
Not archived · Council Link
LOCATION PLAN
OS Extract
Not archived · Council Link
NOISE IMPACT ASSESSMENT
Supporting Document(s)
Not archived · Council Link
ONLINE COMMENT
Public Comment
Not archived · Council Link
ONLINE COMMENT
Public Comment
Not archived · Council Link
PLANNING STATEMENT (INCLUDING STATEMENT OF COMMUNITY INVOLVEMENT)
Supporting Document(s)
Not archived · Council Link
PRELIMINARY BREEAM ASSESSMENT (CONVENT)
Supporting Document(s)
Not archived · Council Link
PRELIMINARY BREEAM ASSESSMENT (ST MARYS)
Supporting Document(s)
Not archived · Council Link
PROPOSED OFF-SITE HIGHWAY WORKS LOADING BAY ? PUPIL PICK-UP/DROP OFF BELLE VUE G
Drawing(s)
Not archived · Council Link
PROPOSED VEHICULAR ACCESS EASTERN ROAD SWEPT PATH ANALYSIS
Drawing(s)
Not archived · Council Link
SCHOOL TRAVEL PLAN STATEMENT
Supporting Document(s)
Not archived · Council Link
Drawing(s)
Archived · Council Link
ST MARYS GENERAL ARRANGEMENT 1/2
Drawing(s)
Not archived · Council Link
ST MARYS GENERAL ARRANGEMENT 2/2
Drawing(s)
Not archived · Council Link
ST MARYS HARDSCAPE PLAN
Drawing(s)
Not archived · Council Link
ST MARYS LANDSCAPE MASTERPLAN
Drawing(s)
Not archived · Council Link
ST MARYS LANDSCAPE SECTION 1/2
Drawing(s)
Not archived · Council Link
ST MARYS LANDSCAPING EXISTING SITE
Drawing(s)
Not archived · Council Link
ST MARYS LEVEL 00 - GENERAL ARRANGEMENT
Drawing(s)
Not archived · Council Link
ST MARYS LEVEL 01 - GENERAL ARRANGEMENT
Drawing(s)
Not archived · Council Link
ST MARYS LEVEL 02 - GENERAL ARRANGEMENT
Drawing(s)
Not archived · Council Link
ST MARYS PORTAL AND SUBSTATION ENCLOSURE ELEVATIONS
Drawing(s)
Not archived · Council Link
ST MARYS PROPOSED NORTH & WEST ELEVATIONS
Drawing(s)
Not archived · Council Link
Drawing(s)
Archived · Council Link
ST MARYS PROPOSED SITE SECTIONS
Drawing(s)
Not archived · Council Link
ST MARYS PROPOSED SOUTH & EAST ELEVATIONS
Drawing(s)
Not archived · Council Link
ST MARYS ROOF GENERAL ARRANGEMENT
Drawing(s)
Not archived · Council Link
TOWNSCAPE AND VISUAL APPRAISAL
Supporting Document(s)
Not archived · Council Link
TRANSPORT STATEMENT
Supporting Document(s)
Not archived · Council Link
TREE PLANTING & VEGETATION STRATEGY
Drawing(s)
Not archived · Council Link
UTILITIES STATEMENT (CONVENT)
Supporting Document(s)
Not archived · Council Link
UTILITIES STATEMENT (ST MARYS)
Supporting Document(s)
Not archived · Council Link

Take Action

Make your voice heard. Authorities need to hear from people who support new homes.

✉️ Write Email in Support View on Council Portal