← Back to Brighton & Hove City Council

Status

Registered Demolition
Received
13 Aug 2025
New dwellings
0

Full Proposal

Demolition of 4no garages and erection of two storey detached dwelling house (C3) arranged over ground and first floors, conversion of adjacent non-attached garage to form ancillary studio space and any associated works.

Documents

APPLICATION FORM
Application Form
Not archived · Council Link
ARTISTS IMPRESSION - FRONT ELEVATION
Drawing(s)
Not archived · Council Link
BIODIVERSITY CHECKLIST
Supporting Document(s)
Not archived · Council Link
CAG MINUTES
Committee Report
Not archived · Council Link
CAG OUTCOMES
Committee Report
Not archived · Council Link
CERTIFICATE B
Application Form
Not archived · Council Link
CIL FORM
Supporting Document(s)
Not archived · Council Link
DESIGN, ACCESS & HERITAGE STATEMENT
Supporting Document(s)
Not archived · Council Link
ENVIRONMENTAL HEALTH COMMENTS
Consultee Comment
Not archived · Council Link
ENVIRONMENTAL HEALTH COMMENTS
Consultee Comment
Not archived · Council Link
EXISTING ELEVATIONS
Drawing(s)
Not archived · Council Link
Drawing(s)
Archived · Council Link
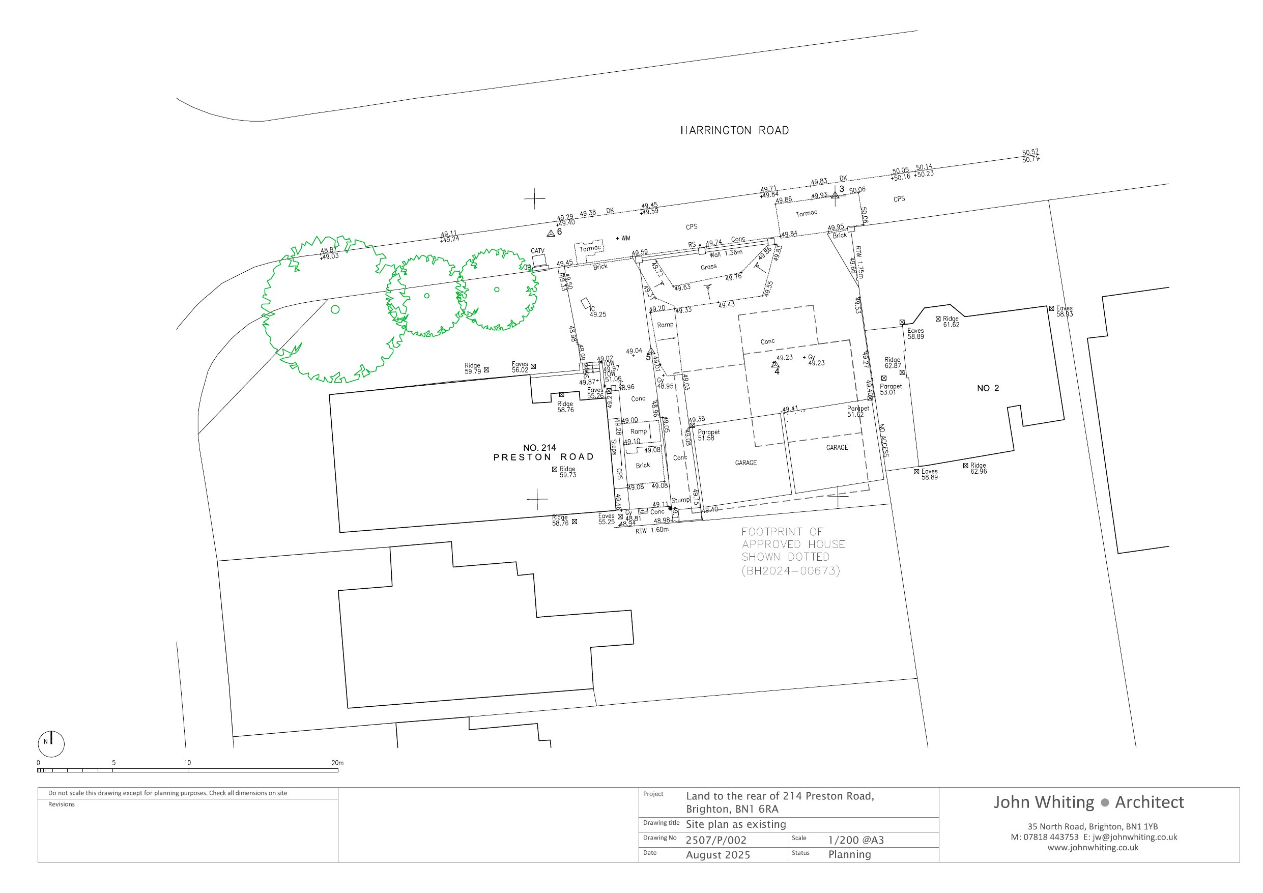
LOCATION & BLOCK PLANS
OS Extract
Not archived · Council Link
ONLINE COMMENT
Public Comment
Not archived · Council Link
ONLINE COMMENT
Public Comment
Not archived · Council Link
ONLINE COMMENT
Public Comment
Not archived · Council Link
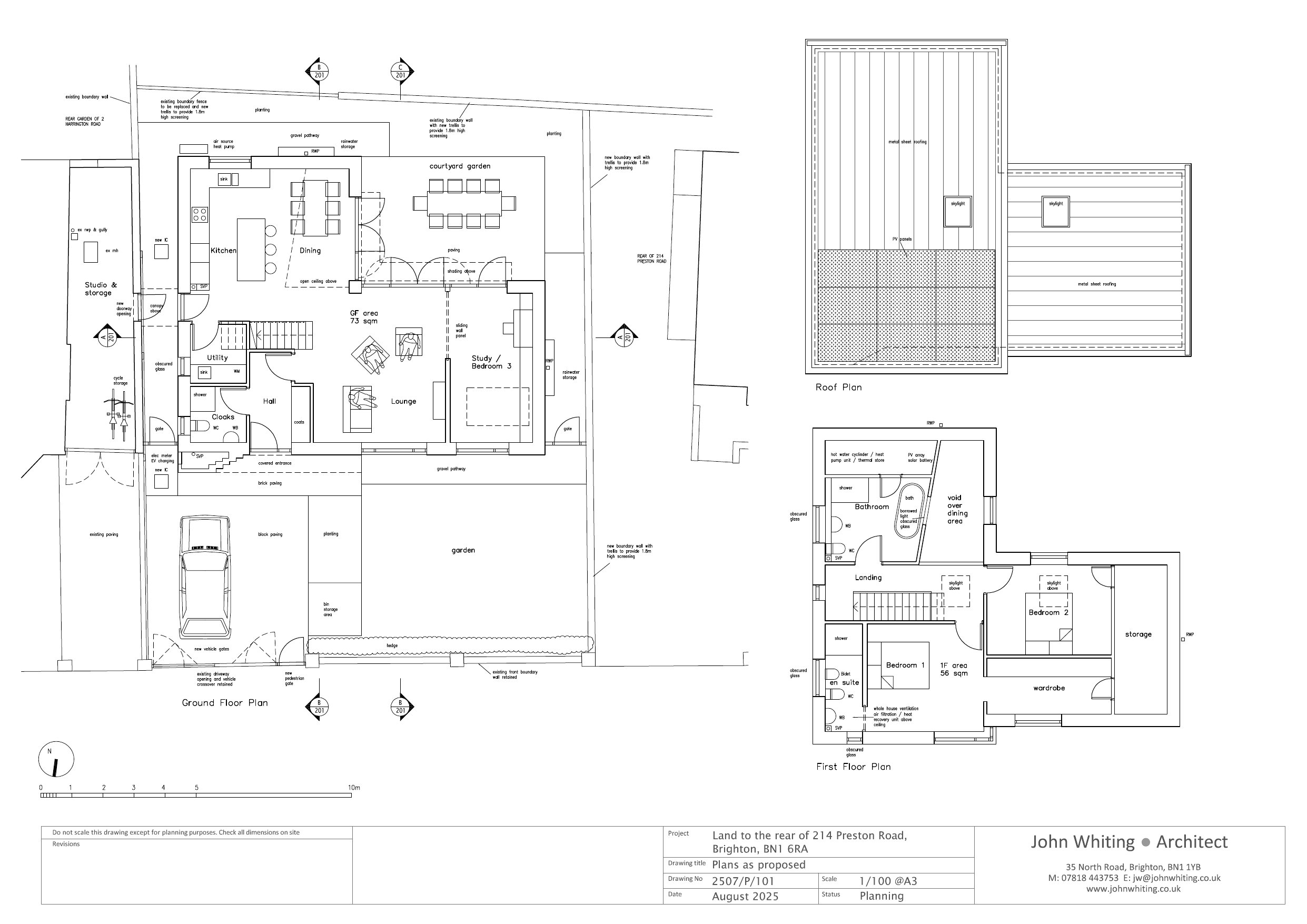
PROPOSED ELEVATION & SECTIONS
Drawing(s)
Not archived · Council Link
PROPOSED ELEVATIONS
Drawing(s)
Not archived · Council Link
Drawing(s)
Archived · Council Link
PROPOSED SECTIONS
Drawing(s)
Not archived · Council Link
Drawing(s)
Archived · Council Link

Take Action

Make your voice heard. Authorities need to hear from people who support new homes.

✉️ Write Email in Support View on Council Portal