← Back to Brighton & Hove City Council

Status

Registered New housing
Received
19 Aug 2025
New dwellings
4

Full Proposal

Erection of four storey 4no bedroom dwelling (C3) adjacent to existing dwelling incorporating new vehicular crossover.

Documents

APPLICATION FORM
Application Form
Not archived · Council Link
ARBORICULTURAL METHOD STATEMENT
Supporting Document(s)
Not archived · Council Link
BASELINE HABITAT PLAN
Supporting Document(s)
Not archived · Council Link
BIODIVERSITY CHECKLIST
Supporting Document(s)
Not archived · Council Link
BIODIVERSITY GAIN PLAN
Supporting Document(s)
Not archived · Council Link
BNG CONDITION SHEET
Supporting Document(s)
Not archived · Council Link
BNG METRIC
Supporting Document(s)
Not archived · Council Link
CIL FORM
Supporting Document(s)
Not archived · Council Link
EAST SUSSEX FIRE & RESCUE SERVICE COMMENTS
Consultee Comment
Not archived · Council Link
ENVIRONMENTAL HEALTH
Consultee Comment
Not archived · Council Link
EXISTING FRONT ELEVATION
Drawing(s)
Not archived · Council Link
EXISTING REAR & SOUTH SIDE ELEVATION
Drawing(s)
Not archived · Council Link
Drawing(s)
Archived · Council Link
HABITAT MANAGEMENT AND MONITORING PLAN
Supporting Document(s)
Not archived · Council Link
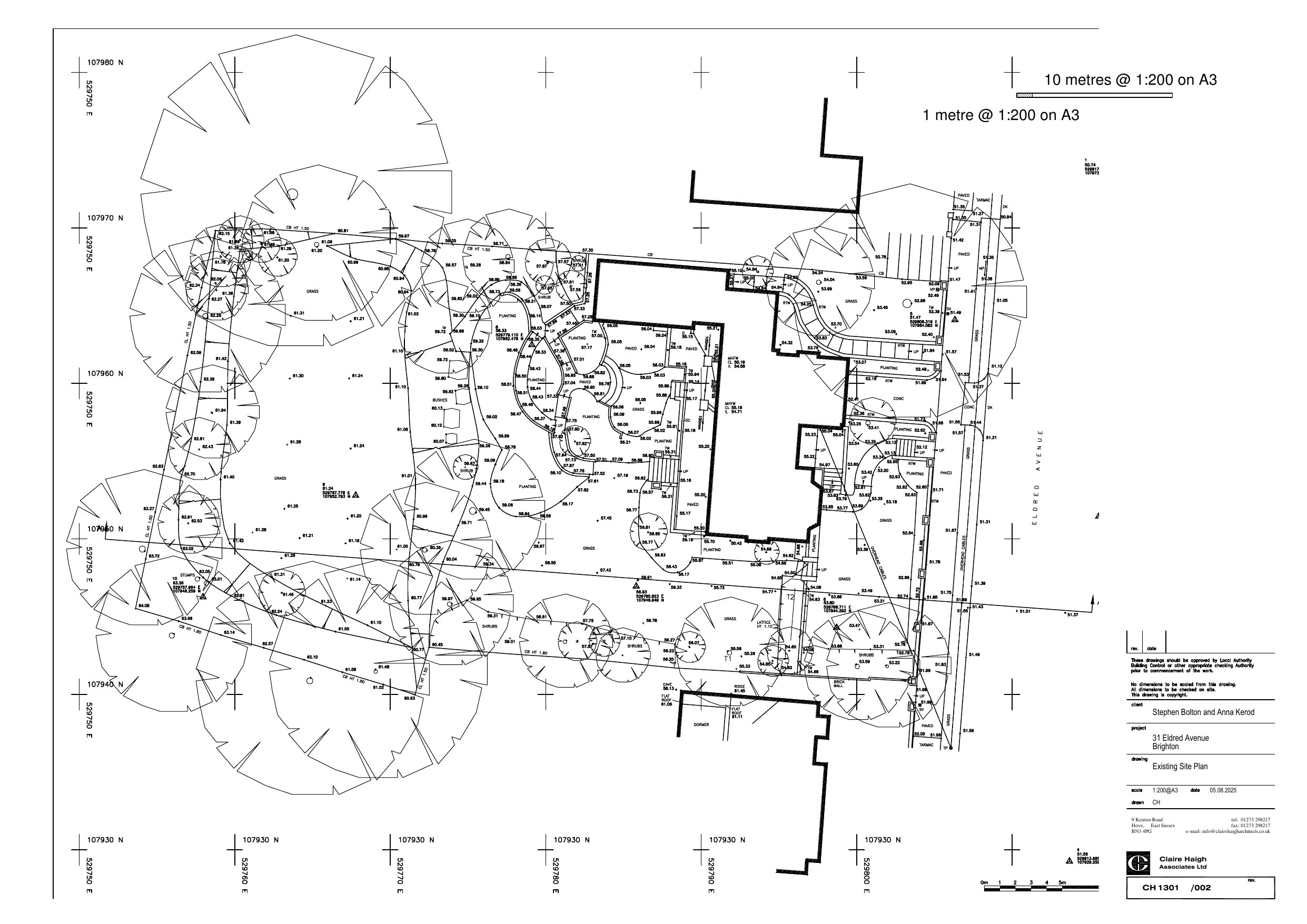
LOCATION & BLOCK PLANS
OS Extract
Not archived · Council Link
ONLINE COMMENT
Public Comment
Not archived · Council Link
ONLINE COMMENT
Public Comment
Not archived · Council Link
ONLINE COMMENT
Public Comment
Not archived · Council Link
ONLINE COMMENT
Public Comment
Not archived · Council Link
ONLINE COMMENT
Public Comment
Not archived · Council Link
ONLINE COMMENT
Public Comment
Not archived · Council Link
ONLINE COMMENT
Public Comment
Not archived · Council Link
ONLINE COMMENT
Public Comment
Not archived · Council Link
ONLINE COMMENT
Public Comment
Not archived · Council Link
ONLINE COMMENT
Public Comment
Not archived · Council Link
ONLINE COMMENT
Public Comment
Not archived · Council Link
ONLINE COMMENT
Public Comment
Not archived · Council Link
PLANNING STATEMENT
Supporting Document(s)
Not archived · Council Link
PRELIMINARY ECOLOGICAL APPRAISAL
Supporting Document(s)
Not archived · Council Link
PROPOSED FRONT ELEVATION
Drawing(s)
Not archived · Council Link
PROPOSED HABITAT PLAN
Supporting Document(s)
Not archived · Council Link
PROPOSED NORTH SIDE ELEVATION & SECTIONS
Drawing(s)
Not archived · Council Link
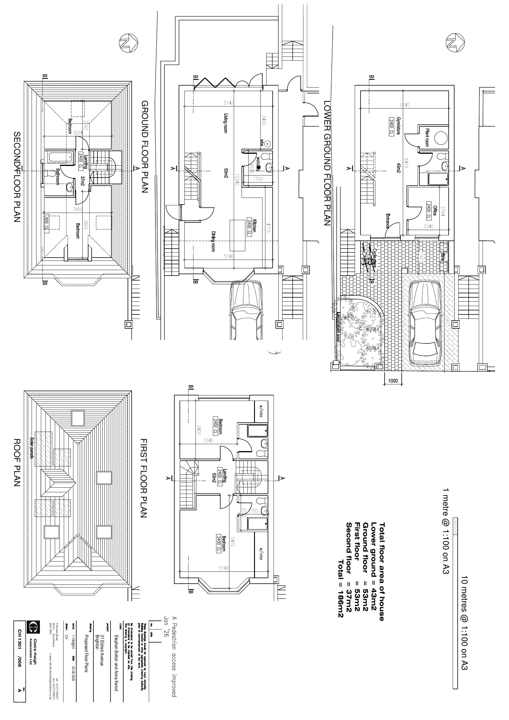
PROPOSED PLANS
Drawing(s)
Not archived · Council Link
Drawing(s)
Archived · Council Link
PROPOSED REAR & SOUTH SIDE ELEVATIONS
Drawing(s)
Not archived · Council Link
Drawing(s)
Archived · Council Link
Drawing(s)
Archived · Council Link
TRANSPORT
Consultee Comment
Not archived · Council Link
TREE CONSTRAINTS PLAN
Drawing(s)
Not archived · Council Link
TREE SCHEDULE
Supporting Document(s)
Not archived · Council Link

Take Action

Make your voice heard. Authorities need to hear from people who support new homes.

✉️ Write Email in Support View on Council Portal