← Back to Brighton & Hove City Council

Status

Awaiting decision Change of use
Received
19 Sep 2025
New dwellings
0

Summary

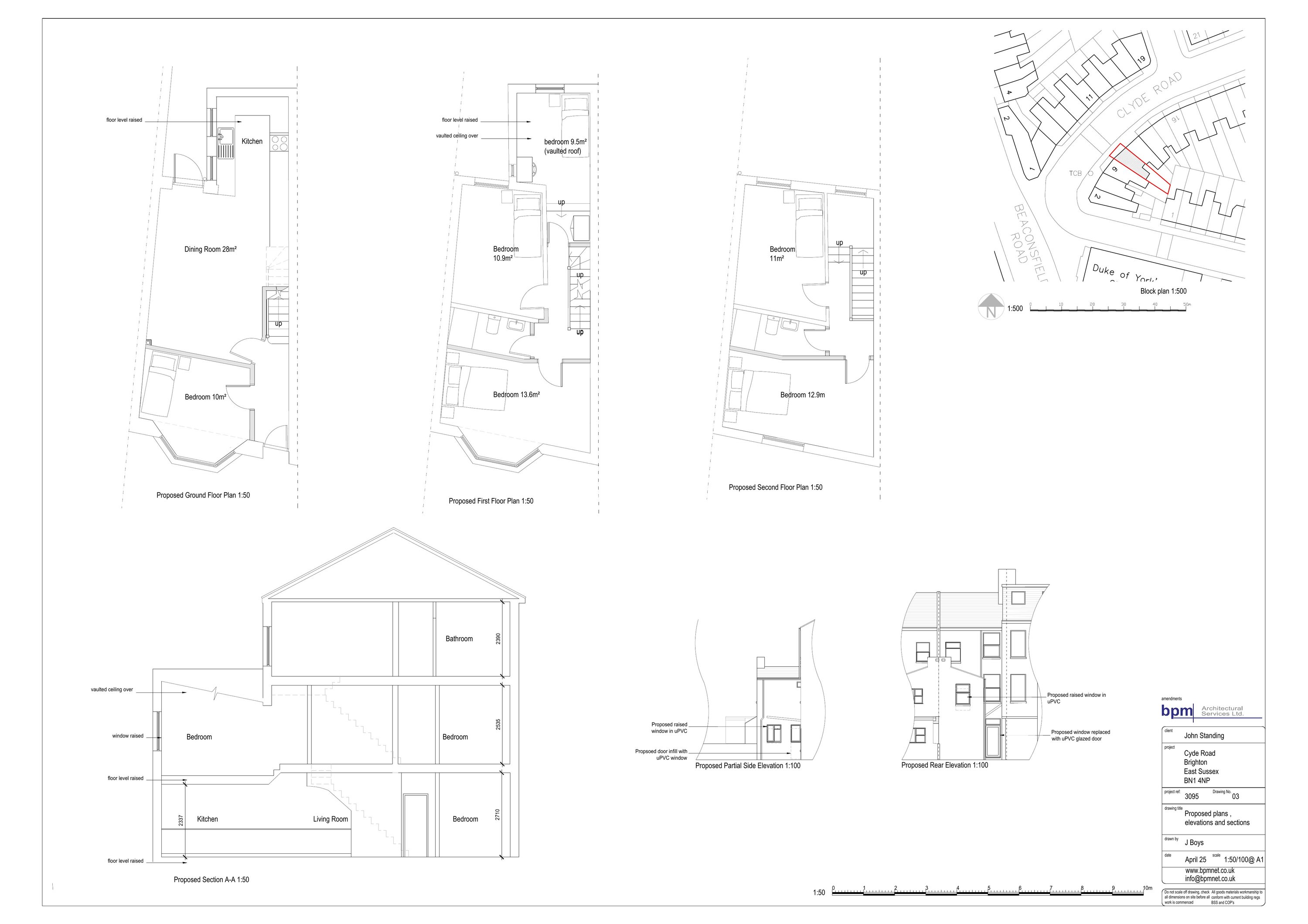
Flexible use as six-bed HMO or residential dwelling with associated rear fenestration alterations.

Full Proposal

Change of use from existing small house in multiple occupation (C4) to a flexible use as either six bedroom small house in multiple occupation (C4) or residential dwelling (C3) with associated fenestration alterations to the rear.

Documents

APPLICATION FORM
Application Form
Not archived · Council Link
BIODIVERSITY CHECKLIST
Supporting Document(s)
Not archived · Council Link
CIL FORM
Supporting Document(s)
Not archived · Council Link
EXISTING PLANS, ELEVATIONS & SECTION WITH LOCATION PLAN
Drawing(s)
Not archived · Council Link
ONLINE COMMENT
Public Comment
Not archived · Council Link
ONLINE COMMENT
Public Comment
Not archived · Council Link
PLANNING STATEMENT
Supporting Document(s)
Not archived · Council Link
POLICY
Consultee Comment
Not archived · Council Link
PRIVATE SECTOR HOUSING COMMENTS
Consultee Comment
Not archived · Council Link
TRANSPORT VERBAL COMMENT
Consultee Comment
Not archived · Council Link

Take Action

Make your voice heard. Authorities need to hear from people who support new homes.

✉️ Write Email in Support View on Council Portal