← Back to all authorities

Recent applications

Showing the most recent records stored for this authority (max 200).

Plan thumbnail

Demolition of existing dwelling (99 Church Street) and garages and workshops to rear. Construct 15 residential units comprising 5 dwellings ...

Type New housing
Status Registered
Date 24 Sep 2024
Plan thumbnail

Construction of 155 dwellings with associated open space and infrastructure (EIA development).

Type New housing
Status Registered
Date 28 Mar 2025
Plan thumbnail

Outline for residential development of up to 420 dwellings with open space and infrastructure.

Type New housing
Status Registered
Date 19 May 2025
Plan thumbnail

Outline application for construction of six new dwellings, access reserved.

Type New housing
Status Registered
Date 20 May 2025
Plan thumbnail

Change of use from serviced apartments (C1) to residential apartments (C3).

Type Change of use
Status Registered
Date 15 Jul 2025
Plan thumbnail

Retrospective change from B8 warehouse to B2 brewery with ancillary retail and tap room.

Type Change of use
Status Registered
Date 23 Jul 2025
Plan thumbnail

Demolish public house and construct six ground-floor commercial units and twenty residential units with parking and landscaping.

Type New housing
Status Registered
Date 04 Aug 2025
Plan thumbnail

Outline application to construct one dwelling with all matters reserved.

Type New housing
Status Registered
Date 01 Aug 2025
Plan thumbnail

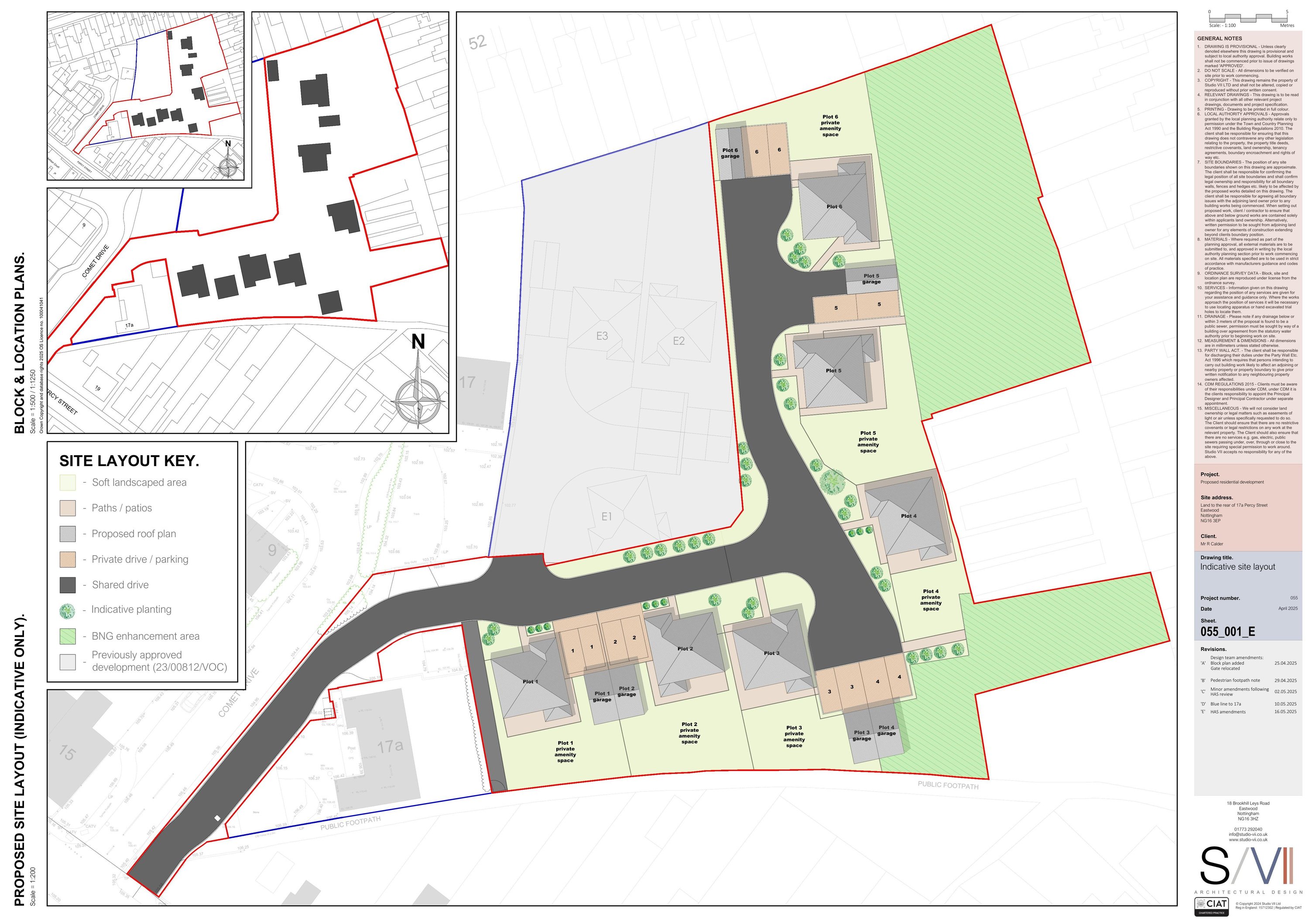
Application for constructing 7 dwellings and related infrastructure.

Type New housing
Status Registered
Date 25 Sep 2025
Plan thumbnail

Subdivision of existing flat to form 2no flats

Type Change of use
Status Registered
Date 05 Dec 2025
Plan thumbnail

Demolition of existing bungalow. Construct two storey dwelling

Type New housing
Status Awaiting decision
Date 03 Dec 2025
Plan thumbnail

Add two floors and convert building from Class E to four cluster flats (sui generis).

Type Change of use
Status Registered
Date 04 Sep 2025
Plan thumbnail

Change use from education (Class D1) to three dwellings (Class C3), including external alterations

Type Change of use
Status Registered
Date 19 Dec 2025
Plan thumbnail

Change of Use from a Class C3(a) dwellinghouse to a Class C2 childrens home

Type Change of use
Status Registered
Date 19 Dec 2025
Plan thumbnail

Demolish existing unit; construct ground-floor retail and two one-bedroom apartments above.

Type Commercial
Status Decided
Date 14 Jul 2025

Demolish public house and construct five detached dwellings with associated parking.

Type New housing
Status Decided
Date 06 Mar 2025
Plan thumbnail

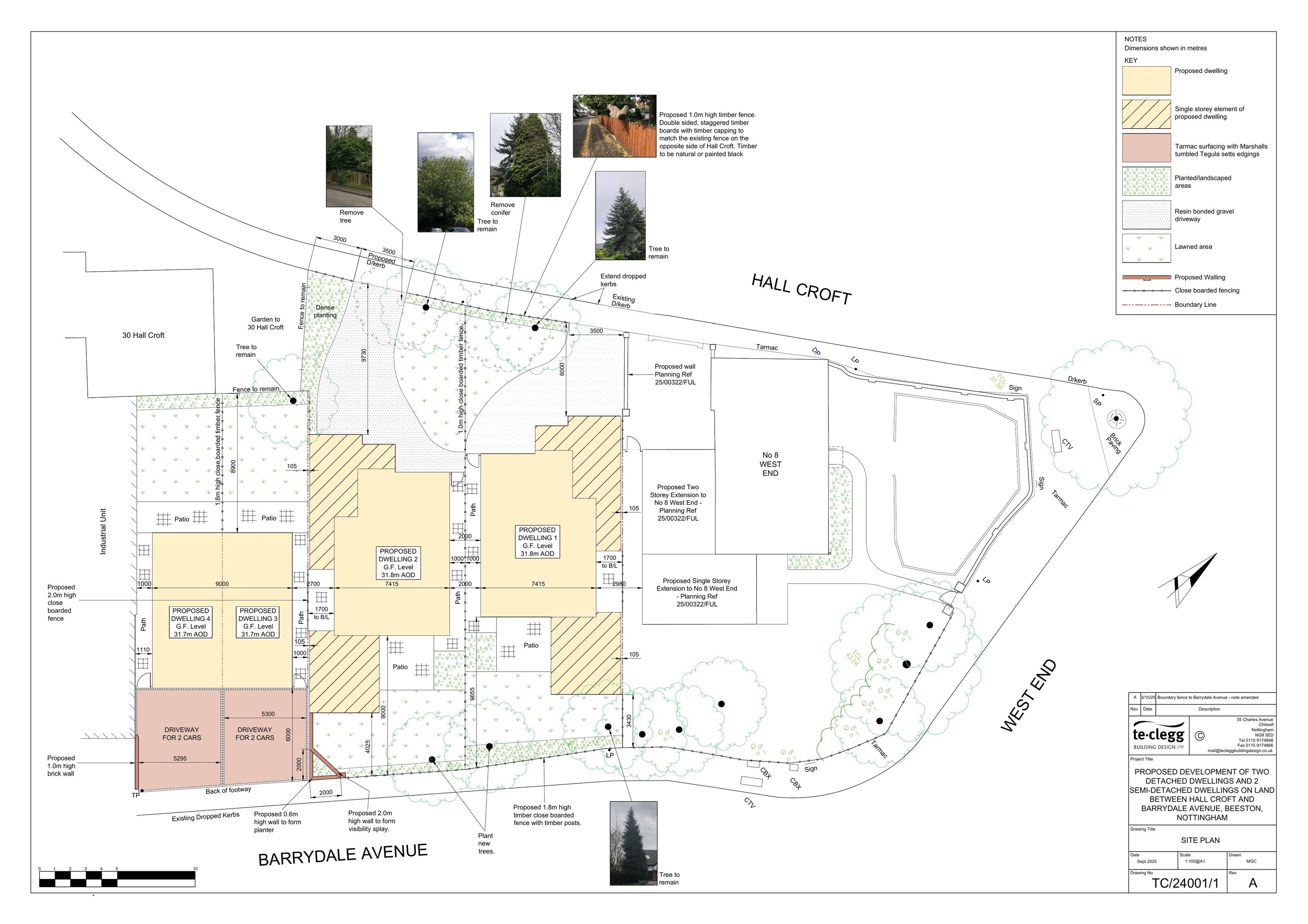
Demolish and construct 2 detached & 2 semi-detached dwellings.

Type New housing
Status Registered
Date 15 Sep 2025