← Back to Broxtowe Borough Council

Status

Awaiting decision New housing
Received
03 Dec 2025
New dwellings
1

Full Proposal

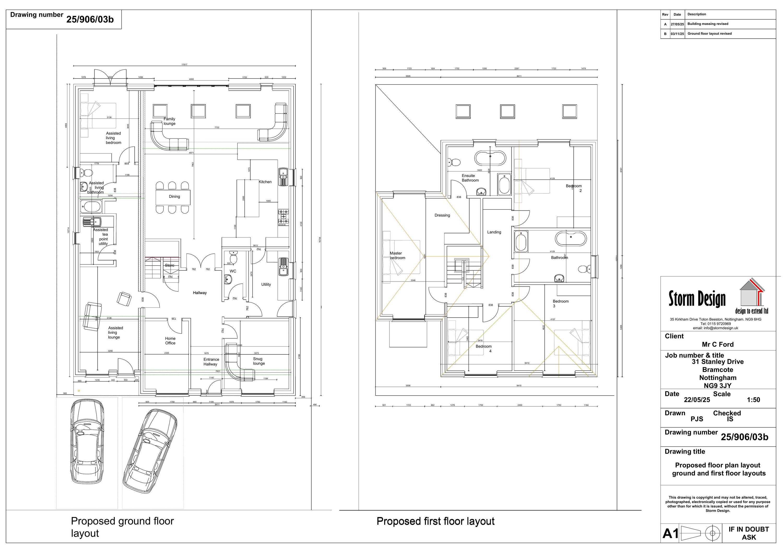
Demolition of existing bungalow. Construct two storey dwelling

Documents

Applicationformredacted
Planning Application Forms
Not archived · Council Link
Bng self build proforma
Supporting Documents With Planning Application
Not archived · Council Link
Existing elevations
Application Plans And Drawings
Not archived · Council Link
Existing floor plans and elevations
Application Plans And Drawings
Not archived · Council Link
Proposed elevations
Application Plans And Drawings
Not archived · Council Link
Application Plans And Drawings
Archived · Council Link
Proposed os plan
Site Location Plan
Not archived · Council Link
Proposed roof plan and street view
Application Plans And Drawings
Not archived · Council Link
Application Plans And Drawings
Archived · Council Link

Take Action

Make your voice heard. Authorities need to hear from people who support new homes.

✉️ Write Email in Support View on Council Portal