← Back to all authorities

Recent applications

Showing the most recent records stored for this authority (max 200).

Three dwellings with access considered and all other matters reserved (self-build) (outline)

Type n/a
Status Pending Consideration
Date 08 Dec 2025

Prior approval application for change of use from Commercial, Business and Service (Use Class E) to dwellinghouse (Use Class C3)

Type n/a
Status Pending Consideration
Date 19 days ago

Conversion of workshop and ancillary building into a single domestic dwelling (self-build)

Type n/a
Status Pending Consideration
Date 18 days ago
Plan thumbnail

Residential development of up to 30 dwellings and associated works (Reserved Matters Pursuant to application 23/01125/OUT)

Type n/a
Status Pending Consideration
Date Last month
Plan thumbnail

Change of use of an existing one-bedroomed children's home(C2) and dwelling (C3a), to a two-bedroomed children's home C2, and single-storey ...

Type n/a
Status Pending Consideration
Date 19 days ago

Use of a (3a) dwelling as a children's home for up to three children, with a manager and up to three carers, two of whom would sleep overnig...

Type Change of use
Status Grant Section 191/192 Certificate
Date 19 Sep 2025

Use of the land to site a mobile home for ancillary use to the main dwellinghouse

Type Change of use
Status Section 192 Determination PP not Req
Date 19 Sep 2025
Plan thumbnail

New PD porch and PD rear single-storey extension to semi-detached house

Type House extension
Status Grant Section 191/192 Certificate
Date 29 Aug 2025
Plan thumbnail

Extension of existing annex to create dwelling including demolition of existing garage

Type New housing
Status Refuse
Date 24 Jul 2025
Plan thumbnail

Detached garage and gym annex. Re-roofing of existing dwelling. Replace roof covering with natural blue slates

Type House extension
Status Permit
Date 11 Aug 2025
Plan thumbnail

New dwelling with all matters reserved (self-build) (outline)

Type New housing
Status Refuse
Date 01 Sep 2025
Plan thumbnail

Change from C3 dwelling to four-bedroom HMO; rear dormer added and internal layout amended.

Type Change of use
Status Grant Section 191/192 Certificate
Date 21 Aug 2025

Residential development of four houses (outline with all matters reserved)

Type New housing
Status Pending Consideration
Date 04 Aug 2025

Extraction of sandstone reserves beneath the former diversion of footpath Brighouse 37 and retrospective placement of perimeter bund for the...

Type Industrial
Status Permit
Date 23 Jul 2025
Plan thumbnail

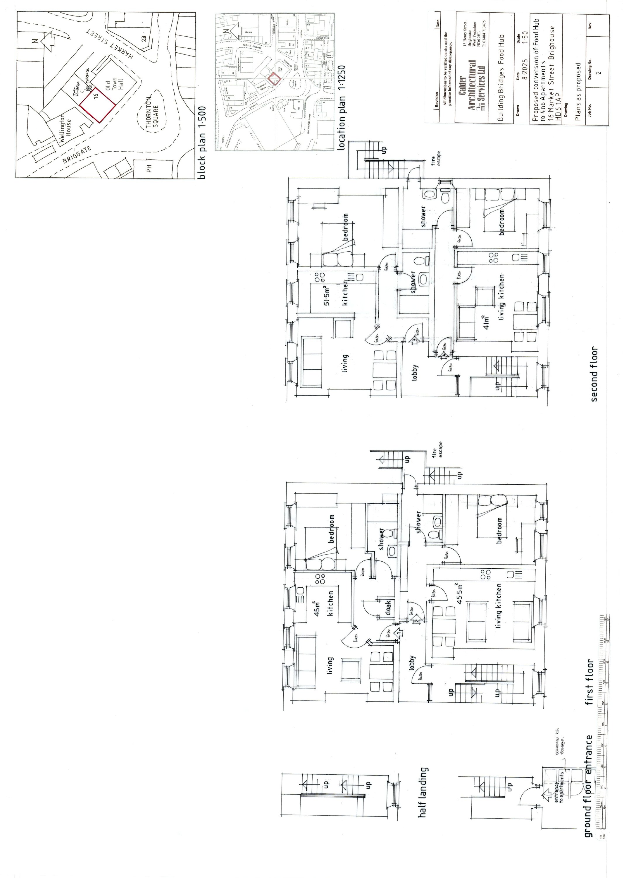
Conversion of former public house (sui generis) to commercial use limited to Class E (a and c) at ground floor and self-contained apartment ...

Type Change of use
Status Permit
Date 22 Jul 2025

Three dwellings (self-build)

Type New housing
Status Pending Consideration
Date 08 Jul 2025
Plan thumbnail

Change of use from one dwelling to two flats with front dormer and rear dormer

Type Change of use
Status Refuse
Date 05 Jun 2025

Conversion and extension of existing building to a new dwelling and the formation of a passing place.

Type Change of use
Status Refuse
Date 06 Mar 2025
Plan thumbnail

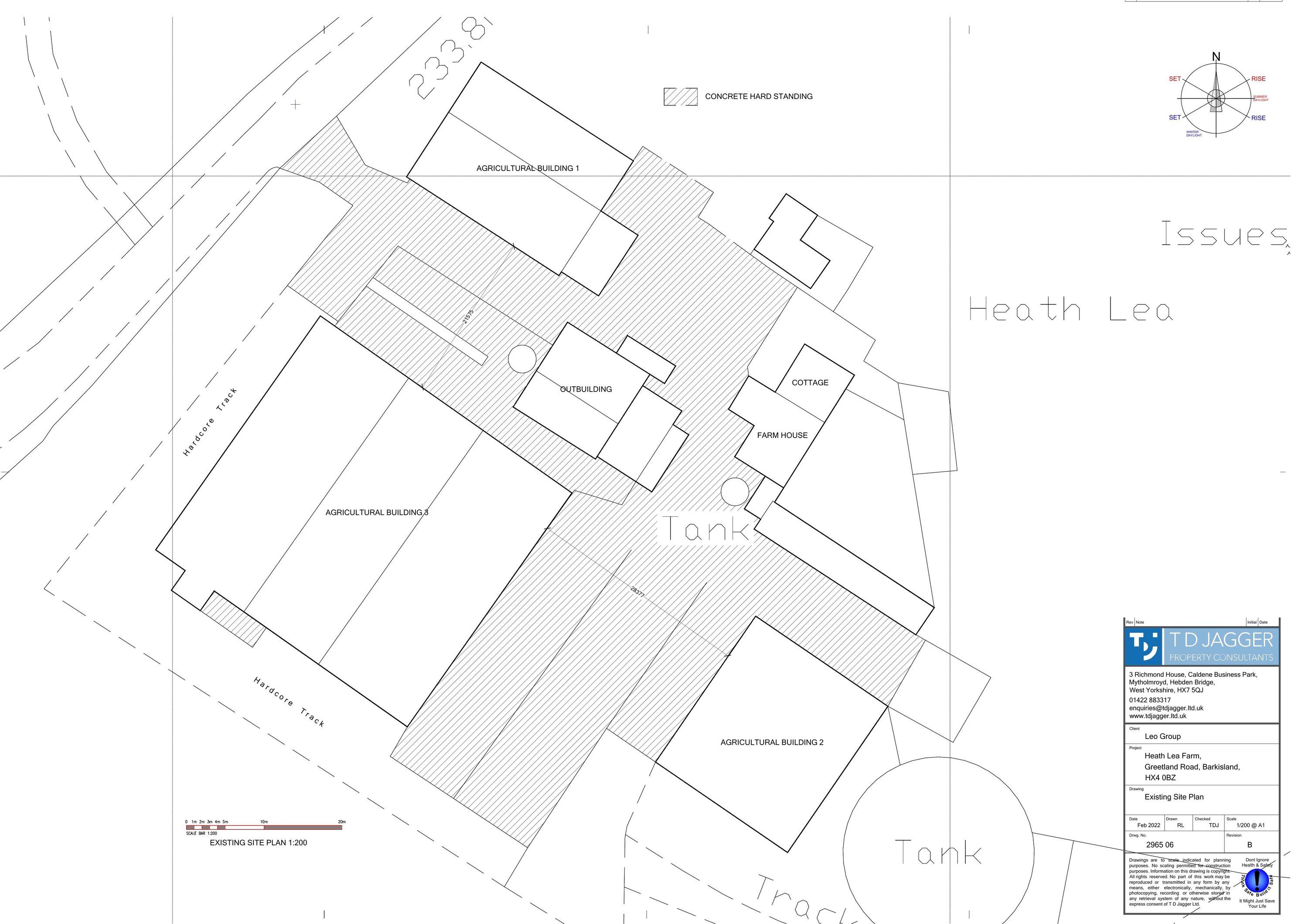
Conversion of part of agricultural building to dwelling

Type Change of use
Status Refuse
Date 11 Sep 2025
Plan thumbnail

Change of use from residential dwelling (C3) to small 5-person HMO (C4)

Type Change of use
Status Grant Section 191/192 Certificate
Date 06 Oct 2025

Construct four dwellings with garages, associated parking and gardens.

Type New housing
Status Refuse
Date 18 Aug 2025

Changing from flat to pitched roof. Dormer, roof lights, new window and french doors to south elevation. Timber cladding to replace damaged ...

Type House extension
Status Permit
Date 20 Oct 2025

Change of use from annexe to self-contained dwelling

Type Change of use
Status Permit
Date 26 Aug 2025

Demolition of existing buildings to facilitate development of one detached dwelling

Type New housing
Status Refuse
Date 17 Sep 2025

Demoltion of single storey extension to facilitate new detached dwelling

Type New housing
Status Pending Consideration
Date 20 Oct 2025

Residential development for approximately 65 dwellings

Type New housing
Status Pending Consideration
Date 11 Nov 2025

Construction of three terraced dwellings with parking, access alterations and new turning head.

Type New housing
Status Pending Consideration
Date 23 Oct 2025

Annexe for ancillary use to the main dwellinghouse.

Type House extension
Status Permit
Date 22 Oct 2025

Change of use of an apartment (Class C3a) to office (Class E)

Type Change of use
Status Permit
Date 11 Sep 2025

Residential Development of 9 dwellings (Outline)

Type New housing
Status Pending Consideration
Date 08 Sep 2025

Change of use from HMO with ancillary office to self-contained flats (Class C3) with ancillary office (Retrospective)

Type Change of use
Status Permit
Date 30 Oct 2025

Change of use from barn to 3 bedroom dwelling

Type Change of use
Status Pending Consideration
Date 01 Oct 2025

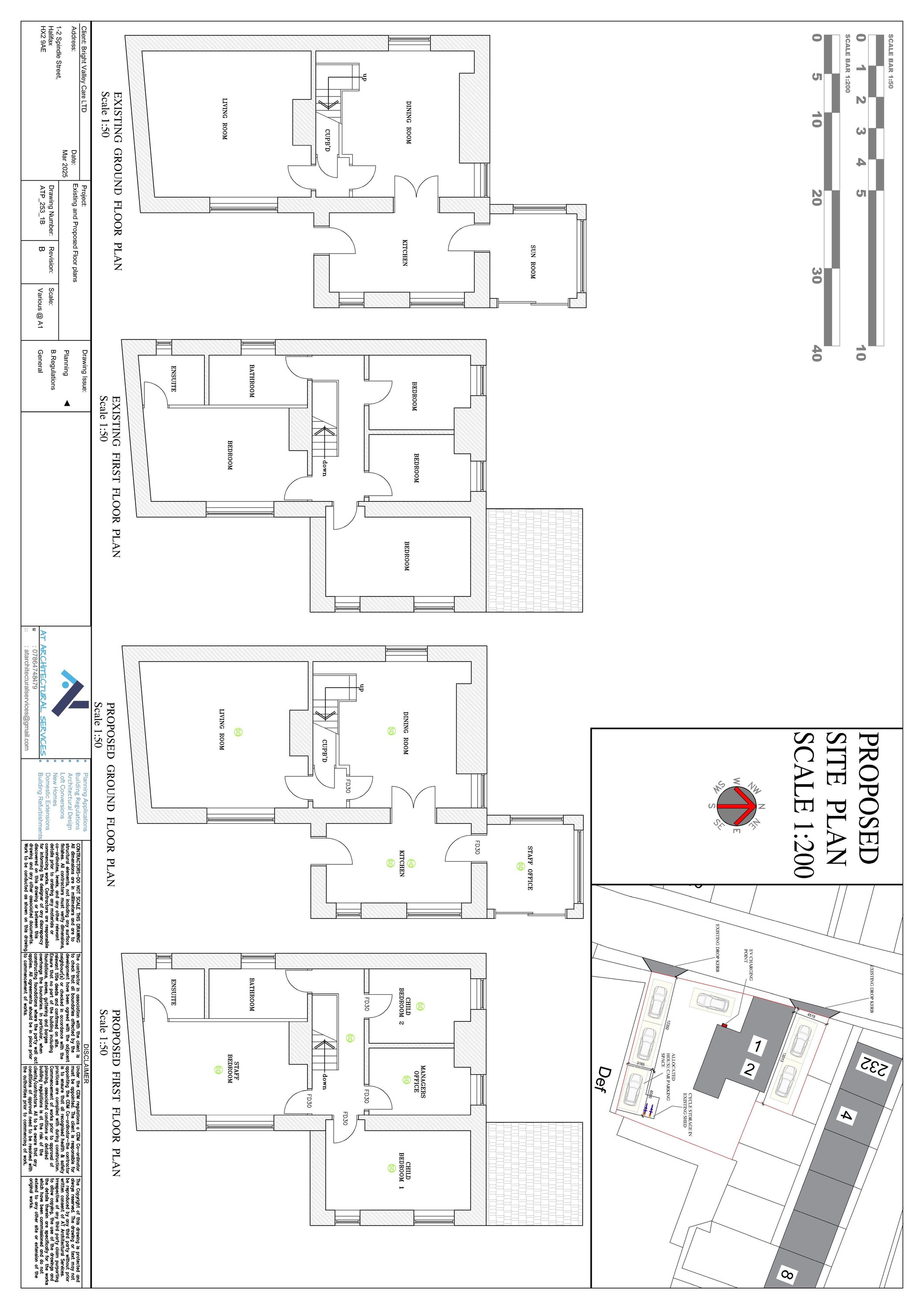
Change from C3 - Dwelling House to C3(b) - residential use for up to 6 people living together as a single houshold with care provided.

Type Change of use
Status Grant Section 191/192 Certificate
Date 01 Dec 2025

GRP-housed transformer, GRP-housed feeder panel, 5.5m high steel gantry for cable containment

Type Infrastructure
Status Permit
Date 06 Nov 2025

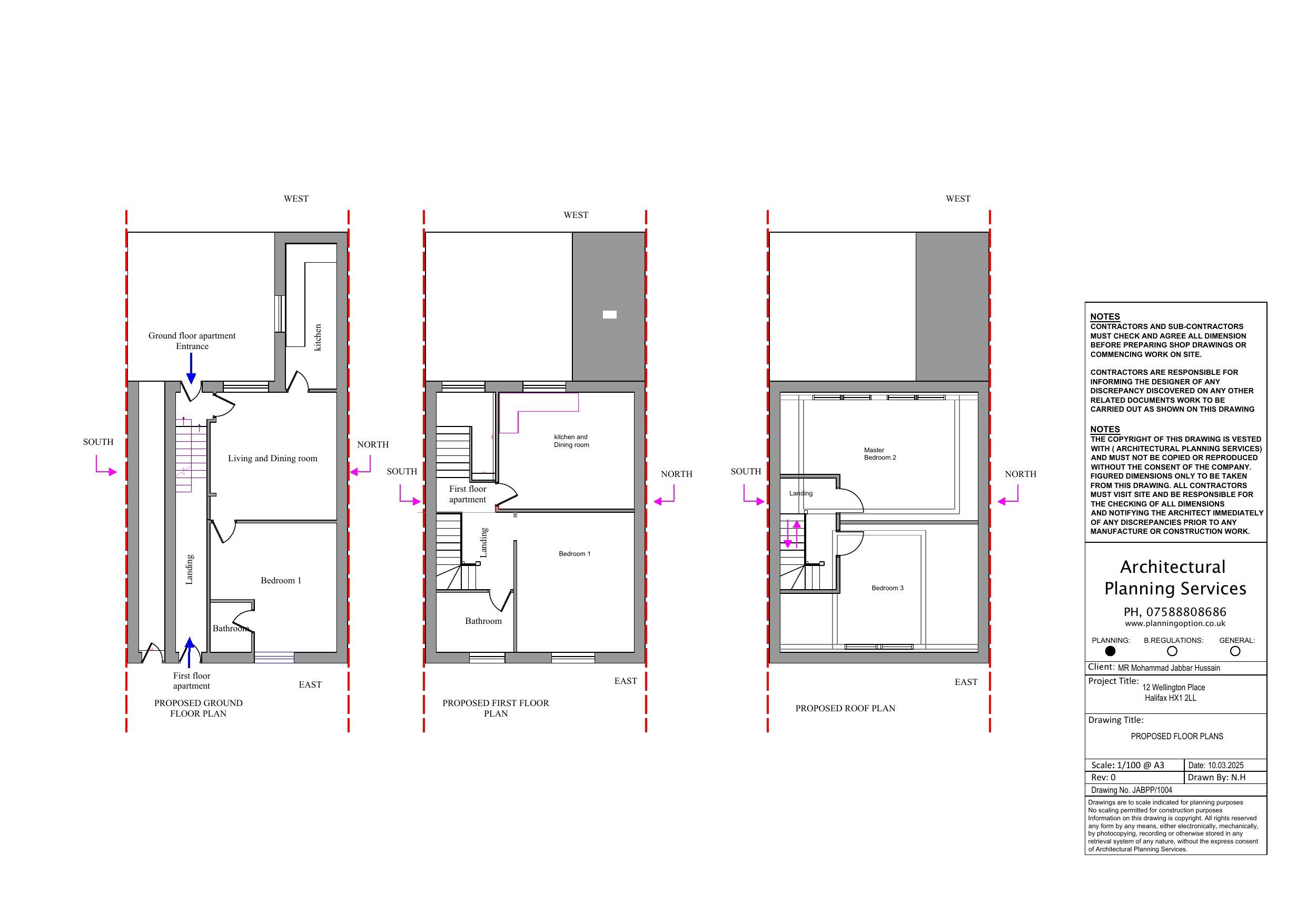
Convert one existing dwelling back into two separate dwellings (subdivision).

Type Change of use
Status Permit
Date 18 Sep 2025
Plan thumbnail

Change of Use from Sui Generis (Private Firearms Club House and Associated Parking) to Class B2/B8 (General Industrial)

Type Change of use
Status Permit
Date 03 Dec 2025
Plan thumbnail

Change of use from residential to 4 person HMO

Type Change of use
Status Refuse Cert of Lawful Development
Date Last month

30 dwellings (access only) (Outline)

Type New housing
Status Pending Consideration
Date 09 Dec 2025

Change of use from public house (Sui Generis) to a single residential dwelling (Class C3)

Type Change of use
Status Pending Consideration
Date 08 Dec 2025

Reduction of building to accommodate new access road, new single pitched roof and division into six units within E(g) use class (office; res...

Type Commercial
Status Permit
Date 11 Dec 2024
Plan thumbnail

Proposed change of use from commercial to 1 bedroom dwelling.

Type Change of use
Status Pending Consideration
Date 20 Dec 2024

Rear dormer, rooflights and garden office

Type House extension
Status Permit
Date 11 Dec 2024
Plan thumbnail

Six semi detached bungalows and 1 detached house with new private access road.

Type New housing
Status Permit
Date 07 Feb 2025
Plan thumbnail

Change of use of existing residential annex into independent dwelling

Type Change of use
Status Pending Consideration
Date 24 Oct 2025
Plan thumbnail

Proposed conversion of existing building to form single dwelling (self build)

Type Change of use
Status Permit
Date 04 Sep 2025
Plan thumbnail

Change of use from barn to 3 bedroom dwelling

Type Change of use
Status Pending Consideration
Date 01 Oct 2025

Change of use of first floor from offices to 10 room HMO and open up blocked up access door.

Type Change of use
Status Pending Consideration
Date 12 Nov 2025
Plan thumbnail

Change of use from residential (C3) to Retail (E).

Type Change of use
Status Permit
Date 20 Oct 2025
Plan thumbnail

Two storey extension to rear of existing dwelling.

Type House extension
Status Permit
Date 19 Sep 2025
Plan thumbnail

Conversion of barn to a 4 bedroom dwelling

Type Change of use
Status Pending Consideration
Date 15 Oct 2025
Plan thumbnail

Detached dwelling with detached single garage

Type New housing
Status Pending Consideration
Date 10 Nov 2025
Plan thumbnail

Two storey side extension and change of use of basement to apartment

Type House extension
Status Pending Consideration
Date 11 Dec 2025
Plan thumbnail

Replacement dwelling and change of use of land from commercial (Sui Generis) to residential (C3)

Type Change of use
Status Pending Consideration
Date Last month
Plan thumbnail

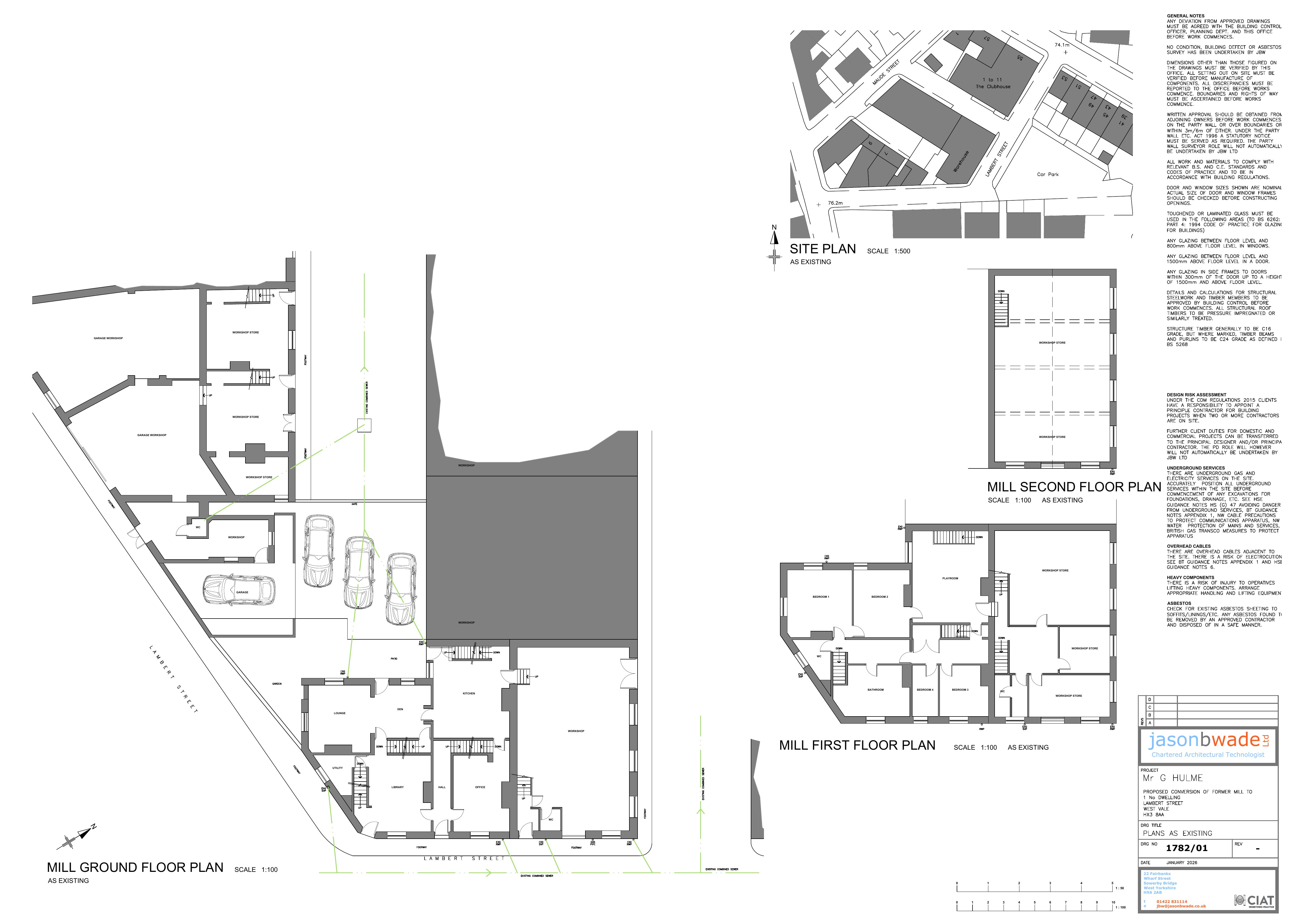
Conversion of former mill to one dwelling including installation of solar PV panels

Type Change of use
Status Pending Consideration
Date Last month
Plan thumbnail

Change of use from one dwelling to two dwellings

Type Change of use
Status Pending Consideration
Date Last month
Plan thumbnail

Demolition of existing stable building and storage container to facilitate detached dwelling

Type New housing
Status Pending Consideration
Date 29 days ago
Plan thumbnail

Hybrid application including outline for up to 50 dwellings (all matters reserved except access) and full application for extensions to exis...

Type New housing
Status Pending Consideration
Date 08 Dec 2025

Change of Use from Single Dwelling (C3) To Children Care Home (C2)

Type Change of use
Status Pending Consideration
Date Last month

Demolition and change of use of existing workshop to facilitate the construction of three / four storey apartment block

Type New housing
Status Permit
Date 15 Aug 2024

Additional 1 bedroom self contained apartment. (retrospective)

Type New housing
Status Permit
Date 27 Aug 2024

Conversion of Office to 2 Retail Units and upper floor extension to form 4 studio apartments.

Type Change of use
Status Permit
Date 16 Sep 2024

Demolition of existing bungalow and to create new dwelling keeping existing garage

Type New housing
Status Permit
Date 12 Aug 2024

Renovation of coach house including new roof and dormer

Type House extension
Status Refuse
Date 13 May 2024

Demolition of existing residential property (Demolition Notification)

Type Demolition
Status Prior Approval Required
Date 15 Aug 2024

4 new semi-detached dwellings

Type New housing
Status Permit Legal Agreement
Date 19 Jul 2024

Raising of ridge height (200mm), hip to gable roof conversion, loft conversion, first floor side extension and single storey rear extension ...

Type House extension
Status Permit
Date 08 Aug 2024

Detached dwelling with the addition of detached garage with residential annex above (Amended house type to plot B)

Type New housing
Status Refuse
Date 29 Aug 2024

Conversion and extension of garage and store to living space ancillary to dwelling

Type House extension
Status Permit
Date 27 Sep 2024

Internal alterations, external insulation and extension to existing clubhouse. Installation of solar panels and air source heat pump. Works ...

Type Commercial
Status Pending Consideration
Date 05 Sep 2024

Change of use from 6-bedroom residential property (C3) to a children's home for upto 4 children with staff providing 24 hour care on a rotat...

Type Change of use
Status Refuse
Date 28 Aug 2024

Construction of retail unit and thirty seven residential units

Type New housing
Status Pending Consideration
Date 02 Oct 2024

Change of use from dwelling to residential care home for a single young person from 11 to 17 years old

Type Change of use
Status Permit
Date 30 Aug 2024

Construction of 122 dwellings and associated works

Type New housing
Status Pending Decision
Date 01 Oct 2024

Extension of existing steel portal frame shed, and new steel portal frame extension to form warehouse

Type Industrial
Status Grant Section 191/192 Certificate
Date 29 Oct 2024

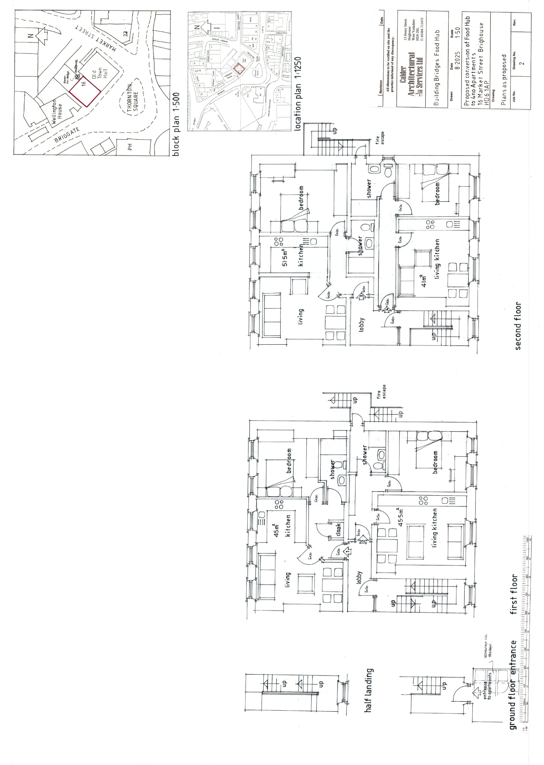
conversion of redundant public house with accomodation to 2 houses, 5 apartments and an office

Type Change of use
Status Permit
Date 20 Sep 2024

Demolition of existing residential property (Demolition Notification)

Type Demolition
Status Grant Prior Approval
Date 28 Oct 2024

Part demolition and part conversion of existing buildings to create six dwellings

Type New housing
Status Refuse
Date 04 Mar 2024

Proposed new build development of 3 residential dwellings on a site that has extant planning permission for 3 dwellings (20/00912/FUL)

Type New housing
Status Permit
Date 27 Sep 2024

Conversion & extension to create retail unit, 4 apartments & 1 dwelling

Type Change of use
Status Pending Consideration
Date 07 Oct 2024

Demolition of building to facilitate residential development of two dwellings (Reserved Matters Persuant to application 20/00491/OUT)

Type New housing
Status Pending Consideration
Date 29 Oct 2024

Part demolition of the existing building to form the proposed single storey office building. Proposed vehicle wash located within the existi...

Type Commercial
Status Refuse
Date 16 Sep 2024

Demolition of existing office buildings formerly used by Sweet and Maxwell

Type Demolition
Status Prior Approval Required
Date 15 Oct 2024

Outline planning application for residential development and associated infrastructure with all matters reserved other than access into the ...

Type New housing
Status Pending Consideration
Date 21 Oct 2024

Conversion of detached barn to dwelling, extension to existing house, new drive and turning area.

Type Change of use
Status Permit
Date 09 Apr 2024

Split of existing single dwelling to form 2 separate detached dwellings including partial demolition and extension and alterations to vehicu...

Type New housing
Status Permit
Date 11 Sep 2024

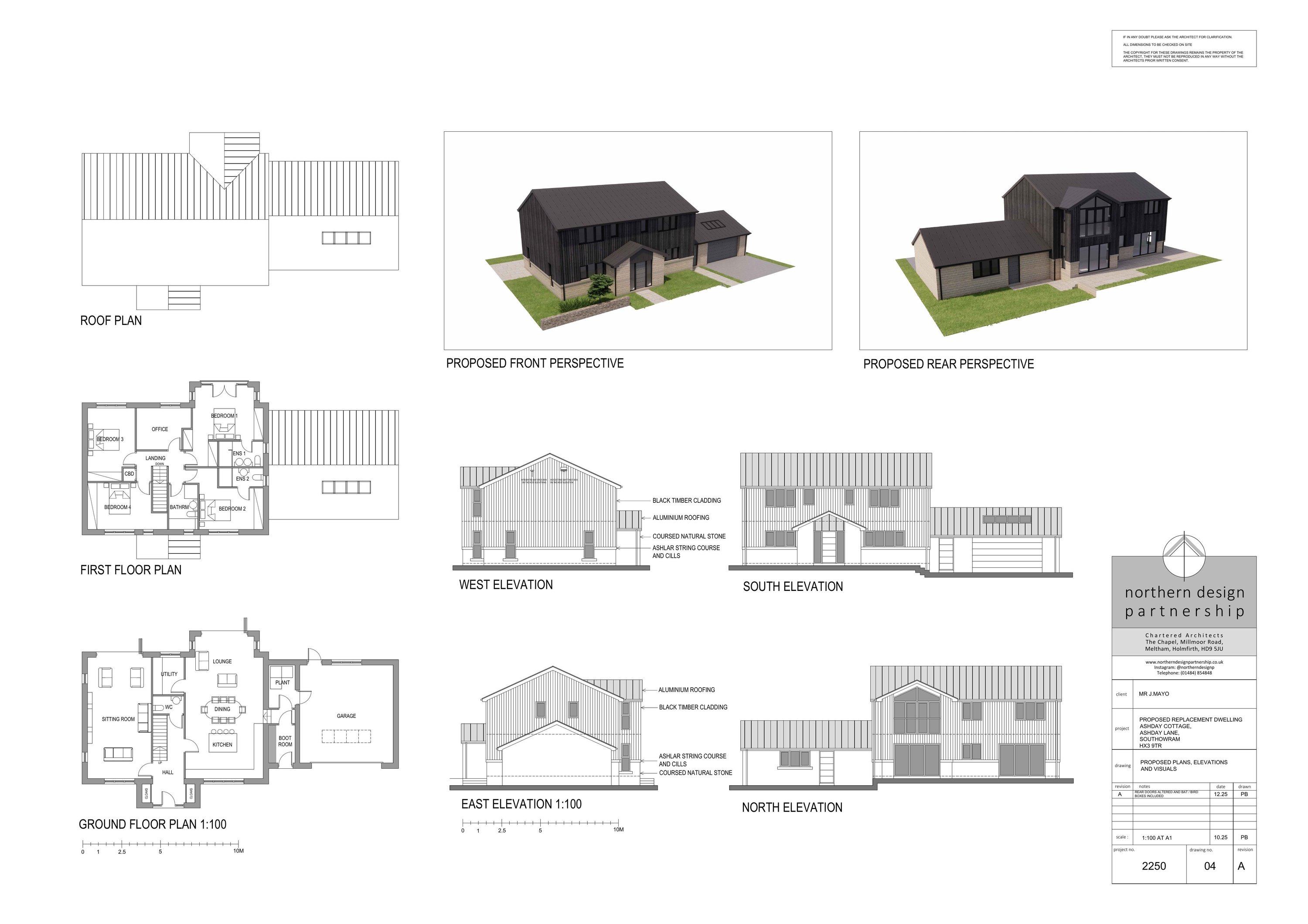
Retrospective application for planning permission for the demolition of the former dwelling and the construction of a replacement Dwelling i...

Type New housing
Status Permit
Date 25 Sep 2024

Change of use of two previously combined dwellings to two seperate dwellings

Type Change of use
Status Permit
Date 03 Oct 2024

Change of use of dwelling (C3a) to a children's home for up to three children, with a manager and three carers, two of whom will sleep overn...

Type Change of use
Status Permit
Date 08 Oct 2024

Residential development of 11 dwellings

Type New housing
Status Pending Decision
Date 19 Jul 2024

Demolition of 52 dwellings at Field Lane Estate and Linton Grove

Type Demolition
Status Prior Approval Not Required
Date 21 Nov 2024

Change of use to House in Multiple Occupation (Use Class C4) and dormer to front elevation

Type Change of use
Status Permit
Date 07 Oct 2024

Single storey lean-to extension store to existing house

Type House extension
Status Permit
Date 30 Oct 2024

Conversion of existing Warehouse and Offices to form a Dental Practice, including internal alterations and the addition of a new section of ...

Type Commercial
Status Permit
Date 06 Nov 2024

Outline application for up to 2 dwellings with access considered at this stage but all other matters reserved

Type New housing
Status Permit Outline
Date 16 Aug 2024

Development of 81 dwellings

Type New housing
Status Pending Consideration
Date 02 Oct 2024

Residential development of up to 14 dwellings, all matters reserved except Access (Outline)

Type New housing
Status Pending Consideration
Date 07 Oct 2024

Construction of 14 dwellings and associated works.

Type New housing
Status Pending Consideration
Date 08 Oct 2024

Conversion of dwelling into one duplex two bed apartment and a single studio apartment with separate access.

Type Change of use
Status Refuse
Date 08 Nov 2024

Three dwellings (Permission in Principle)

Type New housing
Status Refuse
Date 11 Nov 2024

Demolition of redundant former transport department offices. Building is 2 storeys steel framed metal clad with some brickwork plinths.

Type Demolition
Status Prior Approval Required
Date 25 Nov 2024

Redevelopment and refurbishment of existing building to provide a mixed use development, comprising of 28 apartments from 1st- 4th floors an...

Type New housing
Status Permit
Date 04 Nov 2024

Change of use from public house to three residential units

Type Change of use
Status Pending Consideration
Date 20 Nov 2024

Development of 46 residential dwellings (34 houses & 12 Apartments)

Type New housing
Status Pending Decision
Date 08 Oct 2024

Conversion of one dwelling to create two dwellings

Type Change of use
Status Permit
Date 11 Nov 2024

Conversion of lower ground floor to residential apartment

Type Change of use
Status Permit
Date 05 Dec 2024

Mixed housing development comprising alterations to an existing dwelling and the construction of four new dwellings

Type New housing
Status Permit Outline
Date 26 Jun 2024
Plan thumbnail

Change of use of existing public house, owner's accommodation and holiday lets to 5x dwellings

Type Change of use
Status Permit
Date 16 Dec 2024
Plan thumbnail

Demolition of existing stable, muck midden and storage container to facilitate a single storey dwelling, domestic garden and parking

Type New housing
Status Permit
Date 18 Dec 2024
Plan thumbnail

Demolition of Nissen Hut Building to facilitate one dwelling with associated parking and landscaping.

Type New housing
Status Pending Consideration
Date Last month

Demolish part of warehouse 230m2 and replace with warehouse extension 2213m2

Type Industrial
Status Permit
Date 03 Dec 2024

Residential development of up to 2 dwellings (Outline)

Type New housing
Status Refuse
Date 16 Dec 2024

Change of Use of Existing Warehouse from B8 to Class E (Gym)

Type Change of use
Status Permit
Date 15 Jan 2025

Demolition of existing barn and construction of detached dwelling

Type New housing
Status Permit
Date 20 Dec 2024

4 dwellings with associated works

Type New housing
Status Pending Consideration
Date 20 Dec 2024

Construction of four dwelling houses and associated works

Type New housing
Status Refuse
Date 18 Dec 2024

Residential Development of two dwellings (Outline)- all matters reserved.

Type New housing
Status Permit Outline
Date 25 Nov 2024
Plan thumbnail

Convert industrial building to six apartments while retaining some industrial use.

Type Change of use
Status Permit
Date 13 Jan 2025
Plan thumbnail

Two dwellings following demolition of Portsmouth Mill

Type New housing
Status Permit
Date 20 Dec 2024
Plan thumbnail

39 dwellings and recreational ground upgrades, with landscaping, parking and other associated works

Type New housing
Status Permit Legal Agreement
Date 20 Dec 2024
Plan thumbnail

Single-storey agricultural storage building on land adjacent Hollins House

Type Agricultural
Status Refuse
Date 18 Nov 2024

Change of use from residential dwelling (C3) to children's home (C2).

Type Change of use
Status Refuse Cert of Lawful Development
Date 10 Feb 2025
Plan thumbnail

Convert barn and stables to two dwellings and form a new access.

Type Change of use
Status Permit
Date 23 Dec 2024
Plan thumbnail

Conversion of barn into one residential dwelling.

Type Change of use
Status Permit
Date 05 Feb 2025
Plan thumbnail

Residential development of 34 dwellings and associated works.

Type New housing
Status Pending Consideration
Date 10 Feb 2025

Residential development of 38 dwellings with new access, public open space and associated infrastructure.

Type New housing
Status Pending Decision
Date 18 Feb 2025

Development of 140 dwellings with parking, public open space, landscaping and access.

Type New housing
Status Pending Consideration
Date 11 Mar 2025
Plan thumbnail

Change of use from dwelling (C3a) to children's home (C2); up to two children, two overnight carers.

Type Change of use
Status Permit
Date 25 Feb 2025
Plan thumbnail

Demolish existing bungalow to facilitate one new detached dwelling and associated external works.

Type New housing
Status Permit
Date 21 Mar 2025

Outline for demolition and construction of up to 230 dwellings with access details reserved.

Type New housing
Status Pending Consideration
Date 24 Mar 2025

Change of use from dwelling (C3) to children's home (C2) for a maximum of one child.

Type Change of use
Status Permit
Date 18 Mar 2025
Plan thumbnail

Retrospective change of use splitting one dwelling into two dwellings.

Type Change of use
Status Permit
Date 07 Mar 2025
Plan thumbnail

Refurbish existing house and rebuild existing porch.

Type House extension
Status Permit
Date 04 Apr 2025
Plan thumbnail

Construction of three detached dwellings.

Type New housing
Status Permit
Date 25 Mar 2025
Plan thumbnail

Conversion of agricultural building to one dwelling including partial demolition.

Type Change of use
Status Permit
Date 31 Mar 2025
Plan thumbnail

Conversion of public house into a house in multiple occupation (HMO).

Type Change of use
Status Permit
Date 31 Mar 2025
Plan thumbnail

Residential development delivering ten new dwellings.

Type New housing
Status Pending Consideration
Date 25 Apr 2025
Plan thumbnail

Demolish garage to facilitate house extension and erect domestic storage shed.

Type House extension
Status Permit
Date 24 Apr 2025
Plan thumbnail

Change ground floor (Class E) to public house and drinking establishment with food (Sui Generis).

Type Change of use
Status Permit
Date 25 Apr 2025
Plan thumbnail

Change ground-floor public house to a residential apartment.

Type Change of use
Status Permit
Date 02 Apr 2025
Plan thumbnail

Outline for up to ten houses with associated access road.

Type New housing
Status Refuse
Date 11 Feb 2025
Plan thumbnail

Agricultural building for machinery and hay storage.

Type Agricultural
Status Prior Approval Required
Date 30 May 2025
Plan thumbnail

Change garage to dwelling with front extension, new roof and dormer.

Type Change of use
Status Pending Consideration
Date 30 Apr 2025
Plan thumbnail

Construction of one detached self-build dwelling.

Type New housing
Status Permit
Date 09 May 2025

Conversion of one dwelling into four self-contained apartments.

Type Change of use
Status Permit
Date 03 Apr 2025
Plan thumbnail

Refurbish restaurant and flat; create two additional apartments.

Type Change of use
Status Permit
Date 02 Apr 2025

Construction of one single-storey and one two-storey dwelling with associated works.

Type New housing
Status Pending Decision
Date 07 Mar 2025
Plan thumbnail

Demolition and construction of 8 dwellings with access and public open space.

Type New housing
Status Pending Consideration
Date 15 May 2025
Plan thumbnail

Residential development constructing 10 houses.

Type New housing
Status Pending Consideration
Date 27 Mar 2025
Plan thumbnail

Residential development constructing two dwellings.

Type New housing
Status Permit
Date 28 Apr 2025
Plan thumbnail

Convert commercial unit and house into a single dwelling, including re-roofing.

Type Change of use
Status Permit
Date 23 May 2025
Plan thumbnail

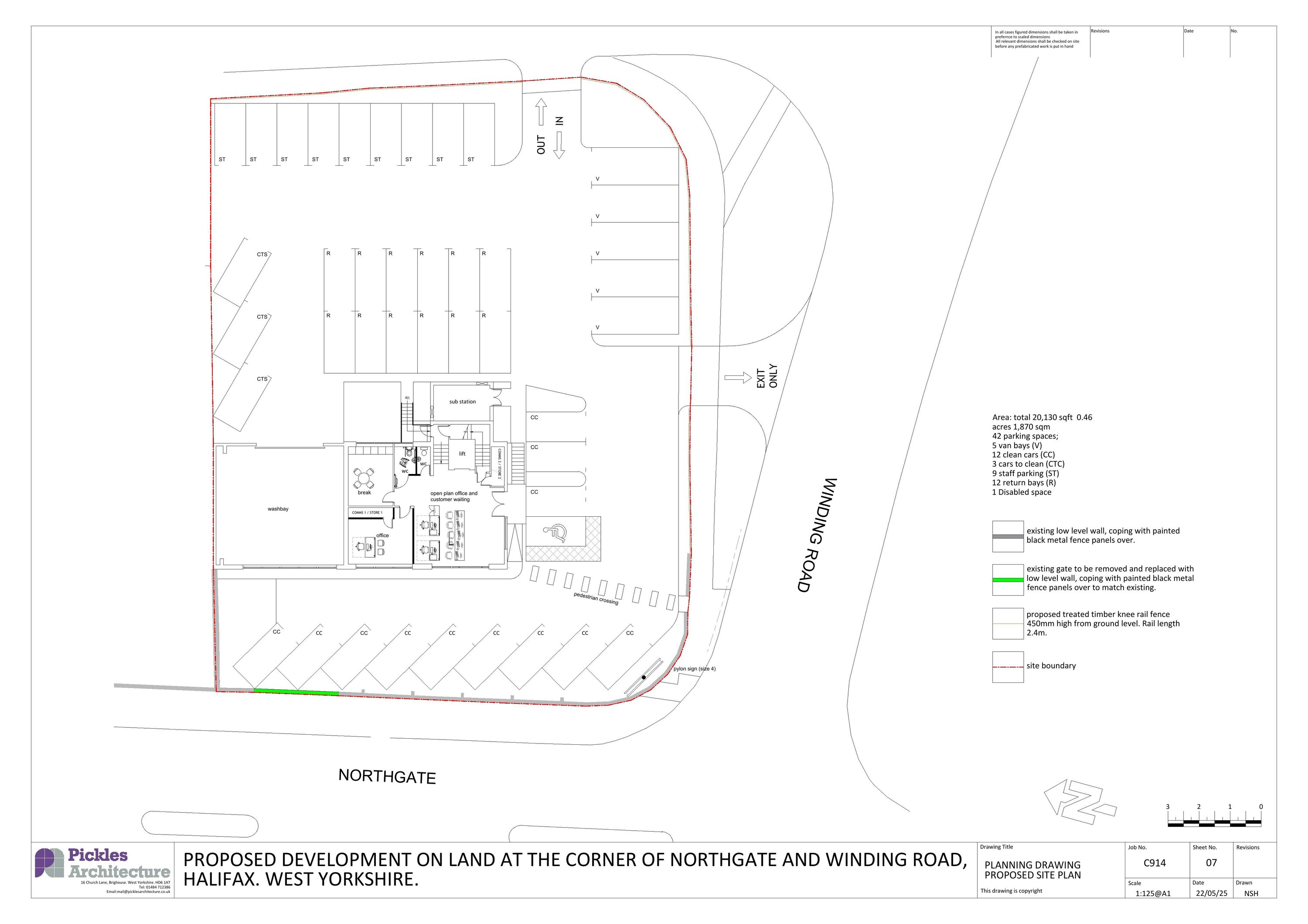
Two-storey building for vehicle hire/sales with parking, jet wash, valeting and maintenance.

Type Commercial
Status Permit
Date 30 May 2025
Plan thumbnail

Convert detached garage into a home office.

Type Change of use
Status Permit
Date 23 May 2025
Plan thumbnail

Convert and extend garage and store into ancillary living space to existing dwelling.

Type House extension
Status Permit
Date 03 Jul 2025
Plan thumbnail

Add front and rear dormers, single-storey entrance extension, and convert front flat roof to pitched.

Type House extension
Status Permit
Date 09 Jun 2025

Outline application for one new dwelling with all matters reserved.

Type New housing
Status Permit Outline
Date 19 May 2025

Conversion of property into two separate dwellings, creating one additional residence.

Type Change of use
Status Permit
Date 02 May 2025

Change of use from dwelling (C3) to residential children's home (C2) for one child.

Type Change of use
Status Permit
Date 26 Jun 2025

Conversion of vacant church hall into six apartments.

Type Change of use
Status Permit
Date 28 Jul 2025

Replace existing open wire conductors with aerial bunched conductor outside the Dairy House.

Type Infrastructure
Status Raise No Objections
Date 01 Aug 2025

Single-storey rear extension to existing dwelling house.

Type House extension
Status Grant Section 191/192 Certificate
Date 30 Jul 2025

Change of use from public house with letting rooms to public house with 16 aparthotel rooms (C1)

Type Change of use
Status Permit
Date 07 Mar 2025

Two semi-detached dwellings

Type New housing
Status Pending Consideration
Date 30 May 2025
Plan thumbnail

Outline application for construction of two dwellings.

Type New housing
Status Pending Consideration
Date 06 May 2025
Plan thumbnail

Two storey and single storey front, side and rear extension including rear dormer and front porch and demolition of existing flat roof two s...

Type House extension
Status Permit
Date 30 Jul 2025
Plan thumbnail

119 no. dwellings, associated infrastructure, access, internal roads, footpaths, landscaping, open space and all associated works

Type New housing
Status Pending Consideration
Date 21 Jul 2025
Plan thumbnail

3m x 5m single-storey summer house in front garden.

Type Other
Status Permit
Date 15 Jul 2025
Plan thumbnail

Two semi-detached dwellings and associated works (part-retrospective).

Type New housing
Status Pending Consideration
Date 15 Aug 2025
Plan thumbnail

Conversions and construction of 22 dwellings across site, with landscaping and biodiversity net gain provision.

Type New housing
Status Pending Consideration
Date 21 Aug 2025
Plan thumbnail

Change of use from residential property (C3) to a children's home (C2) and demolition of garage to create parking

Type Change of use
Status Permit
Date 18 Jun 2025
Plan thumbnail

Construction of two detached self-build dwellings.

Type New housing
Status Pending Consideration
Date 16 Sep 2025
Plan thumbnail

Residential development of 32 dwellings, access road and associated works

Type New housing
Status Pending Consideration
Date 03 Jun 2025
Plan thumbnail

Former back to back terrace housing converted from single dwelling back to two dwellinghouses.

Type Change of use
Status Permit
Date 22 Oct 2025
Plan thumbnail

Outline residential development of up to two dwellings (all matters reserved).

Type New housing
Status Pending Consideration
Date 09 Oct 2025
Plan thumbnail

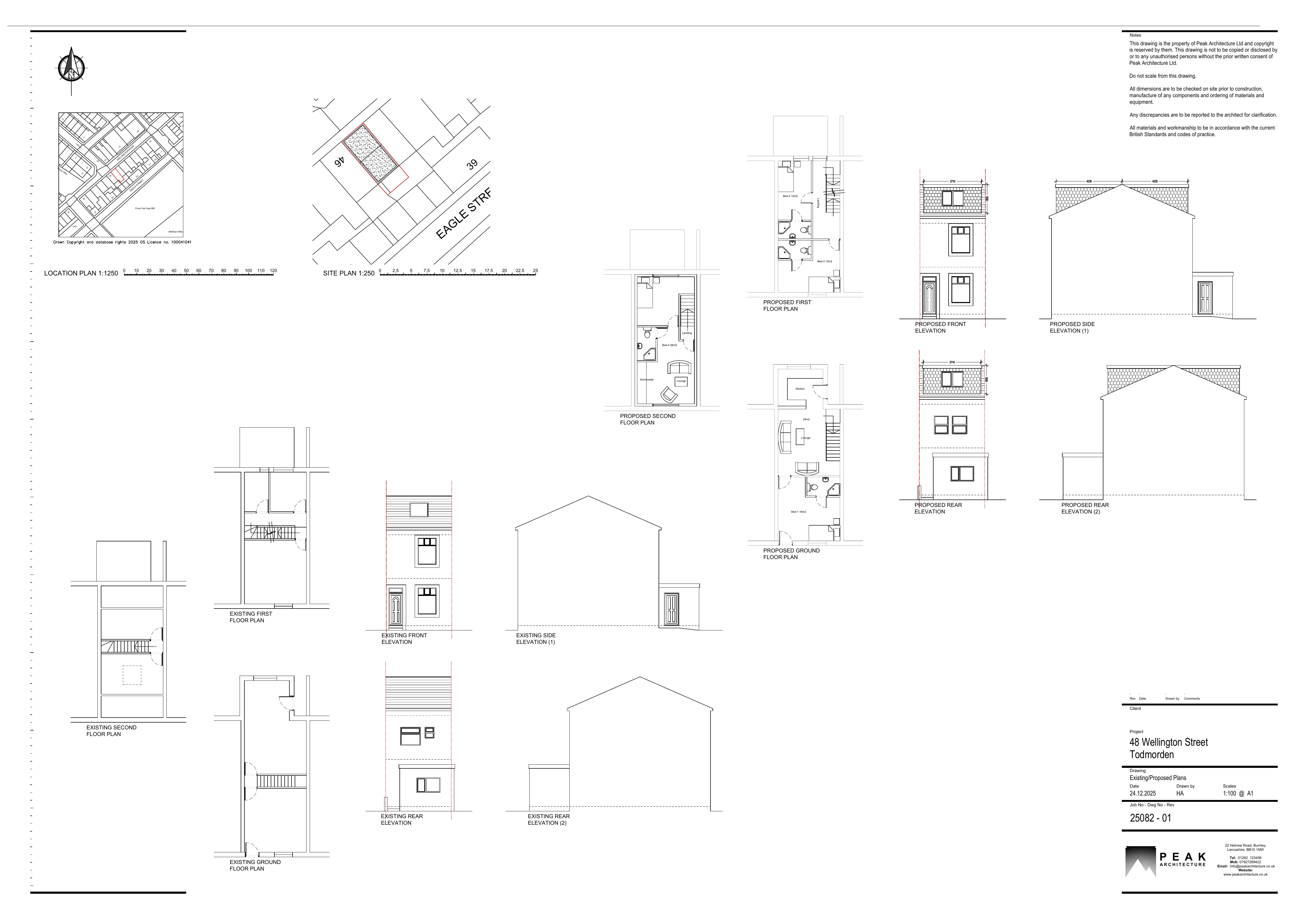
Conversion of ice cream parlour and café to dwelling including partial demolition

Type Change of use
Status Permit
Date 06 Oct 2025
Plan thumbnail

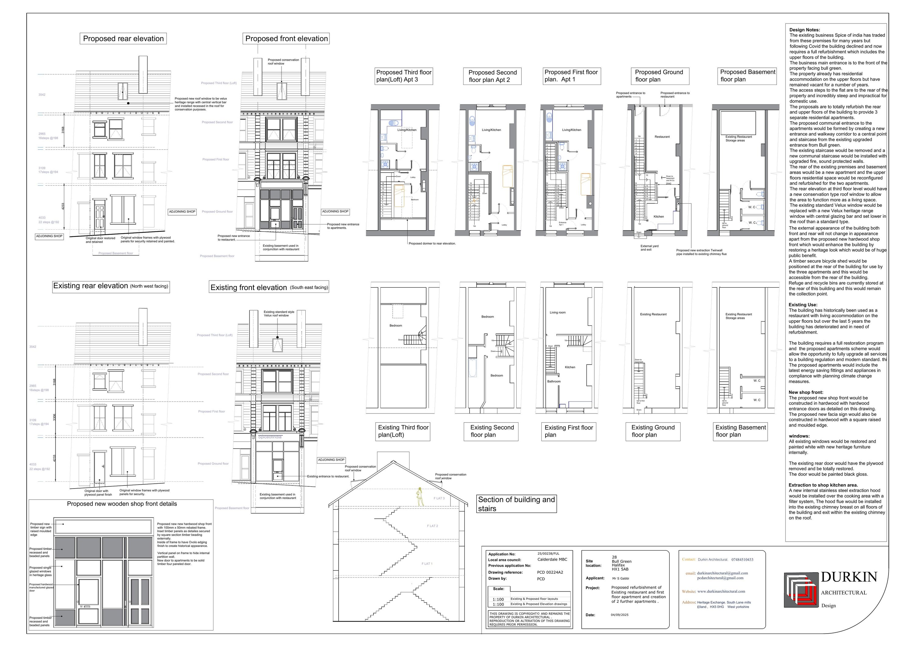
Conversion of former Sunday School into nine apartments with parking.

Type Change of use
Status Pending Consideration
Date 25 Sep 2025
Plan thumbnail

Internal alterations to form four self-contained one-bedroom apartments.

Type Listed building
Status Pending Consideration
Date 07 Oct 2025
Plan thumbnail

Conversion of two dwellings to eight one-bedroom apartments (net gain six units).

Type Change of use
Status Pending Consideration
Date 22 Oct 2025
Plan thumbnail

Conversion of offices (Class E) to four one-bedroom residential apartments (Class C3).

Type Change of use
Status Pending Consideration
Date 07 Oct 2025
Plan thumbnail

Vacant building converted to two residential units.

Type Change of use
Status Pending Consideration
Date 17 Nov 2025
Plan thumbnail

Conversion to 4 apartments, add link entrance, roof alterations and solar panels.

Type Change of use
Status Pending Consideration
Date 24 Nov 2025
Plan thumbnail

Change of use of HMO to three apartments.

Type Change of use
Status Permit
Date 21 Nov 2025
Plan thumbnail

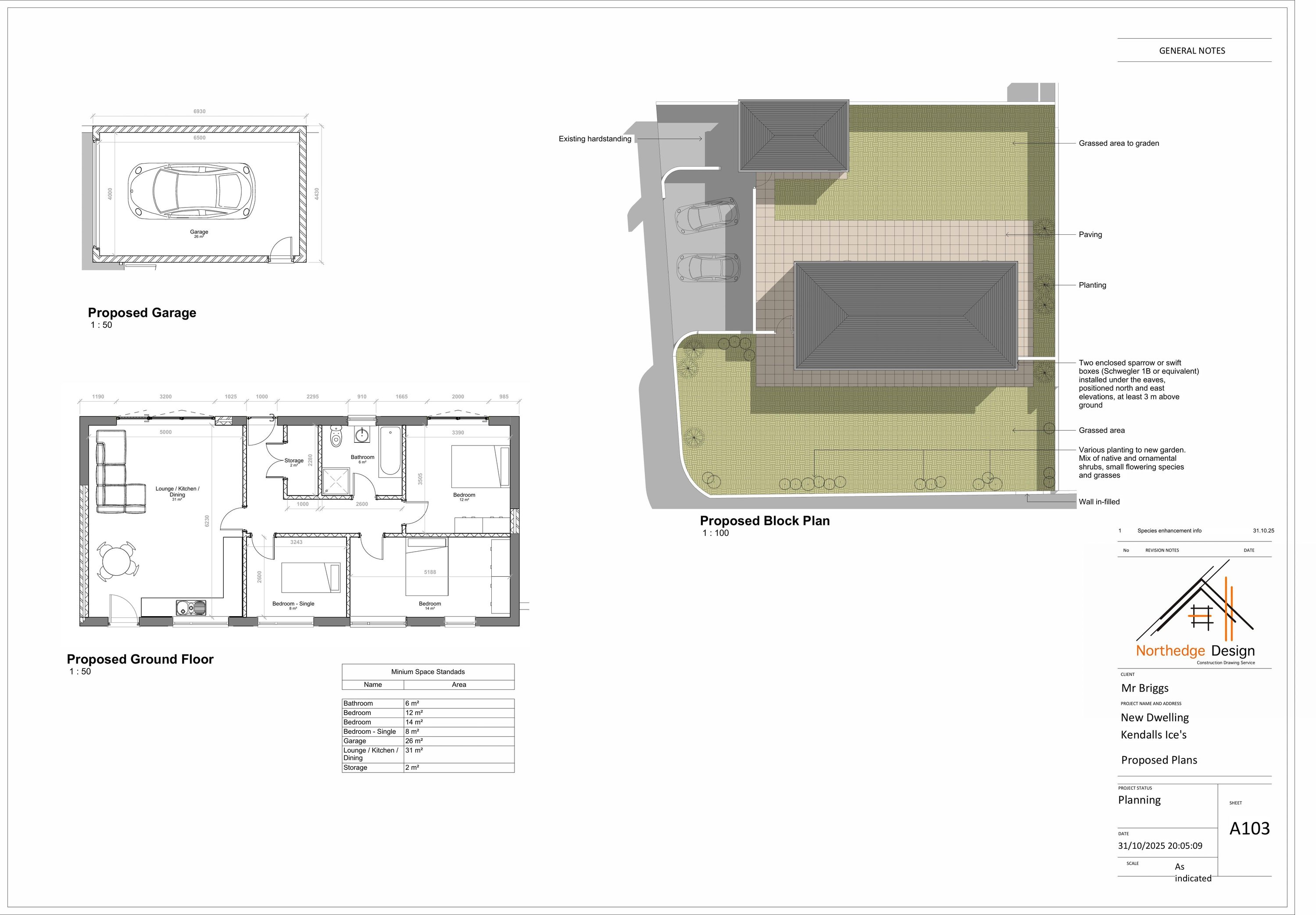
Demolition of existing dwelling to facilitate new dwelling

Type New housing
Status Pending Consideration
Date 21 Oct 2025
Plan thumbnail

Convert existing barn to dwelling

Type Change of use
Status Pending Consideration
Date 24 Nov 2025

Works to stabilise the structure comprising underpinning an outhouse, demolishing and rebuilding an existing porch on new foundations, renew...

Type Listed building
Status Pending Consideration
Date 03 Nov 2025
Plan thumbnail

Formation of external balcony to dwelling

Type House extension
Status Pending Consideration
Date 04 Dec 2025
Plan thumbnail

Demolition of garage to create new detached dwelling

Type New housing
Status Pending Consideration
Date Last month