← Back to Calderdale Council

Status

Permit Change of use
Received
22 Jul 2025
New dwellings
1

Full Proposal

Conversion of former public house (sui generis) to commercial use limited to Class E (a and c) at ground floor and self-contained apartment (Class C3) at first floor and loft area , with associated external alterations including demolition.

Documents

ANNEX 1
Supporting Information
Not archived · Council Link
APPLICATIONFORMREDACTED
Application Form
Not archived · Council Link
BAT NOCTURNAL SURVEY
Supporting Information
Not archived · Council Link
BIRD AND BAT BOX PLAN
Supporting Information
Not archived · Council Link
CLIMATE CHANGE STATEMENT
Supporting Information
Not archived · Council Link
CONSULTATION
Consultations
Not archived · Council Link
CONSULTEE COMMENT
Consultations
Not archived · Council Link
CONSULTEE COMMENT
Consultee Comment
Not archived · Council Link
CONSULTEE COMMENT
Consultations
Not archived · Council Link
CONSULTEE COMMENT SUBMITTED ONLINE
Consultee Comment
Not archived · Council Link
CONSULTEE COMMENT SUBMITTED ONLINE
Consultee Comment
Not archived · Council Link
CONSULTEE COMMENT SUBMITTED ONLINE
Consultee Comment
Not archived · Council Link
CONSULTEE COMMENT SUBMITTED ONLINE
Consultee Comment
Not archived · Council Link
CONSULTEE COMMENT SUBMITTED ONLINE
Consultee Comment
Not archived · Council Link
CONSULTEE COMMENT SUBMITTED ONLINE
Consultee Comment
Not archived · Council Link
CONSULTEE COMMENT SUBMITTED ONLINE
Consultee Comment
Not archived · Council Link
CONSULTEE COMMENT SUBMITTED ONLINE
Consultee Comment
Not archived · Council Link
CRIME PREVENTION STRATEGY
Supporting Information
Not archived · Council Link
CRIME PREVENTION STRATEGY
Supporting Information
Not archived · Council Link
Decision Notice
Decision Notice
Not archived · Council Link
DEMOLITION PLANS
Drawing
Not archived · Council Link
DESIGN & ACCESS STATEMENT
Supporting Information
Not archived · Council Link
DESIGN AND ACCESS STATEMENT
Supporting Information
Not archived · Council Link
DPLC0 - PP AFFECT LB IN C A
Other
Not archived · Council Link
EXISTING ELEVATIONS
Drawing
Not archived · Council Link
EXISTING FLOOR PLANS
Drawing
Not archived · Council Link
Drawing
Archived · Council Link
FLOOD RISK ASSESSMENT
Supporting Information
Not archived · Council Link
FLOOD RISK ASSESSMENT
Consultations
Not archived · Council Link
FLOOD RISK ASSESSMENT
Supporting Information
Not archived · Council Link
FLOOD RISK NOTE
Supporting Information
Not archived · Council Link
HERITAGE ASSESSMENT
Supporting Information
Not archived · Council Link
LOCATIONPLAN
The location plan
Not archived · Council Link
OFFICER REPORT
Report
Not archived · Council Link
PHASE 1 LAND CONTAMINATION DESKSTOP STUDY
Supporting Information
Not archived · Council Link
PLANNING STATEMENT
Supporting Information
Not archived · Council Link
PRELIMINARY ECOLOGICAL REPORT (PEA)
Supporting Information
Not archived · Council Link
PROPOSED ELEVATIONS
Drawing
Not archived · Council Link
PROPOSED ELEVATIONS
Drawing
Not archived · Council Link
PROPOSED ELEVATIONS
Drawing
Not archived · Council Link
PROPOSED ELEVATIONS
Drawing
Not archived · Council Link
Drawing
Archived · Council Link
Drawing
Archived · Council Link
Drawing
Archived · Council Link
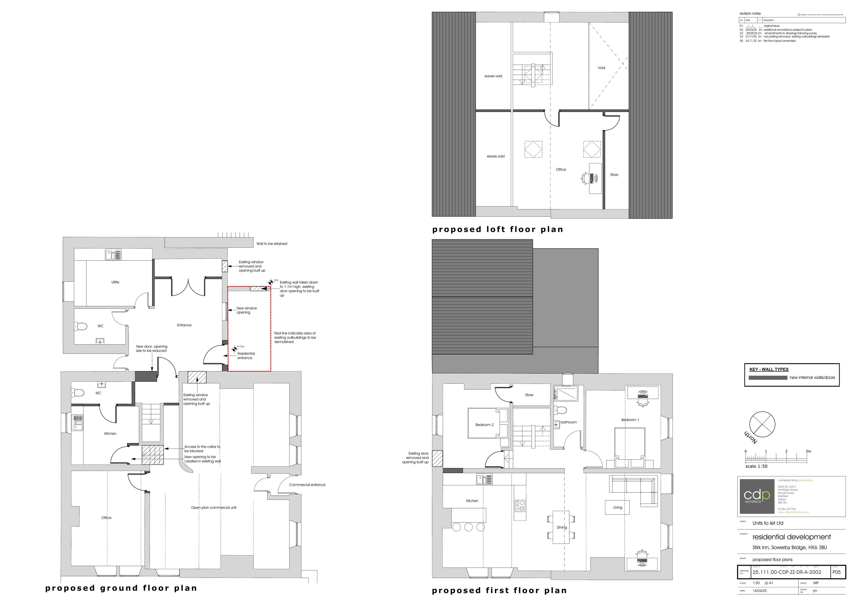
PROPOSED LOFT PLAN, GROUND AND FIRST FLOOR PLAN
Drawing
Not archived · Council Link
Drawing
Archived · Council Link
Drawing
Archived · Council Link
Drawing
Archived · Council Link
Drawing
Archived · Council Link
Drawing
Archived · Council Link
ROOF PLAN
Drawing
Not archived · Council Link
TREE SURVEY REPORT
Supporting Information
Not archived · Council Link

Take Action

Make your voice heard. Authorities need to hear from people who support new homes.

✉️ Write Email in Support View on Council Portal