← Back to Calderdale Council

Status

Permit Change of use
Received
13 Jan 2025
New dwellings
6

Summary

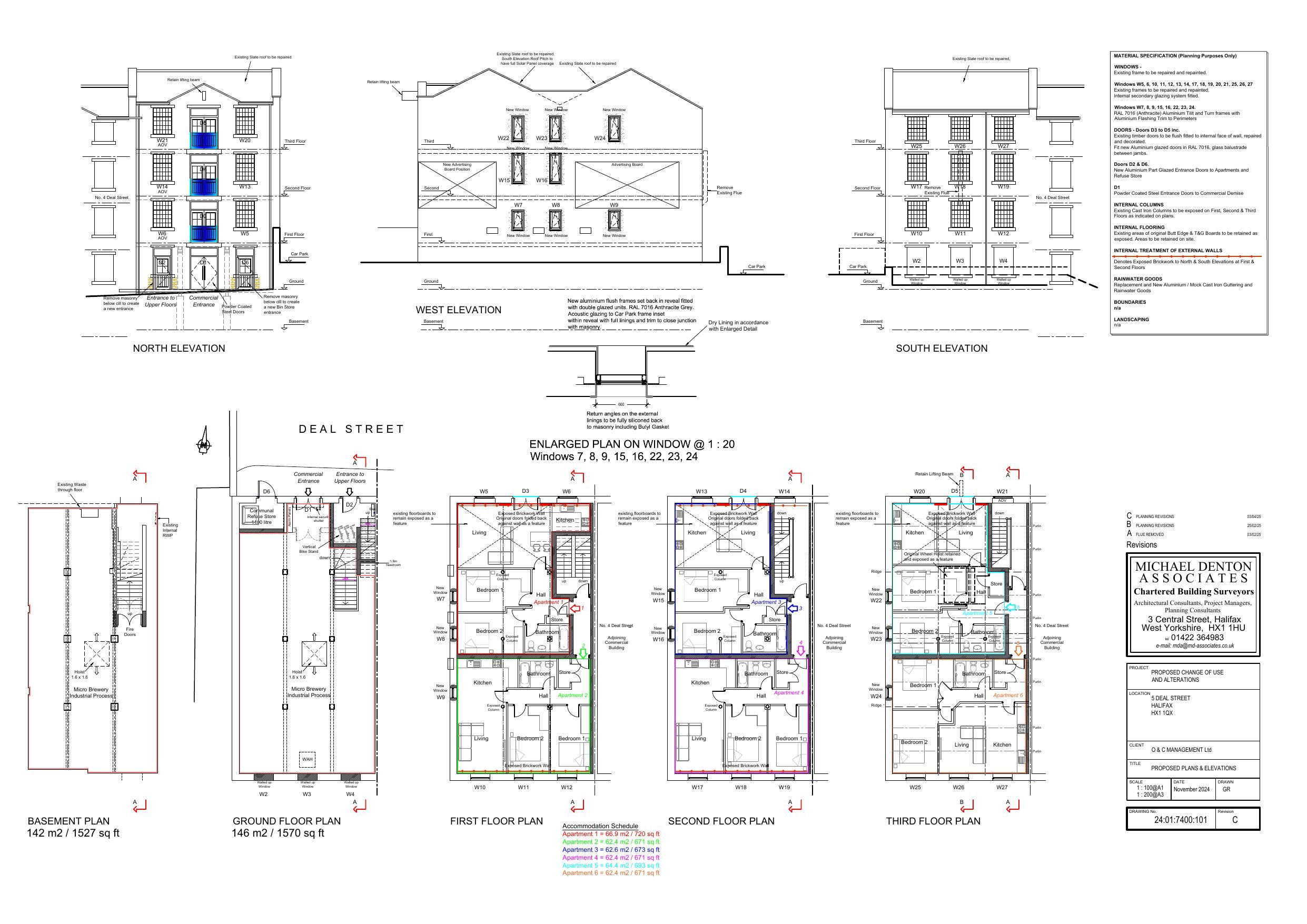
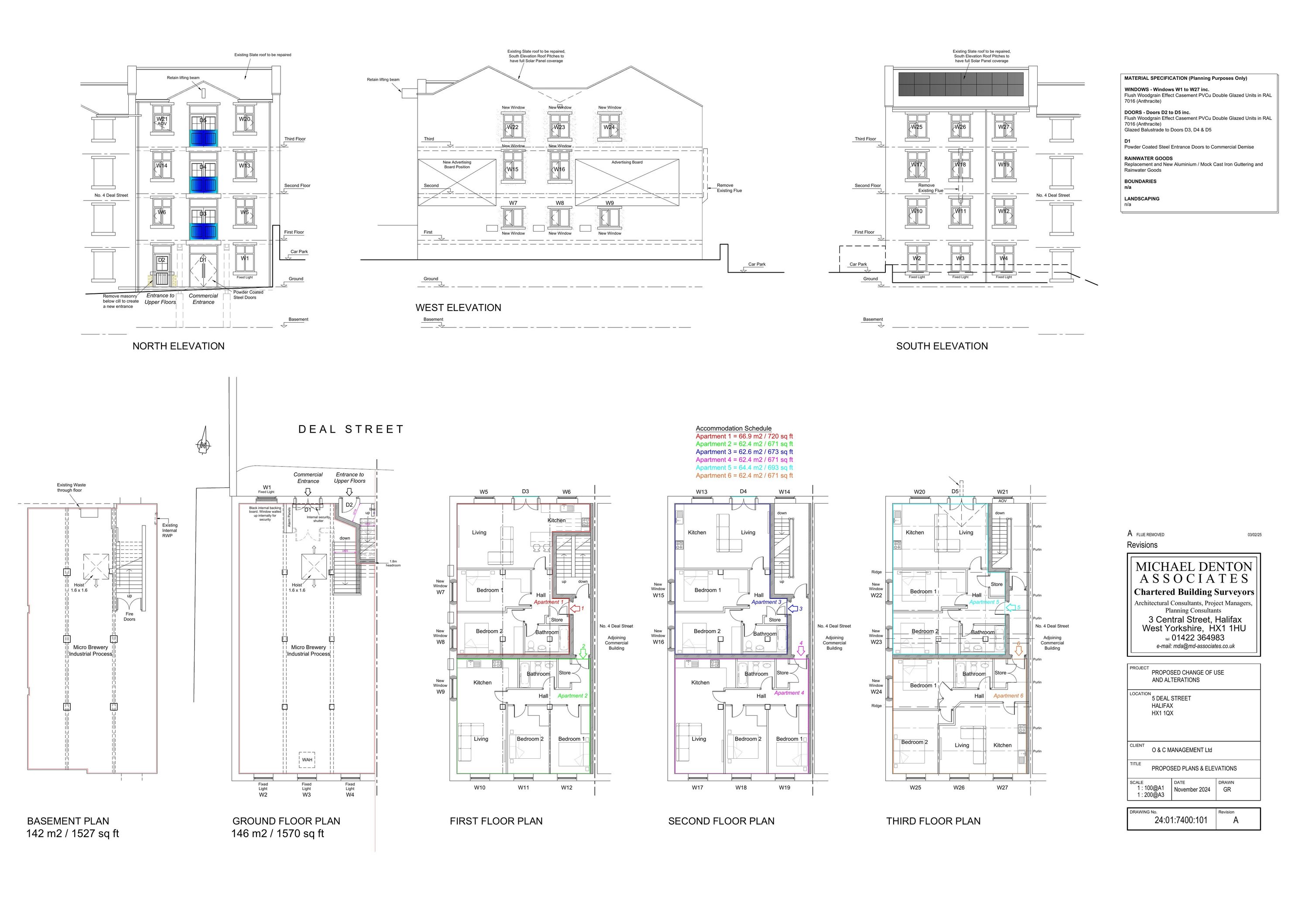
Convert industrial building to six apartments while retaining some industrial use.

Full Proposal

Conversion of industrial building to form 6 apartments & industrial use

Documents

APPLCATION FORM NO PERSONAL DATA
Application Form
Not archived · Council Link
CONSULTEE COMMENT SUBMITTED ONLINE
Consultee Comment
Not archived · Council Link
CONSULTEE COMMENT SUBMITTED ONLINE
Consultee Comment
Not archived · Council Link
Decision Notice
Decision Notice
Not archived · Council Link
DESIGN & ACCESS STATEMENT
Supporting Information
Not archived · Council Link
FLOOD RISK STATEMENT
Supporting Information
Not archived · Council Link
HERITAGE & JUSTIFICATION STATEMENT
Supporting Information
Not archived · Council Link
OFFICER'S REPORT
Report
Not archived · Council Link
PBC0 - PP/LBC ALTER LB IN CONS AREA
Other
Not archived · Council Link
PLANS & ELEVATIONS AS EXISTING
Drawing
Not archived · Council Link
POLICY CONSULTATION RESPONSE
Consultee Comment
Not archived · Council Link
WYP COMMENTS
Consultations
Not archived · Council Link

Take Action

Make your voice heard. Authorities need to hear from people who support new homes.

✉️ Write Email in Support View on Council Portal