← Back to Calderdale Council

Status

Permit Change of use
Received
25 Apr 2025
New dwellings
0

Summary

Change ground floor (Class E) to public house and drinking establishment with food (Sui Generis).

Full Proposal

Change of use of ground floors (Class E) to Public house and drinking establishment with food provision (Sui Generis)

Documents

APPLCATION FORM NO PERSONAL DATA
Application Form
Not archived · Council Link
COMMENTS IN RESPONSE TO PTEH COMMENTS
Applicant Correspondence
Not archived · Council Link
CONSULTEE COMMENT SUBMITTED ONLINE
Consultee Comment
Not archived · Council Link
CONSULTEE COMMENT SUBMITTED ONLINE
Consultee Comment
Not archived · Council Link
CONSULTEE COMMENT SUBMITTED ONLINE
Consultee Comment
Not archived · Council Link
CONSULTEE COMMENT SUBMITTED ONLINE
Consultee Comment
Not archived · Council Link
DCA0 - DEV IN CONS AREA NOTICE
Other
Not archived · Council Link
Decision Notice
Decision Notice
Not archived · Council Link
DESIGN & ACCESS STATEMENT
Supporting Information
Not archived · Council Link
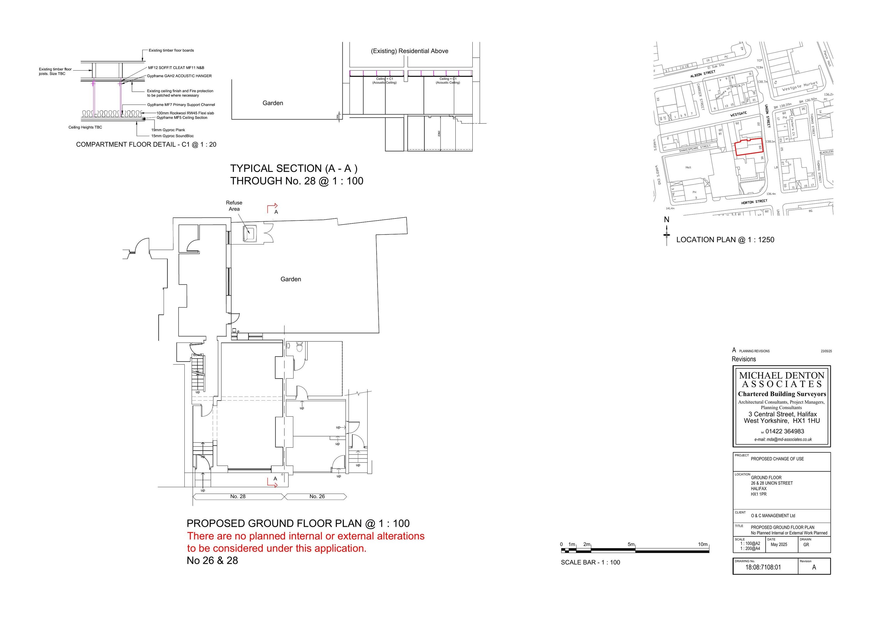
EXISTING GF PLAN
Drawing
Not archived · Council Link
EXT OF TIME AGREED
Applicant Correspondence
Not archived · Council Link
EXT OF TIME AGREED
Applicant Correspondence
Not archived · Council Link
FLOOD RISK ASSESSMENT STATEMENT
Supporting Information
Not archived · Council Link
HERITAGE STATEMENT
Supporting Information
Not archived · Council Link
OFFICER REPORT
Report
Not archived · Council Link
PTEH COMMENTS - FURTHER INFO REQUIRED.
Consultations
Not archived · Council Link

Take Action

Make your voice heard. Authorities need to hear from people who support new homes.

✉️ Write Email in Support View on Council Portal