← Back to Calderdale Council

Status

Permit House extension
Received
04 Apr 2025
New dwellings
0

Summary

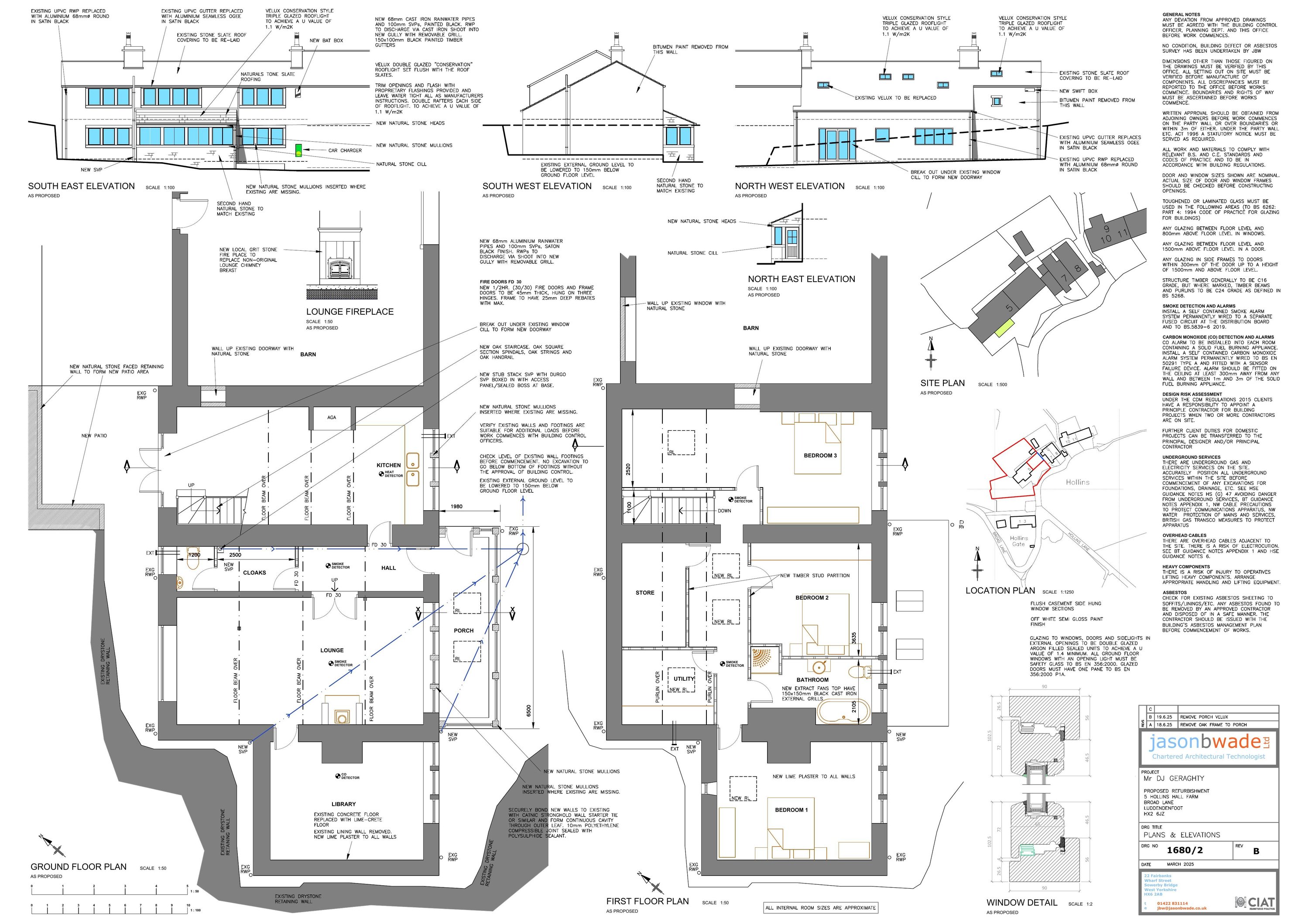
Refurbish existing house and rebuild existing porch.

Full Proposal

Refurbish existing house. Rebuild existing porch.

Documents

1400022869
Consultee Comment
Not archived · Council Link
APPLICATION FORM WITH NO PERSONAL DATA
Application Form
Not archived · Council Link
BAT ROOST POTENTIAL ASSESSMENT FORM
Supporting Information
Not archived · Council Link
CONSULTEE COMMENT
Consultee Comment
Not archived · Council Link
CONSULTEE COMMENT
Consultee Comment
Not archived · Council Link
CONSULTEE COMMENT
Consultee Comment
Not archived · Council Link
CONSULTEE COMMENT SUBMITTED ONLINE
Consultee Comment
Not archived · Council Link
Decision Notice
Decision Notice
Not archived · Council Link
DEMOLITION PLAN
Drawing
Not archived · Council Link
DESIGN AND ACCESS STATEMENT
Supporting Information
Not archived · Council Link
EXISTING PLAN (ELEVATION AND FLOOR PLAN)
Drawing
Not archived · Council Link
FLOOR RISK ANALYSIS
Supporting Information
Not archived · Council Link
OFFICER REPORT
Report
Not archived · Council Link
PHOTOGRAPG- INTERNAL PHOTOS
Photograph
Not archived · Council Link
PHOTOGRAPH- EXTERNAL PHOTOS
Photograph
Not archived · Council Link
PHOTOGRAPH- EXTERNAL PHOTOS NO 2
Photograph
Not archived · Council Link
SECTION X-X
Drawing
Not archived · Council Link
SECTION Y-Y
Drawing
Not archived · Council Link
SITE NOTICE
Other
Not archived · Council Link
Drawing
Archived · Council Link
The location plan
Archived · Council Link
SPECIES ENHANCEMENT STATEMENT
Supporting Information
Not archived · Council Link
SPECIES ENHANCEMENT STATEMNET
Supporting Information
Not archived · Council Link
WINDOW SECTIONS
Drawing
Not archived · Council Link

Take Action

Make your voice heard. Authorities need to hear from people who support new homes.

✉️ Write Email in Support View on Council Portal