← Back to Calderdale Council

Status

Permit Commercial
Received
30 May 2025
New dwellings
0

Summary

Two-storey building for vehicle hire/sales with parking, jet wash, valeting and maintenance.

Full Proposal

Part demolition of existing building (Class E) to form two storey building for use as offices for the hiring or sale of vehicles (to include parking, jet washing, valeting, maintenance and servicing of vehicles) (Class Sui Generis)

Documents

APPLICATIONFORMREDACTED
Application Form
Not archived · Council Link
BAT SURVEY REPORT
Report
Not archived · Council Link
BIODIVERSITY NET GAIN REPORT
Report
Not archived · Council Link
BIODIVERSITY OFFICER
Consultee Comment
Not archived · Council Link
BIODIVERSITY OFFICER
Consultee Comment
Not archived · Council Link
CLIMATE CHANGE STATEMENT
Supporting Information
Not archived · Council Link
CONDITION ASSESSMENTS
Supporting Information
Not archived · Council Link
CONSERVATION OFFICER
Consultee Comment
Not archived · Council Link
CONSERVATION OFFICER
Consultee Comment
Not archived · Council Link
Decision Notice
Decision Notice
Not archived · Council Link
DESIGN AND ACCESS STATEMENT
Supporting Information
Not archived · Council Link
ENVIRONMENTAL MANAGEMENT PLAN
Report
Not archived · Council Link
EXISTING PLANS AND ELEVATIONS
Drawing
Not archived · Council Link
Drawing
Archived · Council Link
FLOOD RISK ASSESSMENT
Supporting Information
Not archived · Council Link
HIGHWAY AUTHORITY
Consultee Comment
Not archived · Council Link
HIGHWAY AUTHORITY
Consultee Comment
Not archived · Council Link
HIGHWAY AUTHORITY
Consultee Comment
Not archived · Council Link
LIGHTING ASSESSMENT
Supporting Information
Not archived · Council Link
OFFICER REPORT
Report
Not archived · Council Link
PDC0 - PLANNING APP. AFFECT LB
Other
Not archived · Council Link
PHASE 1 REPORT
Supporting Information
Not archived · Council Link
PLANNING & HERITAGE STATEMENT
Supporting Information
Not archived · Council Link
PLANNING & HERITAGE STATEMENT
Supporting Information
Not archived · Council Link
PRELIMINARY ECOLOGICAL APPRAISAL
Report
Not archived · Council Link
PRELIMINARY ROOST ASSESSMENT AND ECOLOGICAL ENHANCEMENT
Supporting Information
Not archived · Council Link
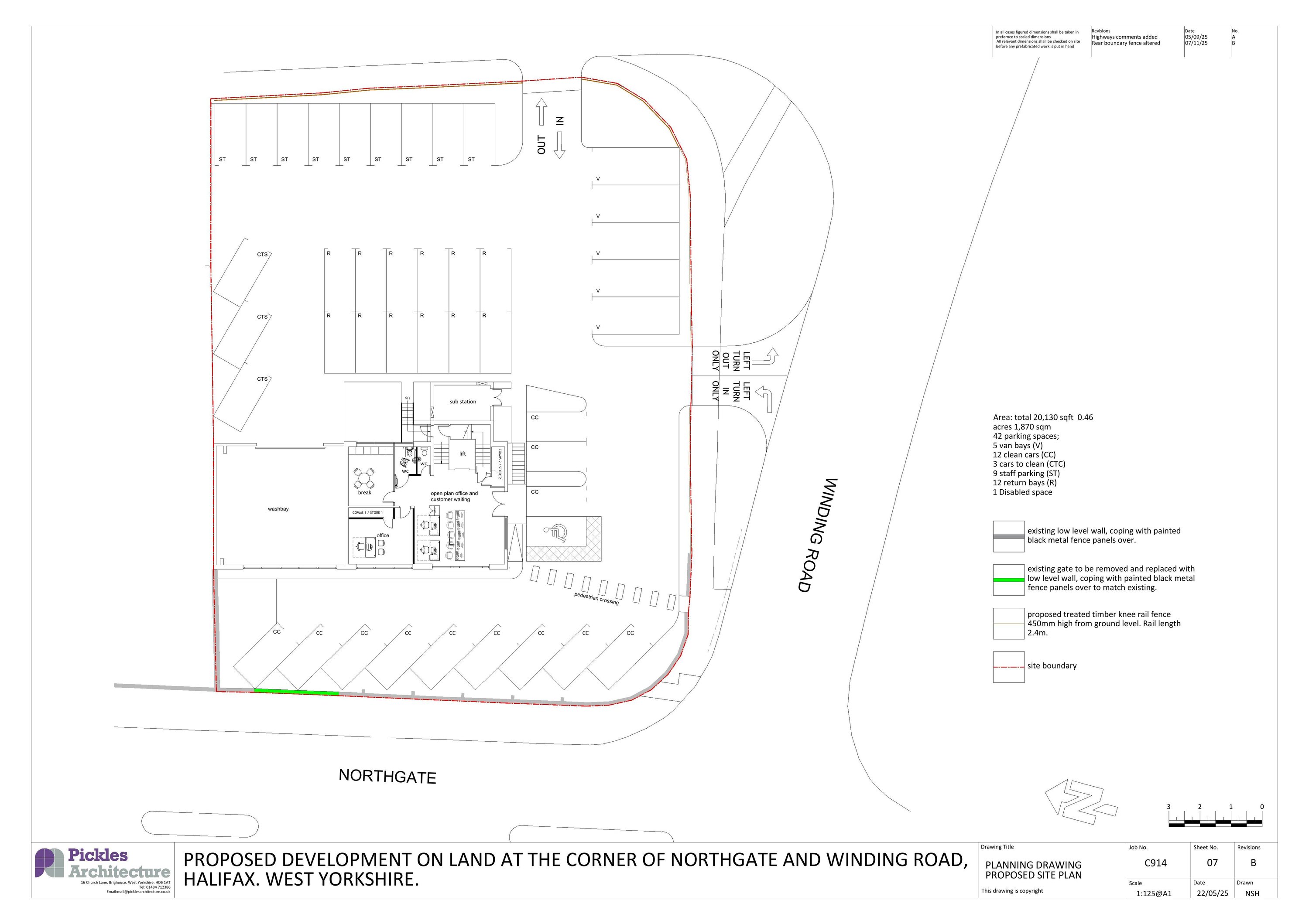
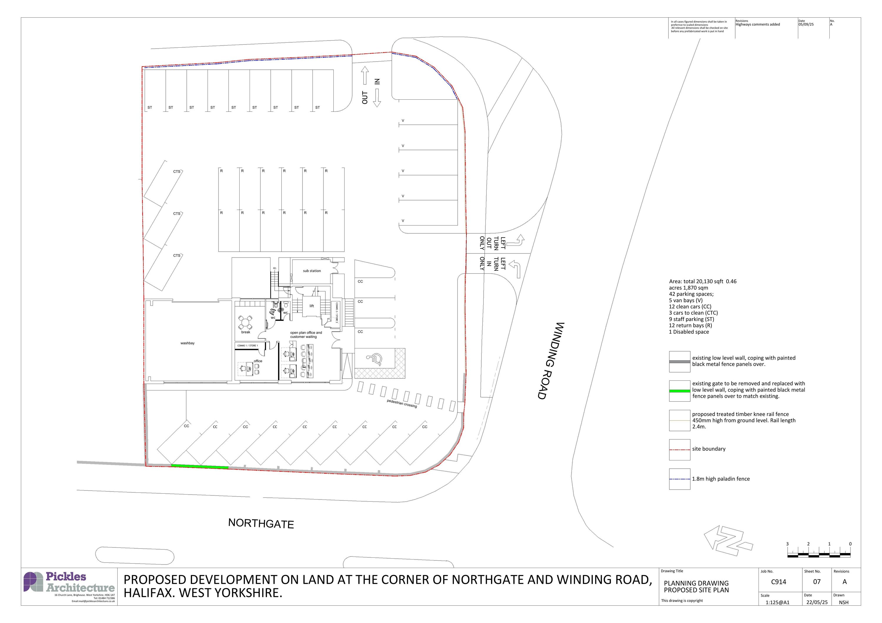
PROPOSED BLOCK PLAN
Drawing
Not archived · Council Link
PROPOSED LANDSCAPING PLAN
Drawing
Not archived · Council Link
Drawing
Archived · Council Link
Drawing
Archived · Council Link
Drawing
Archived · Council Link
PROPOSED STREET SCENE AND ROOF PLAN
Drawing
Not archived · Council Link
RECYCLING AND WASTE PROVISIONS
Supporting Information
Not archived · Council Link
Drawing
Archived · Council Link
SPECIES ENHANCEMENT STATEMENT
Supporting Information
Not archived · Council Link
STATUTORY METRIC
Supporting Information
Not archived · Council Link
SWEPT PATH - CAR TRANSPORTER
Drawing
Not archived · Council Link
TRANSPORT STATEMENT
Report
Not archived · Council Link
WEST YORKSHIRE POLICE
Consultee Comment
Not archived · Council Link

Take Action

Make your voice heard. Authorities need to hear from people who support new homes.

✉️ Write Email in Support View on Council Portal