← Back to Calderdale Council

Status

Pending Consideration Change of use
Received
07 Oct 2025
New dwellings
4

Summary

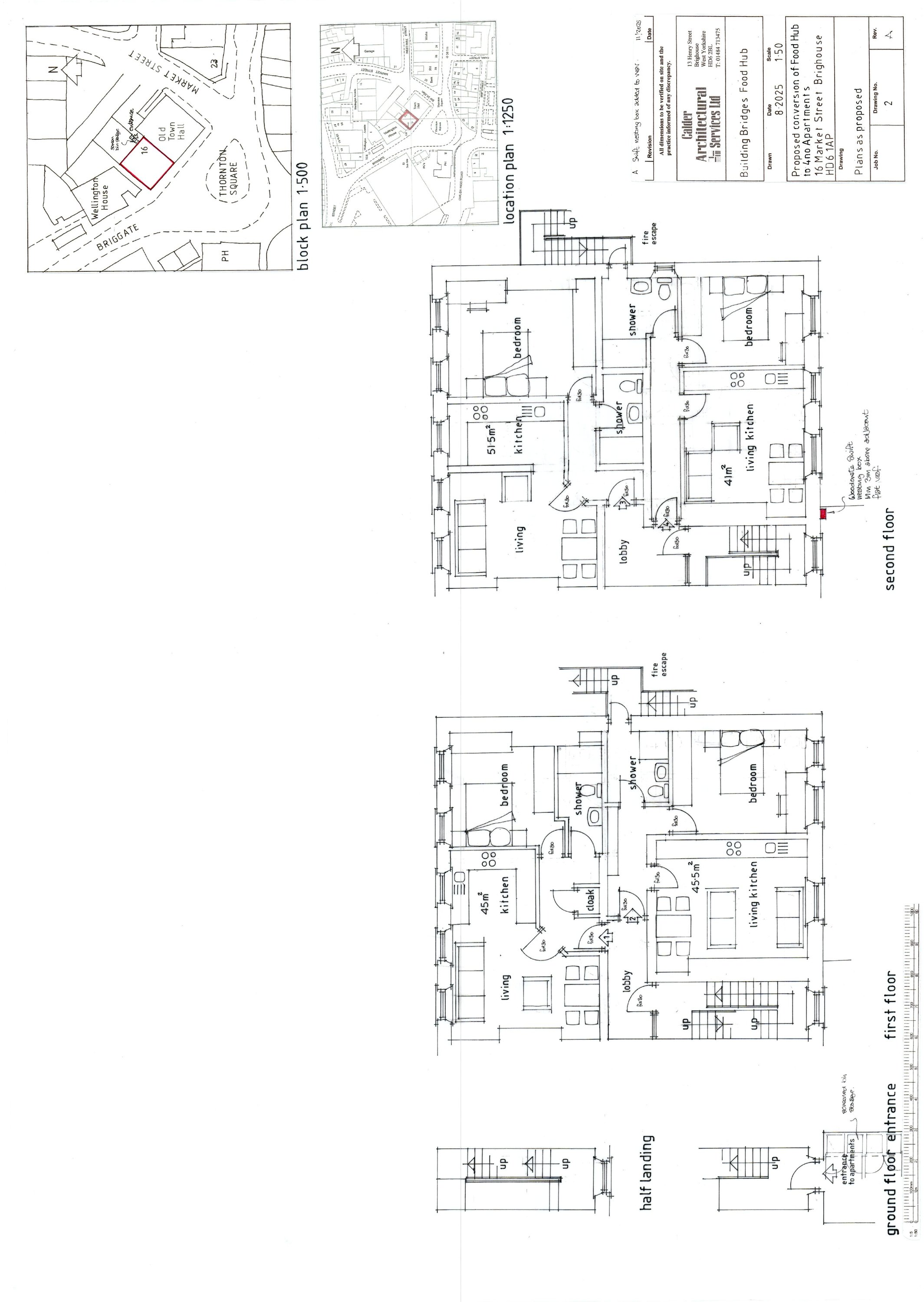
Conversion of offices (Class E) to four one-bedroom residential apartments (Class C3).

Full Proposal

Conversion of offices to 4 one bedroom self contained apartments including change of use from Class E to C3

Documents

APPLICATION FORM NO PERSONAL DATA
Application Form
Not archived · Council Link
BAT ASSESSMENT FORM
Supporting Information
Not archived · Council Link
CLIMATE MITIGATION STATEMENT
Supporting Information
Not archived · Council Link
CONSULTEE COMMENT
Consultations
Not archived · Council Link
CONSULTEE COMMENT SUBMITTED ONLINE
Consultee Comment
Not archived · Council Link
CONSULTEE COMMENT SUBMITTED ONLINE
Consultee Comment
Not archived · Council Link
CONSULTEE COMMENT SUBMITTED ONLINE
Consultee Comment
Not archived · Council Link
CONSULTEE COMMENT SUBMITTED ONLINE
Consultee Comment
Not archived · Council Link
CONSULTEE COMMENT SUBMITTED ONLINE
Consultee Comment
Not archived · Council Link
DESIGN & ACCESS STATEMENT
Supporting Information
Not archived · Council Link
EXISTING PLANS
Drawing
Not archived · Council Link
FLOOD MAP
Drawing
Not archived · Council Link
FLOOD RISK ASSESSMENT
Supporting Information
Not archived · Council Link
HERITAGE STATEMENT
Supporting Information
Not archived · Council Link
IMAGE OF NESTING BOX
Photograph
Not archived · Council Link
PLB0 - PP/LBC TO ALTER A LISTED BUILDING
Other
Not archived · Council Link
Drawing
Archived · Council Link
SPECIES ENHANCEMENT STATEMENT
Supporting Information
Not archived · Council Link
UPDATED FLOOD RISK ASSESSMENT
Supporting Information
Not archived · Council Link

Take Action

Make your voice heard. Authorities need to hear from people who support new homes.

✉️ Write Email in Support View on Council Portal