← Back to Calderdale Council

Status

Permit Change of use
Received
18 Jun 2025
New dwellings
0

Full Proposal

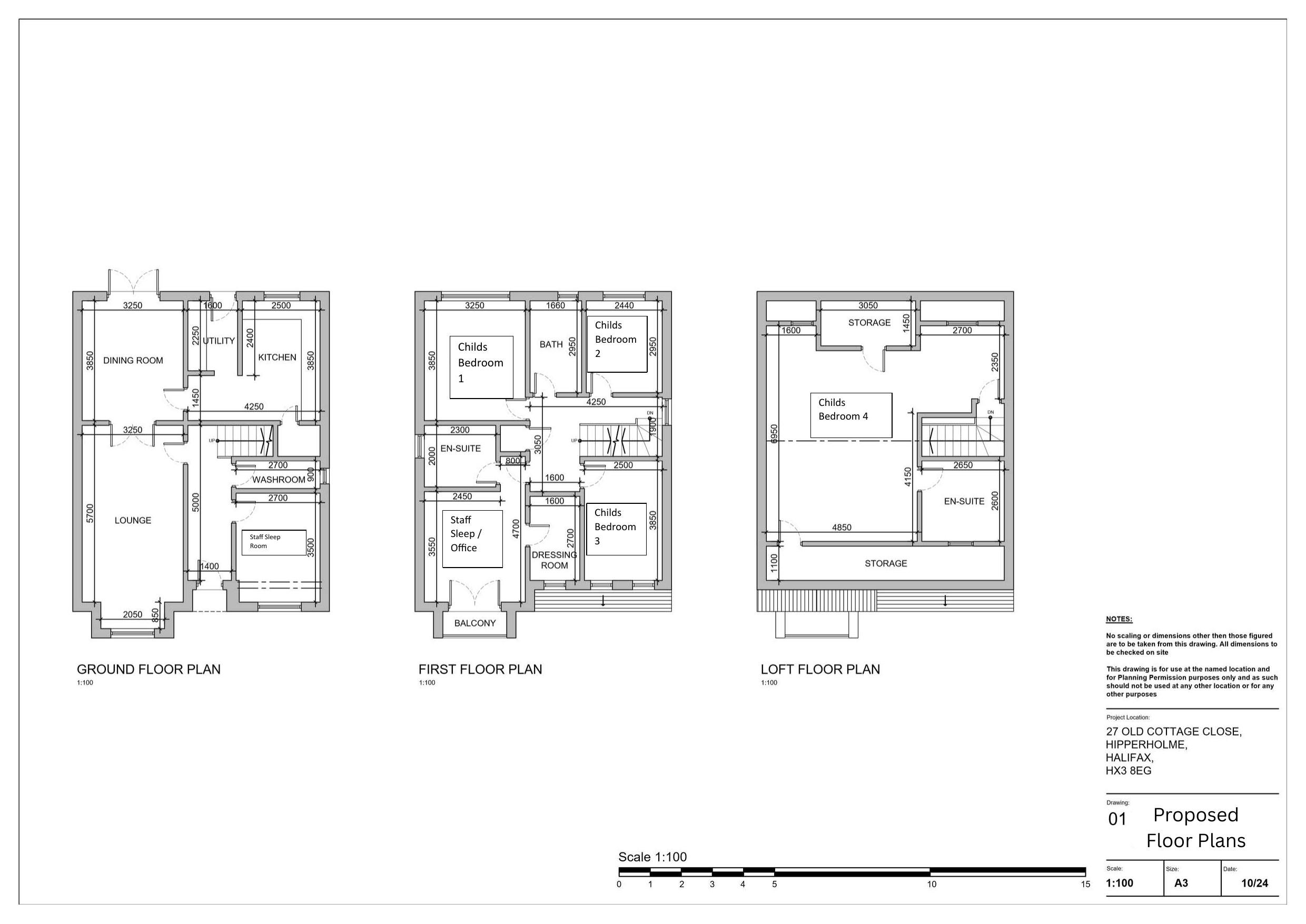
Change of use from residential property (C3) to a children's home (C2) and demolition of garage to create parking

Documents

APPLICATIONFORMREDACTED
Application Form
Not archived · Council Link
BAT SELF ASSESSMENT FORM
Supporting Information
Not archived · Council Link
BNG ASSESSMENT
Supporting Information
Not archived · Council Link
CLIMATE CHANGE STATEMENT
Supporting Information
Not archived · Council Link
CONSULTEE COMMENT SUBMITTED ONLINE
Consultee Comment
Not archived · Council Link
CONSULTEE COMMENT SUBMITTED ONLINE
Consultee Comment
Not archived · Council Link
CONSULTEE COMMENT SUBMITTED ONLINE
Consultee Comment
Not archived · Council Link
Decision Notice
Decision Notice
Not archived · Council Link
DESK STUDY
Supporting Information
Not archived · Council Link
DRAINAGE SCHEME
Supporting Information
Not archived · Council Link
Drawing
Archived · Council Link
FLOOD RISK ASSESSMENT
Supporting Information
Not archived · Council Link
LOCATION PLAN
Drawing
Not archived · Council Link
METRICS SMALL SITE
Supporting Information
Not archived · Council Link
OFFICER REPORT
Report
Not archived · Council Link
OLD COTTAGE - PLANNING APPLICATION
Supporting Information
Not archived · Council Link
PRE & POST DEVELOPMENT PLAN BASELINE MAP
Supporting Information
Not archived · Council Link
Drawing
Archived · Council Link
Drawing
Archived · Council Link
SITE PHOTOS
Drawing
Not archived · Council Link
TOPOGRAPHICAL SURVEY
Drawing
Not archived · Council Link
WEST YORKSHIRE POLICE
Consultee Comment
Not archived · Council Link

Take Action

Make your voice heard. Authorities need to hear from people who support new homes.

✉️ Write Email in Support View on Council Portal