← Back to Calderdale Council

Status

Pending Consideration New housing
Received
15 Aug 2025
New dwellings
2

Summary

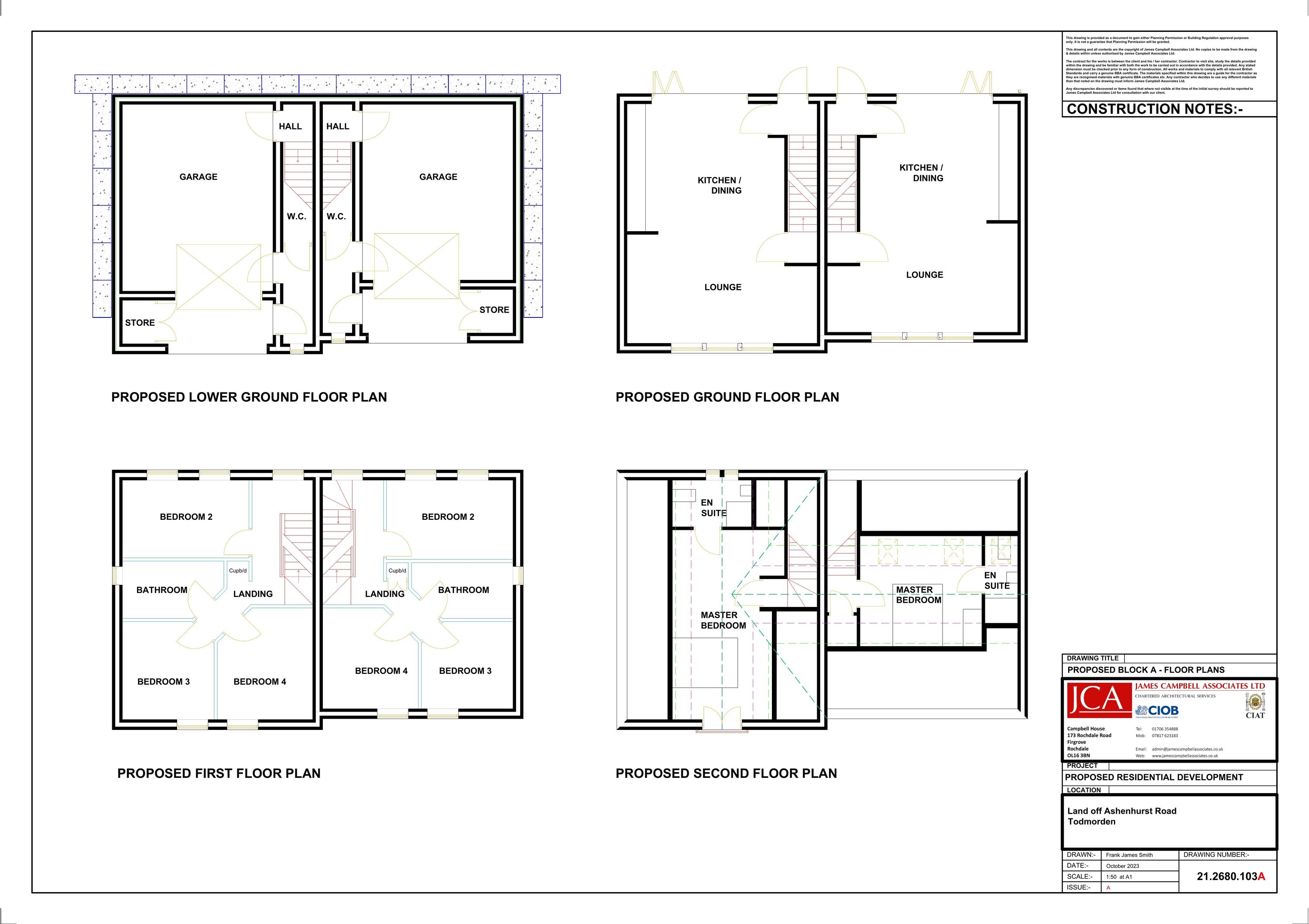
Two semi-detached dwellings and associated works (part-retrospective).

Full Proposal

Two semi-detached dwellings and associated works (Part-Retrospective)

Documents

APPLICATION SUBMISSION LETTER (AUGUST 2025)
Supporting Information
Not archived · Council Link
APPLICATIONFORMREDACTED
Application Form
Not archived · Council Link
BAT ASSESSMENT FORM
Supporting Information
Not archived · Council Link
CLIMATE CHANGE STATEMENT
Supporting Information
Not archived · Council Link
CONSULTEE COMMENT SUBMITTED ONLINE
Consultee Comment
Not archived · Council Link
CONSULTEE COMMENT SUBMITTED ONLINE
Consultee Comment
Not archived · Council Link
OBJECTION
Representations
Not archived · Council Link
PHOTO
Photograph
Not archived · Council Link
PHOTO 1 - UNITS 18 & 19
Photograph
Not archived · Council Link
PROPOSED ELEVATIONS
Drawing
Not archived · Council Link
Drawing
Archived · Council Link
PROPOSED SITE SECTIONS
Drawing
Not archived · Council Link
The location plan
Archived · Council Link
Drawing
Archived · Council Link
SPECIES ENHANCEMENT STATEMENT
Supporting Information
Not archived · Council Link

Take Action

Make your voice heard. Authorities need to hear from people who support new homes.

✉️ Write Email in Support View on Council Portal