← Back to Calderdale Council

Status

Pending Consideration New housing
Received
21 Aug 2025
New dwellings
20

Summary

Conversions and construction of 22 dwellings across site, with landscaping and biodiversity net gain provision.

Full Proposal

Conversion of Scaitcliffe Hall and Annex to 3, four bed dwellings, conversion of Coach House to 2, three bed and 1 four bed dwelling, conversion of Barn to 1, two bed and 1, three bed dwelling, demolition of existing modern extension to facilitate the construction of 9 new build dwellings and a further 5 new build dwellings on former car park, together with associated landscaping across the site and BNG provision outside of the residential curtilage.

Documents

AIR QUALITY ASSESSMENT
Supporting Information
Not archived · Council Link
APPLICATION FORM REDACTED
Application Form
Not archived · Council Link
ARBORICULTURAL REPORT AND AIA AND AMS FINAL PART 2
Supporting Information
Not archived · Council Link
ARBORICULTURAL REPORT AND AIA AND AMS FINAL PART1
Supporting Information
Not archived · Council Link
BHCA
Supporting Information
Not archived · Council Link
BIDOVIERSITY NET GAIN ASSESSMENT PART 1
Supporting Information
Not archived · Council Link
BIDOVIERSITY NET GAIN ASSESSMENT PART 2
Supporting Information
Not archived · Council Link
BIDOVIERSITY NET GAIN ASSESSMENT PART 3
Supporting Information
Not archived · Council Link
CLIMATE CHANGE STATEMENT PROFORMA - SCAITCLIFFE HALL
Supporting Information
Not archived · Council Link
CONSULTEE COMMENT
Consultations
Not archived · Council Link
CONSULTEE COMMENT SUBMITTED ONLINE
Consultee Comment
Not archived · Council Link
CONSULTEE COMMENT SUBMITTED ONLINE
Consultee Comment
Not archived · Council Link
CONSULTEE COMMENT SUBMITTED ONLINE
Consultee Comment
Not archived · Council Link
CONSULTEE COMMENT SUBMITTED ONLINE
Consultee Comment
Not archived · Council Link
CONSULTEE COMMENT SUBMITTED ONLINE
Consultee Comment
Not archived · Council Link
CONSULTEE COMMENT SUBMITTED ONLINE
Consultee Comment
Not archived · Council Link
CONSULTEE COMMENT SUBMITTED ONLINE
Consultee Comment
Not archived · Council Link
CONSULTEE COMMENTS
Consultations
Not archived · Council Link
DEMOLITION PLAN
Drawing
Not archived · Council Link
DESIGN AND ACCESS STATEMENT
Supporting Information
Not archived · Council Link
DOCUMENTS AND DRAWINGS LIST
Supporting Information
Not archived · Council Link
EXISTING ELEVATIONS - SCAITCLIFFE HALL
Drawing
Not archived · Council Link
EXISTING ELEVATIONS COACH HOUSE
Drawing
Not archived · Council Link
EXISTING ELEVATIONS THE BARN
Drawing
Not archived · Council Link
EXISTING FIRST FLOOR PLAN SCAITCLIFFE HALL
Drawing
Not archived · Council Link
EXISTING FLOOR PLANS COACH HOUSE
Drawing
Not archived · Council Link
EXISTING FLOOR PLANS THE BARN
Drawing
Not archived · Council Link
EXISTING GROUND FLOOR PLAN - SCAITCLIFFE HALL
Drawing
Not archived · Council Link
EXISTING GROUND FLOOR PLAN - SCAITCLIFFE HALL
Drawing
Not archived · Council Link
EXISTING SECOND FLOOR PLAN - SCAITCLIFFE HALL
Drawing
Not archived · Council Link
Drawing
Archived · Council Link
Drawing
Archived · Council Link
Drawing
Archived · Council Link
FLOOD RISK AND DRAINAGE IMPACT ASSESSMENT
Supporting Information
Not archived · Council Link
FLOOD RISK ASSESSMENT PART 1
Supporting Information
Not archived · Council Link
FORM 1 CIL ADDITIONAL INFORMATION - SCAITCLIFFE HALL - 2
Supporting Information
Not archived · Council Link
FRDS - FRDIA - SCAITCLIFFE HALL TODMORDEN_PART2
Supporting Information
Not archived · Council Link
HABITAT MANAGEMENT AND MONITORING PLAN
Supporting Information
Not archived · Council Link
HERITAGE STATEMENT
Supporting Information
Not archived · Council Link
LANDSCAPE DESIGN STATEMENT
Supporting Information
Not archived · Council Link
LANDSCAPE PROPOSALS
Drawing
Not archived · Council Link
LOCATION PLAN
Drawing
Not archived · Council Link
MINERALS ASSESSMENT
Supporting Information
Not archived · Council Link
OPEN SPACE CONTRIBUTION REQUEST
Supporting Information
Not archived · Council Link
PLANNING STATEMENT
Supporting Information
Not archived · Council Link
PLB0 - PP/LBC TO ALTER A LISTED BUILDING
Other
Not archived · Council Link
PLB0 - PP/LBC TO ALTER A LISTED BUILDING
Other
Not archived · Council Link
PLOT 10 ELEVATIONS
Drawing
Not archived · Council Link
PLOT 10 FLOOR PLANS
Drawing
Not archived · Council Link
PLOT 11,12, &13 ELEVATIONS
Drawing
Not archived · Council Link
PLOT 11,12, &13 FLOOR PLAN
Drawing
Not archived · Council Link
PLOT 14 ELEVATIONS
Drawing
Not archived · Council Link
PLOT 14 FLOOR PLANS
Drawing
Not archived · Council Link
PLOT 15 ELEVATIONS
Drawing
Not archived · Council Link
PLOT 15 FLOOR PLANS
Drawing
Not archived · Council Link
PLOT 16 ELEVATIONS
Drawing
Not archived · Council Link
PLOT 16 FLOOR PLAN
Drawing
Not archived · Council Link
PLOT 16 FLOOR PLANS
Drawing
Not archived · Council Link
PLOT 17 ELEVATIONS
Drawing
Not archived · Council Link
PLOT 17 FLOOR PLANS
Drawing
Not archived · Council Link
PLOT 18 ELEVATIONS
Drawing
Not archived · Council Link
PLOT 18 FLOOR PLANS
Drawing
Not archived · Council Link
PLOT 19 ELEVATIONS
Drawing
Not archived · Council Link
PLOT 19 FLOOR PLANS
Drawing
Not archived · Council Link
PLOT 20 & 21 ELEVATIONS
Drawing
Not archived · Council Link
PLOT 20 & 21 FLOOR PLANS
Drawing
Not archived · Council Link
PLOT 22 ELEVATIONS
Drawing
Not archived · Council Link
PLOT 22 FLOOR PLANS
Drawing
Not archived · Council Link
PLOT 9 ELEVATIONS
Drawing
Not archived · Council Link
PLOT 9 FLOOR PLANS
Drawing
Not archived · Council Link
PRELIMINARY ECOLOGICAL APPRAISAL AND ROOST ASSESSMENT
Photograph
Not archived · Council Link
PROPOSED ATTIC FLOOR PLANS -SCAITCLIFFE HALL
Drawing
Not archived · Council Link
PROPOSED BASEMENT FLOOR PLANS -SCAITCLIFFE HALL
Drawing
Not archived · Council Link
PROPOSED ELEVATIONS
Drawing
Not archived · Council Link
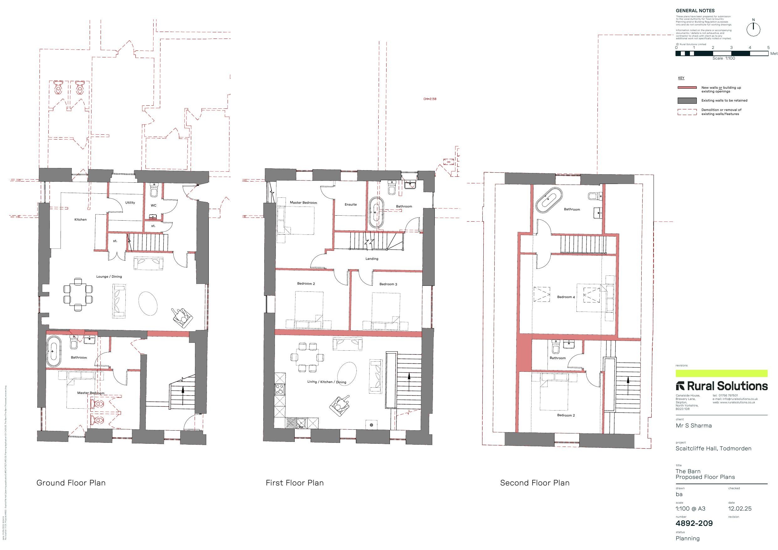
PROPOSED ELEVATIONS - THE BARN
Drawing
Not archived · Council Link
PROPOSED ELEVATIONS -COACH HOUSE
Drawing
Not archived · Council Link
PROPOSED FIRST FLOOR PLAN
Drawing
Not archived · Council Link
PROPOSED FIRST FLOOR PLANS - SCAITCLIFFE HALL
Drawing
Not archived · Council Link
PROPOSED GROUND FLOOR - SCAITCLIFFE HALL
Drawing
Not archived · Council Link
PROPOSED GROUND FLOOR PLAN
Drawing
Not archived · Council Link
PROPOSED SECOND FLOOR AND ROOF PLAN
Drawing
Not archived · Council Link
Drawing
Archived · Council Link
SCAITCLIFFE PRELIMINARY CONDITION SURVEY 7TH AUGUST 2025
Supporting Information
Not archived · Council Link
Drawing
Archived · Council Link
Drawing
Archived · Council Link
SITE WIDE LANDSCAPE PROPOSALS
Drawing
Not archived · Council Link
STATUTORY BIODIVERSITY METRIC
Supporting Information
Not archived · Council Link
STRUCTURAL REPORT
Supporting Information
Not archived · Council Link
STRUCTURAL REPORT -PHOTOS
Photograph
Not archived · Council Link
STRUCTURAL REPORT -PHOTOS
Photograph
Not archived · Council Link
STRUCTURAL REPORT -PHOTOS
Photograph
Not archived · Council Link
TRANSPORT STATEMENT
Supporting Information
Not archived · Council Link
TRANSPORT STATEMENT PART 2
Supporting Information
Not archived · Council Link
WEST YORKSHIRE POLICE RESPONSE
Consultations
Not archived · Council Link

Take Action

Make your voice heard. Authorities need to hear from people who support new homes.

✉️ Write Email in Support View on Council Portal