← Back to Calderdale Council

Status

Permit House extension
Received
19 Sep 2025
New dwellings
0

Full Proposal

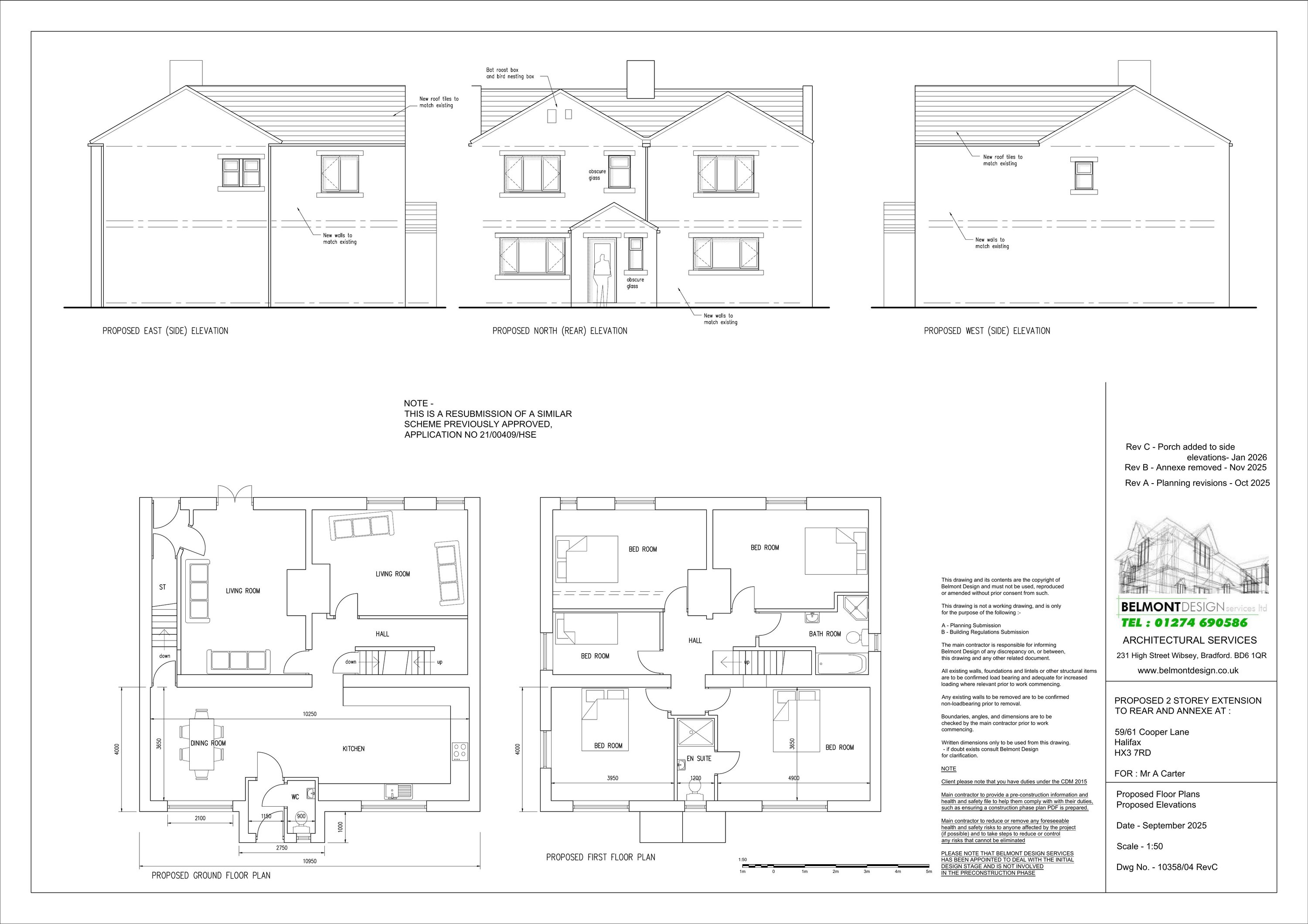
Two storey extension to rear of existing dwelling.

Documents

APPLICATIONFORMREDACTED
Application Form
Not archived · Council Link
BAT ASSESSMENT FORM
Supporting Information
Not archived · Council Link
CONSULTEE COMMENT SUBMITTED ONLINE
Consultee Comment
Not archived · Council Link
Decision Notice
Decision Notice
Not archived · Council Link
EXISTING PLANS AND ELEVATIONS
Drawing
Not archived · Council Link
Drawing
Archived · Council Link
FLOOD RISK ASSESSMENT
Supporting Information
Not archived · Council Link
LOCATION PLAN
Drawing
Not archived · Council Link
OFFICER REPORT
Report
Not archived · Council Link
PHOTOGRAPHS
Photograph
Not archived · Council Link
Drawing
Archived · Council Link
Drawing
Archived · Council Link
SURFACE WATER DRAINAGE FORM
Supporting Information
Not archived · Council Link

Take Action

Make your voice heard. Authorities need to hear from people who support new homes.

✉️ Write Email in Support View on Council Portal