← Back to Calderdale Council

Status

Pending Consideration New housing
Received
09 Oct 2025
New dwellings
2

Summary

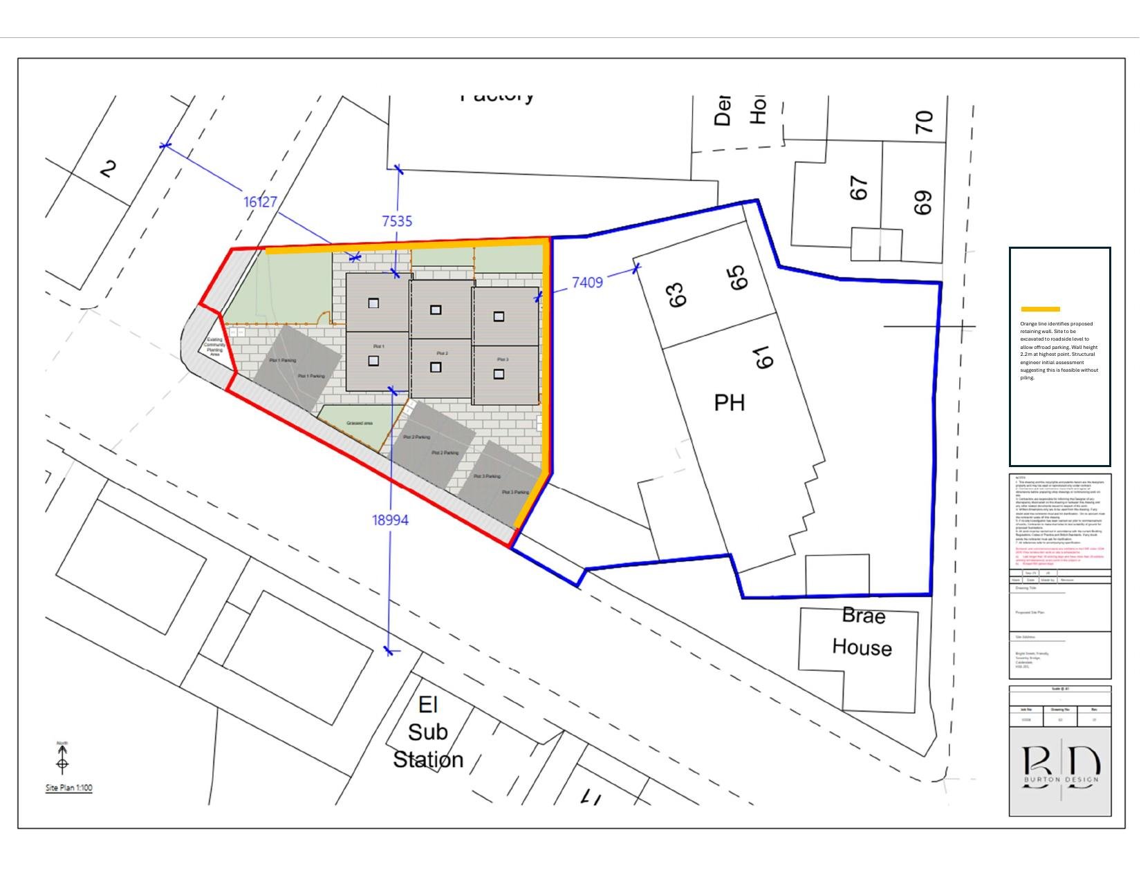
Outline residential development of up to two dwellings (all matters reserved).

Full Proposal

Residential development of up to 2 dwellings (all matters reserved).

Documents

ACCESSIBLE HOMES STATEMENT
Supporting Information
Not archived · Council Link
AFFORDABLE HOUSING STATEMENT
Supporting Information
Not archived · Council Link
APPLICATION FORM NO PERSONAL DATA
Application Form
Not archived · Council Link
CLIMATE CHANGE STATEMENT PROFORMA
Supporting Information
Not archived · Council Link
CONSULTEE COMMENT SUBMITTED ONLINE
Consultee Comment
Not archived · Council Link
CONSULTEE COMMENT SUBMITTED ONLINE
Consultee Comment
Not archived · Council Link
CONSULTEE COMMENT SUBMITTED ONLINE
Consultee Comment
Not archived · Council Link
CONSULTEE COMMENTS
Consultee Comment
Not archived · Council Link
DESIGN AND ACCESS STATEMENT
Supporting Information
Not archived · Council Link
ECOLOGICAL IMPACT ASSESSMENT
Supporting Information
Not archived · Council Link
Drawing
Archived · Council Link
FLOOD RISK ASSESSMENT
Supporting Information
Not archived · Council Link
HIGHWAYS AMENDEMENT
Drawing
Not archived · Council Link
LAND CONTAMINATION STATEMENT
Supporting Information
Not archived · Council Link
PROPOSED ELEVATIONS
Drawing
Not archived · Council Link
Drawing
Archived · Council Link
Drawing
Archived · Council Link
Drawing
Archived · Council Link
Drawing
Archived · Council Link
Drawing
Archived · Council Link
SPECIES ENHANCEMENT STATEMENT
Supporting Information
Not archived · Council Link
STATUTORY_BIODIVERSITY_METRIC_CALCULATION_TOOL
Supporting Information
Not archived · Council Link

Take Action

Make your voice heard. Authorities need to hear from people who support new homes.

✉️ Write Email in Support View on Council Portal