← Back to Calderdale Council

Status

Pending Consideration Change of use
Received
24 Oct 2025
New dwellings
1

Full Proposal

Change of use of existing residential annex into independent dwelling

Documents

APPLICATIONFORMREDACTED
Application Form
Not archived · Council Link
CIL
Supporting Information
Not archived · Council Link
CIL_ADDITIONAL INFORMATION
Supporting Information
Not archived · Council Link
CLIMATE CHANGE STATEMENT PROFORMA
Supporting Information
Not archived · Council Link
CONSULTEE COMMENT SUBMITTED ONLINE
Consultee Comment
Not archived · Council Link
CONSULTEE COMMENT SUBMITTED ONLINE
Consultee Comment
Not archived · Council Link
CONSULTEE COMMENT SUBMITTED ONLINE
Consultee Comment
Not archived · Council Link
CONSULTEE COMMENT SUBMITTED ONLINE
Consultee Comment
Not archived · Council Link
DPDC0 - PP AFFECT SET OF LB DEPARTURE
Other
Not archived · Council Link
FLOOD RISK ASSESSMENT
Supporting Information
Not archived · Council Link
HERITAGE IMPACT ASSESSMENT
Supporting Information
Not archived · Council Link
LANDSCAPE IMPACT ASSESSMENT
Supporting Information
Not archived · Council Link
LOCATIONPLAN
The location plan
Not archived · Council Link
PLANNING STATEMENT FINAL
Supporting Information
Not archived · Council Link
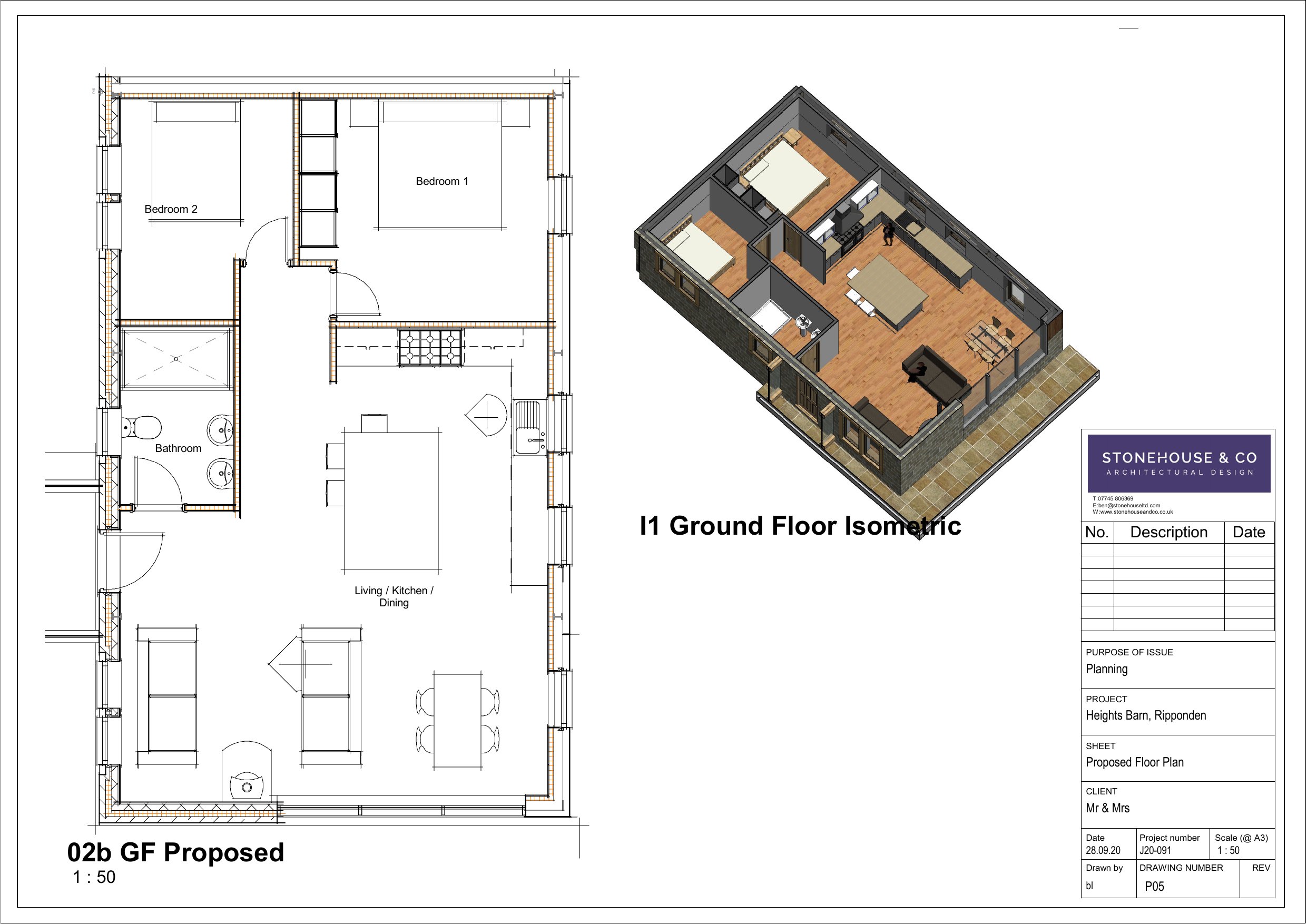
PROPOSED ELEVATIONS
Drawing
Not archived · Council Link
Drawing
Archived · Council Link
Drawing
Archived · Council Link
SPECIES ENHANCEMENT STATEMENT
Supporting Information
Not archived · Council Link

Take Action

Make your voice heard. Authorities need to hear from people who support new homes.

✉️ Write Email in Support View on Council Portal