← Back to Calderdale Council

Status

Pending Consideration New housing
Received
10 Nov 2025
New dwellings
1

Full Proposal

Detached dwelling with detached single garage

Documents

APPLICATIONFORMREDACTED
Application Form
Not archived · Council Link
BAT SELF ASSESSMENT
Supporting Information
Not archived · Council Link
BIODIVERSITY NET GAIN REPORT
Supporting Information
Not archived · Council Link
CAR PARK SWEPT PATH ANALYSIS
Drawing
Not archived · Council Link
CAR PARK SWEPT PATH ANALYSIS
Drawing
Not archived · Council Link
CAR PARK SWEPT PATH ANALYSIS
Drawing
Not archived · Council Link
CLIMATE CHANGE STATEMENT
Supporting Information
Not archived · Council Link
CONDITION SHEETS
Supporting Information
Not archived · Council Link
CONSULTEE COMMENT SUBMITTED ONLINE
Consultee Comment
Not archived · Council Link
CONSULTEE COMMENT SUBMITTED ONLINE
Consultee Comment
Not archived · Council Link
CONSULTEE COMMENT SUBMITTED ONLINE
Consultee Comment
Not archived · Council Link
CONSULTEE COMMENT SUBMITTED ONLINE
Consultee Comment
Not archived · Council Link
CONSULTEE COMMENT SUBMITTED ONLINE
Consultee Comment
Not archived · Council Link
CONSULTEE COMMENT SUBMITTED ONLINE
Consultee Comment
Not archived · Council Link
Drawing
Archived · Council Link
GROUND SURE
Supporting Information
Not archived · Council Link
HERITAGE STATEMENT
Supporting Information
Not archived · Council Link
LAND CONTAMINATION ASSESSMENT
Supporting Information
Not archived · Council Link
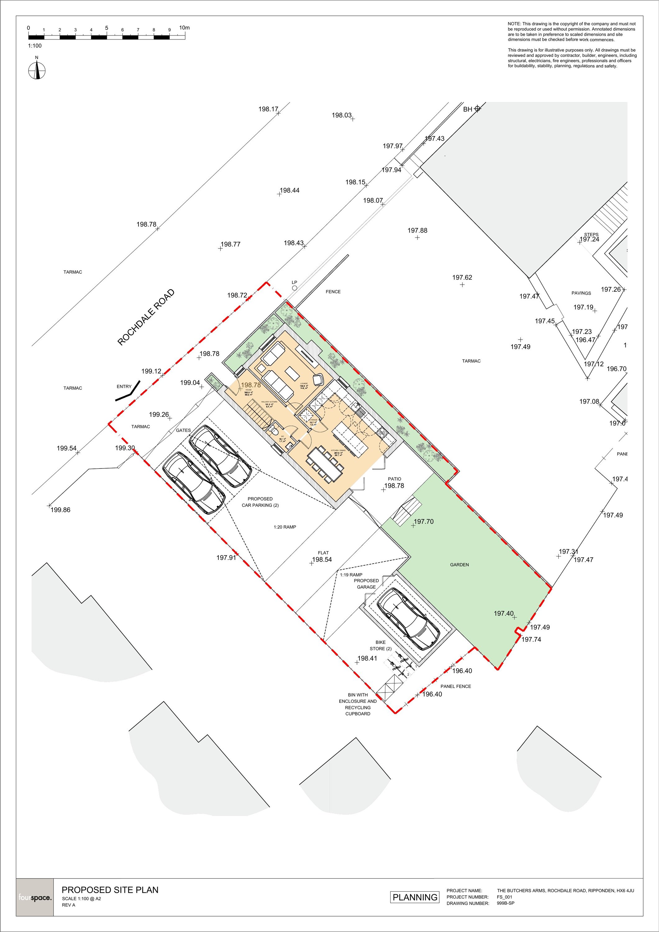
LOCATION PLAN
Drawing
Not archived · Council Link
PDC0 - PLANNING APP. AFFECT LB
Other
Not archived · Council Link
PLANNING STATEMENT
Supporting Information
Not archived · Council Link
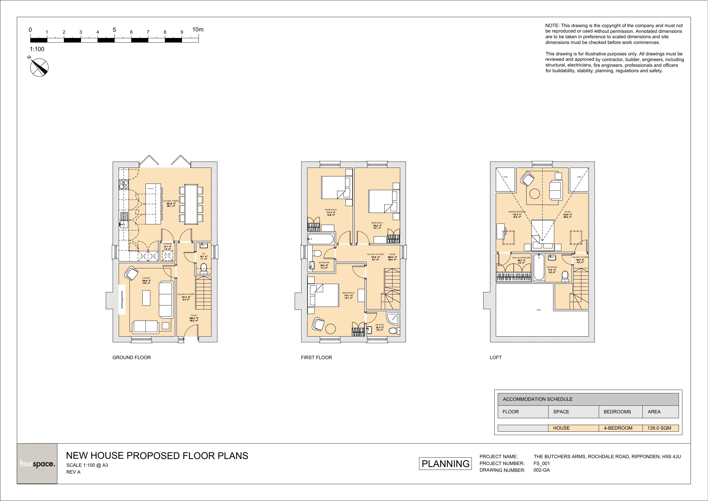
PROPOSED ELEVATION
Drawing
Not archived · Council Link
PROPOSED ELEVATIONS
Drawing
Not archived · Council Link
PROPOSED ELEVATIONS
Drawing
Not archived · Council Link
Drawing
Archived · Council Link
Drawing
Archived · Council Link
Drawing
Archived · Council Link
PROPOSED STREET ELEVATIONS
Drawing
Not archived · Council Link
SITE SPECIFIC FLOOD RISK ASSESSMENT
Supporting Information
Not archived · Council Link
STATUTORY METRIC
Supporting Information
Not archived · Council Link
SURFACE WATER DRAINAGE PROFORMA
Supporting Information
Not archived · Council Link

Take Action

Make your voice heard. Authorities need to hear from people who support new homes.

✉️ Write Email in Support View on Council Portal