← Back to all authorities

Recent applications

Showing the most recent records stored for this authority (max 200).

Erection of a single storey side infill extension to the rear of the dwelling.

Type n/a
Status REGISTERED
Date Last week

Installation of three security grilles to the external face of the front-facing windows of the garden flat.

Type n/a
Status REGISTERED
Date 4 days ago

Erection of a mansard style roof extension to existing second floor flat.

Type n/a
Status REGISTERED
Date Last week

Installation of replacement windows, refurbishment of the brickwork, replacement of felt roof covering and roof tiles, upgrade to services a...

Type Commercial
Status REGISTERED
Date 13 Nov 2025

Internal and external alterations including the installation of a glazed privacy screen and retractable skylight on the rear elevation at th...

Type Listed building
Status REGISTERED
Date 03 Nov 2025
Plan thumbnail

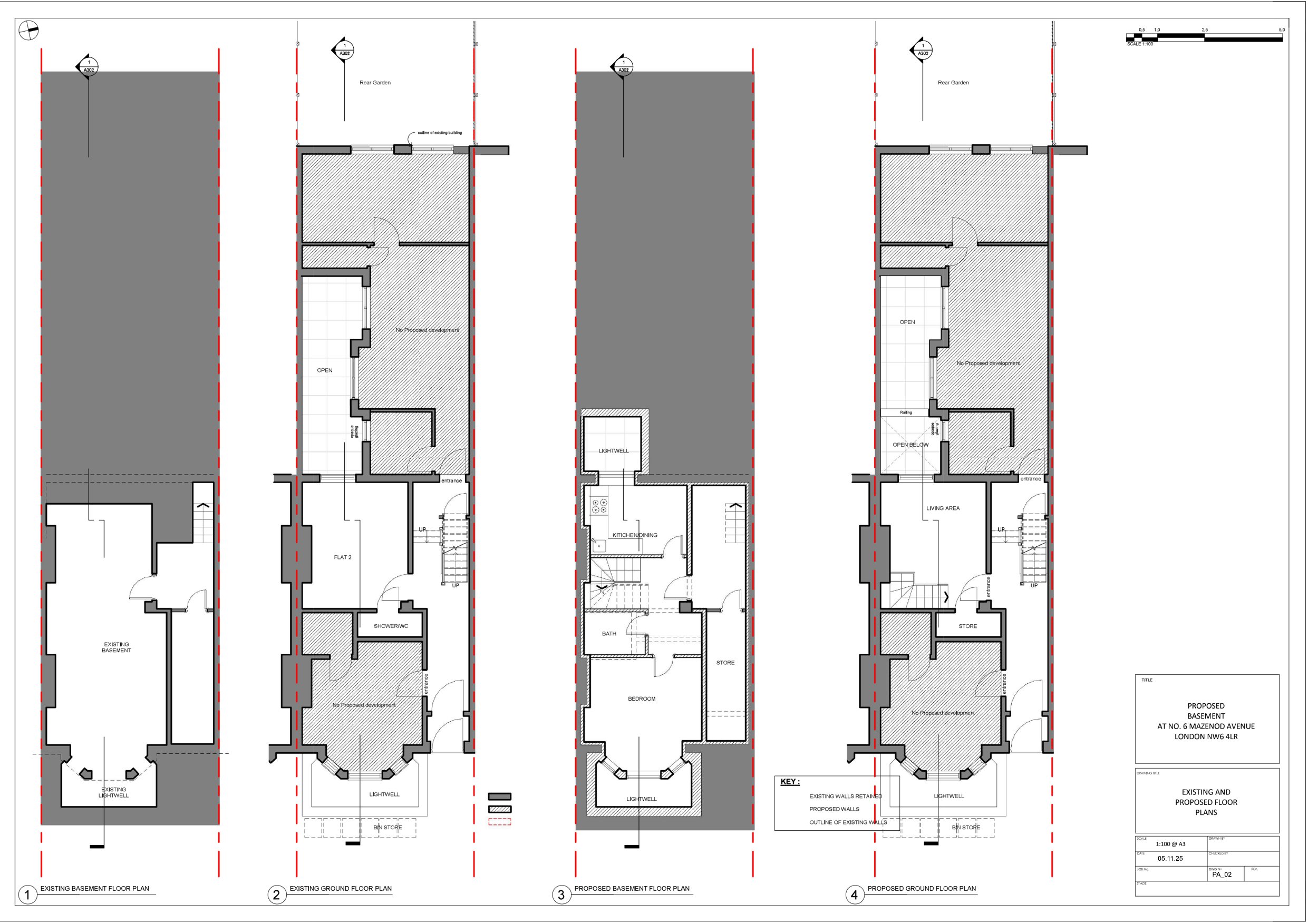
The proposal involves connecting the existing basement extension to the ground-floor studio flat to form a self-contained one-bedroom flat a...

Type Change of use
Status REGISTERED
Date 06 Nov 2025

Installation of condenser units on flat roof (Retrospective application)

Type Commercial
Status REGISTERED
Date 03 Nov 2025

Installation of condenser units on flat roof (Retrospective application)

Type Commercial
Status REGISTERED
Date 03 Nov 2025
Plan thumbnail

Installation of a glazed privacy screen and a retractable skylight on the rear elevation at third-floor level to facilitate the use of the f...

Type House extension
Status REGISTERED
Date 03 Nov 2025

Installation of air conditioning to the house, external A/C condensers located at the back of the outhouse and minor amendments to the outho...

Type Other
Status REGISTERED
Date 07 Nov 2025

Change of use of 2x second floor classrooms (Use Class F1) at no. 103 into a 3-bed, 6-person student flat (Sui Generis) including new intern...

Type Change of use
Status REGISTERED
Date 14 Nov 2025

Change of use of 2x second floor classrooms (Use Class F1) at no. 103 into a 3-bed, 6-person student flat (Sui Generis) including new intern...

Type Change of use
Status REGISTERED
Date 14 Nov 2025

Conversion of loft space to form 1 x 2-bedroom flat (Class C3) including installation of 2 x rear dormer windows and 1 x rooflight to the fr...

Type New housing
Status REGISTERED
Date 13 Nov 2025

Conversion of 1 x four-bedroom maisonette into 2 x two-bedroom flats.

Type Change of use
Status REGISTERED
Date 13 Nov 2025

Change of use from a HMO (Class C4) and 2 bed flat into a single family dwelling; replacement of all existing windows with double glazed tim...

Type Change of use
Status REGISTERED
Date 07 Nov 2025

Conversion of a 3 Bedroom Flat into a 2 Bedroom Flat and 1 Bedroom Flat

Type Change of use
Status REGISTERED
Date 12 Dec 2025

Reinstatement of parts of the Park Village East Parapet wall and Planter wall, between Granby Terrace Bridge in the south, and the location ...

Type Infrastructure
Status REGISTERED
Date 12 Dec 2025
Plan thumbnail

Demolition of existing garages, playspace and associated structures and erection of a building to provide residential units (Use Class C3) t...

Type New housing
Status REGISTERED
Date 12 Dec 2025
Plan thumbnail

Erection of ground and first floor rear extensions, alterations to shopfront including installation of a door, replacement of windows on fro...

Type Change of use
Status REGISTERED
Date 12 Dec 2025
Plan thumbnail

Demolition of 4 Great Queen Street and 62 Parker Street and erection of a new 7 storey building in connection with the change of use of King...

Type Commercial
Status REGISTERED
Date 09 Dec 2025
Plan thumbnail

Reconfiguration of upper floors to form a 3-bedroom (5-person) flat, together with alterations to the front and rear fenestration and roof

Type Other
Status REGISTERED
Date 09 Dec 2025
Plan thumbnail

Reconfiguration of upper floors to form a 3-bedroom (5-person) flat, together with alterations to the front and rear fenestration and roof

Type Other
Status REGISTERED
Date 09 Dec 2025

Display of a fascia sign consisting of non-illuminated, individual cut-out metal letters, fixed directly to the existing fascia above the sh...

Type Advertisement
Status REGISTERED
Date 05 Dec 2025

Change of use of the ground floor betting shop (Sui Generis) to office/commercial/business and service use (Class E) incorporation of this i...

Type Change of use
Status REGISTERED
Date 26 Nov 2025

Temporary change of use at ground floor level from education (Class F1(a)) to flexible office (Class E(g)) and education use (Class F1 (a)) ...

Type Change of use
Status REGISTERED
Date 28 Nov 2025
Plan thumbnail

Change of use of existing commercial property (Class E) with ancillary residential use on the third and fourth floor, to a residential dwell...

Type Change of use
Status REGISTERED
Date 26 Nov 2025
Plan thumbnail

Change of use of the ground floor betting shop (Sui Generis) to office/commercial/business and service use (Class E) incorporation of this i...

Type Change of use
Status REGISTERED
Date 26 Nov 2025
Plan thumbnail

Prior approval for the erection of an additional storey on the existing dwellinghouse

Type House extension
Status REGISTERED
Date 04 Dec 2025
Plan thumbnail

Change of use of first and second floor from office (Class E) to residential (Class C3) to form 2x -1-bedroom units.

Type Change of use
Status REGISTERED
Date 05 Dec 2025
Plan thumbnail

Partial demolition, rebuilding, and extension of the former Section House building in connection with its continued use for policing service...

Type Commercial
Status REGISTERED
Date 03 Dec 2025
Plan thumbnail

Display of new and replacement signage: 1 x externally illuminated (cowl-lit) fascia lettering sign, 1 x externally illuminated (trough-lit)...

Type Advertisement
Status REGISTERED
Date 28 Nov 2025

Replacement of existing windows to Bonham Carter House and Warwickshire House including Gower Street and Malet Street elevations, and intern...

Type Commercial
Status REGISTERED
Date 26 Nov 2025
Plan thumbnail

Redevelopment of existing car park and courtyard including erection of new residential building (Class C3) together with landscaping, public...

Type New housing
Status REGISTERED
Date 24 Nov 2025
Plan thumbnail

Installation of 46 solar photo-voltaic (PV) panels and associated inverter on flat roof of building located towards the southern boundary of...

Type Renewable energy
Status REGISTERED
Date 22 Dec 2025
Plan thumbnail

Installation of 40 solar photo-voltaic (PV) panels and associated inverter on flat roof of main building.

Type Renewable energy
Status REGISTERED
Date 22 Dec 2025

Works to Sector G roof comprising the renewal of the Snow Gallery flat roof finishes, repairs to the copper dome above the Round Reading Roo...

Type Listed building
Status REGISTERED
Date 16 Dec 2025

Replacement of 7no. windows (timber framed, triple glazed); installation of 4no. solar panels on flat roof of rear outrigger; installation o...

Type Other
Status REGISTERED
Date 19 Dec 2025

Change of use from office and retail (Class E) to hotel (Class C1), replacement of windows, alterations to shopfronts, and removal of extern...

Type Change of use
Status REGISTERED
Date 18 Dec 2025
Plan thumbnail

Works to Sector G roof comprising the renewal of the Snow Gallery flat roof finishes, repairs to the copper dome above the Round Reading Roo...

Type Listed building
Status REGISTERED
Date 16 Dec 2025

Refurbishment of the stables building (sui generis) including demolition of the existing annex and construction of new single storey buildin...

Type Change of use
Status REGISTERED
Date 22 Dec 2025

Change of use and refurbishment of the stables building (sui generis) including demolition of the existing annex and construction of new sin...

Type Change of use
Status REGISTERED
Date 22 Dec 2025
Plan thumbnail

Use of parts of property as 4 x self-contained flats (Class C3).

Type Change of use
Status REGISTERED
Date Last month
Plan thumbnail

Erection of brick enclosure in front garden to house electrical mains and replacement timber bin store (DESCRIPTION REVISED TO OMIT ANY ALTE...

Type Other
Status REGISTERED
Date 23 Dec 2025
Plan thumbnail

Demolition of existing dwellinghouse and the construction of a replacement dwellinghouse with basement. Erection of pool structure to rear, ...

Type Demolition
Status REGISTERED
Date 23 Dec 2025
Plan thumbnail

Alteration, refurbishment, and extension of existing student accommodation including partial demolition of fifth floor at Bonham Carter Hous...

Type Other
Status REGISTERED
Date 22 Dec 2025

Installation of 3 no. air conditioning units in rear garden with pipework and outlets within house

Type Other
Status REGISTERED
Date 19 Dec 2025
Plan thumbnail

Re-configuration of existing lower ground and ground floor flats to create two wholly self-contained one-bedroom dwellings.

Type Change of use
Status REGISTERED
Date 19 Dec 2025
Plan thumbnail

Installation of 3 no. air conditioning units in rear garden with pipework and outlets within house

Type Other
Status REGISTERED
Date 19 Dec 2025
Plan thumbnail

Demolition of an existing row of garages to the rear of Allingham Court, and redevelopment to provide a mixed-use scheme comprising four res...

Type New housing
Status REGISTERED
Date 19 Dec 2025
Plan thumbnail

Proposed two storey side extension, ground floor bay demolition and new bay extension at the front, small first floor infill side extension ...

Type House extension
Status REGISTERED
Date 18 Dec 2025
Plan thumbnail

Demolition of existing 5-bedroom dwellinghouse and construction of replacement 4-bedroom Passive House dwelling comprising a non-habitable b...

Type New housing
Status REGISTERED
Date 17 Dec 2025

Conversion of a 6-bedroom HMO (C4) and self-contained studio flat into a single dwellinghouse (C3).

Type Change of use
Status REGISTERED
Date 17 Dec 2025

Erection of two-storey mews house plus basement excavation with relocation of windows to the rear of 120 Cleveland Street

Type New housing
Status REGISTERED
Date 29 days ago
Plan thumbnail

Infill extension at ground floor to create entrance lobby area and five storey side extension incorporating lift to access existing resident...

Type House extension
Status REGISTERED
Date 29 days ago

Internal works involving the reconfiguration of the existing 17 flats and the reduction to 16 x self-contained residential units (Class C3).

Type Other
Status REGISTERED
Date Last month
Plan thumbnail

Erection of one additional storey to facilitate the creation of 3no. new residential units (Class C3), including alterations to rear escape ...

Type New housing
Status REGISTERED
Date Last month

Change of use existing commerical space on lower ground and ground floors (Class E) to 2 residential units (Class C3)

Type Change of use
Status REGISTERED
Date Last month
Plan thumbnail

Erection of extension at fourth floor roof level on existing flat roof to provide additional residential accommodation.

Type House extension
Status REGISTERED
Date Last month

New access to the existing and extended mezzanine level. A new dormer window, an extended dormer window at second floor level. A new dormer ...

Type House extension
Status REGISTERED
Date Last month

Replacement and installation of front and rear doors and windows with new flat roof to rear, removal of small shed

Type House extension
Status REGISTERED
Date Last month
Plan thumbnail

Conversion from single dwelling to 3x residential units, infilling rear outrigger roof area between rear projection and main roof, cycle sto...

Type Change of use
Status REGISTERED
Date Last month
Plan thumbnail

Conversion of single dwelling house into 3 flats with rear lower and upper ground floor extensions and enlargement of garden building

Type Change of use
Status REGISTERED
Date Last month
Plan thumbnail

Temporary installation of 10 no. padel courts with associated enclosures, erection of an all-weather canopy structure, and associated ancill...

Type Commercial
Status REGISTERED
Date Last month

Change of use to a self-contained single family dwelling (Use Class C3) and the erection of a mansard extension.

Type Change of use
Status REGISTERED
Date Last month

Demolition of the existing building and erection of 4 x two storey two bedroom dwellings.

Type New housing
Status REGISTERED
Date Last month
Plan thumbnail

Change of use from Class E (Office) to Class C1 (Hotel), two storey roof extension over No.65 King's Cross Road, single storey roof extensio...

Type Change of use
Status REGISTERED
Date Last month
Plan thumbnail

Internal subdivision of the existing office building into two separate office units. The subdivision is achieved primarily through internal ...

Type Commercial
Status REGISTERED
Date Last month
Plan thumbnail

Erection of a single storey infill extension on the existing terrace area, installation of new railings associated for the use of the flat r...

Type House extension
Status REGISTERED
Date Last month
Plan thumbnail

Conversion of of first and second floor maisonette with third floor flat (Class C3) to form 9 x room HMO (Sui Generis) and installation of f...

Type Change of use
Status REGISTERED
Date 24 days ago
Plan thumbnail

Erection of 2no. dormer windows within the internal valley of the main roof and installation of PV panels on flat side roof.

Type House extension
Status REGISTERED
Date 25 days ago
Plan thumbnail

Erection of an additional storey to the existing dwellinghouse.

Type House extension
Status REGISTERED
Date 22 days ago

Erection of a single storey rear extension to residential flat.

Type House extension
Status REGISTERED
Date 22 days ago
Plan thumbnail

Demolition of existing buildings above ground with retention of existing basement level; erection of a new commercial building (Use Class E)...

Type Commercial
Status REGISTERED
Date 22 days ago
Plan thumbnail

Erection of additional storey to dwellinghouse.

Type House extension
Status REGISTERED
Date 26 days ago

Proposed internal reconfiguration including minor demolition to create an open-plan living space, reconfiguration of the side hallway and co...

Type Listed building
Status REGISTERED
Date 25 days ago

Change of Use from Offices (Class E) to a flexible Use as either Offices (Class E) and/or Education Class F1 (a)

Type Change of use
Status REGISTERED
Date 14 Feb 2025

Change of use from office (Class E) to hotel (Class C1); external alterations including partial demolition; removal of the rear extension at...

Type Change of use
Status REGISTERED
Date 19 days ago

Addition of single storey roof extension to create 1 x residential unit.

Type House extension
Status REGISTERED
Date 17 days ago

Change of use from office (Class E) to hotel (Class C1); external alterations including partial demolition; removal of the rear extension at...

Type Change of use
Status REGISTERED
Date 19 days ago

Refurbishment shopfront, including replacement fascia panel, new concrete effect aluminium cladding and redecoration of window and door fram...

Type Commercial
Status REGISTERED
Date Last week

Erection of a second floor side extension to provide 1 additional flat (C3).

Type House extension
Status REGISTERED
Date Last week

Erection of solar panels on flat roof. Energy efficiency upgrades to insultation, doors and ventilation.

Type Renewable energy
Status REGISTERED
Date Last week

Erection of solar panels on flat roof. Energy efficiency upgrades to insultation, doors and ventilation.

Type Renewable energy
Status REGISTERED
Date Last week

Installation of metal fluted and flat panels to frontage.

Type Commercial
Status REGISTERED
Date 11 Sep 2025

Change of use from commercial use (use class E) to residential use (use class C3) and associated internal works

Type Change of use
Status REGISTERED
Date 24 Sep 2025

Change of use from commercial use (use class E) to residential use (use class C3) and associated external works

Type Change of use
Status REGISTERED
Date 24 Sep 2025

Installation of metal fluted and flat panels to frontage, awnings and signage, including internal shutters.

Type Advertisement
Status REGISTERED
Date 29 Oct 2025

Change of use of the first and mezzanine level office (Use Class E(g)(i)) to education (Use Class F1(a)) for a temporary period of up to 20 ...

Type Change of use
Status REGISTERED
Date 27 Oct 2025

Addition of a roof terrace with external fencing on the existing flat roof; replacement of all existing windows, with three openings to be c...

Type Other
Status REGISTERED
Date 13 Oct 2025

External alteration works to refurbish parts of existing flat roof areas by laying out replacement roofing materials.

Type Commercial
Status REGISTERED
Date Last week

External alteration works to refurbish parts of existing flat roof areas by laying out replacement roofing materials.

Type Commercial
Status REGISTERED
Date Last week

Change of use of ground floor premises from commercial, business and service (Class E) to residential (Class C3) comprising 1 x two-bedroom ...

Type Change of use
Status REGISTERED
Date 19 days ago

Use of ground floor level garage for parking and storage of a private motor vehicle ancilliary with existing residential use (Class C3) of a...

Type Change of use
Status REGISTERED
Date 17 days ago

Conversion of the property to a House in Multiple Occupation (HMO), including a part single, part two-storey rear extension, loft conversion...

Type Change of use
Status REGISTERED
Date 03 Sep 2025

Erection of a mansard roof extension as an extension to the existing second floor flat, associated instalaltion of railings at the existing ...

Type House extension
Status REGISTERED
Date 18 Dec 2025

Erection of an additional storey to dwellinghouse.

Type House extension
Status REGISTERED
Date 19 days ago

Alterations and additions to existing house including part one part two storey extension, replacement first floor and recladding.

Type House extension
Status REGISTERED
Date 10 Sep 2024

Retrospective planning permission for a 2 bedroom flat on first floor (former use as public house store & function room)

Type Change of use
Status REGISTERED
Date 01 Nov 2024

Erection of a part single/part three storey rear extension to the existing house at the ground, first and second floor level, excavation for...

Type House extension
Status REGISTERED
Date 31 Oct 2024

Change of use from offices (Class E) to dwelling house (Class C3), demolition of the existing two storey rear extension and erection of a re...

Type Change of use
Status REGISTERED
Date 25 Oct 2024

Change of use of second floor from E(g)(i) Office to C3 Dwellinghouse.

Type Change of use
Status REGISTERED
Date 25 Oct 2024

Change of use from C3 Dwellinghouse, to E(g)(i) Office.

Type Change of use
Status REGISTERED
Date 25 Oct 2024

Demolition of the existing buildings, retention and partial expansion of existing basement plus construction of a ground, plus 73 storey bui...

Type Commercial
Status REGISTERED
Date 22 Oct 2024

Change of use of day care centre (Class E(f)) to 9 residential flats (Class C3).

Type Change of use
Status REGISTERED
Date 19 Nov 2024

External alterations to involve provision of a low level Kitchen Extract Ventilation System and provision of lightweight, timber, non-perman...

Type Commercial
Status REGISTERED
Date 04 Nov 2024

Excavation of a new basement floor level to single dwellinghouse

Type House extension
Status REGISTERED
Date 25 Nov 2024

Change of use of upper ground floor from class E (Offices) to 3 flats (Class C3) and erection of side infill extension. Insertion of rear te...

Type Change of use
Status REGISTERED
Date 24 Dec 2024

Demolition of existing garage block and erection of a three-storey dwelling and cycle and bin stores; erection of three-storey rear extensio...

Type New housing
Status REGISTERED
Date 22 Jan 2025

Change of use of the first floor from office (Class E) to 2 x 3 bed flats (Class C3)

Type Change of use
Status REGISTERED
Date 07 Feb 2025

Part demolition of the existing two-storey dwelling and construction of a two-storey rear extension incorporating a green roof; addition of ...

Type House extension
Status REGISTERED
Date 13 Feb 2025

Demolition of existing single dwelling and erection of a new five-storey building comprising 5no. residential units (Class C3). (Revised pro...

Type New housing
Status REGISTERED
Date 28 Mar 2025

Partial demolition of existing warehouse; refurbishment and extension of existing warehouse; external alterations to existing railway arches...

Type Industrial
Status REGISTERED
Date 27 Mar 2025

Substantial demolition of existing building and retention of front facade; erection of replacement three storey building with a mansard roof...

Type New housing
Status REGISTERED
Date 27 Mar 2025

Demolition of existing retail units and ancillary offices (Class E) with part retention of existing facade and basement, extension of existi...

Type Commercial
Status REGISTERED
Date 07 Apr 2025

Removal of existing second floor mansard roof; erection of replacement second floor level and third floor mansard roof extension; erection o...

Type House extension
Status REGISTERED
Date 07 Apr 2025

Change of use of lower ground floor from office (E(g)(i)) to one dwelling (C3).

Type Change of use
Status REGISTERED
Date 09 Apr 2025

Change of use from dwelling (C3) to E(g)(i) office.

Type Change of use
Status REGISTERED
Date 09 Apr 2025

Demolition and mixed‑use redevelopment including PBSA, affordable housing, commercial space, cafe and associated works.

Type Demolition
Status REGISTERED
Date 17 Apr 2025

Erection of two-storey 2-bedroom dwelling in rear garden with bin and cycle storage.

Type New housing
Status REGISTERED
Date 28 Apr 2025

Replace rear window with French doors, create lightwell, internal alterations for family use.

Type Other
Status REGISTERED
Date 24 Apr 2025

Add rear balconies, single-storey rear extension, raised timber deck, front lightwell and lift.

Type House extension
Status REGISTERED
Date 23 Apr 2025

Retention of two external air conditioning units to rear and side of existing dwelling.

Type Other
Status REGISTERED
Date 01 May 2025

Change of use from office to two family dwellings with internal and external alterations.

Type Change of use
Status REGISTERED
Date 12 May 2025

Change of use from office to create two single-family dwellings with lightwells and rear alterations.

Type Change of use
Status REGISTERED
Date 12 May 2025

Convert two first-floor flats to three; add lightwell, lift, canopy, refuse and cycle stores.

Type Change of use
Status REGISTERED
Date 14 May 2025

Change of second floor from office (E) to one C3 dwellinghouse with internal works.

Type Change of use
Status REGISTERED
Date 27 May 2025

Change of second floor from office (E) to one C3 dwellinghouse.

Type Change of use
Status REGISTERED
Date 27 May 2025

Change of use from dwelling (C3) to office (E(g)(i)).

Type Change of use
Status REGISTERED
Date 27 May 2025

Demolish three-storey commercial building and erect five-storey plus basement mixed-use building with retail and residential floors.

Type New housing
Status REGISTERED
Date 23 May 2025

Demolition and reconstruction of mixed-use building delivering office floorspace, retail, cultural workspace, terraces and public realm.

Type Commercial
Status REGISTERED
Date 02 Jun 2025

Convert six-bed HMO into flats and add mansard to create an additional two-bedroom flat.

Type Change of use
Status REGISTERED
Date 02 Jun 2025

Outline: demolish commercial building; construct circa eight residential units and ~78sqm Class E space.

Type New housing
Status REGISTERED
Date 10 Jun 2025

Reinstate single-family dwelling from HMO; single-storey rear extension and dormer/rooflight alterations.

Type Change of use
Status REGISTERED
Date 05 Jun 2025

Convert first to third floors from offices to three two-bedroom residential dwellings.

Type Change of use
Status REGISTERED
Date 16 Jun 2025

Demolish storage unit and construct a three-storey single-family dwelling (B8 to C3).

Type New housing
Status REGISTERED
Date 16 Jun 2025

Installation of a children's playhouse in the rear garden.

Type Other
Status REGISTERED
Date 11 Jun 2025

Amalgamate two flats into one family home with extensions, dormer enlargement, ASHP and external works.

Type House extension
Status REGISTERED
Date 19 Jun 2025

Extensions and roof alterations to create a 10-unit HMO (sui generis) with cycle and refuse storage.

Type Change of use
Status REGISTERED
Date 24 Jun 2025

Hybrid detailed and outline permission for phased mixed-use development including new residential dwellings and commercial space.

Type New housing
Status REGISTERED
Date 19 Jun 2025

Amalgamation of two flats into a family home with extensions, dormer enlargement and ASHP installation.

Type House extension
Status REGISTERED
Date 19 Jun 2025

Refurbish dwelling with ground-floor rear infill, first-floor partial rear extension, roof terrace and mansard loft extension.

Type House extension
Status REGISTERED
Date 30 Jun 2025

Single-storey rear extension, new basement with lightwells, and garage conversion to habitable space.

Type House extension
Status REGISTERED
Date 04 Jul 2025

Redevelopment for residential uses, community hub, public realm, landscaping and associated works (outline).

Type New housing
Status REGISTERED
Date 10 Jul 2025

Conversion of one dwelling into three dwellings with single storey rear extension and alterations.

Type Change of use
Status REGISTERED
Date 01 Aug 2025

Internal alterations associated with change of use to 6-bed, 10-person HMO.

Type Change of use
Status REGISTERED
Date 07 Aug 2025

Change of use to 6-bedroom, 10-person HMO with internal alterations.

Type Change of use
Status REGISTERED
Date 07 Aug 2025

Demolition of existing dwelling and erection of a new dwelling with basement level and associated landscaping and ancillary works.

Type Demolition
Status REGISTERED
Date 28 Aug 2025

Division of 3-bed unit at 6th and 7th floor level into 2 residential units; partial change of use from commercial to residential at basement...

Type Change of use
Status REGISTERED
Date 28 Aug 2025

Proposed first-storey rear and front extensions, and conversion of the existing building from a ground-floor commercial unit and a single dw...

Type Change of use
Status REGISTERED
Date 26 Aug 2025

Refurbishment, partial demolition and extension works to existing building to provide additional office and retail floorspace (Class E), com...

Type Commercial
Status REGISTERED
Date 05 Sep 2025

Erection of two houses within garden of No.19 with alterations to the existing dwelling.

Type New housing
Status REGISTERED
Date 11 Sep 2025

Roof extension adding an extra storey, replace fenestration, cladding, rebuild front wall and install gates.

Type House extension
Status REGISTERED
Date 11 Sep 2025

Change of use from HMO to two self-contained flats, including new front staircase (part retrospective).

Type Change of use
Status REGISTERED
Date 10 Sep 2025

Demolish garage block and flat; erect three dwellings with terraces, green roofs and storage.

Type New housing
Status REGISTERED
Date 09 Sep 2025

Erection of a single dwellinghouse (Use Class C3) with basement level, landscaping works, air source heat pump, cycle and refuse storage, an...

Type New housing
Status REGISTERED
Date 23 Sep 2025

Demolition of all existing buildings (Class E and B8) and structures and associated works and erection of new buildings comprising a mixed u...

Type New housing
Status REGISTERED
Date 30 Sep 2025

Demolition of all existing buildings (Class B2) and structures and associated works and erection of new buildings comprising a mixed-use red...

Type New housing
Status REGISTERED
Date 01 Oct 2025

Change of use of neighbourhood advice centre (Class D1) at ground floor level to a commercial unit (Class E) and conversion of remaining flo...

Type Change of use
Status REGISTERED
Date 30 Sep 2025

Installation of rooflight access hatch and balustrade to roof terrace for the upper floor flat following demolition of unauthorised roof ext...

Type House extension
Status REGISTERED
Date 08 Sep 2025

Conversion of maisonette into two self contained flats at ground and lower ground with internal alterations, replacement of window with door...

Type Change of use
Status REGISTERED
Date 19 Sep 2025

Conversion of maisonette into two self contained flats at ground and lower ground, replacement of window with door and infill at lower groun...

Type Change of use
Status REGISTERED
Date 19 Sep 2025

Construction of a single-storey basement beneath front room, middle room, and entrance hall of original house footprint and removal of brick...

Type House extension
Status REGISTERED
Date 19 Sep 2025

Conversion of the existing single-dwellinghouse into 2no. self-contained residential units (Class C3). Minor fenestration alterations at low...

Type Change of use
Status REGISTERED
Date 16 Sep 2025

Change of use of first, second and third floor from office use (Class E) to residential (Class C3) for the provision of 3 x 1 bed, 1 person ...

Type Change of use
Status REGISTERED
Date 03 Oct 2025

Erection of a roof extension with sedum roof and rooflights to the front elevation, erection of a two-storey rear extension at first-floor l...

Type House extension
Status REGISTERED
Date 02 Oct 2025

Erection of a roof extension with sedum roof and rooflights to the front elevation, erection of a two-storey rear extension at first-floor l...

Type House extension
Status REGISTERED
Date 02 Oct 2025

Change of use of first and second floors from public house ancillary accommodation (Class C4) to HMO (Sui Generis)

Type Change of use
Status REGISTERED
Date 10 Oct 2025

Amalgamation of 2 x separate residential flats into one single dwellinghouse, erection of a single storey rear extension, installation of an...

Type House extension
Status REGISTERED
Date 06 Oct 2025

Change of use from HMO to 2 self-contained flats (basement flat and ground floor flat); new front staircase leading to entrance of basement ...

Type Change of use
Status REGISTERED
Date 06 Oct 2025

FULL DEMOLITION OF POOL HOUSE AND REPLACEMENT SUMMER HOUSE WITH EXTERNAL LIGHTING, HARD AND SOFT LANDSCAPING TO GARDENS AND THE FRONT COURTY...

Type Demolition
Status REGISTERED
Date 13 Oct 2025

FULL DEMOLITION OF POOL HOUSE AND REPLACEMENT SUMMER HOUSE WITH EXTERNAL LIGHTING, HARD AND SOFT LANDSCAPING TO GARDENS AND THE FRONT COURTY...

Type Demolition
Status REGISTERED
Date 13 Oct 2025

Conversion from 2 flats into a single family dwelling. Removal of external staircase and infilling existing door opening, up to cill height,...

Type Change of use
Status REGISTERED
Date 24 Oct 2025

Erection of a single storey ground floor rear extension and part width first floor rear extension to house.

Type House extension
Status REGISTERED
Date 23 Oct 2025

Erection of a part two-storey infill roof extension and a three-storey roof extension to the rear elevation, associated with the creation of...

Type New housing
Status REGISTERED
Date 22 Oct 2025

Partial demolition of the grade II listed Station House fronting Holmes Road and associated works, and development of adjoining building com...

Type Listed building
Status REGISTERED
Date 28 Oct 2025

Demolition of existing structures (including part of the listed police station building) and phased redevelopment [of up to 24 storeys (resi...

Type New housing
Status REGISTERED
Date 28 Oct 2025

Reconstruction of the front lightwell and erection of a 4 m rear extension at lower ground-floor level, in association with use of basement ...

Type Change of use
Status REGISTERED
Date 28 Oct 2025

Refurbishment, extension and alteration of the existing residential dwelling, incorporating a basement level with walk on roof lights, singl...

Type House extension
Status REGISTERED
Date 28 Oct 2025

Erection of; a two storey roof extension to provide 2 x 3 bedroom flats, and associated plant enclosure.

Type New housing
Status REGISTERED
Date 20 Nov 2025

Change of use from office (Class E) to a single family dwellinghouse (Class C3), erection of an additional storey, alterations to fenestrati...

Type Change of use
Status REGISTERED
Date 18 Nov 2025

Proposed new 2.5 m extension to roof level (4th floor) room. Replacement flat roof with new pitched roof with solar panels and roof lights.

Type House extension
Status REGISTERED
Date 24 Nov 2025

Single storied roof extension with terrace and rooflight to create 2x additional 2-bedroom dwellings.

Type New housing
Status REGISTERED
Date 22 Dec 2025