← Back to London Borough of Camden

Status

REGISTERED Commercial
Received
Last month
New dwellings
0

Full Proposal

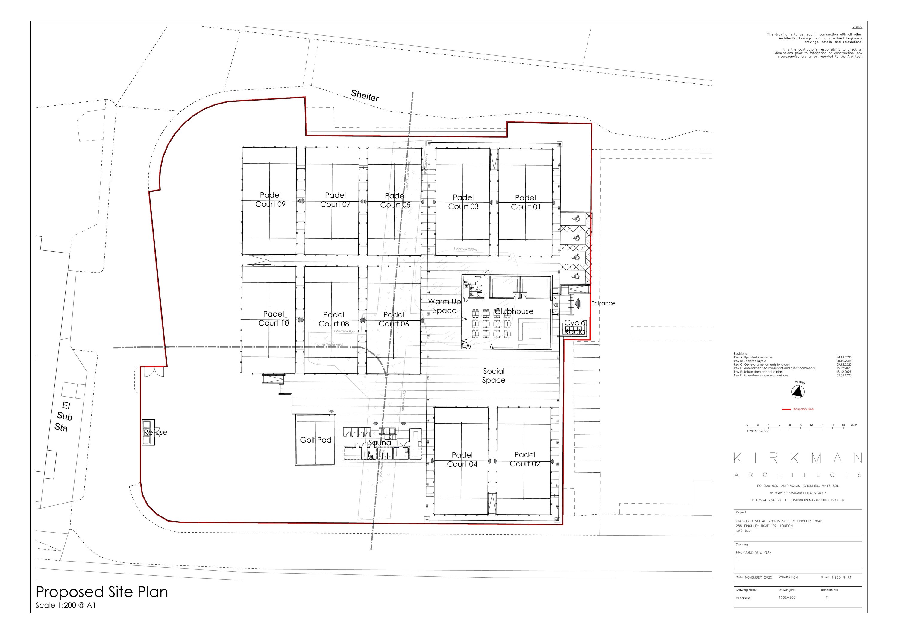
Temporary installation of 10 no. padel courts with associated enclosures, erection of an all-weather canopy structure, and associated ancillary facilities (including a clubhouse, sauna building and golf pods) for use as outdoor padel centre (Class F2) for a period of up to 5-years, together with accessible car parking, cycle parking, hard landscaping and other associated works.

Documents

1 x Response (Redacted) Sport England
Consultation Response
Not archived · Council Link
1 x Response CAAC
Consultation Response
Not archived · Council Link
1682-101A Existing Location Plan 1250.pdf
M3 Document
Not archived · Council Link
1682-104A Existing South Elevation.pdf
M3 Document
Not archived · Council Link
1682-105A Existing North Elevation.pdf
M3 Document
Not archived · Council Link
1682-106A Existing East Elevation.pdf
M3 Document
Not archived · Council Link
1682-107A Existing West Elevation.pdf
M3 Document
Not archived · Council Link
1682-204D Proposed Roof Plan.pdf
M3 Document
Not archived · Council Link
1682-205C Proposed South Elevation.pdf
M3 Document
Not archived · Council Link
1682-206B Proposed North Elevation.pdf
M3 Document
Not archived · Council Link
1682-207B Proposed East Elevation.pdf
M3 Document
Not archived · Council Link
1682-208C Proposed West Elevation.pdf
M3 Document
Not archived · Council Link
1682-209A Proposed Site Section A-A.pdf
M3 Document
Not archived · Council Link
1682-210B Proposed Site Section B-B.pdf
M3 Document
Not archived · Council Link
1682-301A Proposed Padel Canopy Details.pdf
M3 Document
Not archived · Council Link
1682-302A Proposed Clubhouse Plan.pdf
M3 Document
Not archived · Council Link
1682-303 Proposed Sauna and Golf Pod Plan.pdf
M3 Document
Not archived · Council Link
1682-304 Proposed Refuse Store Details.pdf
M3 Document
Not archived · Council Link
1682-305 Proposed Cycle Store Details.pdf
M3 Document
Not archived · Council Link
1682-401D Proposed Surface Finishes Plan.pdf
M3 Document
Not archived · Council Link
1682-901B Design and Access Statement.pdf
M3 Document
Not archived · Council Link
2254015 S3 Finchley Road - Lighting Assessment.pdf
M3 Document
Not archived · Council Link
23421-1-R1 - Social Sports Society - 255 Finchley Road London - Environmental Noise Assessment - JS - 251218 WAW.pdf
M3 Document
Not archived · Council Link
260119 - S3 Padel Finchley Road - Applicant Covering Letter.pdf
M3 Document
Not archived · Council Link
260119 - S3 Padel Finchley Road - Planning Statement.pdf
M3 Document
Not archived · Council Link
5032044-RDG-XX-XX-D-C-110500-P02-Proposed Drainage Strategy.pdf
M3 Document
Not archived · Council Link
5032044-RDG-XX-XX-T-C-300001-P02-Drainage Report - SUPERSEDED
Supporting Documents
Not archived · Council Link
5032044-RDG-XX-XX-T-C-300001-P03-Drainage Report - REVISED
Supporting Documents
Not archived · Council Link
Application Form (No Personal Data)
Application Form
Not archived · Council Link
Drainage Strategy (Original) - December 2022
Supporting Documents
Not archived · Council Link
KL10611 S3 Padel - 255 Finchley Road - Issue 2.pdf
M3 Document
Not archived · Council Link
O2 Finchley Sustainability Document.pdf
M3 Document
Not archived · Council Link
Portal XML
Other
Not archived · Council Link
R01-AH-Finchley Road Padel Centre Transport Statement 251219 Issued.pdf
M3 Document
Not archived · Council Link
R02-NJ-Finchley Road Padel Centre -Travel Plan Statement 251219 Issued.pdf
M3 Document
Not archived · Council Link
S3 Padel - DRAFT CMP Proforma.pdf
M3 Document
Not archived · Council Link

Take Action

Make your voice heard. Authorities need to hear from people who support new homes.

✉️ Write Email in Support View on Council Portal