← Back to London Borough of Camden

Status

REGISTERED Commercial
Received
22 days ago
New dwellings
0

Full Proposal

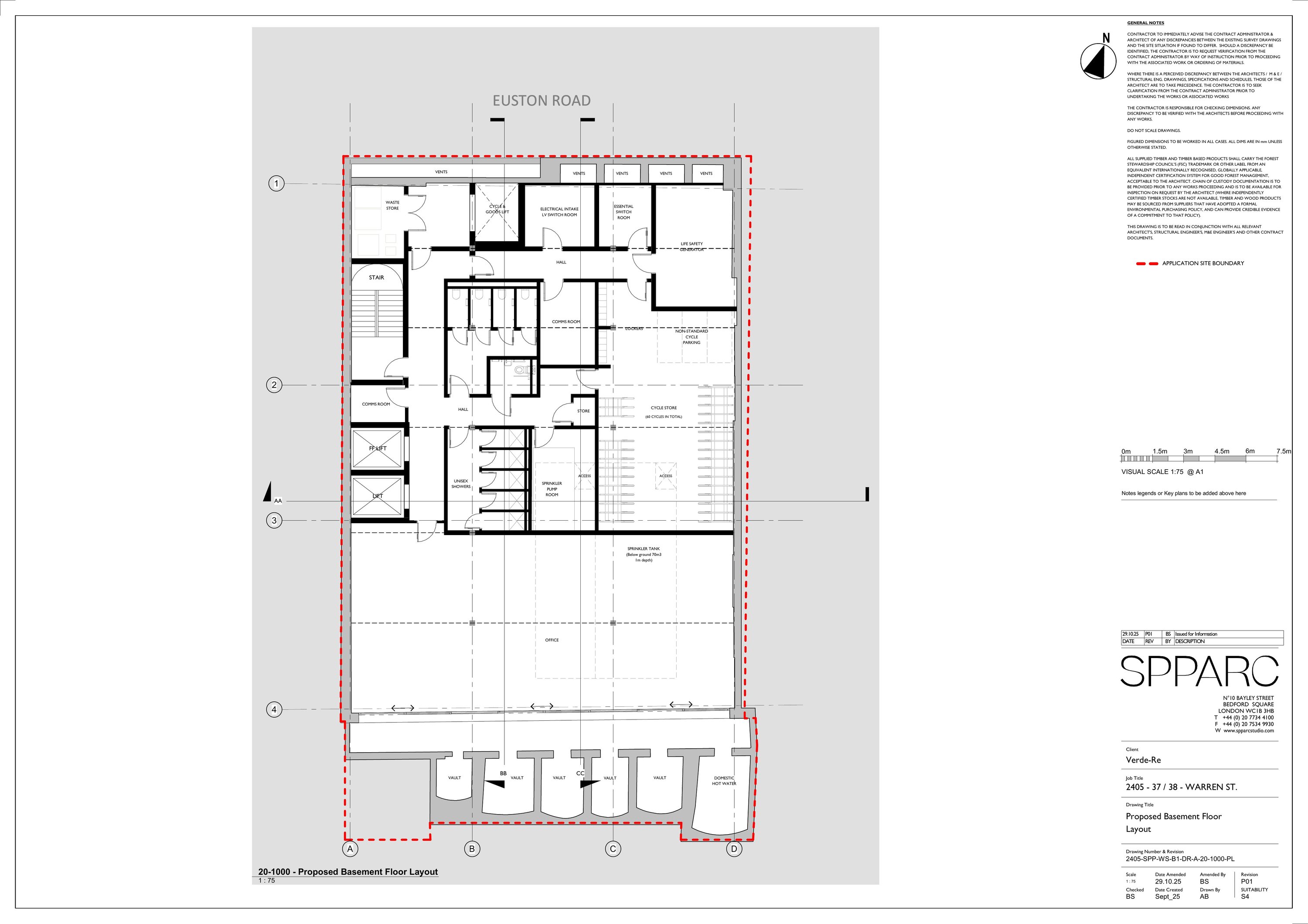
Demolition of existing buildings above ground with retention of existing basement level; erection of a new commercial building (Use Class E) comprising ground plus six storeys, external roof terrace, cycle parking, plant, substation, Warren Street lightwell, and associated works.

Documents

Air Quality Assessment
Supporting Documents
Not archived · Council Link
Application Form (No Personal Data)
Application Form
Not archived · Council Link
Arboricultural Impact Assessment
Supporting Documents
Not archived · Council Link
Basement Impact Assessment
Supporting Documents
Not archived · Council Link
Be Seen Spreadsheet
Supporting Documents
Not archived · Council Link
Biodiversity Net Gain Report
Supporting Documents
Not archived · Council Link
BREEAM Pre-Assessment
Supporting Documents
Not archived · Council Link
Building Area Schedule
Supporting Documents
Not archived · Council Link
Building Ground Movement Assessment
Supporting Documents
Not archived · Council Link
Camden Air Quality Proforma
Supporting Documents
Not archived · Council Link
CIL Form
CIL
Not archived · Council Link
Circular Economy Statement
Supporting Documents
Not archived · Council Link
Construction/Demolition Management Plan
Supporting Documents
Not archived · Council Link
Cover Letter
Supporting Documents
Not archived · Council Link
Daylight and Sunlight Report
Supporting Documents
Not archived · Council Link
Delivery and Servicing Management Plan
Supporting Documents
Not archived · Council Link
Demolition Plans Elevations and Sections
Proposed Drawing
Not archived · Council Link
Design and Access Statement
Design and Access Statement
Not archived · Council Link
Development Options Testing
Supporting Documents
Not archived · Council Link
Energy Statement
Supporting Documents
Not archived · Council Link
Existing Plans Elevations and Sections
Existing Drawing
Not archived · Council Link
Existing Drawing
Archived · Council Link
Flood Risk Assessment
Supporting Documents
Not archived · Council Link
GLA Carbon Emission Reporting Spreadsheet
Supporting Documents
Not archived · Council Link
GLA Circular Economy Statement.xlsx
Supporting Documents
Not archived · Council Link
GLA WLC Assessment Template.xlsx
Supporting Documents
Not archived · Council Link
Heritage, Townscape, and Visual Impact Assessment
Supporting Documents
Not archived · Council Link
Landscape Statement
Supporting Documents
Not archived · Council Link
Noise Impact Assessment
Supporting Documents
Not archived · Council Link
Phase I Desk Study
Supporting Documents
Not archived · Council Link
Planning Fire Safety Strategy
Supporting Documents
Not archived · Council Link
Planning Statement
Supporting Documents
Not archived · Council Link
Pre-Demolition Audit
Supporting Documents
Not archived · Council Link
Proposed Landscape Drawings
Proposed Drawing
Not archived · Council Link
Proposed Drawing
Archived · Council Link
Statement of Community Involvement
Supporting Documents
Not archived · Council Link
Structural Methodology Statement
Supporting Documents
Not archived · Council Link
Sustainability Statement
Supporting Documents
Not archived · Council Link
Sustainable Drainage Strategy
Supporting Documents
Not archived · Council Link
Transport Statement
Supporting Documents
Not archived · Council Link
Travel Plan
Supporting Documents
Not archived · Council Link
Waste Collection and Storage Strategy
Supporting Documents
Not archived · Council Link
Whole Life Carbon Statement
Supporting Documents
Not archived · Council Link

Take Action

Make your voice heard. Authorities need to hear from people who support new homes.

✉️ Write Email in Support View on Council Portal