← Back to London Borough of Camden

Status

REGISTERED House extension
Received
23 days ago
New dwellings
0

Full Proposal

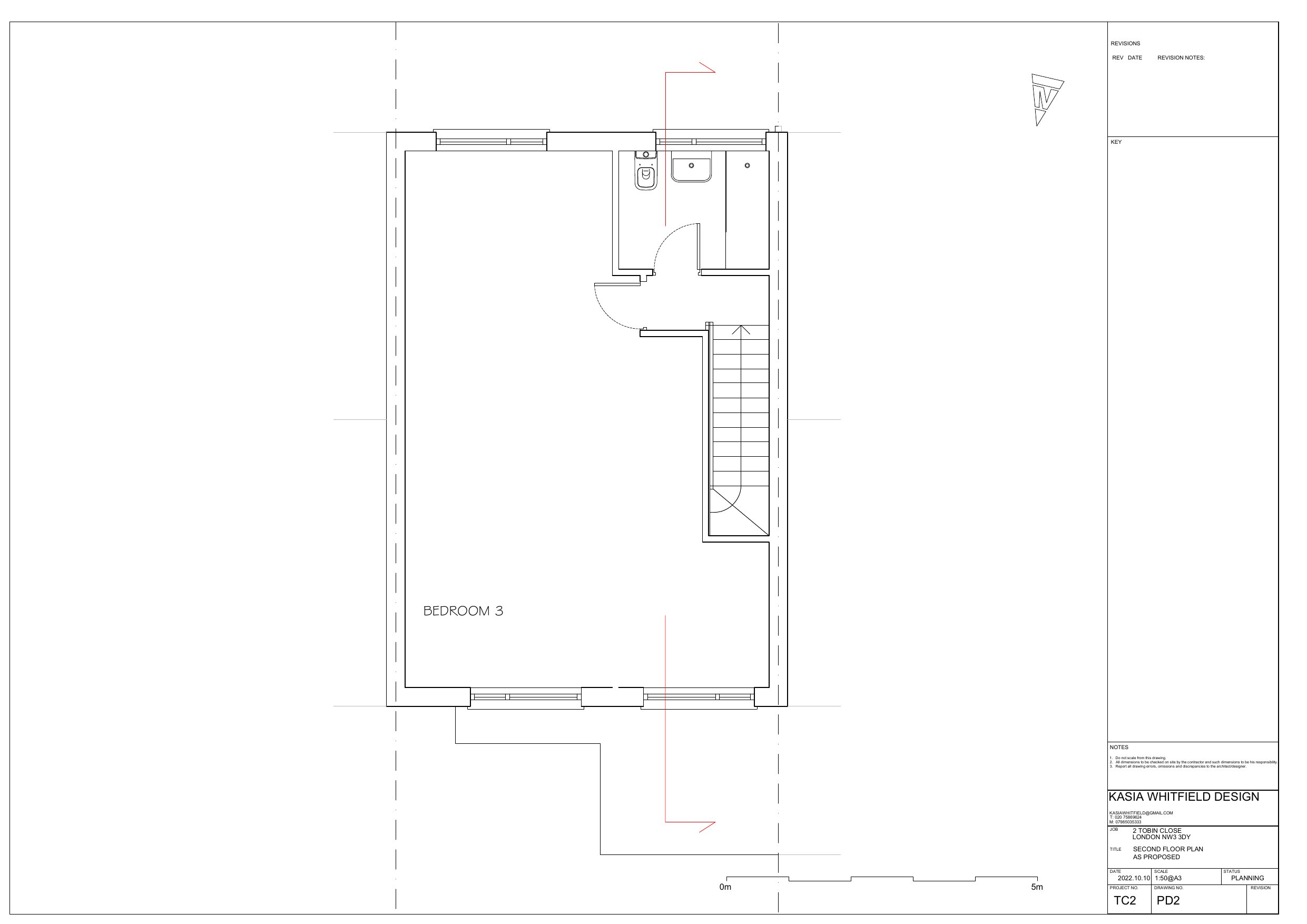
Erection of an additional storey to the existing dwellinghouse.

Documents

Existing Plans Elevations and Section Drawings 1(2)
Other
Not archived · Council Link
Existing Plans Elevations and Section Drawings 2(2)
Other
Not archived · Council Link
Existing Plans Elevations and Section Drawings 3(2)
Other
Not archived · Council Link
Existing Plans Elevations and Section Drawings 4(2)
Other
Not archived · Council Link
Existing Plans Elevations and Section Drawings 5(2)
Other
Not archived · Council Link
TC2 EX00 Section showing nearest neighbour Fellows Road(2)
Other
Not archived · Council Link

Take Action

Make your voice heard. Authorities need to hear from people who support new homes.

✉️ Write Email in Support View on Council Portal