← Back to London Borough of Hillingdon

Status

Approval House extension
Received
07 Jan 2025
New dwellings
0

Summary

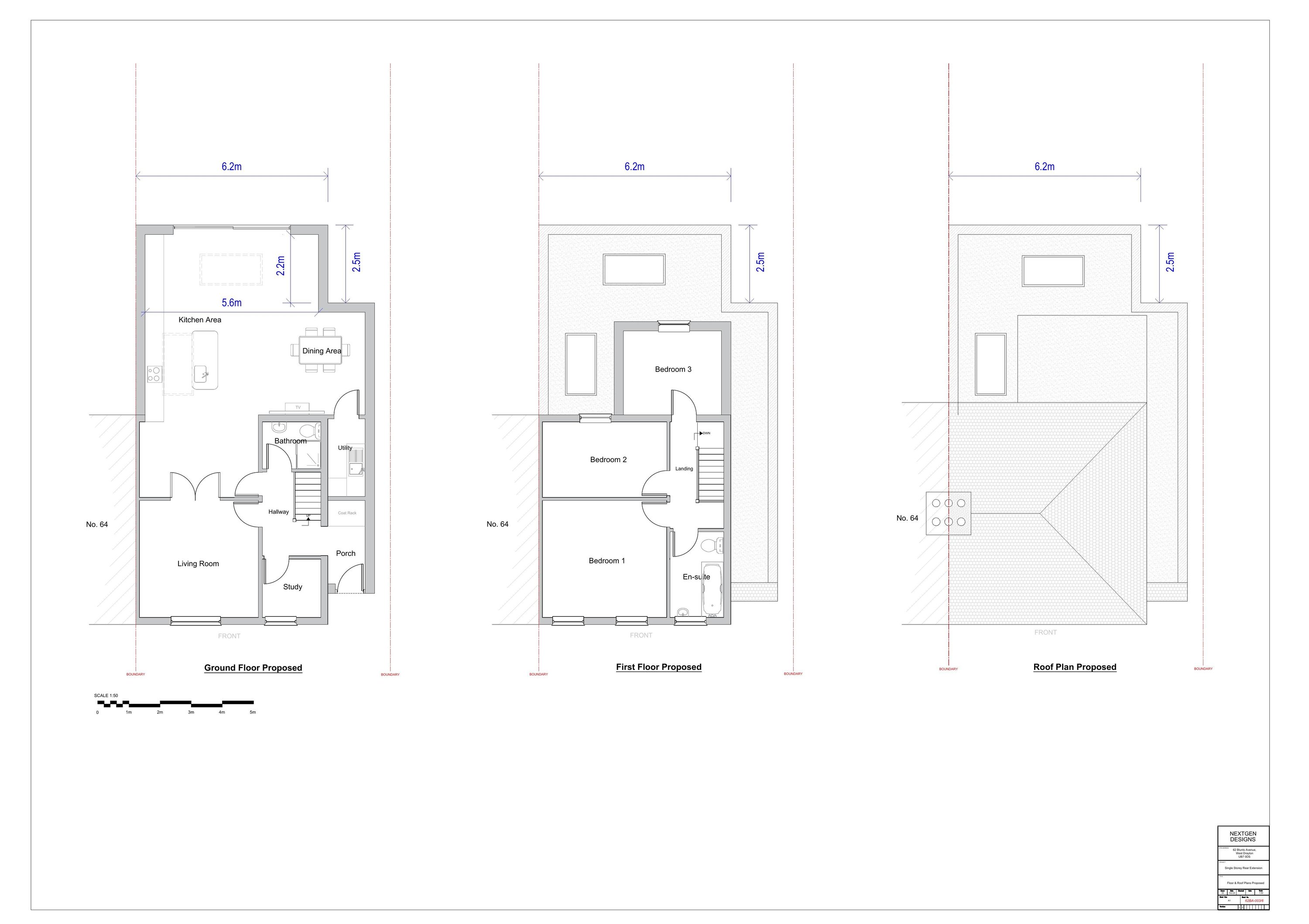
Single-storey side and rear extension and part first-floor rear extension to dwelling.

Full Proposal

Erection of a single storey side and rear extension and a part first floor rear extension (amended description)

Documents

APPLICATION FORM
Document
Not archived · Council Link
BLOCK PLAN
Document
Not archived · Council Link
DECISION NOTICE
Document
Not archived · Council Link
EXISTING ELEVATIONS
Document
Not archived · Council Link
EXISTING FLOOR PLANS
Document
Not archived · Council Link
LOCATION PLAN
Document
Not archived · Council Link
OFFICERS REPORTS
Document
Not archived · Council Link
PROPOSED ELEVATIONS
Document
Not archived · Council Link
Document
Archived · Council Link
SITE LAYOUT - PROPOSED AMENDED
Document
Not archived · Council Link
SUPPORTING INFORMATION
Document
Not archived · Council Link
SUPPORTING INFORMATION
Document
Not archived · Council Link

Take Action

Make your voice heard. Authorities need to hear from people who support new homes.

✉️ Write Email in Support View on Council Portal