← Back to all authorities

Recent applications

Showing the most recent records stored for this authority (max 200).

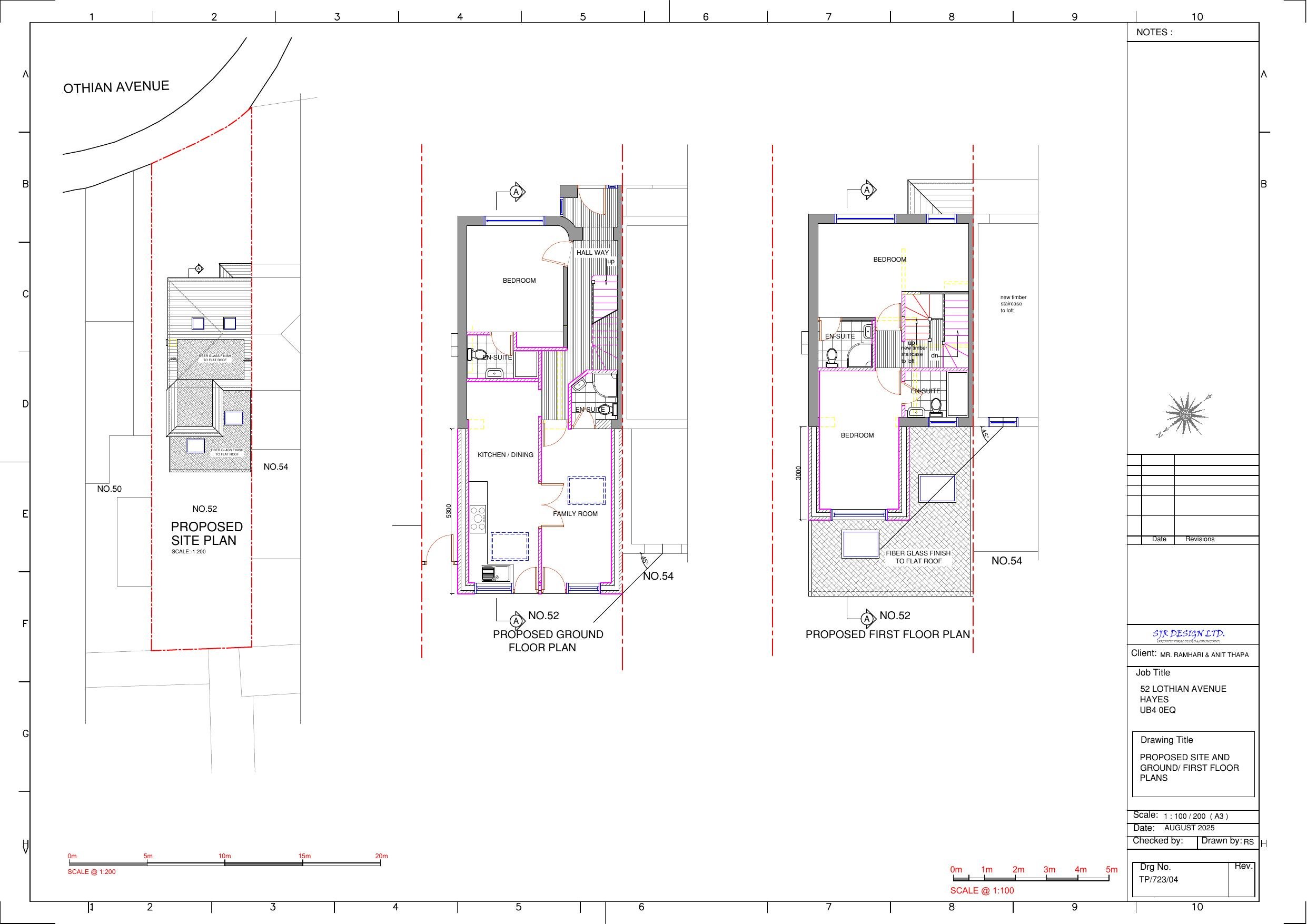
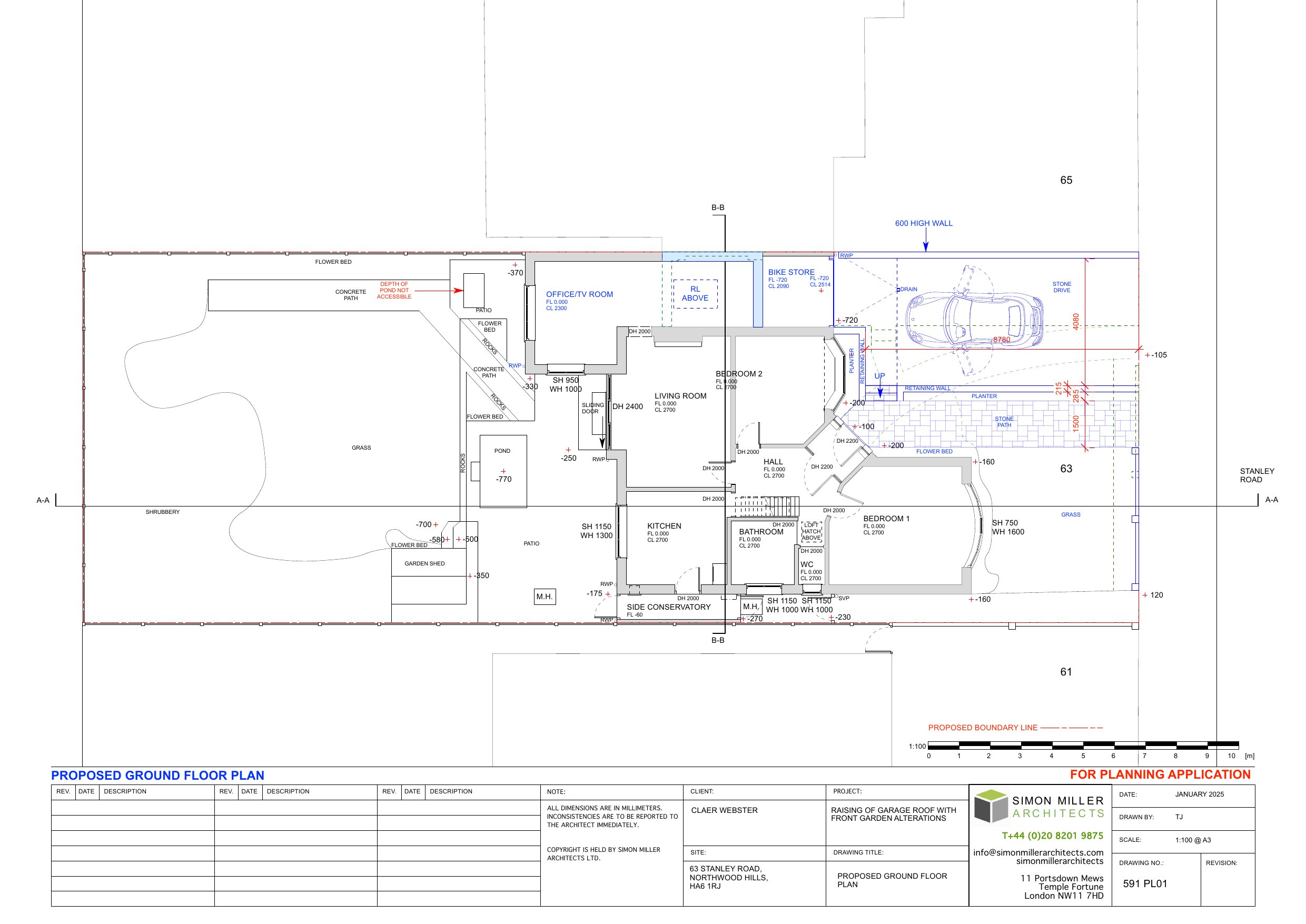
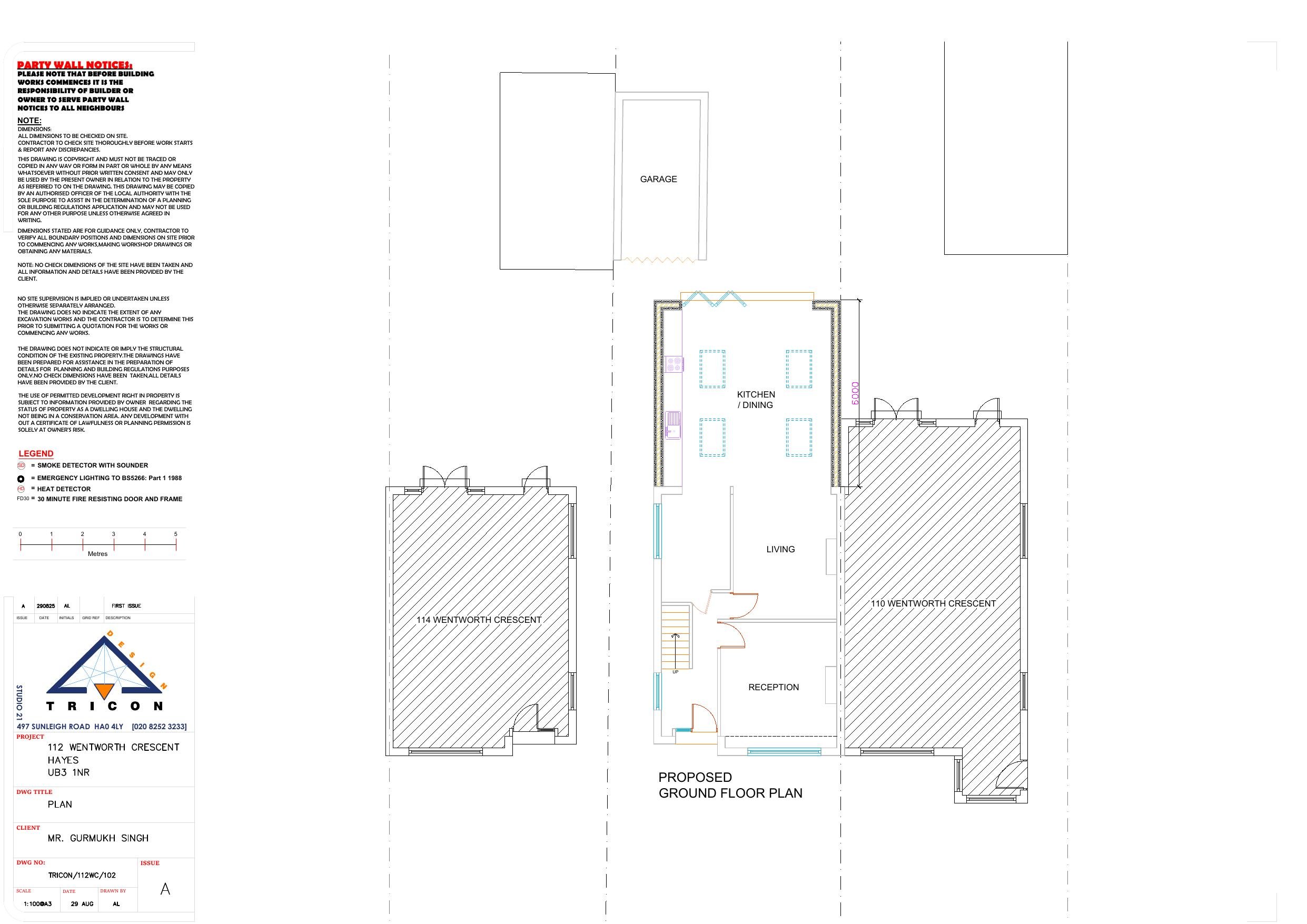
Conversion of garage to habitable use, including the replacement of the garage door with a window (Retrospective Planning Application)

Type Change of use
Status Approval
Date 19 Sep 2025

Conversion of garage to habitable space including the replacement of garage door with window, replacement of pitched roof to existing single...

Type House extension
Status Approval
Date 19 Sep 2025
Plan thumbnail

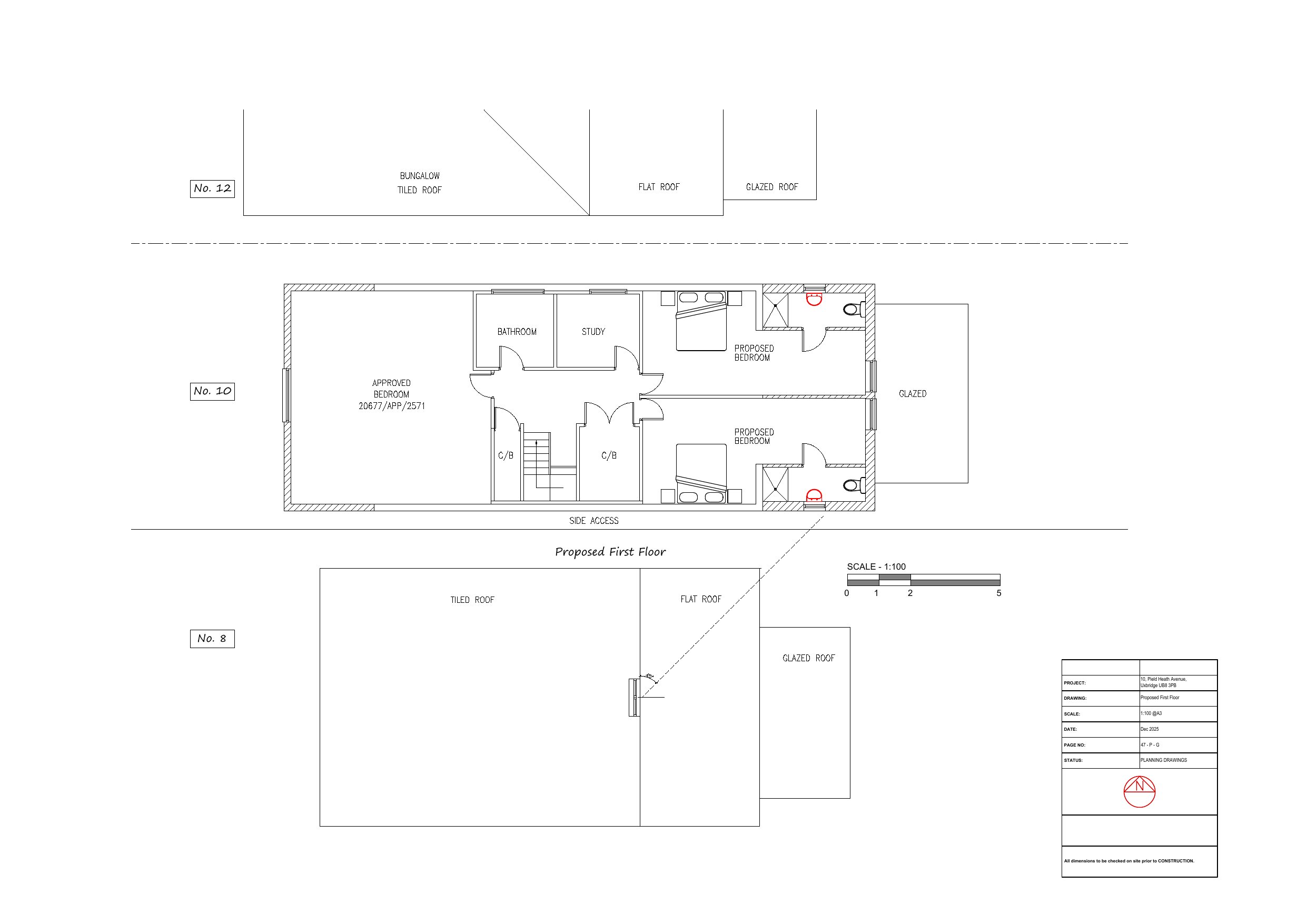
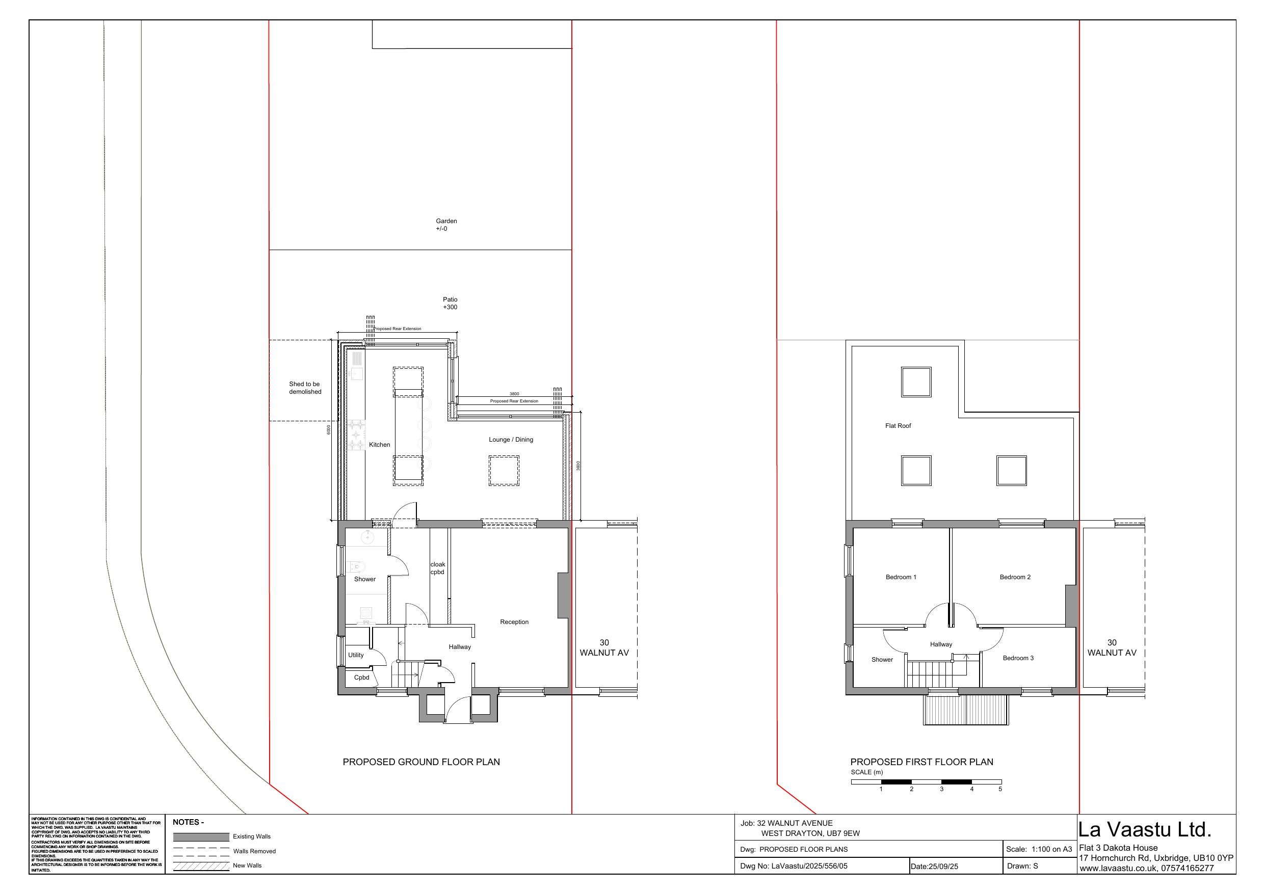
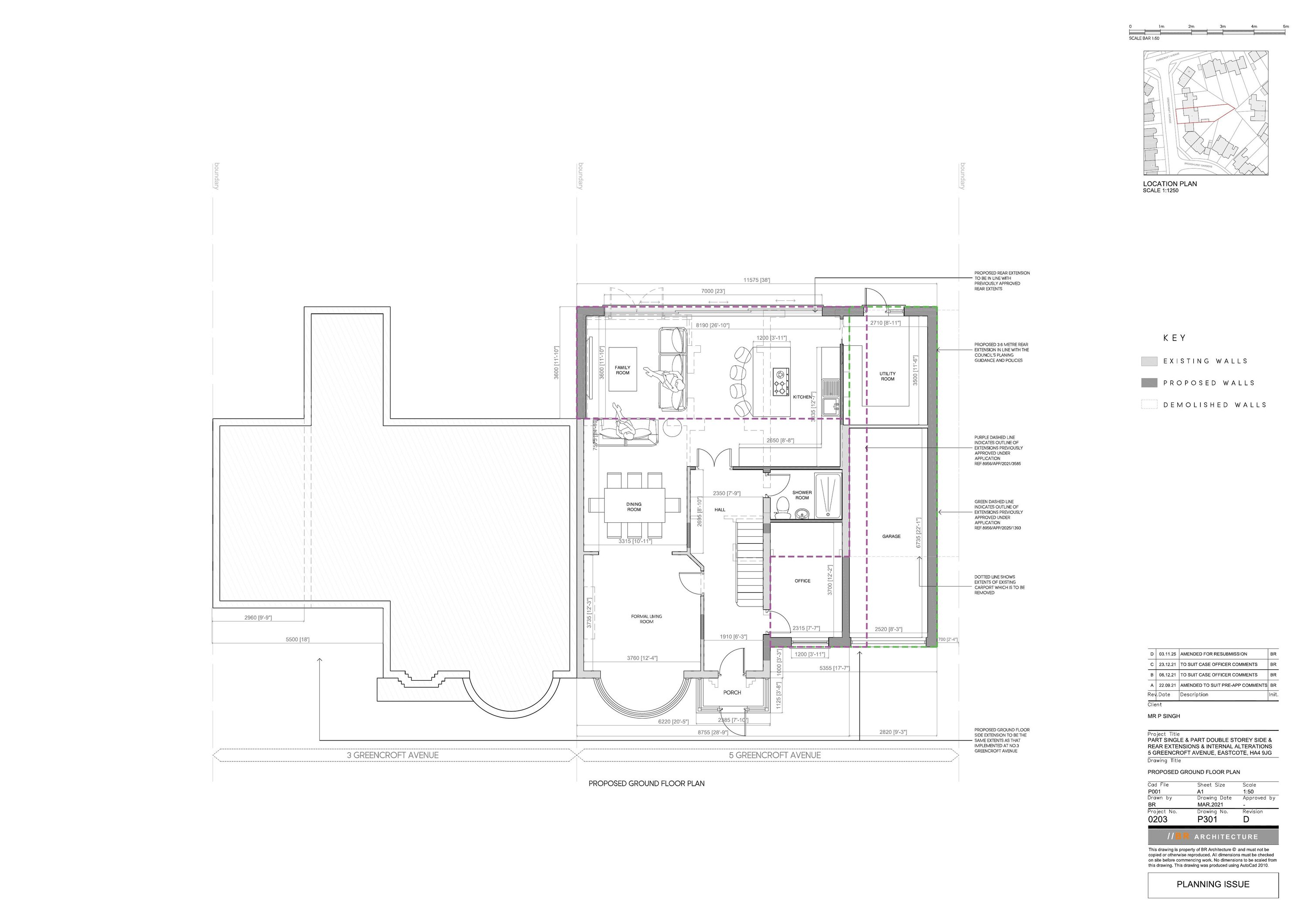
Erection of a part single storey, part two storey side and rear extension, single storey front extension, rear dormer, 1 x roof light to fro...

Type House extension
Status Approval
Date 19 Sep 2025

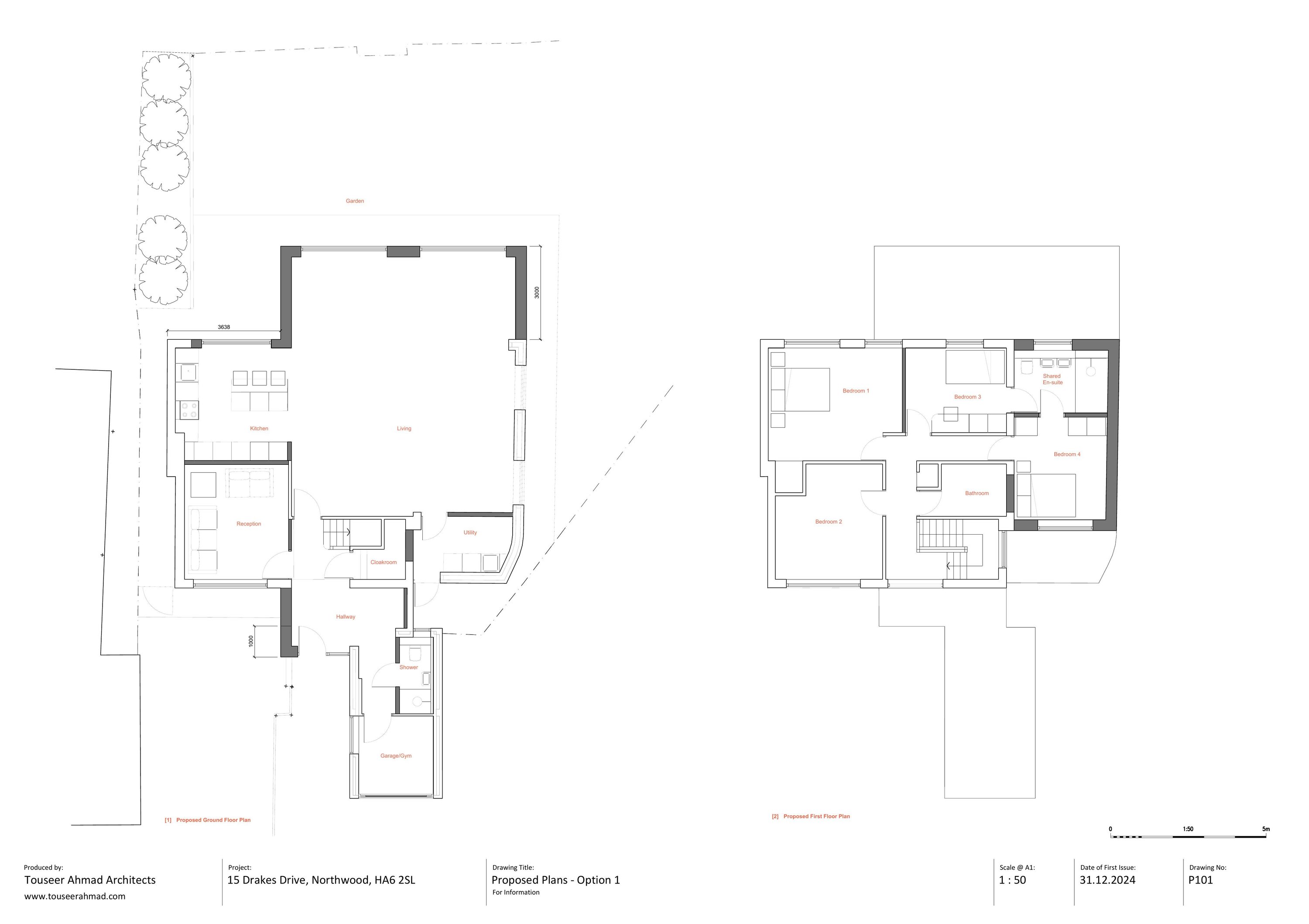
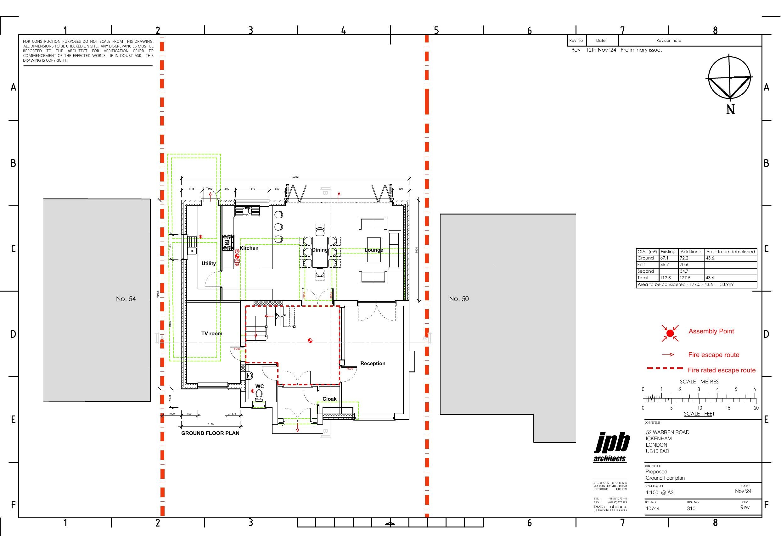
Two-storey rear extension with part single-storey and two-storey side extension.

Type House extension
Status Refusal
Date 18 Sep 2025
Plan thumbnail

Change of use from Class C3 dwelling house to 7-bedroom / maximum 8 person HMO Use Class Sui Generis

Type Change of use
Status Refusal
Date 19 Sep 2025
Plan thumbnail

Two-storey side extension, part single/part two-storey rear extension and front porch.

Type House extension
Status Approval
Date 18 Sep 2025

Two-storey side extension and single-storey rear extension to existing house.

Type House extension
Status Approval
Date 18 Sep 2025
Plan thumbnail

Internal conversion of an existing one-bedroom flat into a two-bedroom flat.

Type Change of use
Status Approval
Date 18 Sep 2025

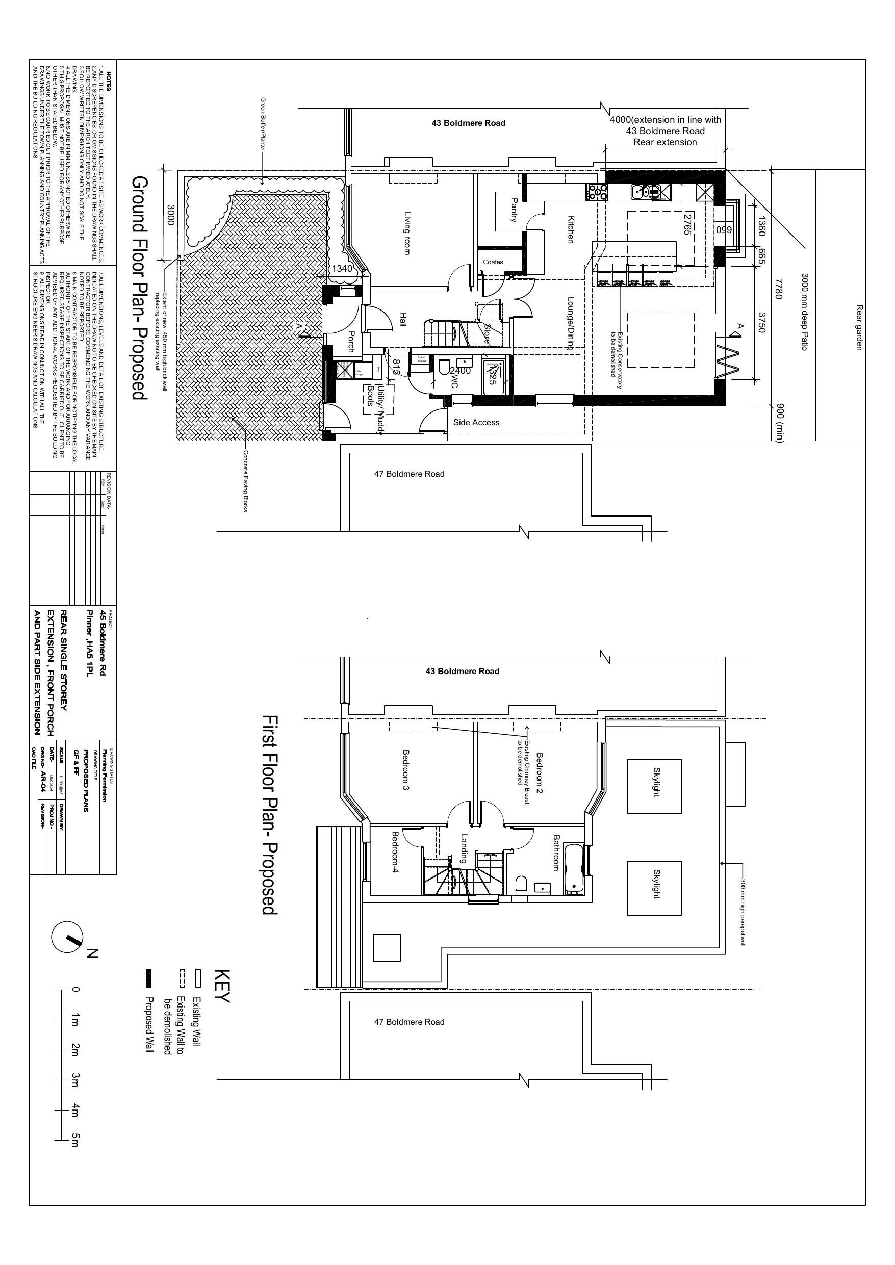
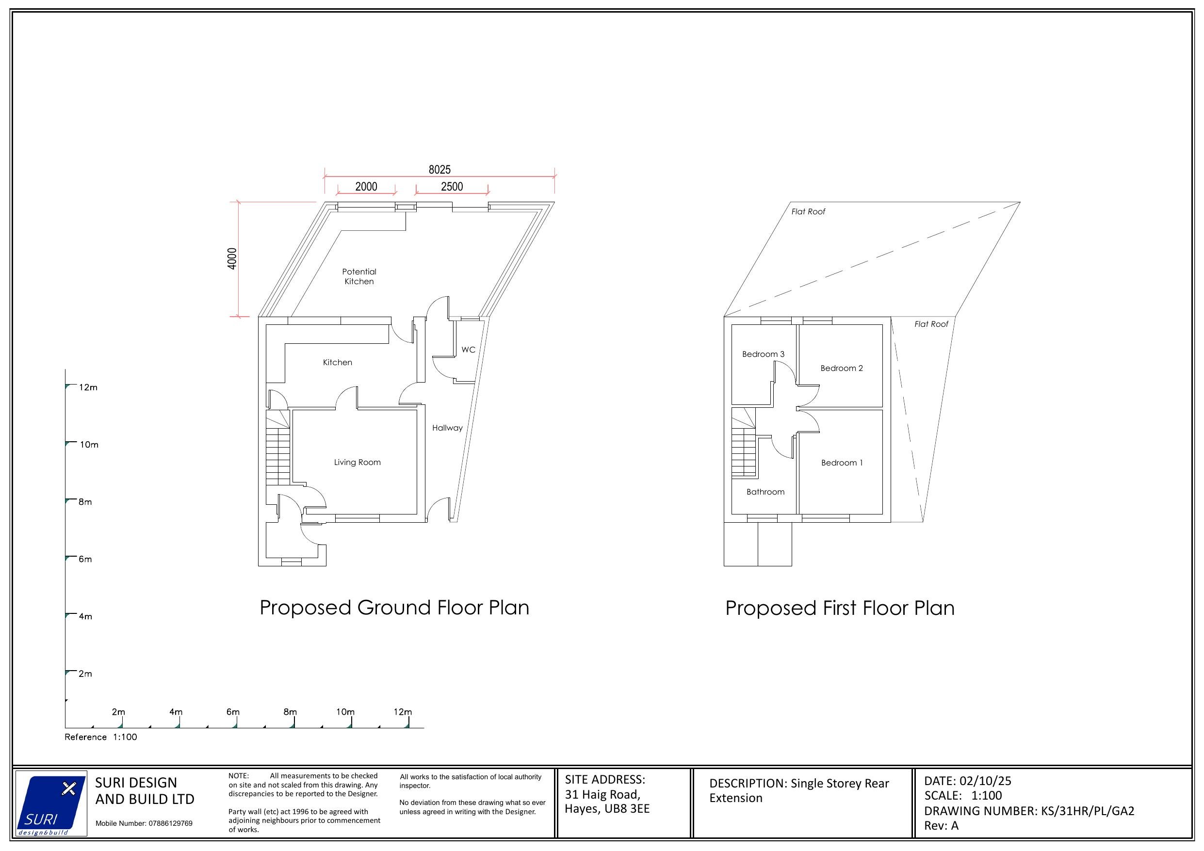
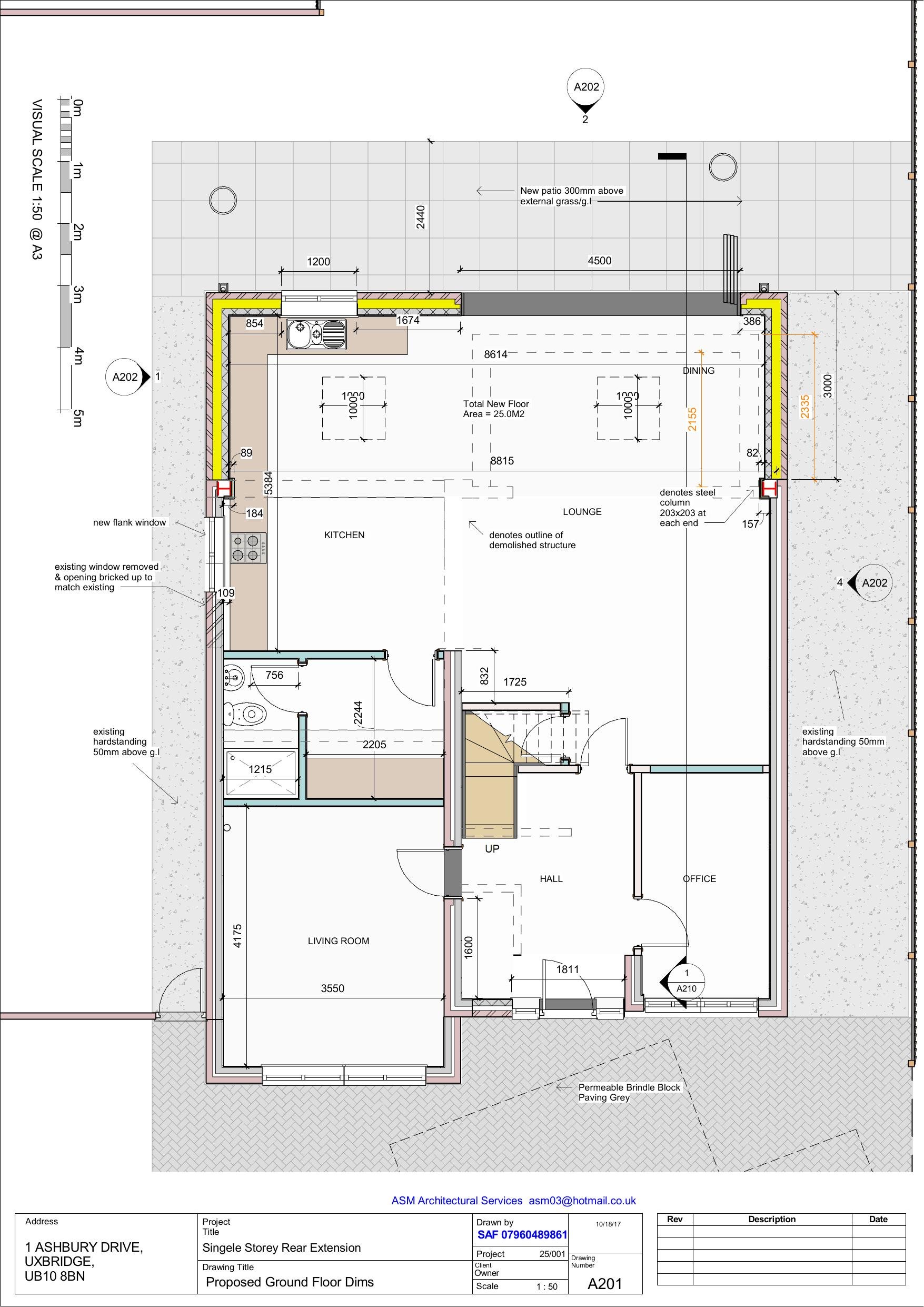
Erection of single storey rear extension, following the demolition of the existing rear extension.

Type House extension
Status Approval
Date 19 Sep 2025

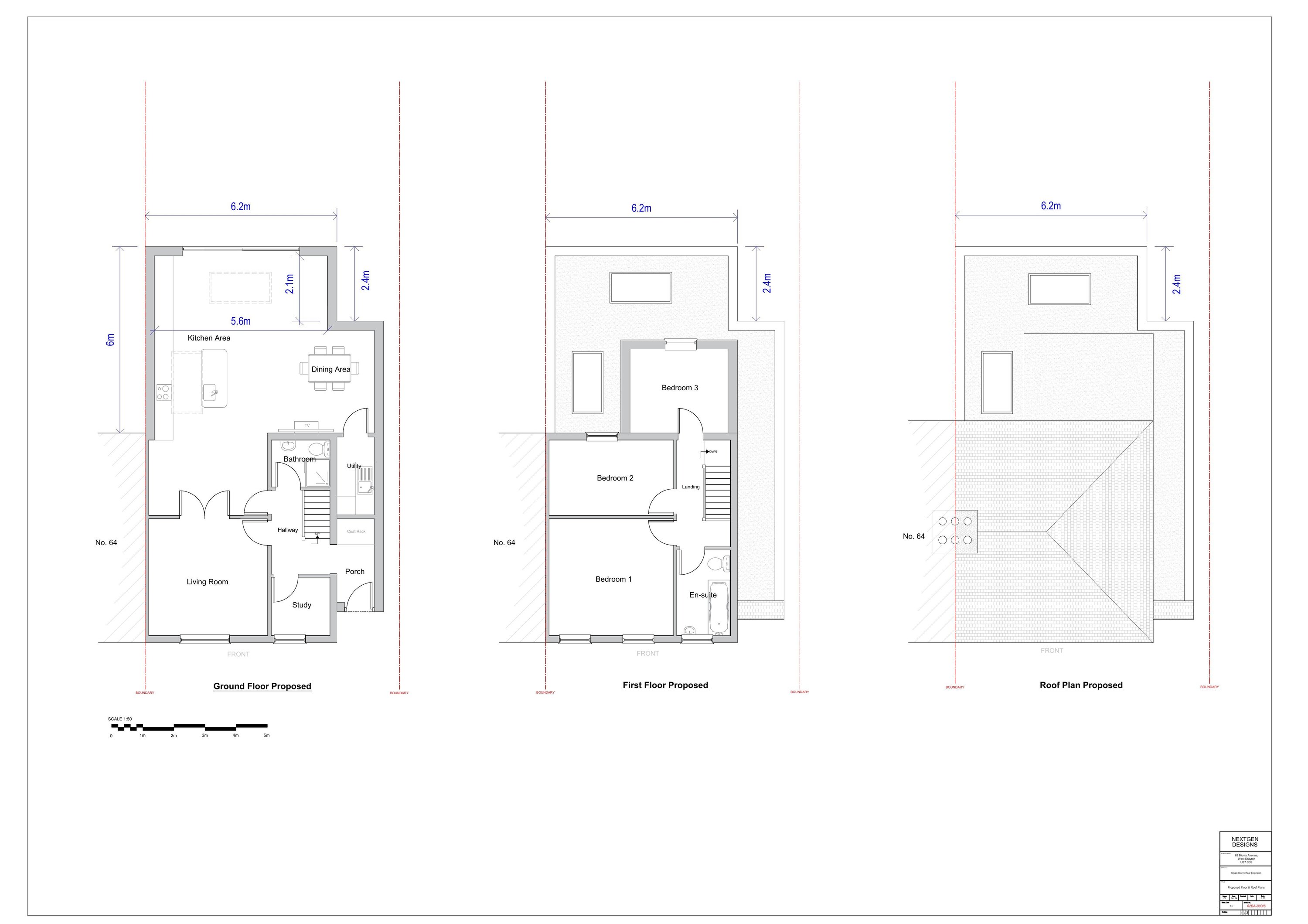
Single storey rear, and single storey side and front extensions following porch demolition.

Type House extension
Status Approval
Date 18 Sep 2025

Erection of front porch, following demolition of existing front porch

Type House extension
Status Approval
Date 19 Sep 2025

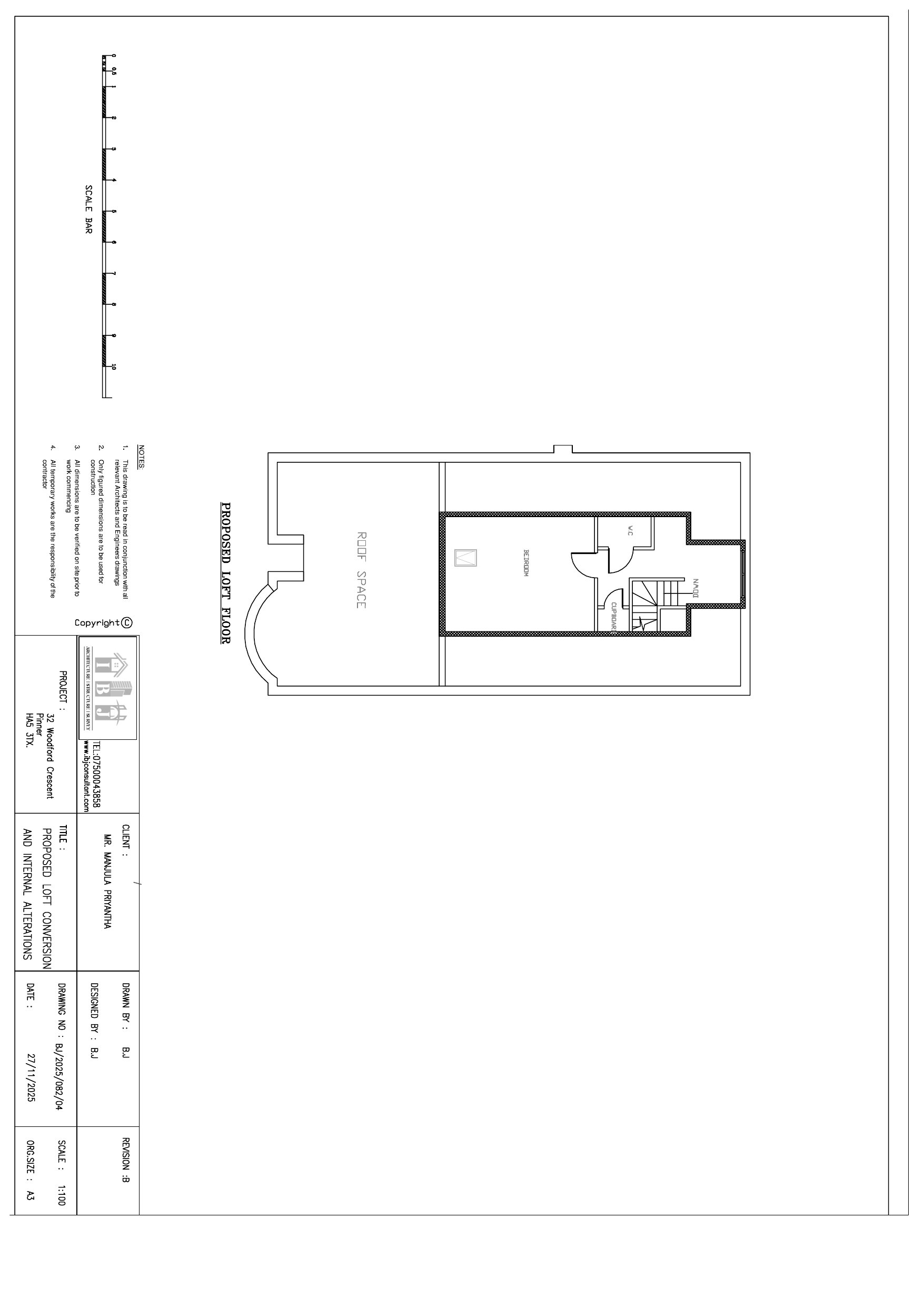
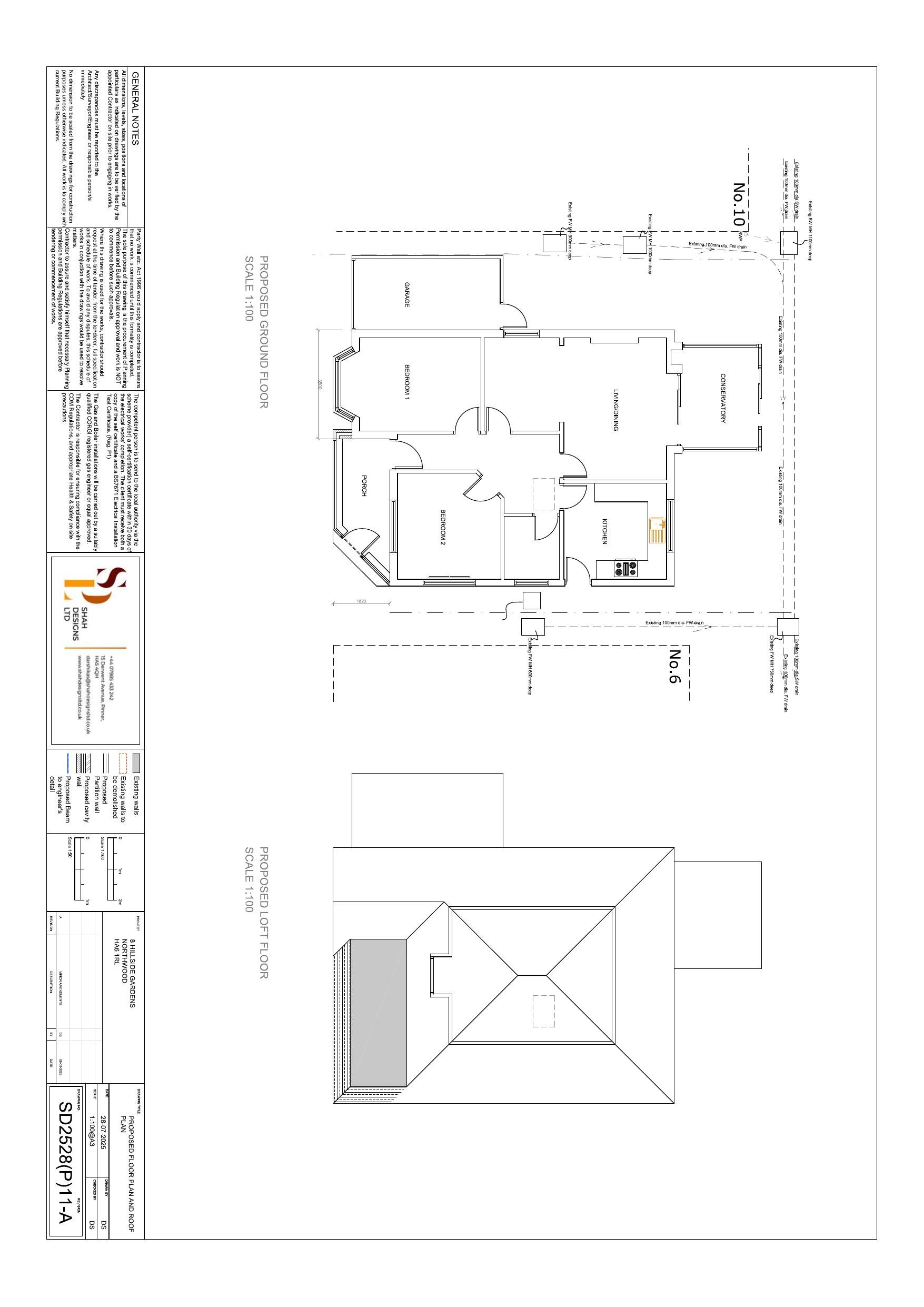
Conversion of roof space to habitable use with a rear dormer and front roof lights. Removal of 2no. chimney breasts.

Type House extension
Status Refusal
Date 11 Sep 2025

Conversion of roof space to habitable use including a rear dormer, 1 front roof light and 1 side facing window.

Type House extension
Status Approval
Date 11 Sep 2025
Plan thumbnail

Erection of a front porch extension and a new window on side elevation

Type House extension
Status Refusal
Date 12 Sep 2025

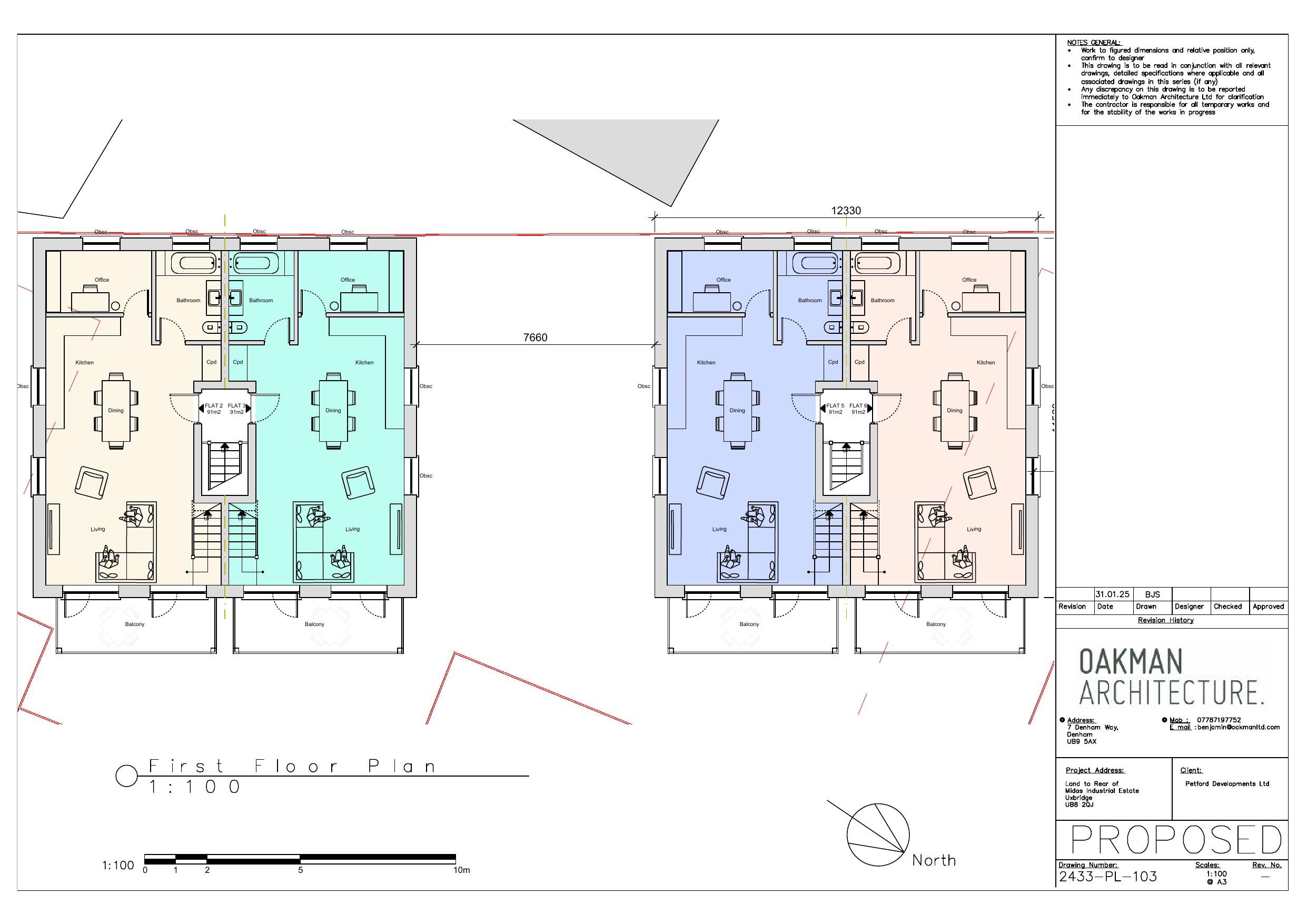
Wraparound part single/part two-storey extension and conversion into 1x3-bed and 1x2-bed flats.

Type Change of use
Status Approval
Date 13 Sep 2025
Plan thumbnail

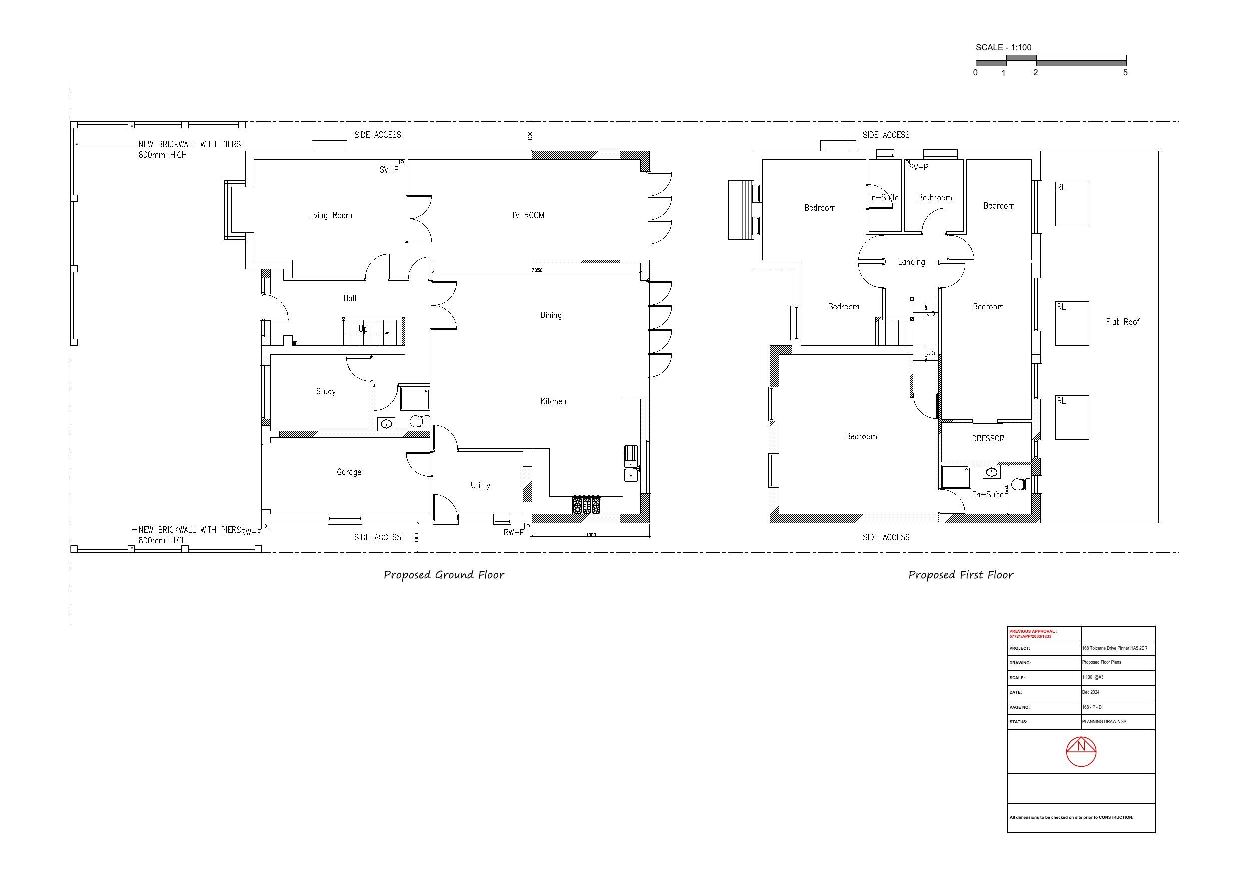
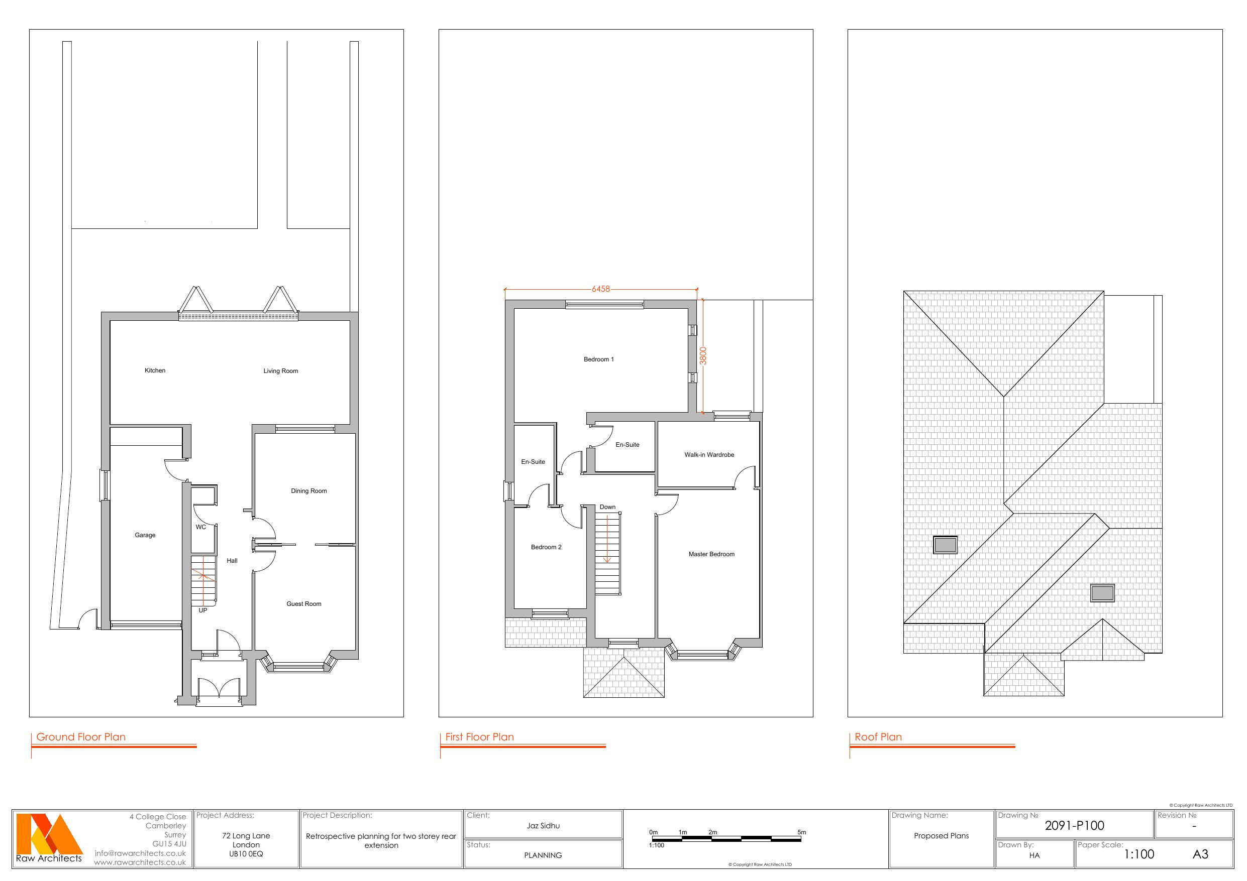
Demolition of existing dwelling. Erection of two storey detached replacement dwelling with habitable accommodation within the loft space and...

Type Demolition
Status Approval
Date 12 Sep 2025

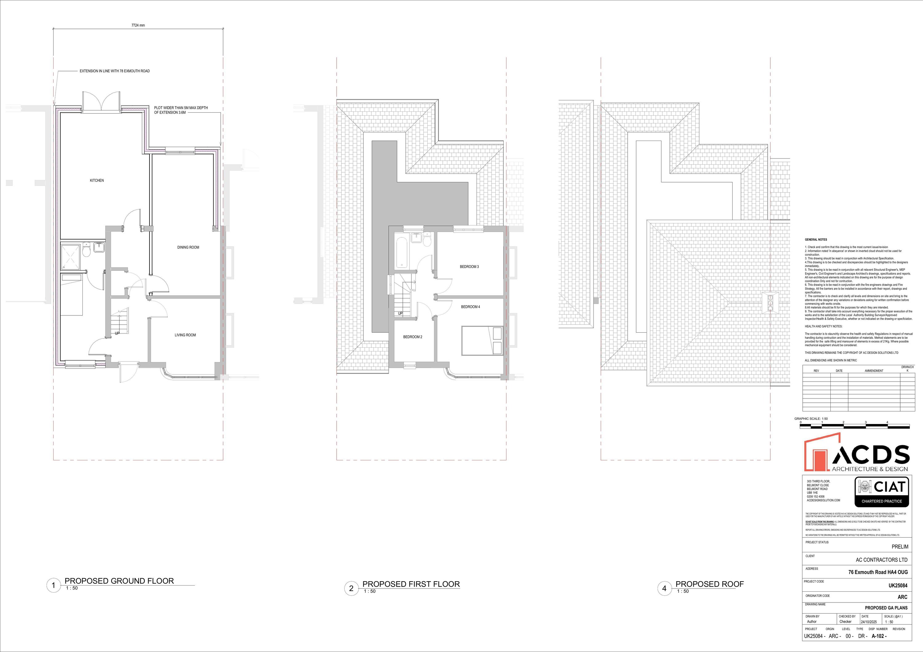
Erection of a single storey rear extension and conversion of loft space to habitable use involving a double hip-to-gable roof extension, the...

Type House extension
Status Approval
Date 12 Sep 2025

Conversion of integral garage to habitable accommodation, amendments to fenestration.

Type House extension
Status Approval
Date 03 Sep 2025
Plan thumbnail

Facade alteration for the installation of On Demand Grocery Hatch (ODG) at ground floor level, with associated parking space for delivery ve...

Type Commercial
Status Approval
Date 03 Sep 2025

Replacement of existing signage with 2no. internally illuminated letter signs, 3no. externally illuminated flag banners, 1no. non-illuminate...

Type Advertisement
Status Approval
Date 05 Sep 2025
Plan thumbnail

Part single-storey, part two-storey rear extension, roofspace conversion with rear dormer, two front rooflights and hip-to-gable conversion.

Type House extension
Status Approval
Date 04 Sep 2025

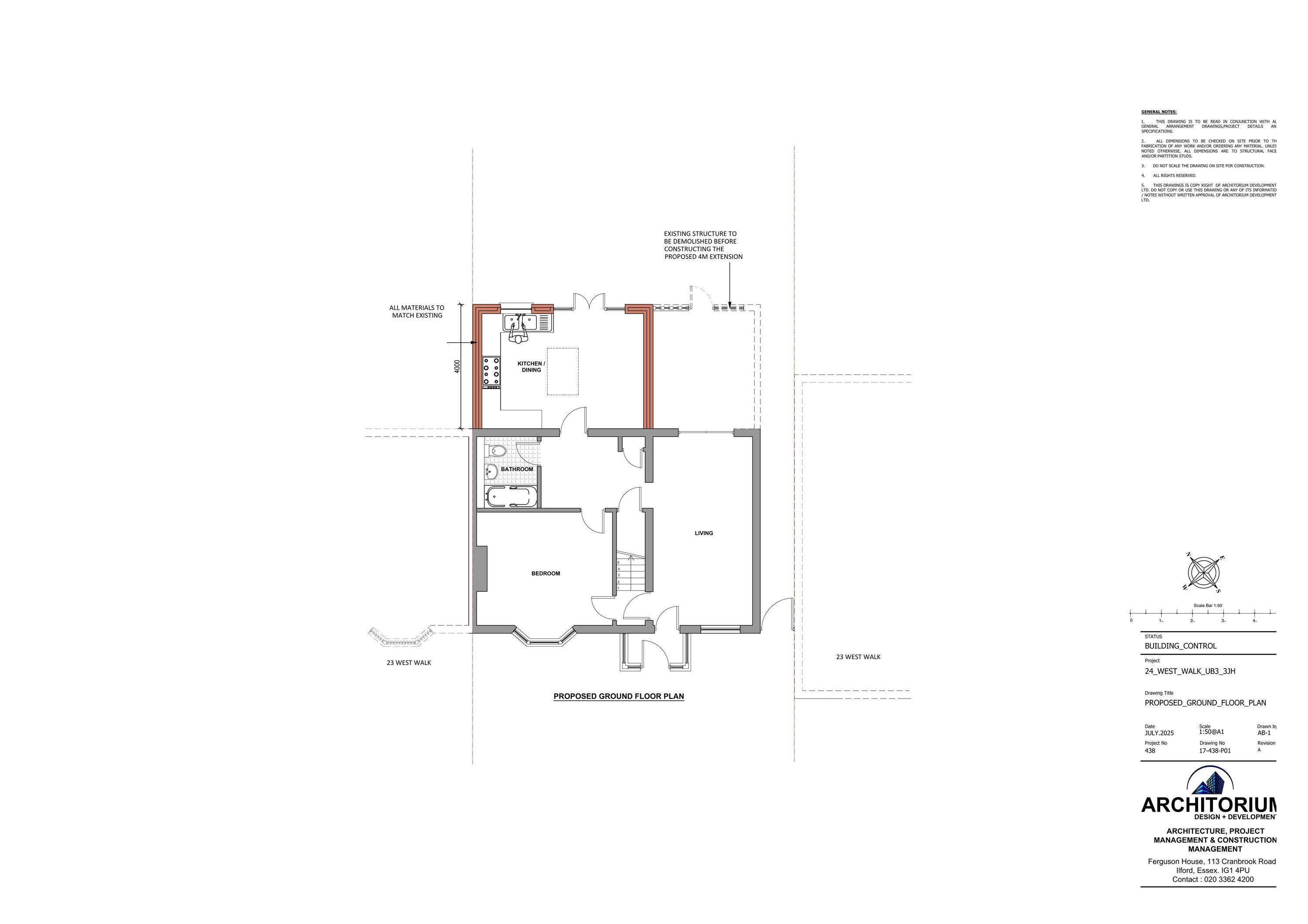
Erection of a single storey rear extension, which would extend beyond the rear wall of the original house by 4 metres, for which the maximum...

Type House extension
Status Approval
Date 05 Sep 2025
Plan thumbnail

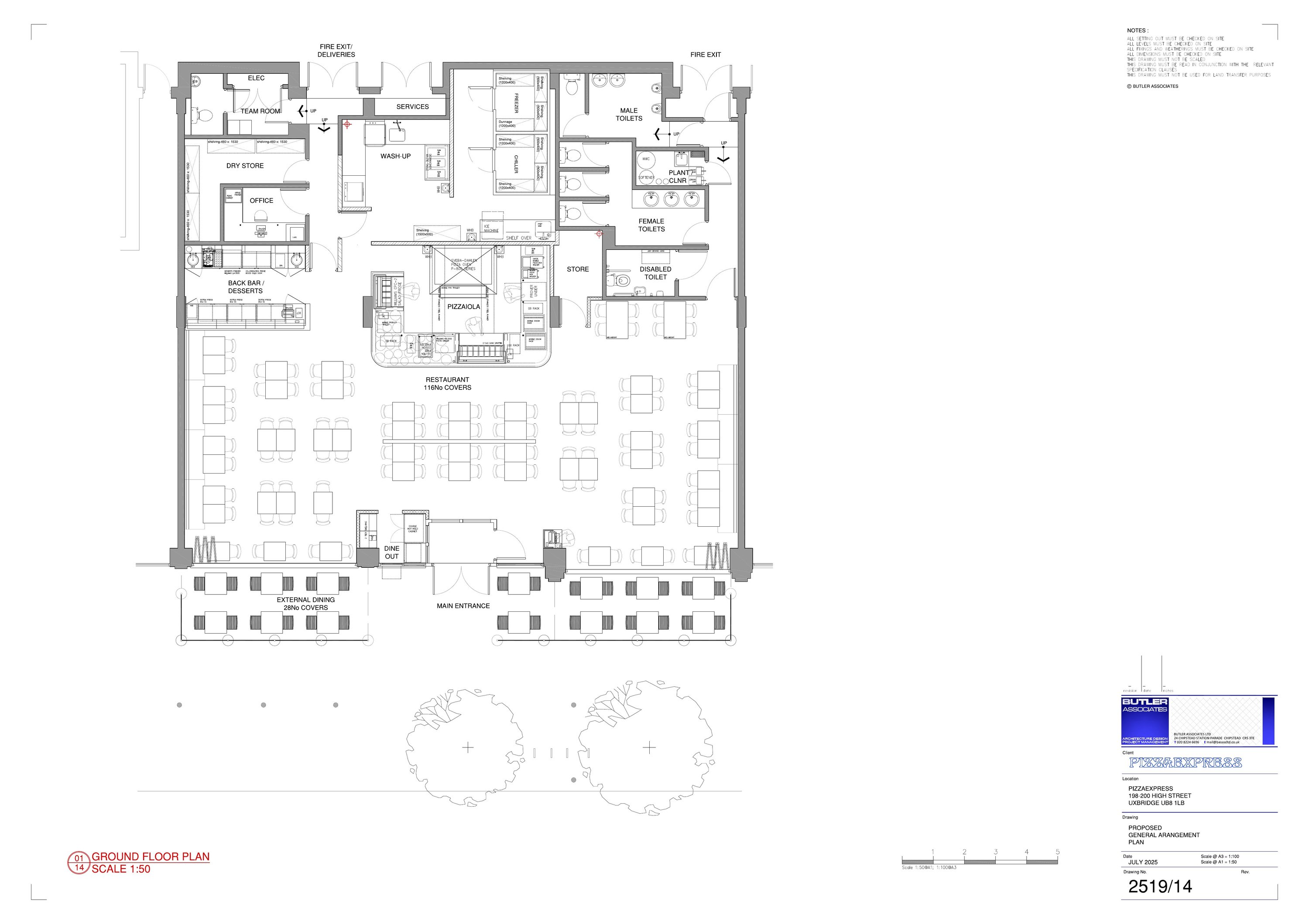
Installation of walk-in freezer, pergola, fixed dining booths under canopy, smoking shelter, and relocated jumbrella and bin store.

Type Commercial
Status Approval
Date 04 Sep 2025
Plan thumbnail

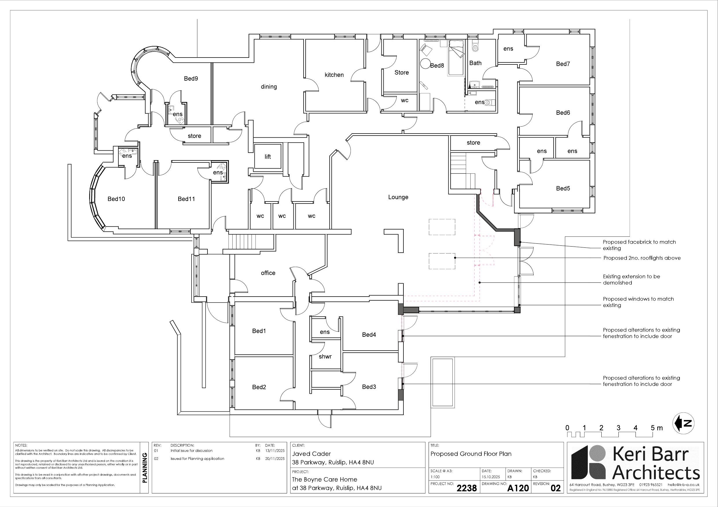
CHANGE OF USE FROM A HOUSE IN MULTIPLE OCCUPATION (C4 USE) TO A CHILDRENS CARE HOME (C2 USE)

Type Change of use
Status Refusal
Date 10 Oct 2025

Erection of first floor extension with pitched roof, and amendments to fenestrations

Type House extension
Status Refusal
Date 11 Oct 2025
Plan thumbnail

Change of use of the existing residential property (Use Class C3) to a small House in Multiple Occupation (Use Class C4). Retrospective.

Type Change of use
Status Approval
Date 10 Oct 2025
Plan thumbnail

Change of use of the existing residential property (Use Class C3) to a small House in Multiple Occupation (Use Class C4). Retrospective.

Type Change of use
Status Approval
Date 10 Oct 2025
Plan thumbnail

Part single, part two-storey wrap-around side and rear extension and front porch.

Type House extension
Status Approval
Date 09 Oct 2025
Plan thumbnail

Conversion of roof space to habitable use to include rear dormer and 1 x front roof light.

Type House extension
Status Approval
Date 02 Oct 2025

Conversion of internal garage to habitable use, addition of front window to new infill wall

Type Change of use
Status Approval
Date 03 Oct 2025
Plan thumbnail

Two storey side extension with part two-storey, part single-storey rear extensions.

Type House extension
Status Approval
Date 02 Oct 2025

Single storey rear extension extending 4.00m with 3.90m maximum height.

Type House extension
Status Prior Approval N/Req
Date 02 Oct 2025
Plan thumbnail

Erection of a single storey rear extension, and conversion of roof space to habitable use comprising of a single dormer window on the rear r...

Type House extension
Status Approval
Date 03 Oct 2025
Plan thumbnail

Erection of a two storey rear extension, conversion of roof space to habitable use including hip to gable, raising the roof ridge, 4 x side ...

Type House extension
Status Approval
Date 03 Oct 2025

Erection of single storey part side, part rear extension, conversion of existing internal garage to habitable use.

Type House extension
Status Approval
Date 03 Oct 2025
Plan thumbnail

Refurbishment of shop front including installation of delivery collection point hatch, and the installation of 1no. internally illuminated f...

Type Advertisement
Status Approval
Date 25 Sep 2025

Installation of 1no. internally illuminated fascia sign, 1no. internally illuminated projecting sign and 2no. internally illuminated window ...

Type Advertisement
Status Approval
Date 25 Sep 2025

Removal of existing generator and associated equipment serving Substations 2 and 3, and installation of new replacement generators with asso...

Type Industrial
Status Approval
Date 26 Sep 2025

Installation of 1no. externally illuminated fascia sign and 1no. non-illuminated projecting sign

Type Advertisement
Status Approval
Date 27 Sep 2025

Erection of a single storey rear extension which will extend beyond the wall of the original house by 4.00 metres, for which the maximum hei...

Type House extension
Status Prior Approval N/Req
Date 26 Sep 2025

Erection of a single storey rear extension, which will extend beyond the wall of the original house by 4.00 metres, for which the maximum he...

Type House extension
Status Prior Approval N/Req
Date 26 Sep 2025

Erection of a single storey rear extension, which would extend beyond the rear wall of the original house by 4 metres, for which the maximum...

Type House extension
Status Approval
Date 26 Sep 2025
Plan thumbnail

Add one front and two rear dormers, two rooflights, convert garage to habitable use, amend fenestration.

Type House extension
Status Approval
Date 25 Sep 2025
Plan thumbnail

Erection of a two storey wrap around extension to the rear, side and front with amendments to fenestrations and rear Juliette balcony follow...

Type House extension
Status Approval
Date 26 Sep 2025

Installation of illuminated and non-illuminated fascia, hanging and hoarding signs with external lighting.

Type Advertisement
Status Approval
Date 24 Sep 2025

Convert first floor to 6-bed HMO (C3 to C4) and erect ground-floor retail, storage, bike and bin spaces.

Type Change of use
Status Approval
Date 25 Sep 2025

Installation of new plant solution and boundary treatment to rear of store.

Type Commercial
Status Approval
Date 31 Oct 2025

Installation of solar panels on rear and side of roof and on the existing rear extension

Type Renewable energy
Status Approval
Date 31 Oct 2025

Installation of 2no. internally illuminated fascia signs, 1no. non-illuminated fascia sign, 1no. non-illuminated projecting sign, 1no. dibon...

Type Advertisement
Status Approval
Date 31 Oct 2025

Single-storey rear extension projecting 4.00m beyond original rear wall, 3.00m max height, 2.70m eaves.

Type House extension
Status Prior Approval N/Req
Date 31 Oct 2025
Plan thumbnail

Extension of roof to hip to gable end on both hipped roofs, addition of front roof light

Type House extension
Status Refusal
Date 23 Oct 2025

Conversion and extension of existing garage to granny annexe (amended description)

Type House extension
Status Refusal
Date 24 Oct 2025

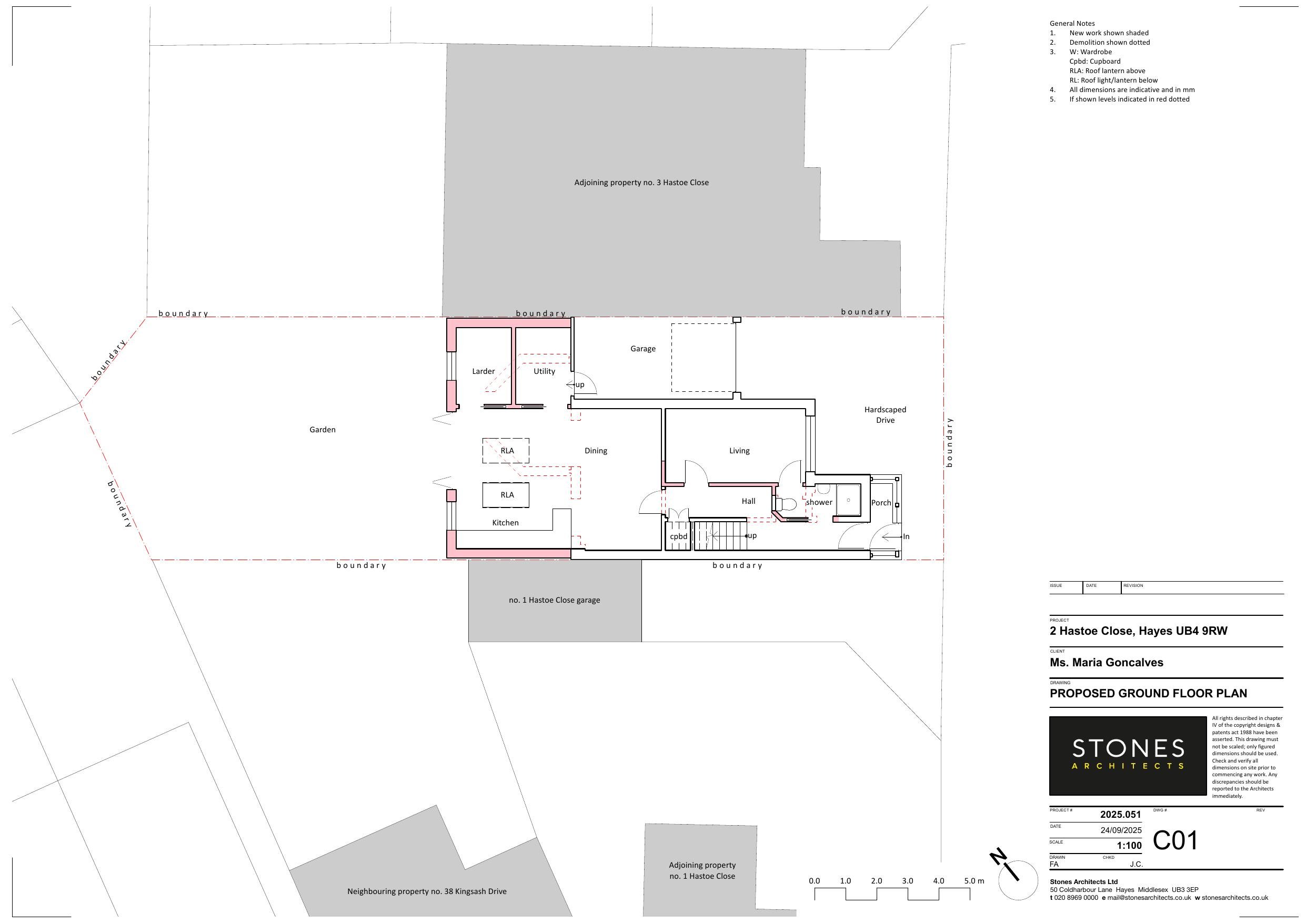
Single-storey rear extension and partial demolition of detached garage.

Type House extension
Status Approval
Date 23 Oct 2025
Plan thumbnail

Single-storey wraparound side and rear extension, replacing side garage and rear extension.

Type House extension
Status Approval
Date 25 Oct 2025
Plan thumbnail

Single-storey rear extension projecting 3.6m, maximum height and eaves 3.75m.

Type House extension
Status Refusal
Date 24 Oct 2025

Partial second-storey side extension and single-storey rear extension.

Type House extension
Status Refusal
Date 24 Oct 2025

Single storey rear extension projecting 4.00 metres, max height 3.00 metres.

Type House extension
Status Approval
Date 23 Oct 2025
Plan thumbnail

Add two storeys to provide 38 residential units (Class AA prior approval).

Type New housing
Status Approval
Date 23 Oct 2025
Plan thumbnail

Add two storeys to create 38 residential flats (Class AA prior approval).

Type New housing
Status Approval
Date 24 Oct 2025

Front porch, single-storey rear extension, rear dormer and internal garage conversion to habitable space.

Type House extension
Status Approval
Date 24 Oct 2025

Part single, part double storey rear/side extension, roof conversion with dormer and Juliet balconies.

Type House extension
Status Approval
Date 23 Oct 2025

Change of use from use from Retail (Use Class E) to take away pizza shop (Sui-Generis), including installation of new air ducting system.

Type Change of use
Status Approval
Date 15 Oct 2025

Installation of 3no. illuminated fascia signs and retention of installed steel beam and chandeliers in the entrance lobby, stairs and main h...

Type Advertisement
Status Approval
Date 16 Oct 2025

Installation of a new 20-metre high streetworks pole with built-in cabinet which will support a total of 9no. radio antennas via a stacked a...

Type Infrastructure
Status Approval
Date 17 Oct 2025

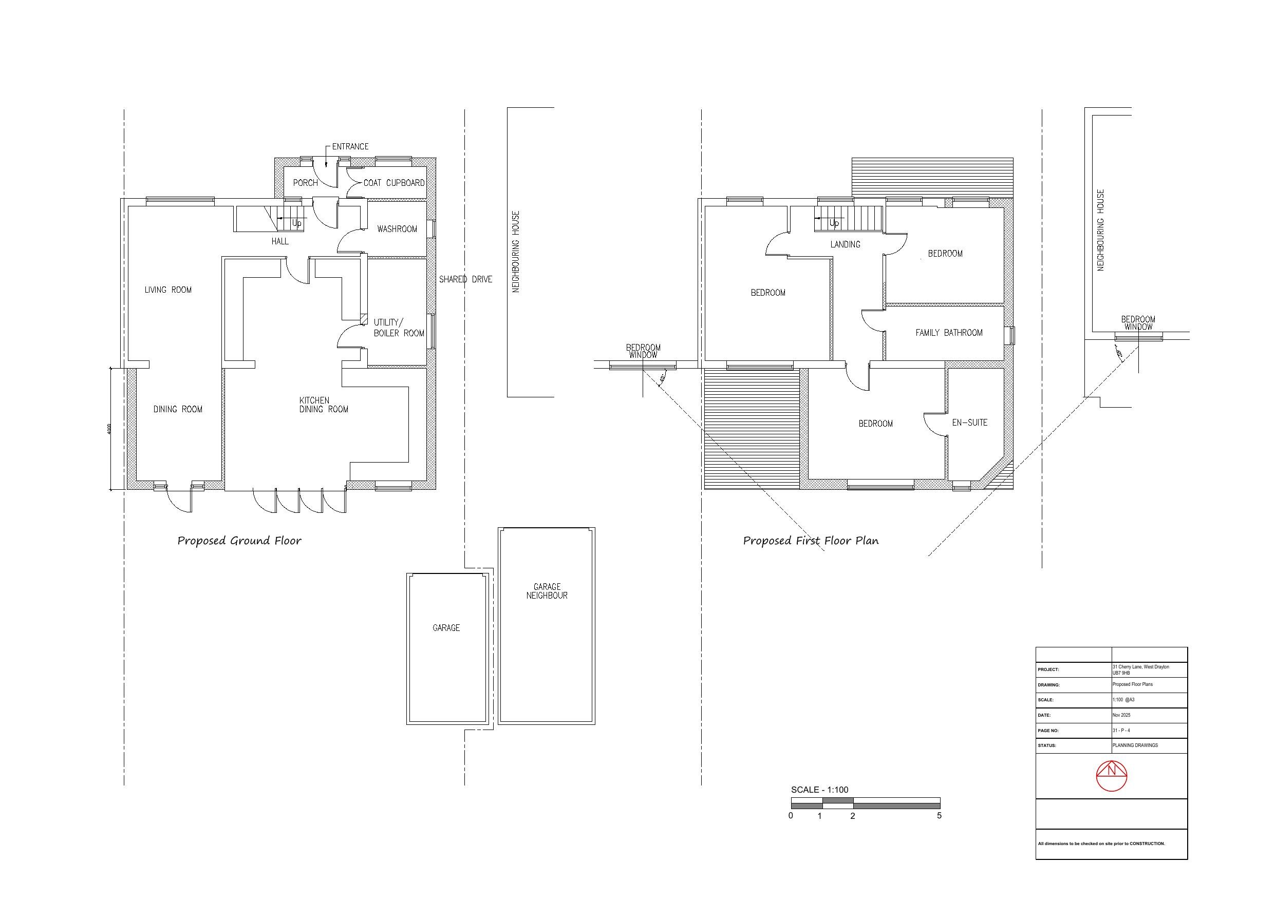
Erection of part single storey part two storey rear extension and single storey side/ rear extension following the demolition of the existin...

Type House extension
Status Approval
Date 17 Oct 2025

Part first-floor rear extension to existing property (amended description).

Type House extension
Status Approval
Date 16 Oct 2025
Plan thumbnail

Loft conversion with rear dormer, two Juliette balconies, three front rooflights and gable end.

Type House extension
Status Approval
Date 18 Oct 2025

Single storey rear extension and conversion of garage to habitable room with new window.

Type House extension
Status Approval
Date 15 Oct 2025

Part single/part double storey side and rear extension, porch, bay extension, garage and loft conversion with rear dormer.

Type House extension
Status Approval
Date 15 Oct 2025

Single-storey rear extension (4.00m projection, max/eaves height 2.90m) following demolition.

Type House extension
Status Prior Approval N/Req
Date 18 Oct 2025

Single-storey rear extension following demolition of existing timber frame canopy.

Type House extension
Status Approval
Date 15 Oct 2025

Single storey wrap-around rear and side extension with front porch.

Type House extension
Status Approval
Date 20 Nov 2025

Erection of first floor side extension, ground floor rear extension to the existing side garage, and conversion of existing side garage into...

Type House extension
Status Approval
Date 21 Nov 2025
Plan thumbnail

Demolition of the existing single-storey rear extension and erection of a replacement single-storey rear extension, including the replacemen...

Type House extension
Status Approval
Date 20 Nov 2025

Erection of front porch and single storey rear extension, following demolition of existing rear extension

Type House extension
Status Approval
Date 20 Nov 2025

Erection of 2 storey rear and side extension, following the demolition of existing side garage and rear extension

Type House extension
Status Refusal
Date 13 Nov 2025

Erection of single storey rear infill extension and alterations to fenestration to existing rear extension.

Type House extension
Status Approval
Date 13 Nov 2025

Erection of first floor side extension, and addition of driveway and dropped kerb to front

Type House extension
Status Refusal
Date 14 Nov 2025
Plan thumbnail

Erection of two storey side extension, part single part two storey rear extension, 2 x rear dormers, 2x roof lights to the front, and amendm...

Type House extension
Status Approval
Date 14 Nov 2025
Plan thumbnail

Minor alterations to the shopfront to include replacing 2 no. awnings, door handles and external furniture. Installation of new fabric barri...

Type Commercial
Status Approval
Date 07 Nov 2025
Plan thumbnail

Erection of part single storey and part two storey side and rear extension, front porch, and conversion of roof space to habitable use to in...

Type House extension
Status Approval
Date 06 Nov 2025

Erection of an additional storey and a single storey side extension.

Type House extension
Status Approval
Date 06 Nov 2025

Convert two self-contained flats into a single dwelling and erect rear first-floor extension.

Type Change of use
Status Approval
Date 06 Nov 2025
Plan thumbnail

Conversion of existing property to two houses with porch and external alterations.

Type Change of use
Status Approval
Date 07 Nov 2025

Erection of a single storey rear extension, following demolition of existing extension

Type House extension
Status Approval
Date 05 Nov 2025
Plan thumbnail

Ground floor and first floor front and first floor rear extensions to created additional habitable roofspace

Type House extension
Status Refusal
Date 12 Dec 2025

Erection of a single storey rear extension, a front porch, and conversion of garage to habitable space.

Type House extension
Status Approval
Date 12 Dec 2025
Plan thumbnail

Two-storey side, part first-floor rear and single-storey front and rear extensions; demolish garden store.

Type House extension
Status Approval
Date 12 Dec 2025
Plan thumbnail

Double-storey side extension, single-storey rear extension and fenestration amendments.

Type House extension
Status Approval
Date 11 Dec 2025

Proposed part single storey, part first floor side extension, single storey front /side extension, conversion of attached garage into habita...

Type House extension
Status Approval
Date 03 Dec 2025

Double-storey side extension and single-storey rear extension.

Type House extension
Status Approval
Date 04 Dec 2025

Single and double-storey side/rear extensions and conversion of garage to habitable use.

Type House extension
Status Approval
Date 05 Dec 2025

Single-storey rear extension and part infill side extension.

Type House extension
Status Approval
Date 05 Dec 2025

Part wrap-around single-storey and part double-storey rear extension.

Type House extension
Status Approval
Date 03 Dec 2025

Single-storey wrap-around extension, rear loft extension, dormer and fenestration alterations.

Type House extension
Status Approval
Date 05 Dec 2025

Erection of a single storey rear extension, which would extend beyond the rear wall of the original house by 4.00 metres, for which the maxi...

Type House extension
Status Prior Approval N/Req
Date 28 Nov 2025
Plan thumbnail

Erection of a single storey rear extension, which would extend beyond the rear wall of the original house by 4.00 metres, for which the maxi...

Type House extension
Status Prior Approval N/Req
Date 26 Nov 2025

Change of use from C4 to seven-bed Sui Generis HMO, resubmitted dormer extension, refuse and cycle storage.

Type Change of use
Status Refusal
Date 26 Nov 2025

Double-storey front, side and rear extensions, raised ridge, crown roof and new fenestration.

Type House extension
Status Approval
Date 28 Nov 2025

Change of use from Class C3 (Dwellinghouse) to Class C4 (HMO) for up to 6 persons, Erection of single-storey rear and side extension, includ...

Type Change of use
Status Refusal
Date Last month

Installation of 1no. non-illuminated post sign and 6 no. non-illuminated wall mounted signs *revised plans and description*

Type Advertisement
Status Approval
Date 23 Dec 2025

Erection of a single storey rear extension, which would extend beyond the rear wall of the original house by 4.00 metres, for which the maxi...

Type House extension
Status Prior Approval N/Req
Date Last month

Erection of a single storey rear extension which would extend beyond the rear wall of the original house by 4.00 metres, for which the maxim...

Type House extension
Status Prior Approval N/Req
Date Last month

Erection of a single storey rear extension, which would extend beyond the rear wall of the original house by 4 metres, for which the maximum...

Type House extension
Status Prior Approval N/Req
Date Last month

Conversion of roof space to habitable use to include rear dormer, side dormer, side roof light and 2 front roof lights. Conversion of existi...

Type House extension
Status Approval
Date 20 Jan 2025
Plan thumbnail

Partial conversion of garage to habitable use to include increasing the height of the garage roof and existing rear/side extension. Alterati...

Type House extension
Status Approval
Date 21 Jan 2025

Single storey rear extension and alterations to existing front porch.

Type House extension
Status Approval
Date 21 Jan 2025
Plan thumbnail

Rear infill and first-floor rear extensions, roofspace conversion with two rear dormers and four side rooflights.

Type House extension
Status Approval
Date 20 Jan 2025

Retrospective front porch and single-storey side extension to dwelling.

Type House extension
Status Approval
Date 20 Jan 2025
Plan thumbnail

Single storey rear extension projecting 4.00m, maximum and eaves height 3.00m.

Type House extension
Status Prior Approval N/Req
Date 21 Jan 2025
Plan thumbnail

Change from small HMO (C4) to large HMO (sui generis) for eight occupants with extensions.

Type Change of use
Status Refusal
Date 21 Jan 2025

Alteration to rear extension to include a rear lantern and new side facing window at ground floor level.

Type House extension
Status Approval
Date 13 Jan 2025
Plan thumbnail

Part single/part two-storey side and rear extensions and roof conversion with dormers.

Type House extension
Status Refusal
Date 13 Jan 2025

Part single- and part two-storey side and rear wraparound extension and garage conversion.

Type House extension
Status Approval
Date 13 Jan 2025
Plan thumbnail

Single-storey rear extension, garage conversion, front porch and roof space conversion with dormer.

Type House extension
Status Approval
Date 14 Jan 2025
Plan thumbnail

Change of use from restaurant (Class E) to three residential flats (Class C3).

Type Change of use
Status Approval
Date 13 Jan 2025
Plan thumbnail

Retention of a part two storey, part single storey side/rear extension (Retrospective application)

Type House extension
Status Approval
Date 06 Jan 2025
Plan thumbnail

Single storey rear extension and alteration to existing external metal staircase.

Type House extension
Status Approval
Date 07 Jan 2025
Plan thumbnail

Single-storey rear, first-floor side extension, front porch and garage conversion to habitable space.

Type House extension
Status Refusal
Date 07 Jan 2025

Single-storey rear extension projecting 4.00m with specified maximum and eaves heights.

Type House extension
Status Prior Approval N/Req
Date 07 Jan 2025

Part single-storey, part two-storey rear extension to dwelling.

Type House extension
Status Approval
Date 07 Jan 2025

Single-storey rear and front, part-side extensions and integral garage conversion to habitable room.

Type House extension
Status Approval
Date 06 Jan 2025

Erection of rear garden shed (retrospective) following demolition of existing shed.

Type Other
Status Approval
Date 06 Jan 2025

Two-storey side/rear extension, front porch, roof amendments and fenestration changes.

Type House extension
Status Refusal
Date 06 Jan 2025
Plan thumbnail

Single-storey side and rear extension and part first-floor rear extension to dwelling.

Type House extension
Status Approval
Date 07 Jan 2025

Installation of 4no. non-illuminated fascia signs with LED line and 2no. frosted window vinyl (amended description).

Type Advertisement
Status Approval
Date 11 Feb 2025

Alterations to the existing single storey rear extension roof together with amendments to fenestration including new bi-folding doors to the...

Type House extension
Status Approval
Date 11 Feb 2025
Plan thumbnail

Conversion of existing garage to habitable space including amendments to the front fenestration

Type House extension
Status Approval
Date 11 Feb 2025
Plan thumbnail

Single-storey rear extension adjoining existing extension with fenestration amendments.

Type House extension
Status Approval
Date 11 Feb 2025
Plan thumbnail

Single-storey rear extension extending 4.0m, maximum height 3.4m, eaves height 2.8m.

Type House extension
Status Prior Approval N/Req
Date 11 Feb 2025

Single-storey rear extension extending 4.00m, maximum height 3.00m, eaves height 3.00m.

Type House extension
Status Approval
Date 11 Feb 2025

Part single/part double-storey side and rear extensions, porch, garage conversion and roof dormer works.

Type House extension
Status Approval
Date 11 Feb 2025
Plan thumbnail

Single-storey front and rear extensions and first-floor side extension.

Type House extension
Status Approval
Date 11 Feb 2025

Single-storey front and rear extensions plus first-floor side extension.

Type House extension
Status Approval
Date 11 Feb 2025

Partial demolition of rear extension and garage; new single storey side and rear extension.

Type House extension
Status Approval
Date 10 Feb 2025

Change of use from single dwelling (C3) to small HMO (C4) for up to six people.

Type Change of use
Status Approval
Date 10 Feb 2025
Plan thumbnail

Single-storey rear extension and new front porch replacing existing porch.

Type House extension
Status Approval
Date 10 Feb 2025

Single-storey side and rear wraparound extension with raised ridgeline and fenestration amendments.

Type House extension
Status Approval
Date 11 Feb 2025
Plan thumbnail

Single-storey rear extension and multiple roof, porch and fenestration alterations including dormers.

Type House extension
Status Approval
Date 11 Feb 2025

Single-storey rear extension replacing existing rear extension with front elevation alterations.

Type House extension
Status Approval
Date 10 Feb 2025
Plan thumbnail

Change of use from dwelling (C3) to children's care home (C2).

Type Change of use
Status Approval
Date 10 Feb 2025
Plan thumbnail

Replace existing dwelling with a new dwelling, including parking and landscaping.

Type New housing
Status Approval
Date 11 Feb 2025

Conversion of garage to habitable space, including replacement of garage door with window, and enclosure of porch area

Type House extension
Status Approval
Date 04 Feb 2025
Plan thumbnail

Replace timber windows with double-glazed uPVC windows to Flats 1–15.

Type Other
Status Approval
Date 04 Feb 2025
Plan thumbnail

Demolish garages and build two buildings providing six residential units with parking and amenity.

Type New housing
Status Approval
Date 04 Feb 2025

Convert single 3-bed house into two 2-bed self-contained flats with side and rear extensions.

Type Change of use
Status Refusal
Date 04 Feb 2025

Single storey front and rear extensions and conversion of integral garage to living space.

Type House extension
Status Approval
Date 04 Feb 2025
Plan thumbnail

Demolish rear workshops and build 2 flats plus 1 dwelling with alterations and extension.

Type New housing
Status Approval
Date 04 Feb 2025

Single storey rear extension projecting 4.00m, 3.20m maximum height.

Type House extension
Status Prior Approval N/Req
Date 04 Feb 2025
Plan thumbnail

Single storey rear extension and garage conversion with new window replacing garage door.

Type House extension
Status Approval
Date 03 Feb 2025

Single storey front extension and garage conversion to habitable use.

Type House extension
Status Approval
Date 04 Feb 2025