← Back to London Borough of Hillingdon

Status

Approval House extension
Received
14 Nov 2025
New dwellings
0

Full Proposal

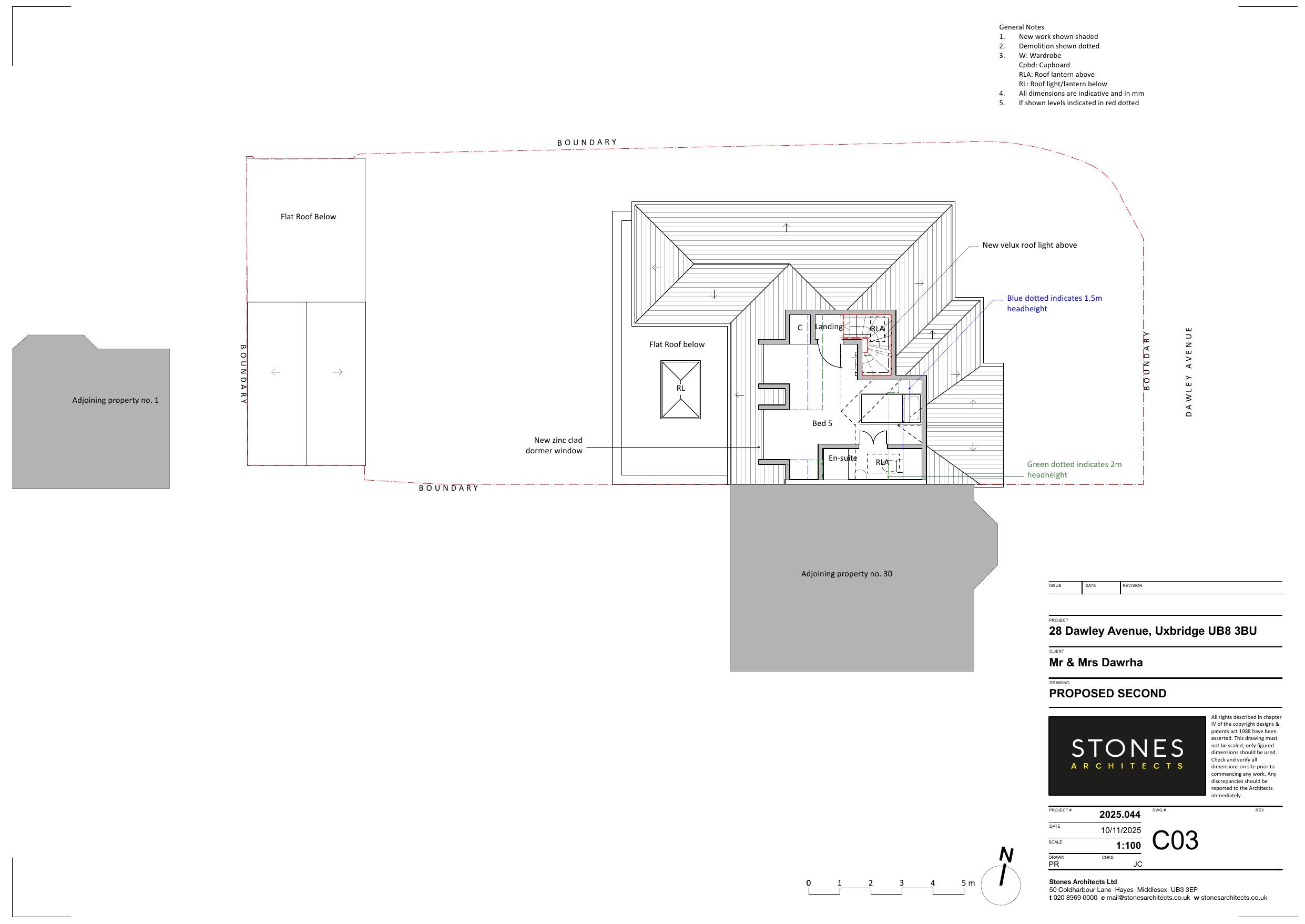
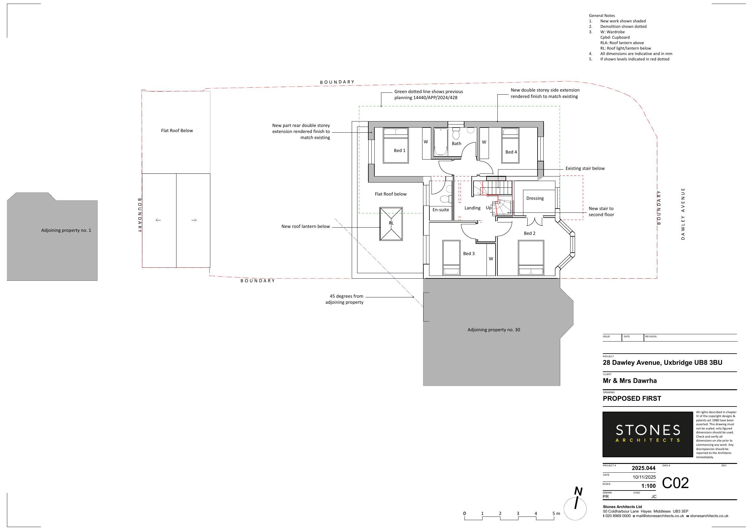
Erection of two storey side extension, part single part two storey rear extension, 2 x rear dormers, 2x roof lights to the front, and amendments to fenestrations.

Documents

APPLICATION FORM
Document
Not archived · Council Link
DECISION NOTICE
Document
Not archived · Council Link
DESIGN AND ACCESS STATEMENT
Document
Not archived · Council Link
EXISTING ELEVATIONS
Document
Not archived · Council Link
EXISTING FLOOR PLANS
Document
Not archived · Council Link
EXISTING FLOOR PLANS
Document
Not archived · Council Link
EXISTING ROOF PLANS
Document
Not archived · Council Link
LOCATION PLAN
Document
Not archived · Council Link
OFFICERS REPORTS
Document
Not archived · Council Link
PHOTOGRAPHS (Supporting info)
Document
Not archived · Council Link
PROPOSED ELEVATIONS
Document
Not archived · Council Link
Document
Archived · Council Link
Document
Archived · Council Link
Document
Archived · Council Link
PROPOSED PLAN
Document
Not archived · Council Link
PROPOSED ROOF PLANS
Document
Not archived · Council Link
PROPOSED SECTIONS
Document
Not archived · Council Link
SITE LAYOUT - EXISTING
Document
Not archived · Council Link

Take Action

Make your voice heard. Authorities need to hear from people who support new homes.

✉️ Write Email in Support View on Council Portal