← Back to London Borough of Hillingdon
20677/APP/2025/3135
London Borough of Hillingdon · OCELLA
Status
Refusal
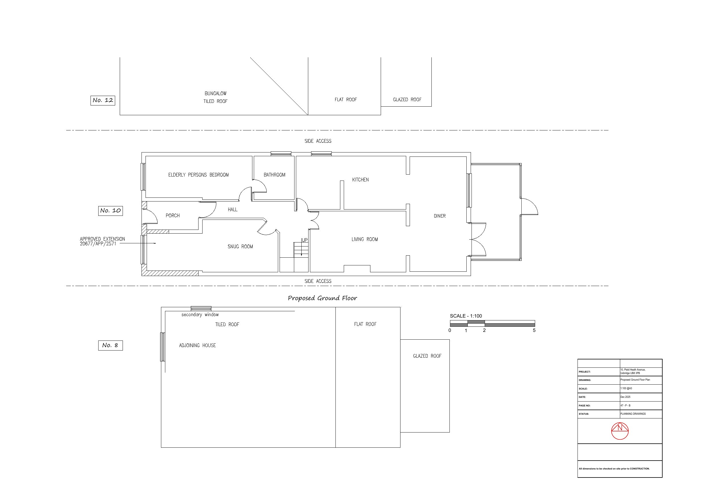
House extension
Received
12 Dec 2025
New dwellings
0
Full Proposal
Ground floor and first floor front and first floor rear extensions to created additional habitable roofspace
Documents
Take Action
Make your voice heard. Authorities need to hear from people who support new homes.