← Back to London Borough of Hillingdon
25045/APP/2025/84
London Borough of Hillingdon · OCELLA
Status
Approval
House extension
Received
14 Jan 2025
New dwellings
0
Summary
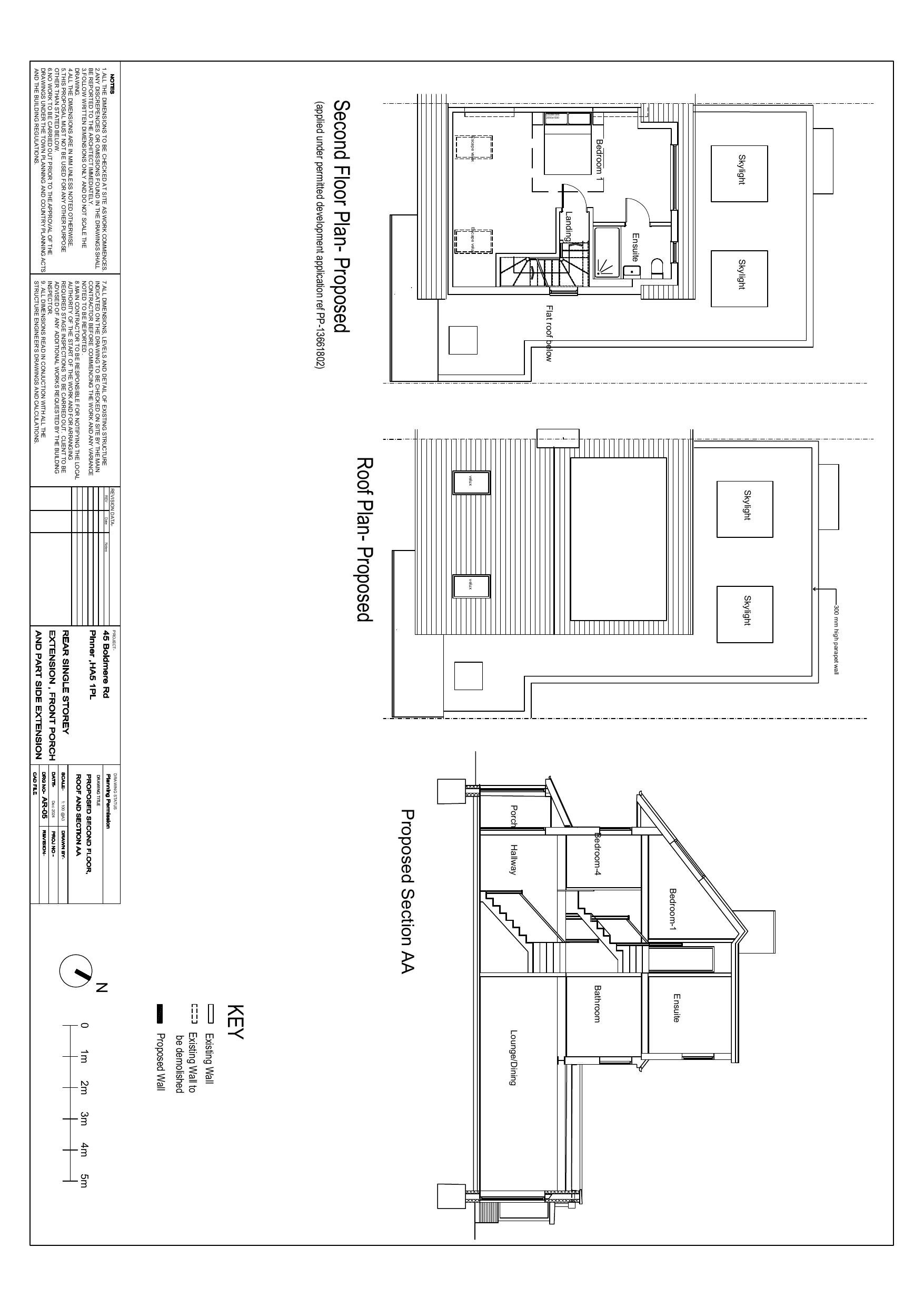
Single-storey rear extension, garage conversion, front porch and roof space conversion with dormer.
Full Proposal
Erection of a single storey extension to the rear, partial demolition and conversion of integral garage to habitable accommodation, erection of front porch, conversion of roof space to habitable use to include a rear dormer with 2 front roof lights, conversion of roof from hip to gable end with new gable end window
Documents
Take Action
Make your voice heard. Authorities need to hear from people who support new homes.