← Back to London Borough of Hillingdon
26633/APP/2025/133
London Borough of Hillingdon · OCELLA
Status
Approval
House extension
Received
20 Jan 2025
New dwellings
0
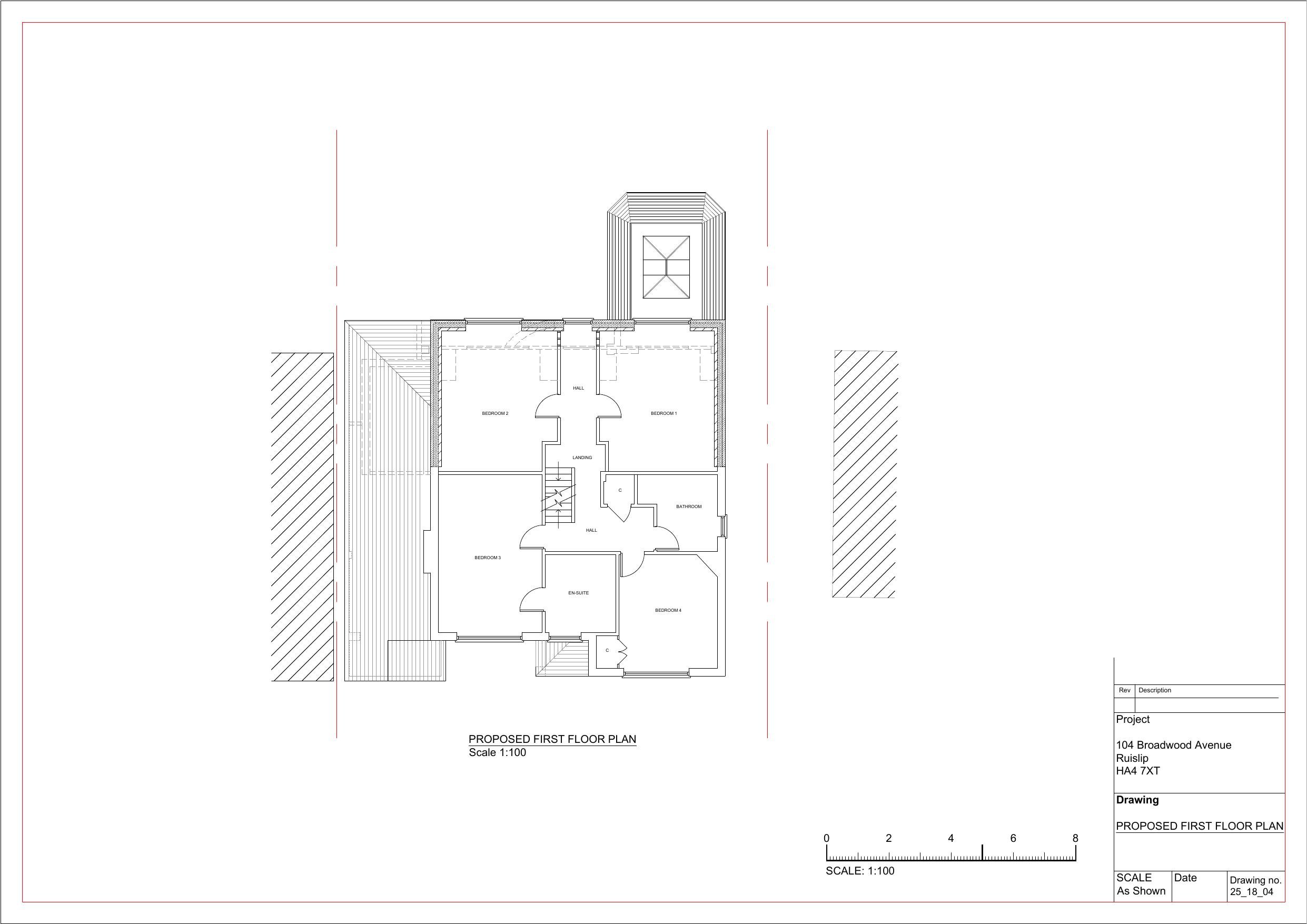
Summary
Rear infill and first-floor rear extensions, roofspace conversion with two rear dormers and four side rooflights.
Full Proposal
Erection of a single storey infill extension to the rear, a first floor rear extension, conversion of roof space to habitable use to include 2no. rear facing dormers and 4no. side facing roof lights, and amendments to fenestration.
Documents
Take Action
Make your voice heard. Authorities need to hear from people who support new homes.