← Back to London Borough of Hillingdon

Status

Approval House extension
Received
09 Oct 2025
New dwellings
0

Summary

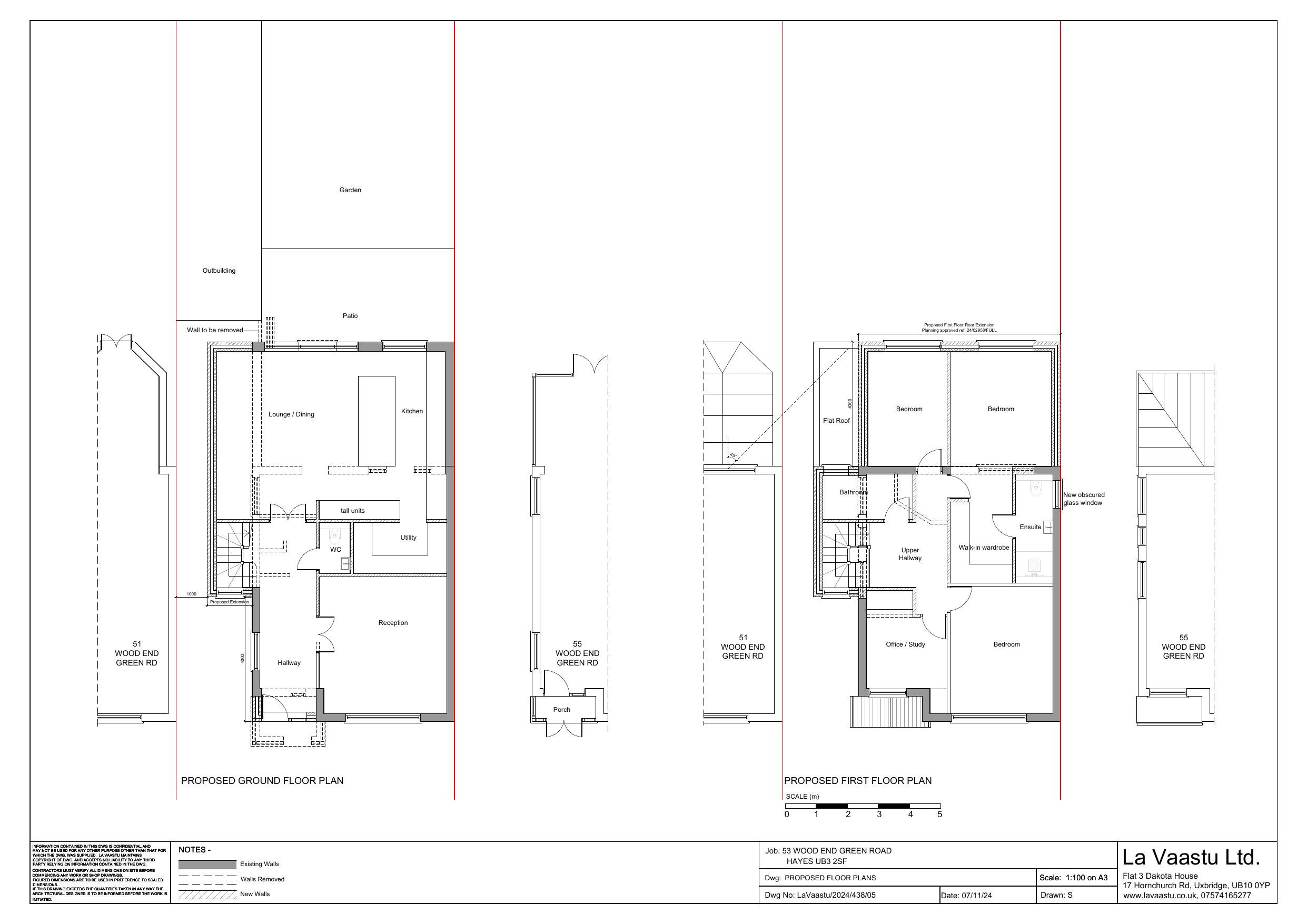
Part single, part two-storey wrap-around side and rear extension and front porch.

Full Proposal

Erection of a part single, part two storey wrap around extension to the side and rear, erection of a front porch

Documents

APPLICATION FORM
Document
Not archived · Council Link
DECISION NOTICE
Document
Not archived · Council Link
EXISTING ELEVATIONS AMENDED
Document
Not archived · Council Link
EXISTING FLOOR PLANS
Document
Not archived · Council Link
EXISTING FLOOR PLANS AMENDED
Document
Not archived · Council Link
EXISTING FRONT ELEVATIONS
Document
Not archived · Council Link
LOCATION PLAN
Document
Not archived · Council Link
OFFICERS REPORTS
Document
Not archived · Council Link
PROPOSED AND EXISITNG SITE LAYOUT PLAN
Document
Not archived · Council Link
PROPOSED ELEVATIONS AMENDED
Document
Not archived · Council Link
Document
Archived · Council Link
PROPOSED FRONT ELEVATIONS
Document
Not archived · Council Link
SITE LAYOUT - PROPOSED AMENDED
Document
Not archived · Council Link

Take Action

Make your voice heard. Authorities need to hear from people who support new homes.

✉️ Write Email in Support View on Council Portal